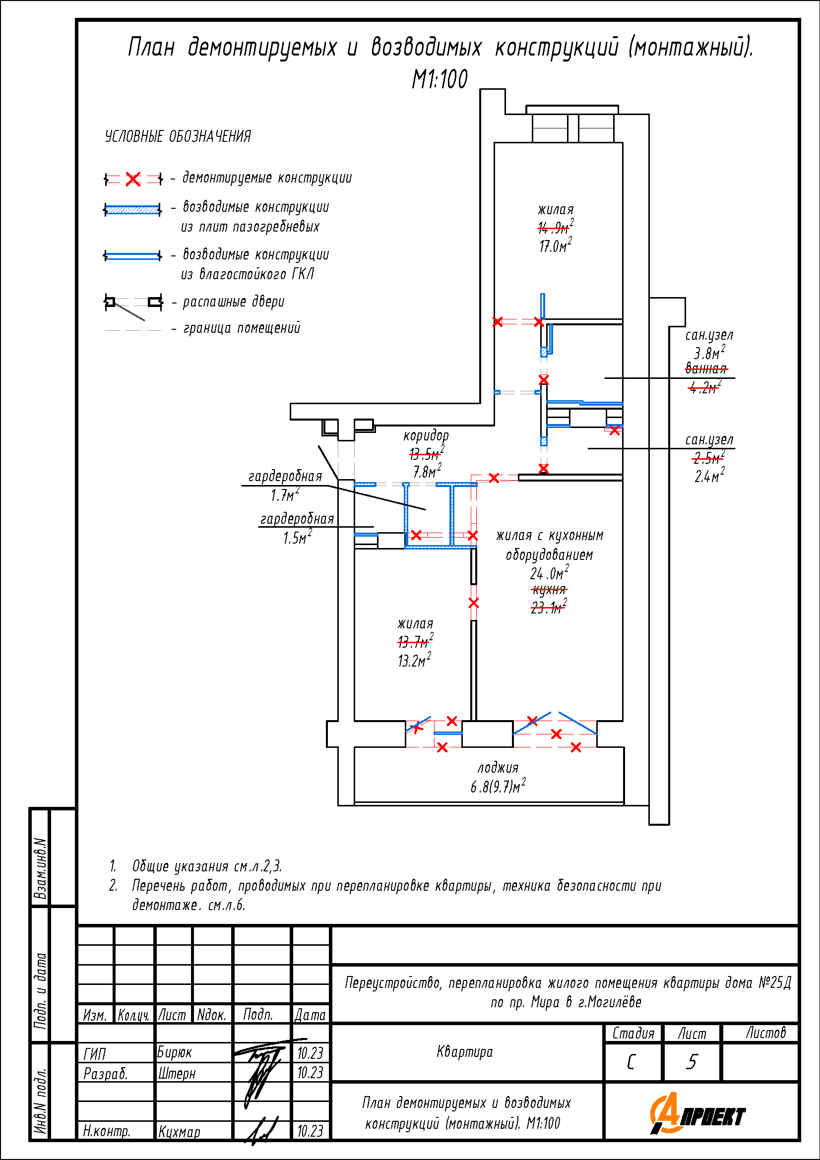
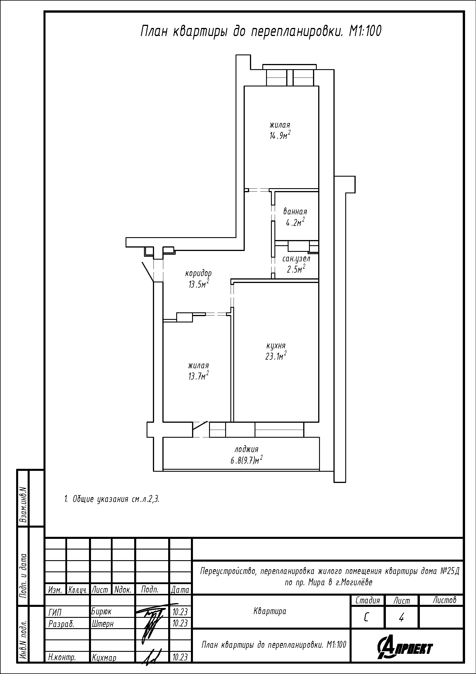
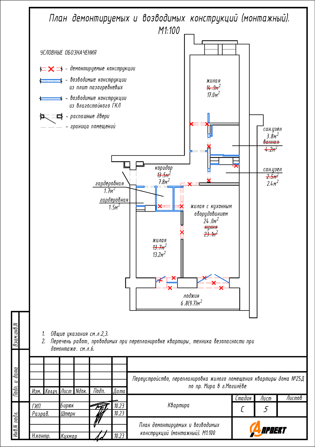
Перепланировка квартиры по пр-ту Мира, 25Д в г. Могилёве
Пожелания заказчика:
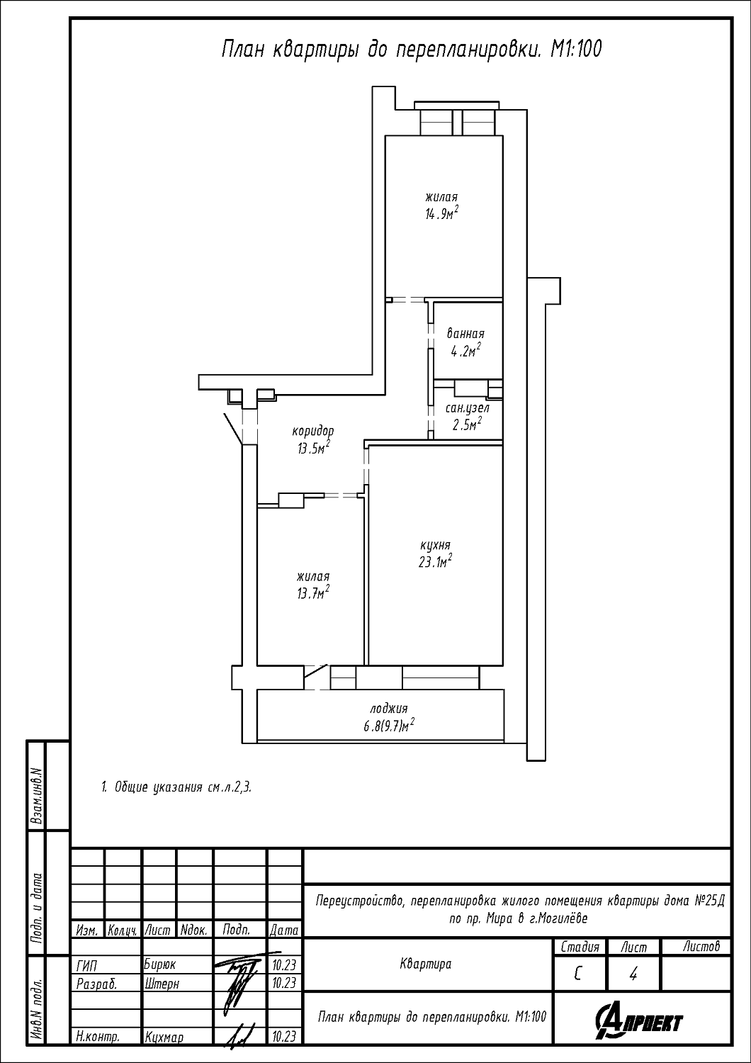
- Устройство "французских" окон в жилой комнате площадью 13.7 кв.м., кухне;
- Устройство дверного проема (дверь) между кухней и жилой комнатой площадью 13.7 кв.м;
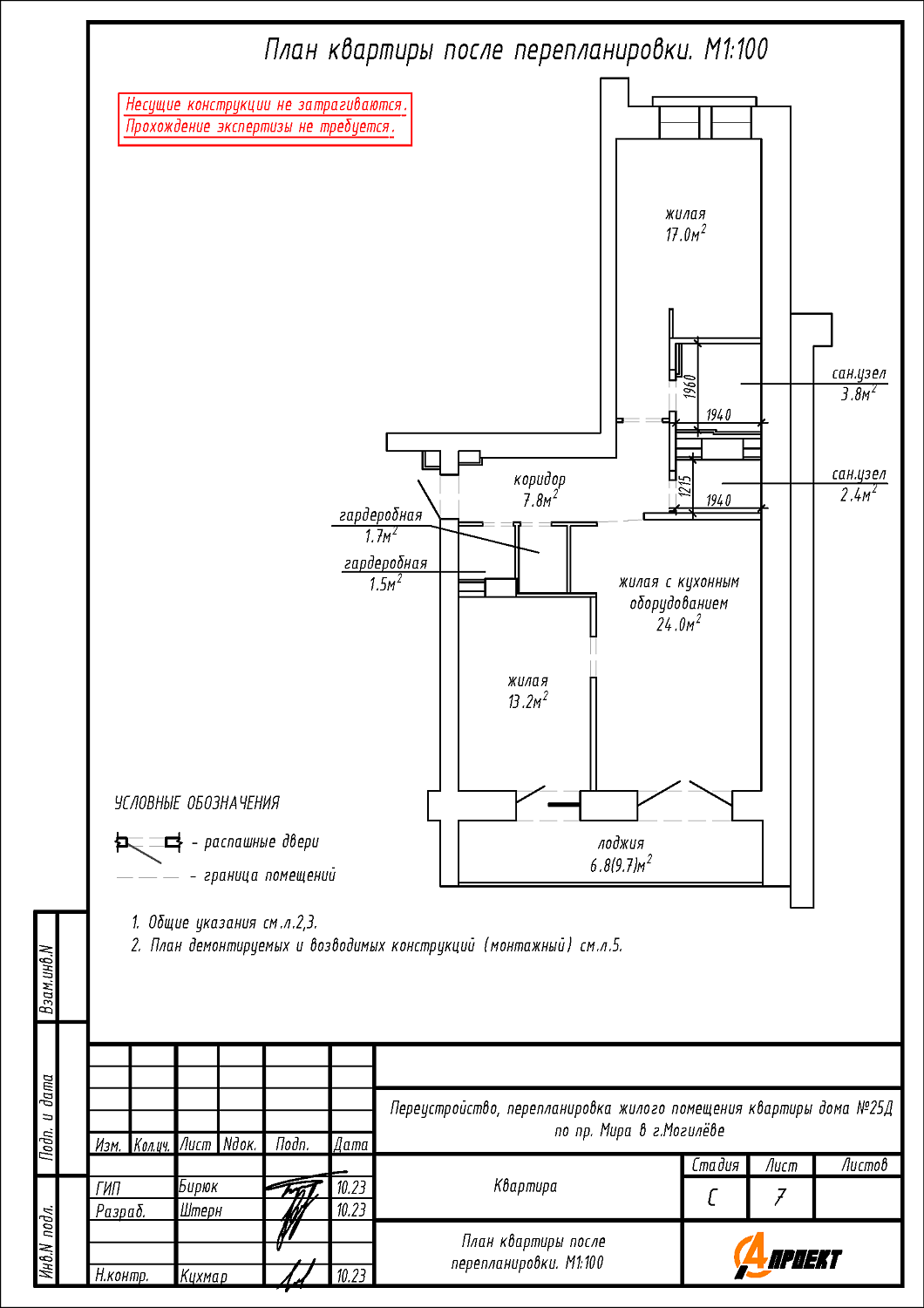
- Устройство гардеробных в коридоре;
- Демонтаж части перегородки между коридором и кухней, жилой 13.7 кв.м.;
- Смещение дверных проемов в туалете и ванной комнате;
- Демонтаж дверного проема в жилой комнате площадью 14.9 кв.м.;
- Устройство перегородки в коридоре;
- Устройство перегородки в жилой комнате 14.9 кв.м.
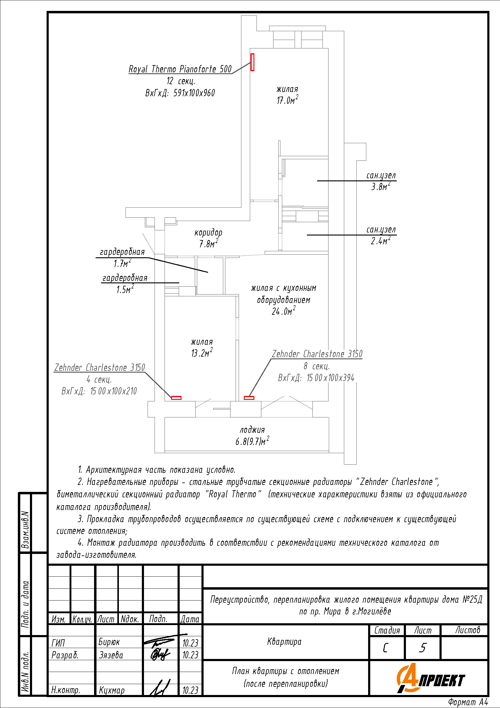
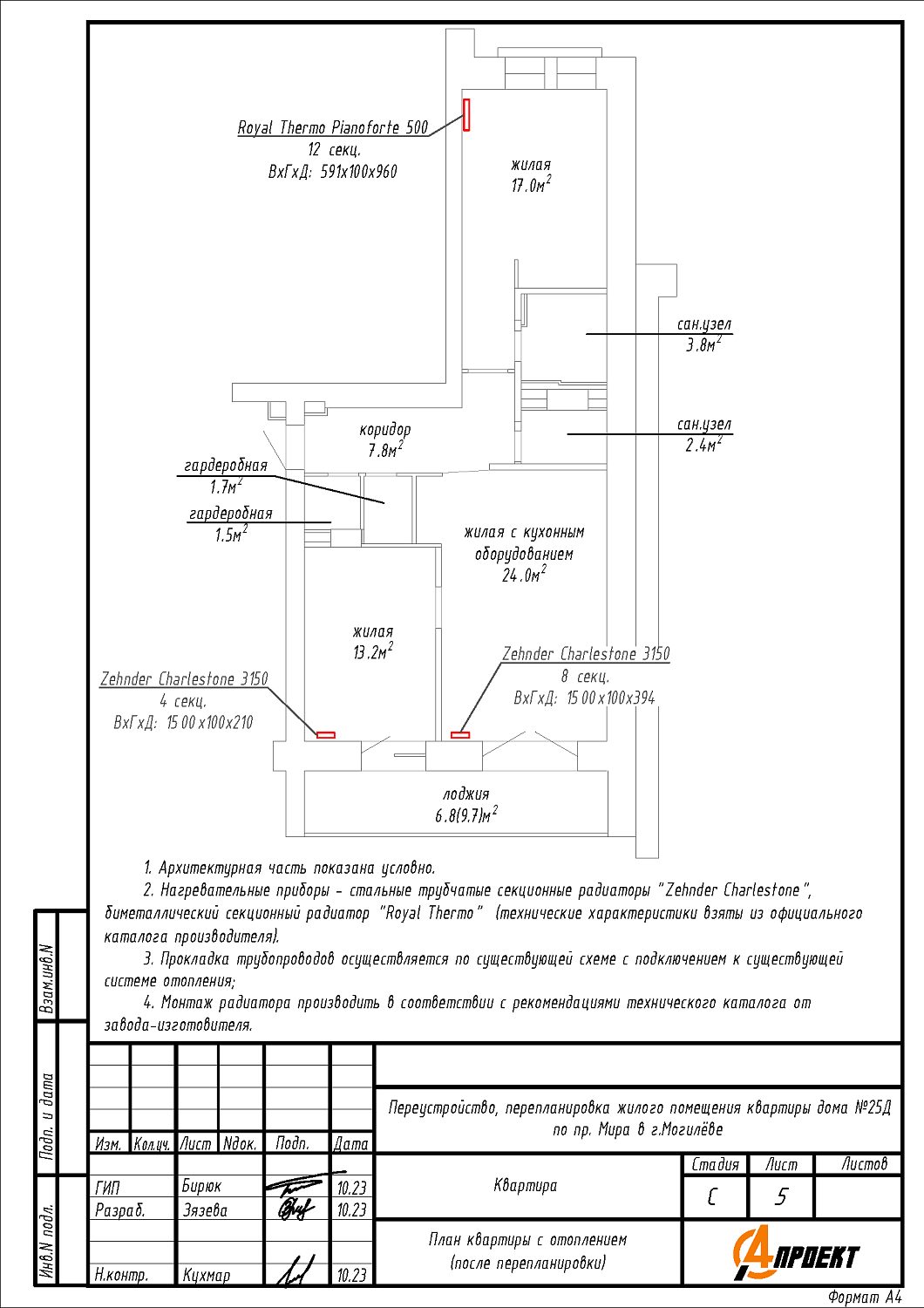
- Замена и перенос отопительных приборов.
Нами были разработаны следующие разделы проектной документации для согласования в исполкоме:
- АС - архитектурно-строительные решения;
- ОВ - отопление и вентиляция.
