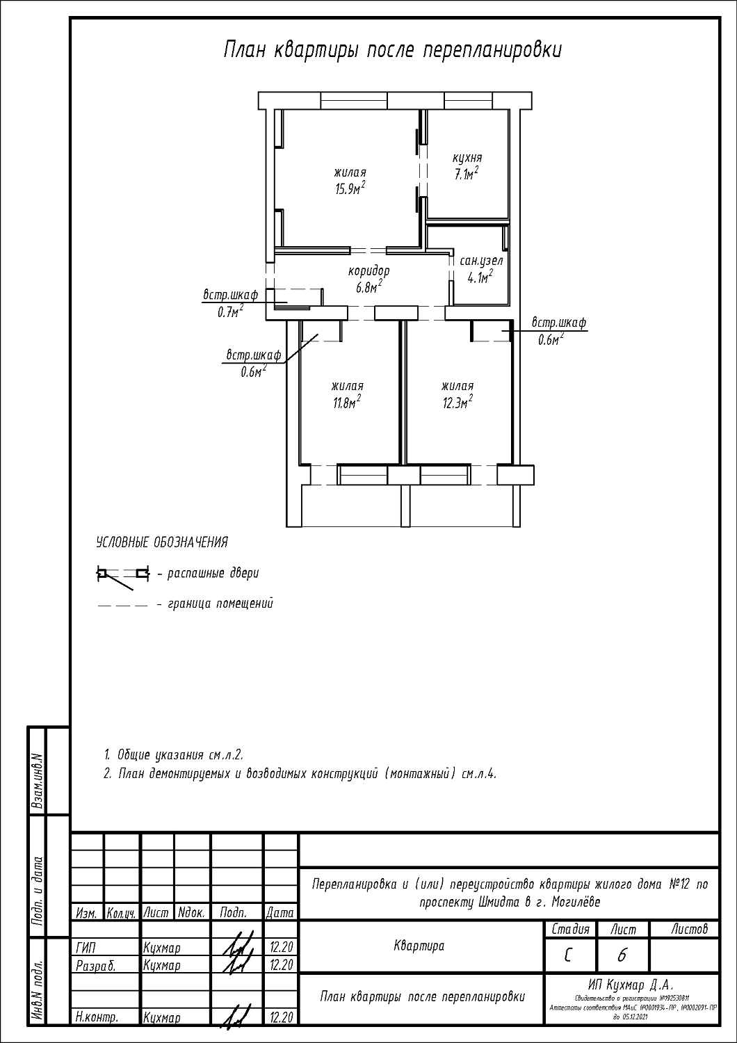
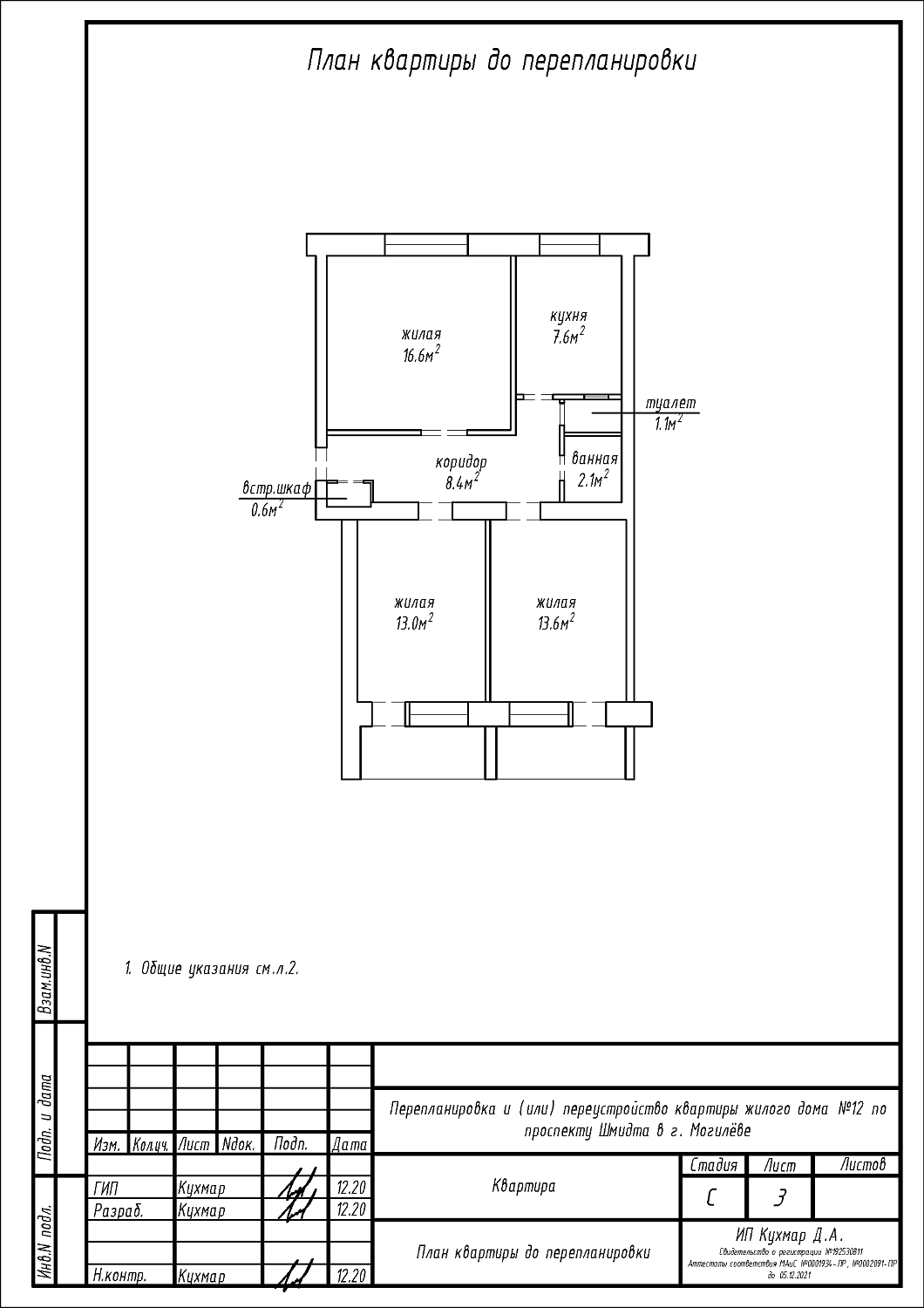
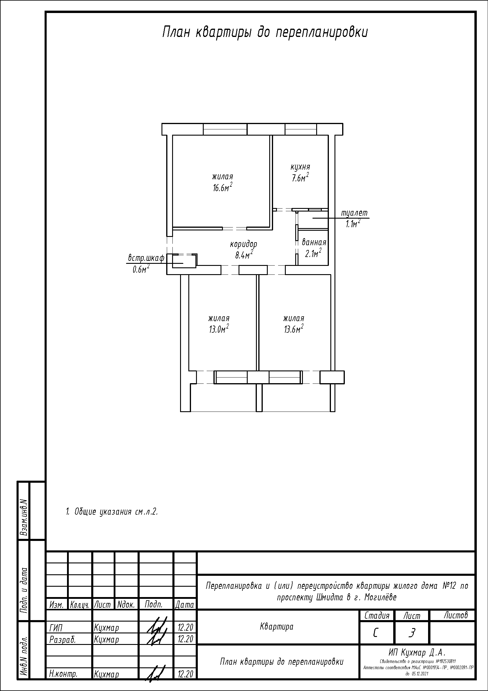
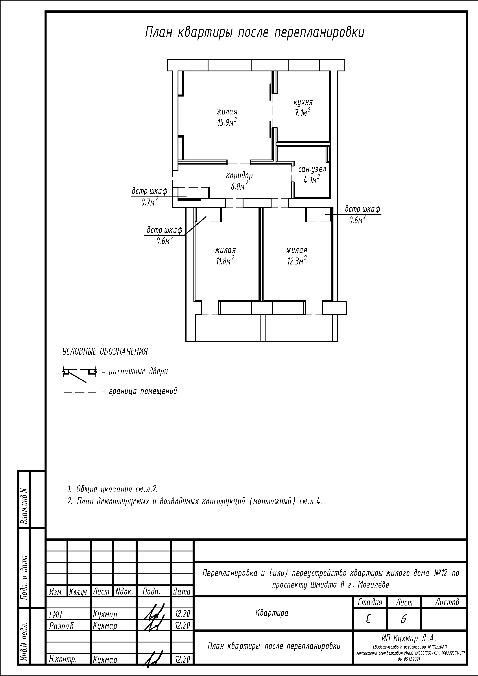
Перепланировка квартиры по пр-ту Шмидта, 12 в г. Могилёве
Пожелания заказчика:
- Устройство дверного проёма между жилой и кухней;
- Объединение ванной и туалета в единый санузел;
- Увеличение санузла за счет коридора;
- Закладка дверного проёма между кухней и коридором.
Нами были разработаны следующие разделы проектной документации для согласования в исполкоме:
- АС - архитектурно-строительные решения.
