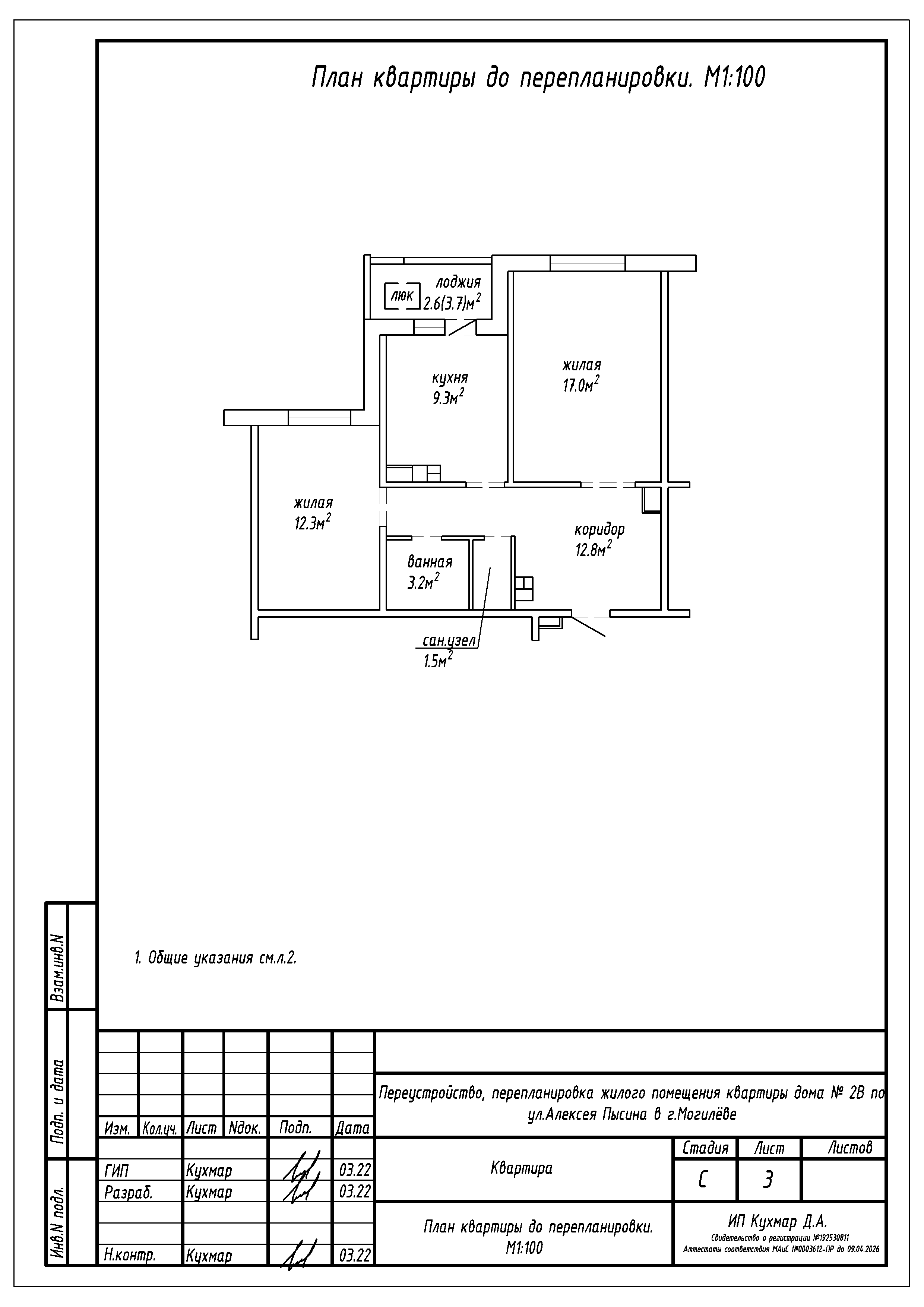
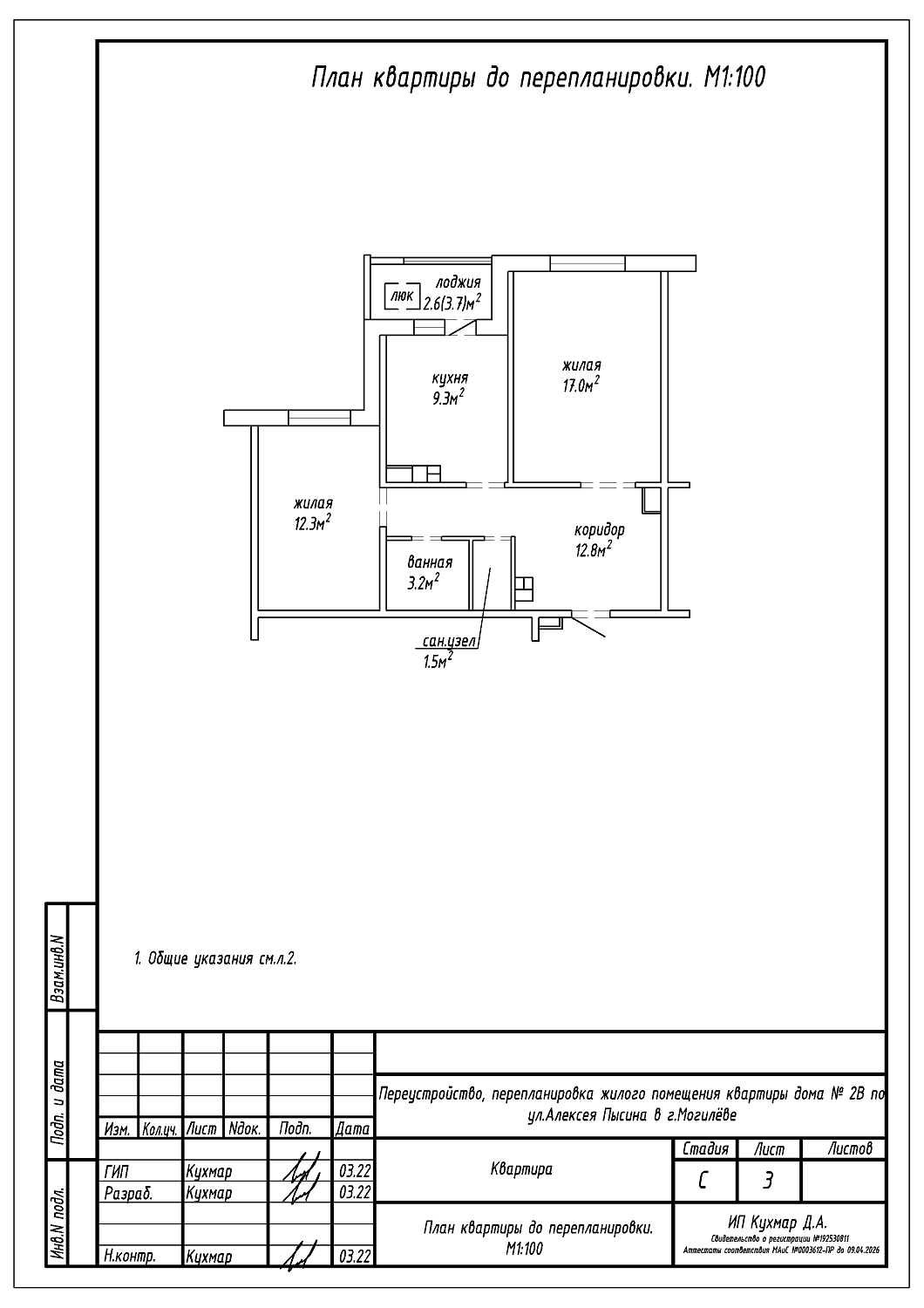
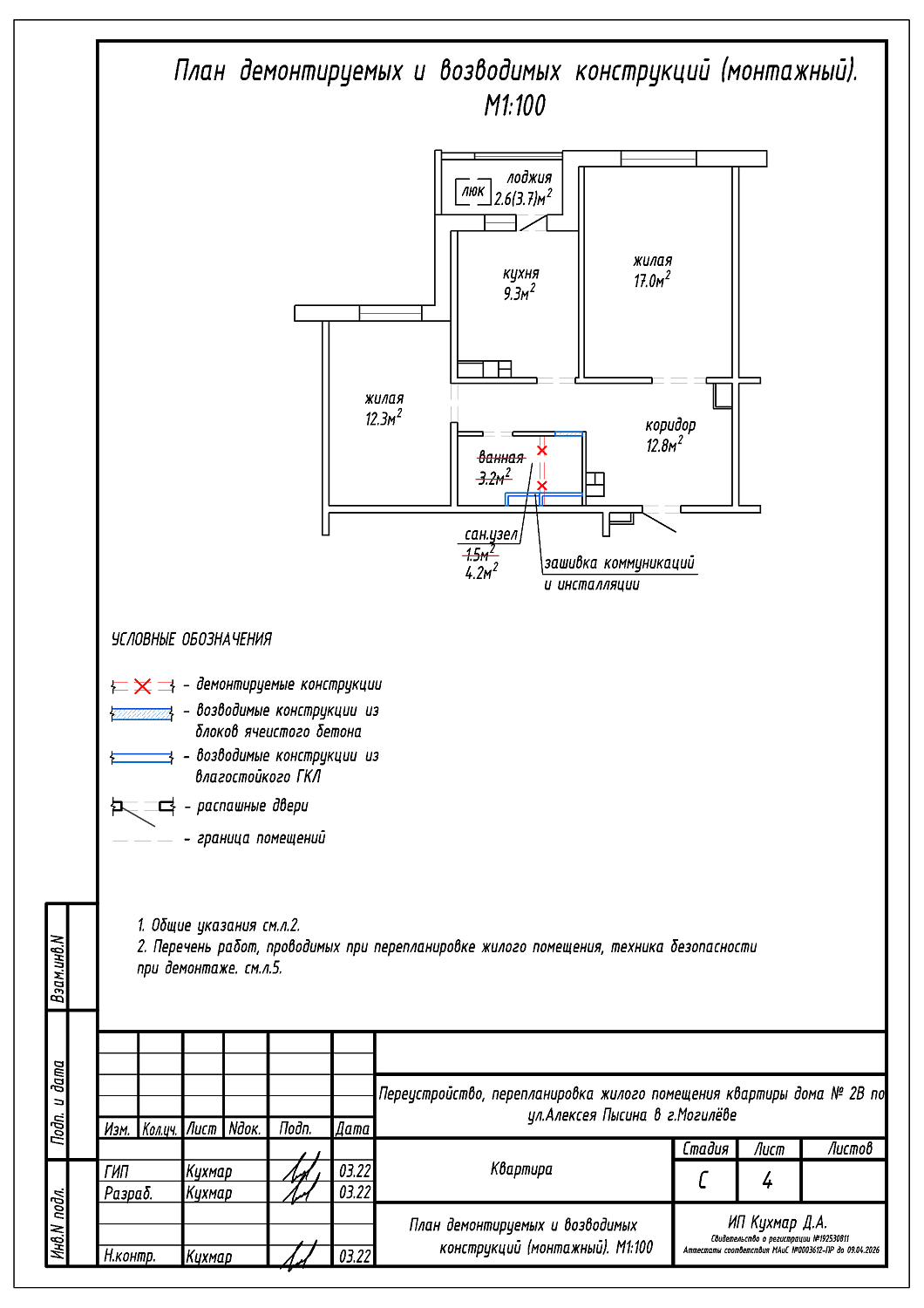
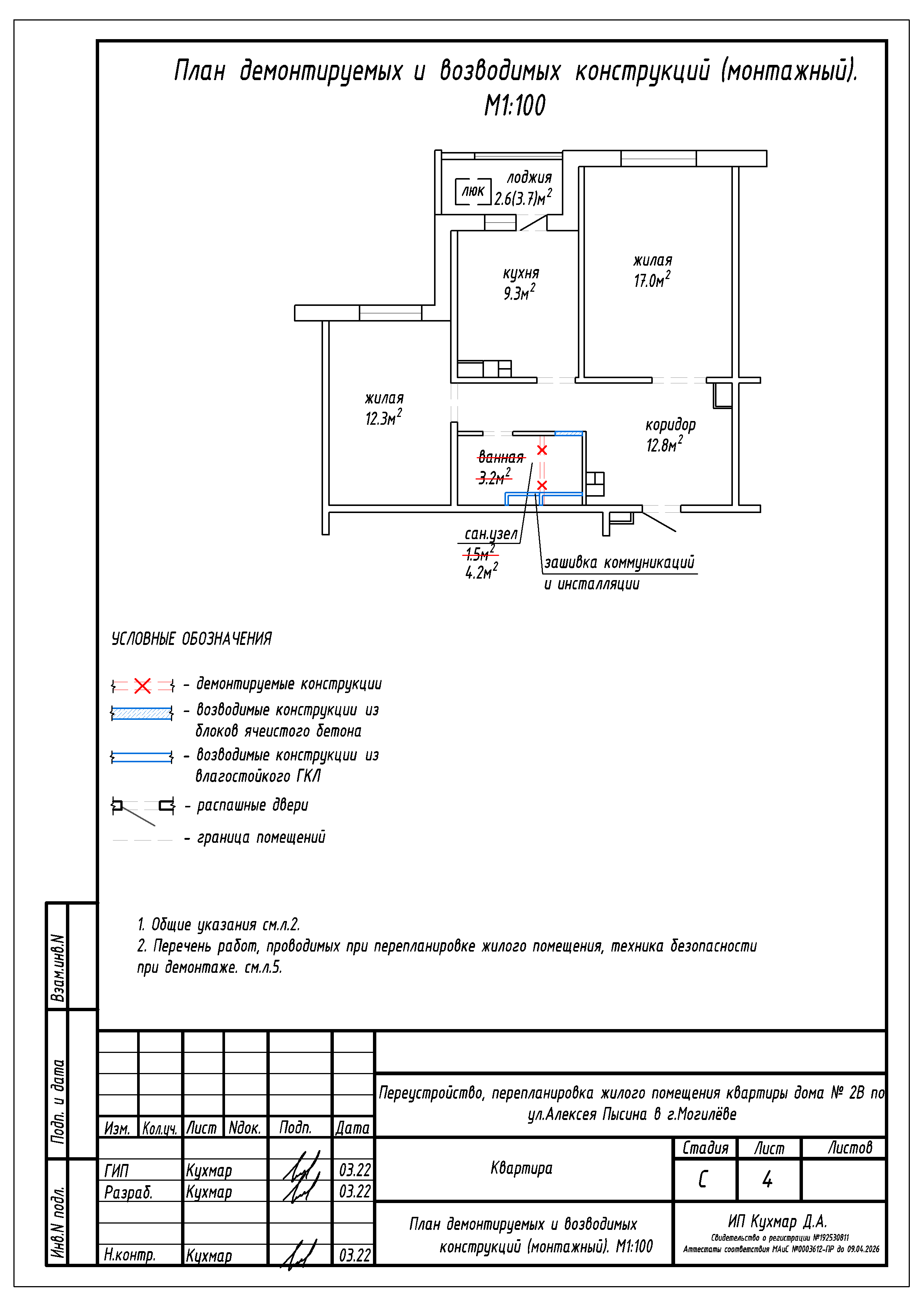
Перепланировка квартиры по ул. Алексея Пысина, 2В в г.Могилёве
Пожелания заказчика:
- Объединение ванной и туалета в единый санузел;
- Закладка дверного проёма в санузле.
Нами были разработаны следующие разделы проектной документации для согласования в исполкоме:
- АС - архитектурно-строительные решения.
