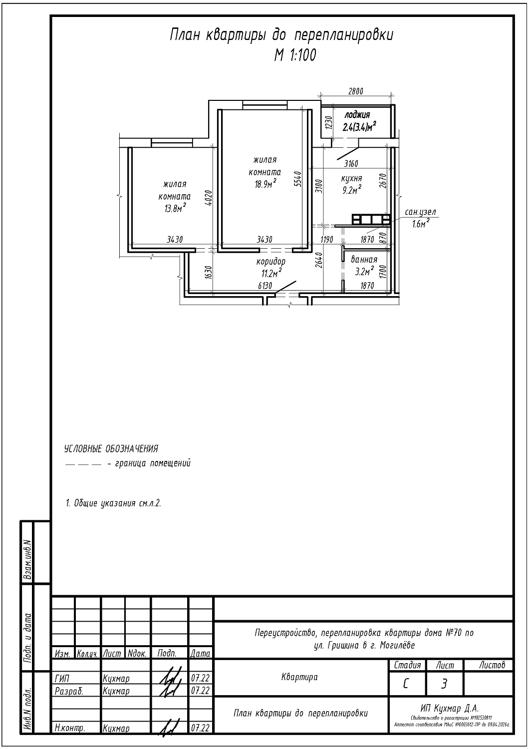
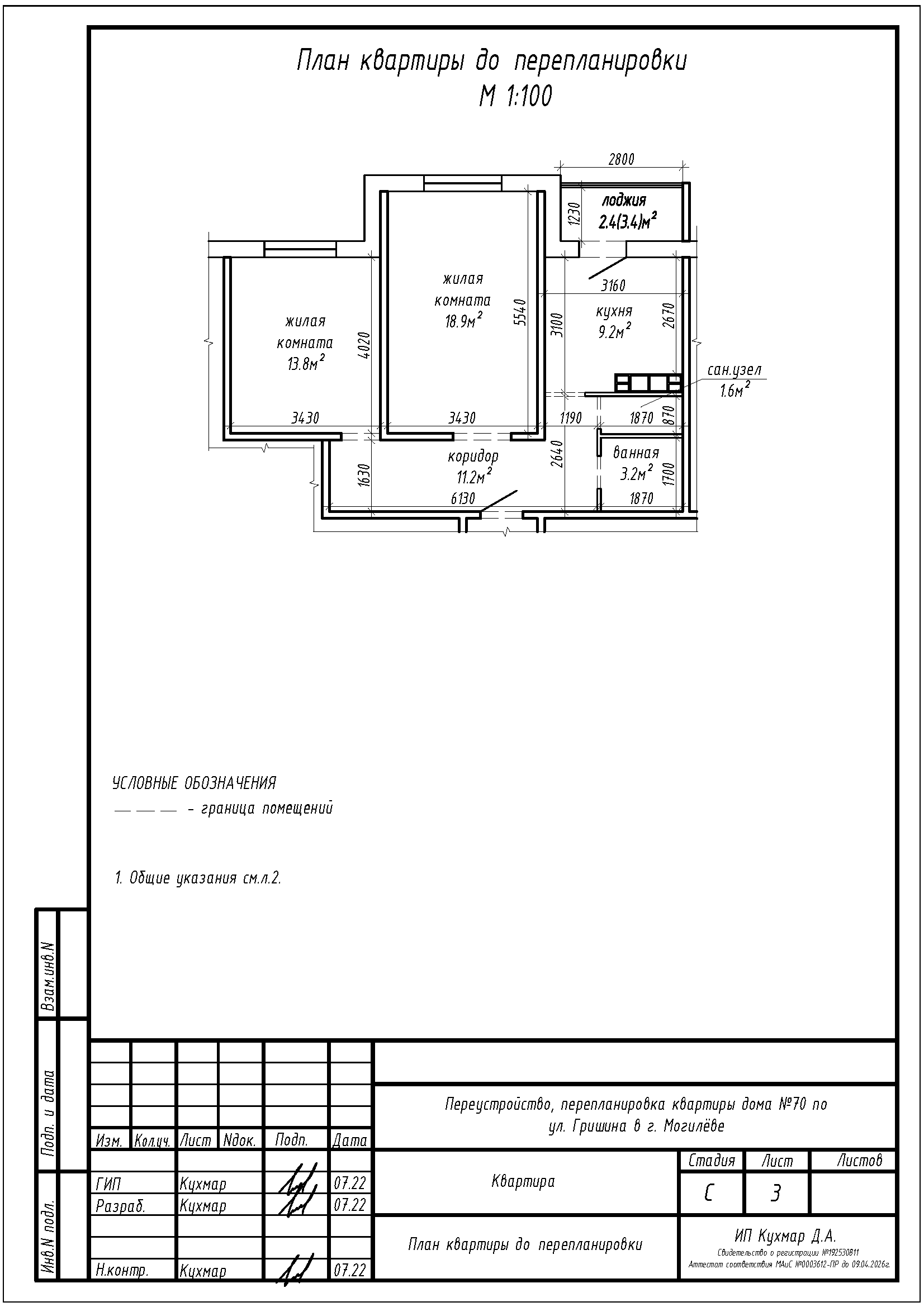
Перепланировка квартиры по ул. Гришина, 70 в г.Могилёве
Пожелания заказчика:
- Устройство совмещённого санузла;
- Закладка дверного проёма в туалете;
- Перенос дверного проёма в ванную комнату;
- Демонтаж части перегородки между кухней и коридором.
Нами были разработаны следующие разделы проектной документации для согласования в исполкоме:
- АС - архитектурно-строительные решения.
