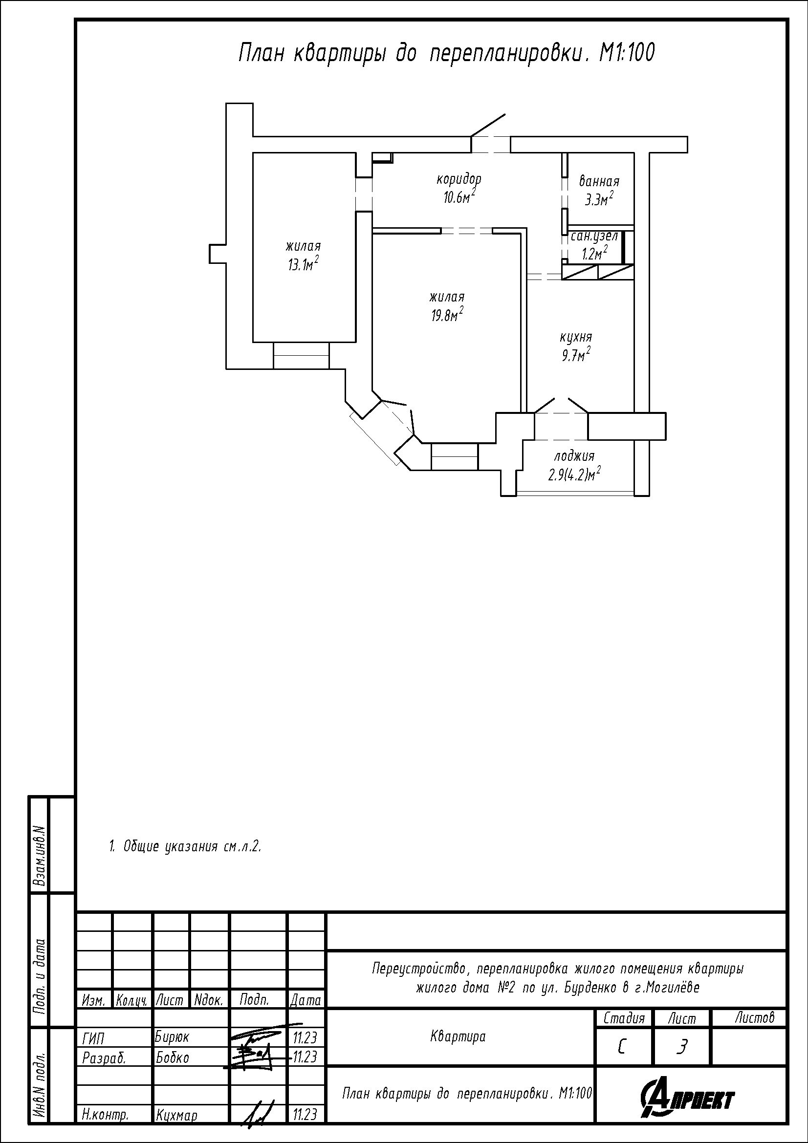
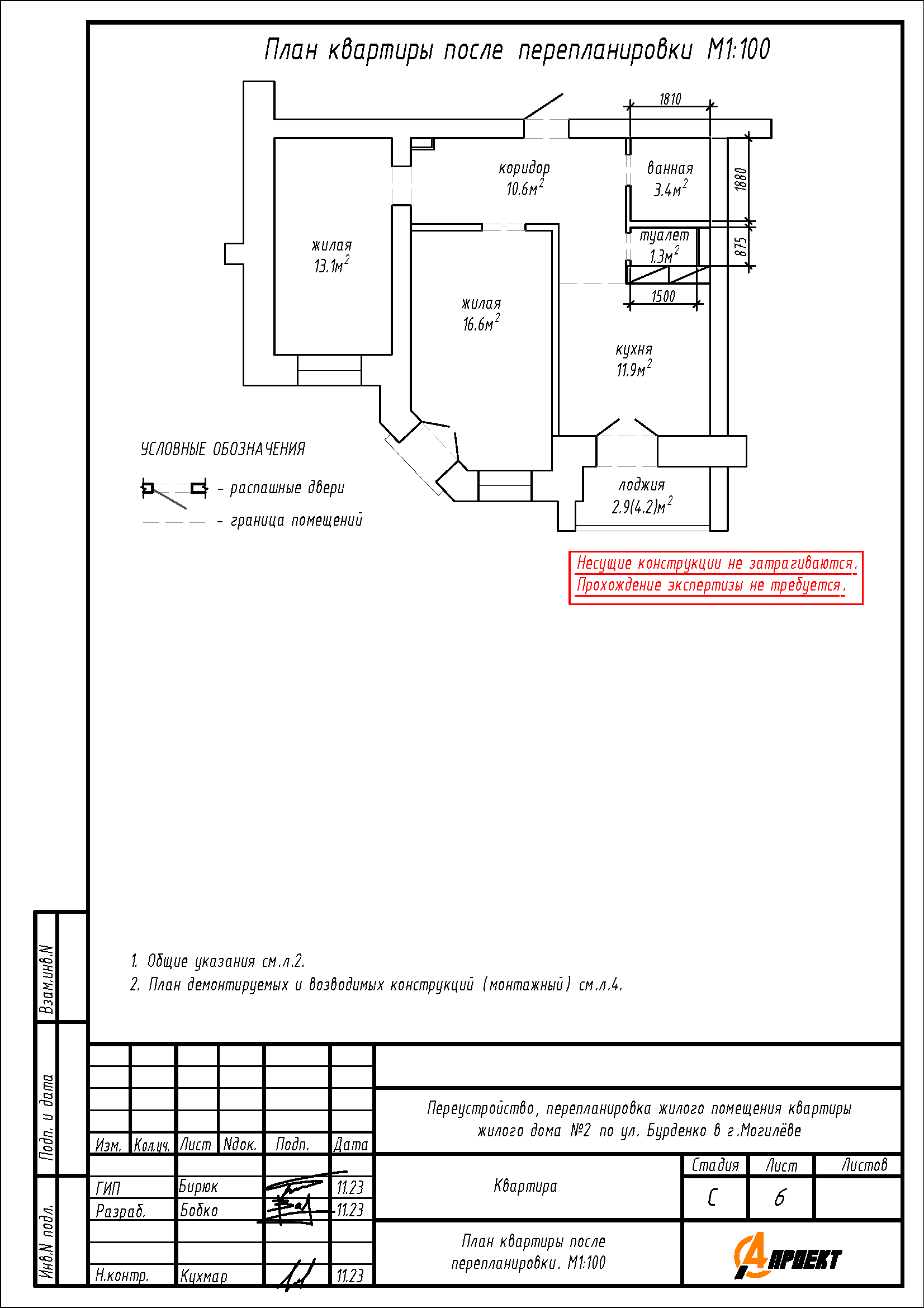
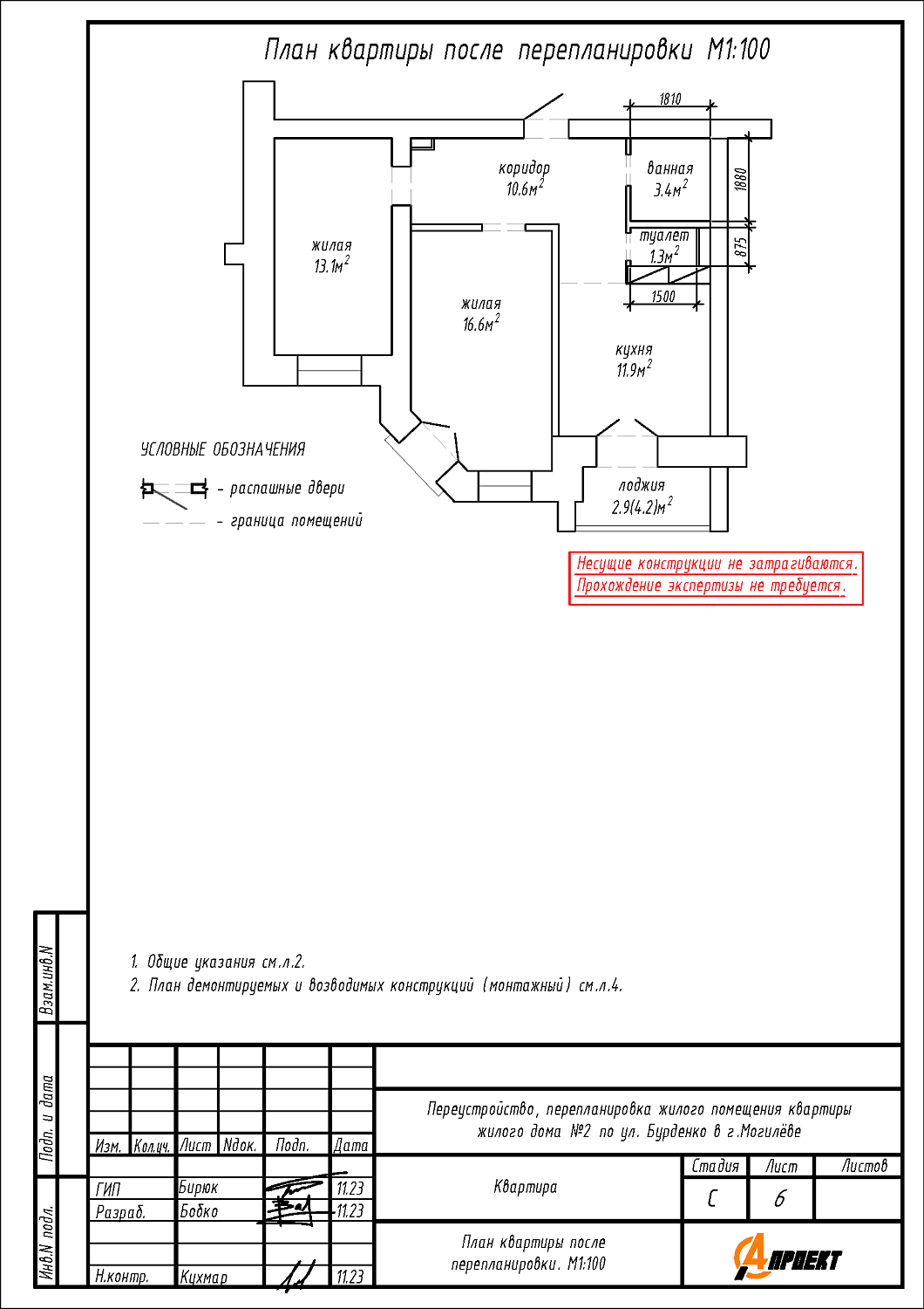
Перепланировка квартиры по ул. Бурденко, 2 в г. Могилёве
Пожелания заказчика:
- Расширение сан.узла и ванной комнаты за счет части площади коридора;
- Перенос перегородки между кухней и жилой комнатой площадью 19.8м2.
Нами были разработаны следующие разделы проектной документации для согласования в исполкоме:
- АС - архитектурно-строительные решения.
