Перепланировка квартиры по ул. Веры Хоружей, 42 в г. Минске
Пожелания заказчика:
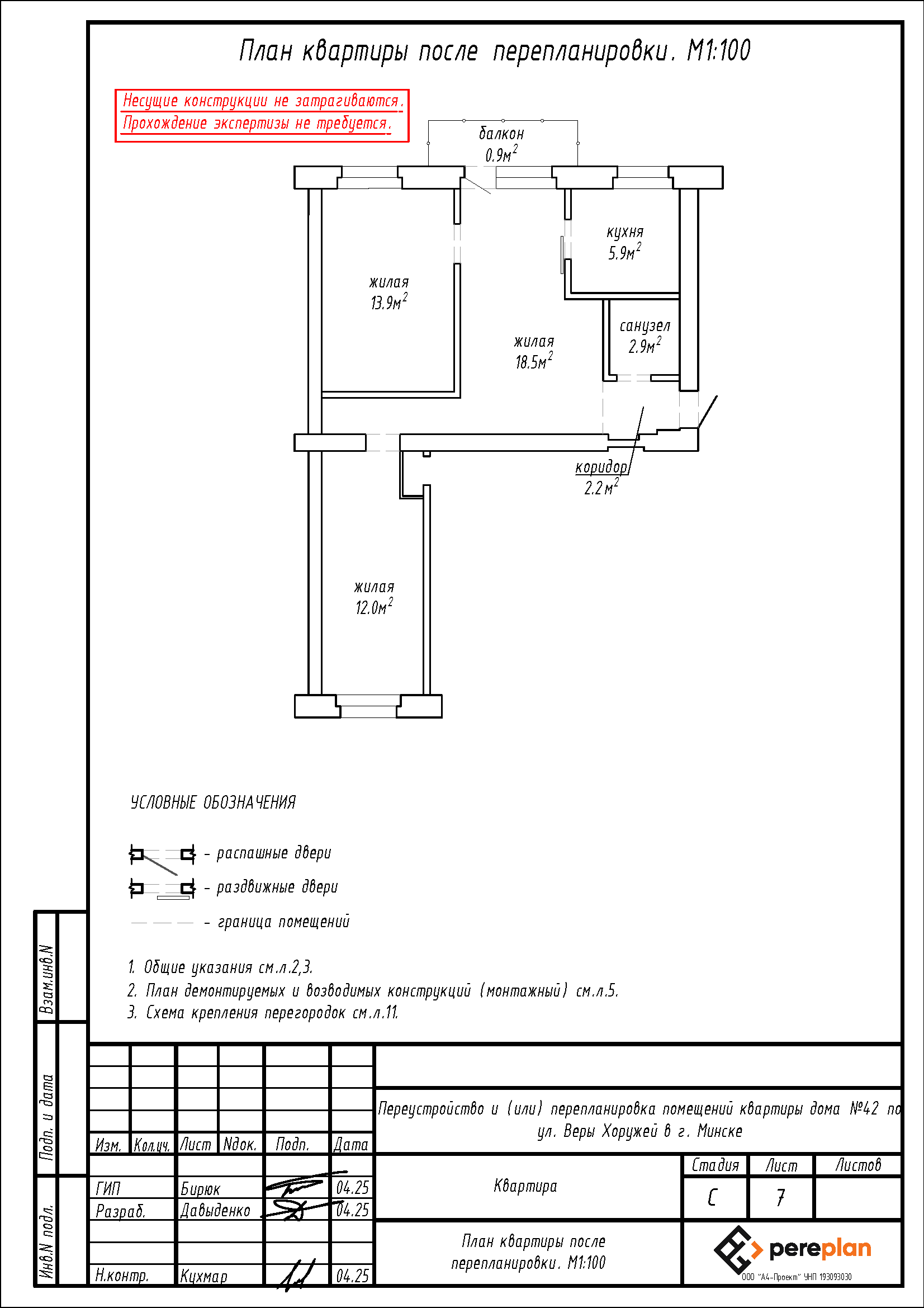
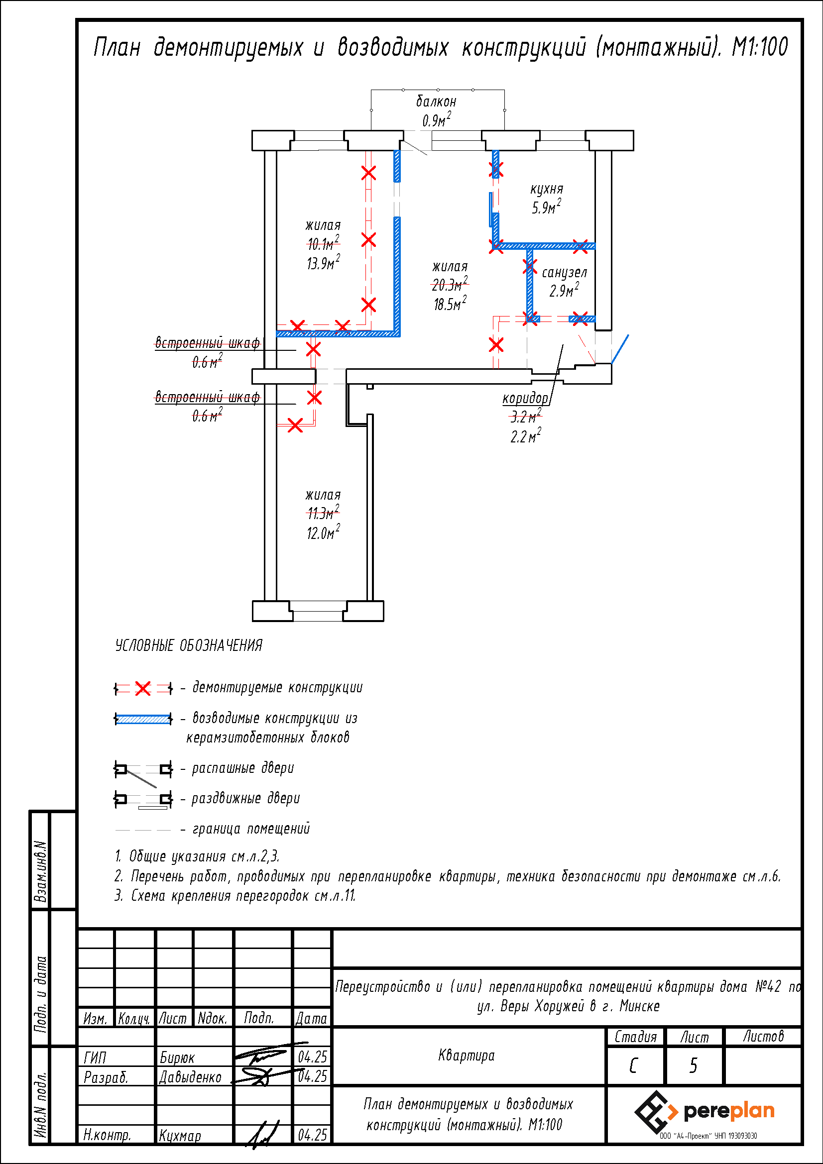
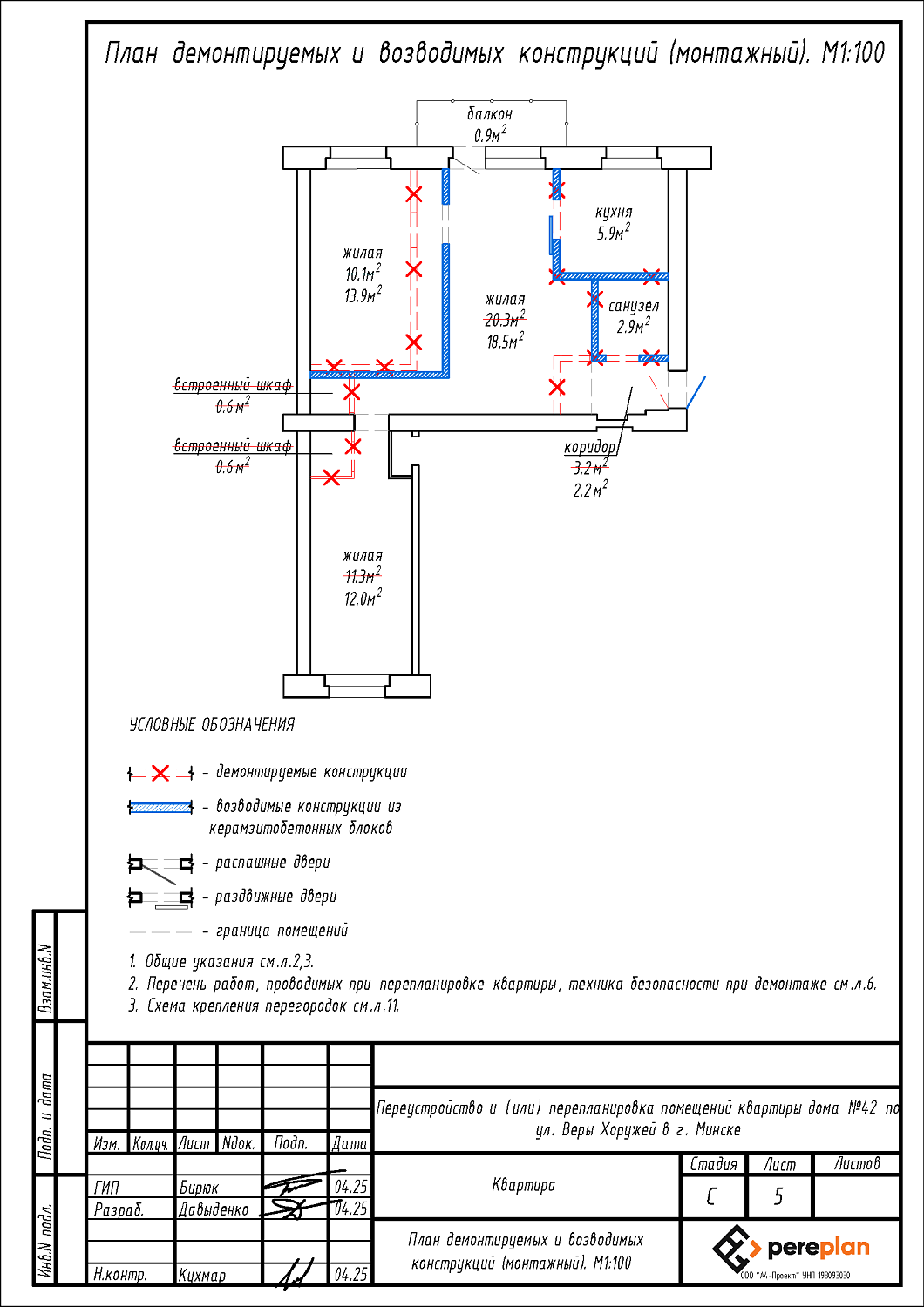
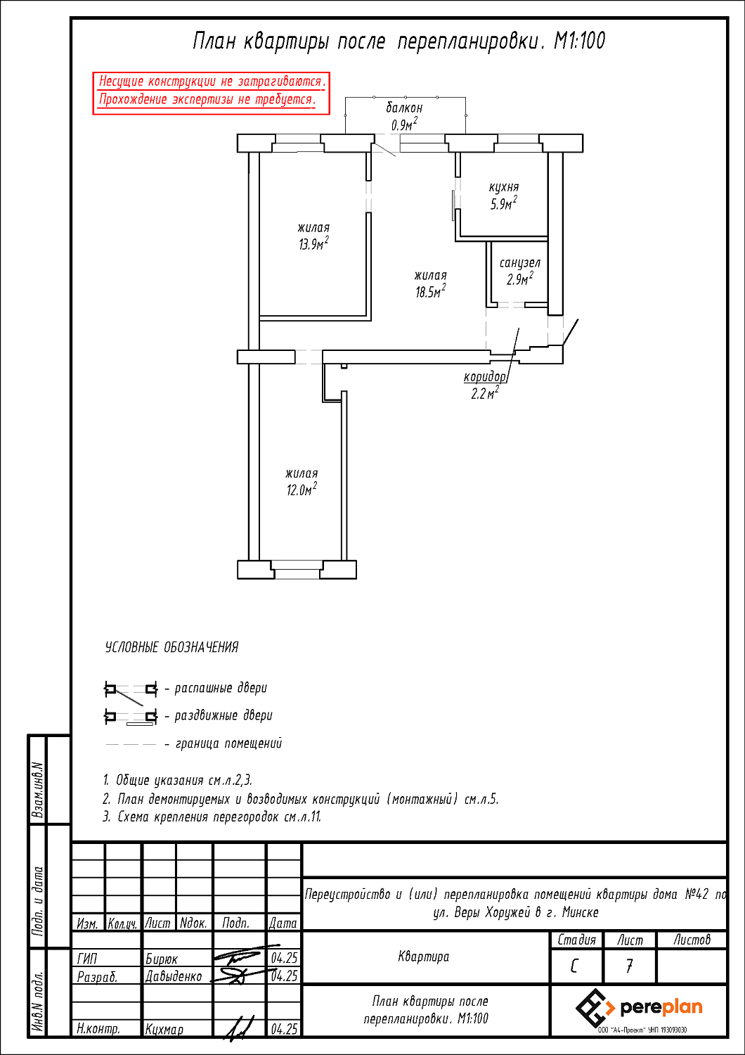
- Демонтаж перегородок между коридором, санузлом, кухней, жилой комнатой площадью 20,3 кв.м, жилой комнатой площадью 10,1 кв.м и встроенным шкафом с последующим устройством новых перегородок, образованием помещений: двух жилых комнат, кухни с новым дверным проемом, санузла и коридора;
- Демонтаж перегородок между жилой комнатой площадью 11.3 кв.м и встроенным шкафом с последующим образованием жилой комнаты;
- Замена дверного блока входной двери со сменой направления открывания;
- Замена отопительных приборов.
Нами были разработаны следующие разделы проектной документации для согласования в исполкоме:
- АС - архитектурно-строительные решения.
- ОВ - отопление и вентиляция.
