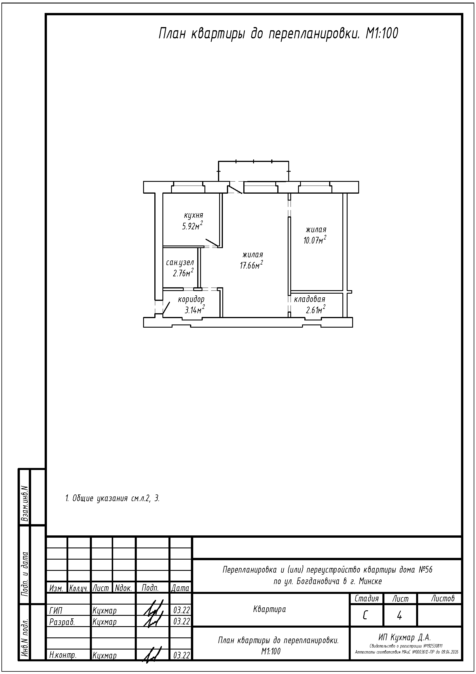
Перепланировка квартиры по ул. Максима Богдановича, 56 в г. Минске
Пожелания заказчика:
- Корректировка расположения дверного и оконного проёмов в стене между жилой 17,66 м2 и балкона в связи с ошибкой в тех. паспорте;
- Демонтаж перегородок с дверным проёмом между кухней и санузлом и жилой с последующим устройством перегородок с дверным проёмом на месте старых с сохранением размеров кухни;
- Устройство гардеробной на площади кладовой; Устройство кладовой на части площади жилой;
- Изменение площади жилых помещений;
- Увеличение площади санузла за счёт части площади жилой, но не более чем на 25%;
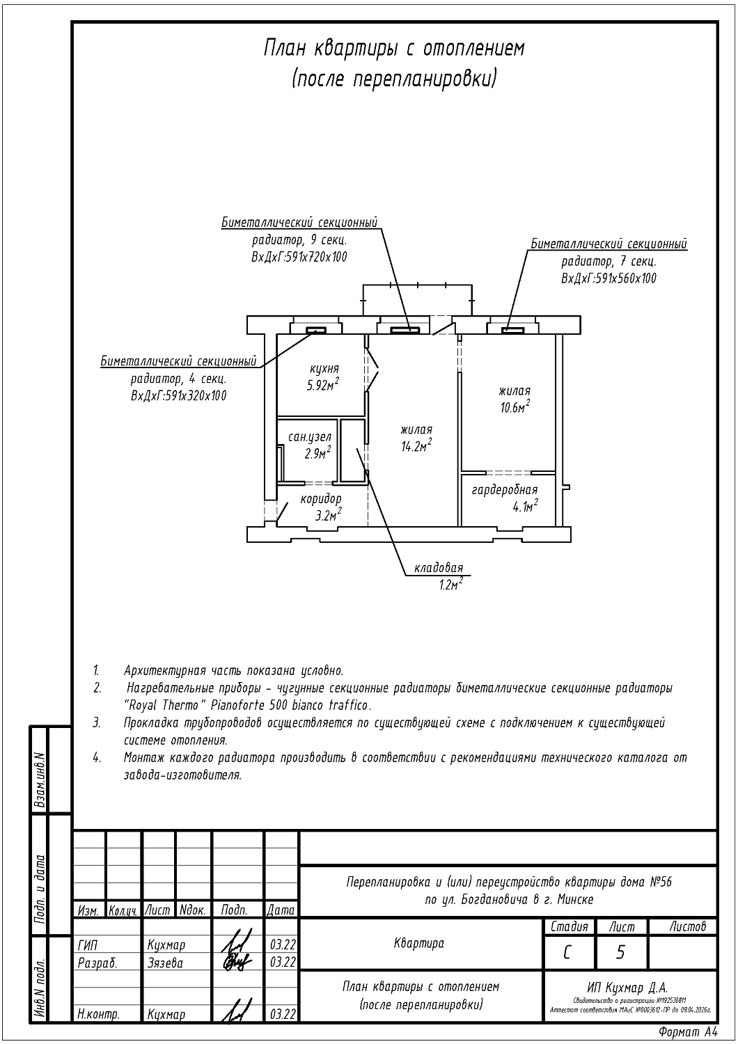
- Замена отопительных приборов.
Нами были разработаны следующие разделы проектной документации для согласования в исполкоме:
- АС - архитектурно-строительные решения;
- ОВ - отопление и вентиляция.
Дополнительно нами было выполнено:
- Разработка дизайн-проекта.
