Дизайн-проект квартиры по ул. Максима Богдановича, 56 в г. Минске. Пакет «Полный»
Состав дизайн-проекта:
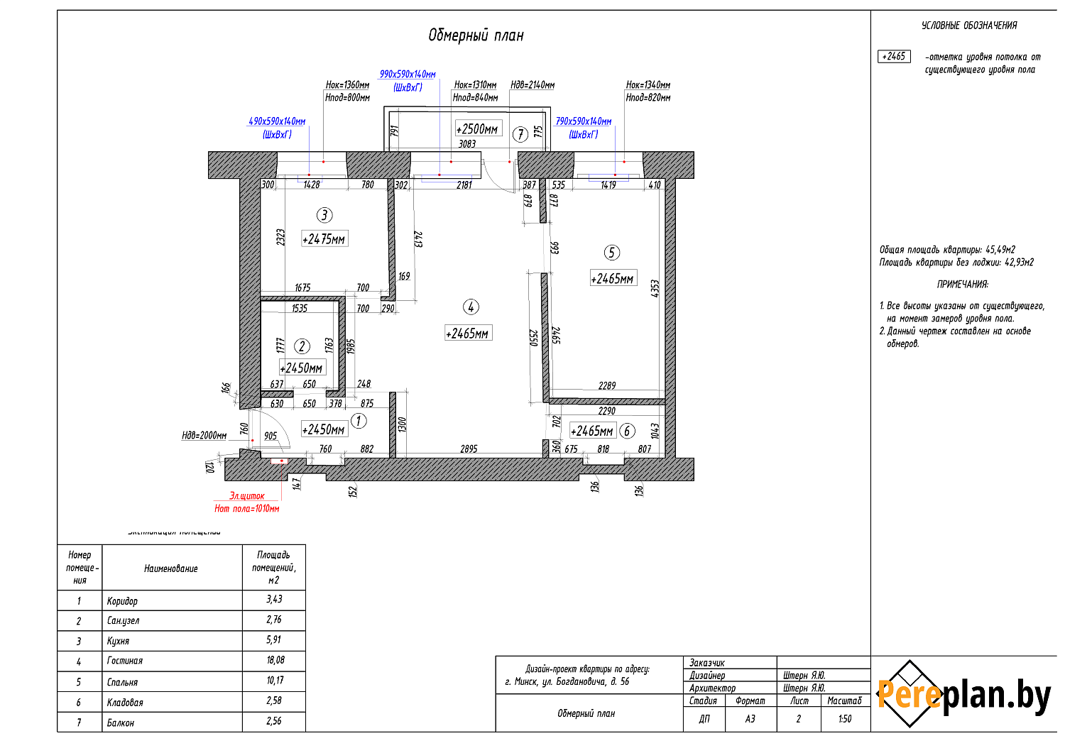
- Обмерный план.
- План расстановки мебели и сантехнического оборудования. Размеры. Вариант 1.
- План расстановки мебели и сантехнического оборудования. Размеры. Вариант 2.
- План расстановки мебели и сантехнического оборудования. Размеры. Вариант 3.
- Финальный план расстановки мебели и сантехнического оборудования. Размеры.
- План демонтажа конструкций.
- План монтажа конструкций.
- План привязки светильников.
- План включения светильников.
- План расположения розеток и выключателей относительно мебели.
- Спецификация электрооборудования.
- План теплых полов.
- План привязок сантехнического оборудования. Развертки.
- 3D визуализация.
Дополнительно нами было выполнено:
- Разработка проектной документации;
- Согласование перепланировки.
