Перепланировка квартиры по ул. Красная, 22 в г. Минске
Пожелания заказчика:
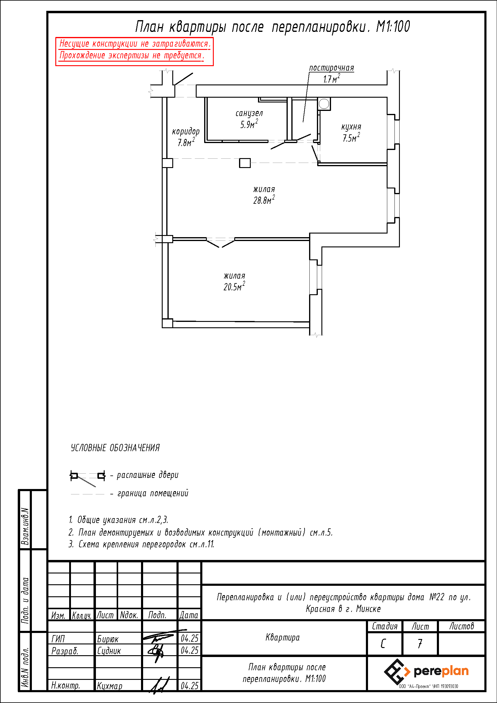
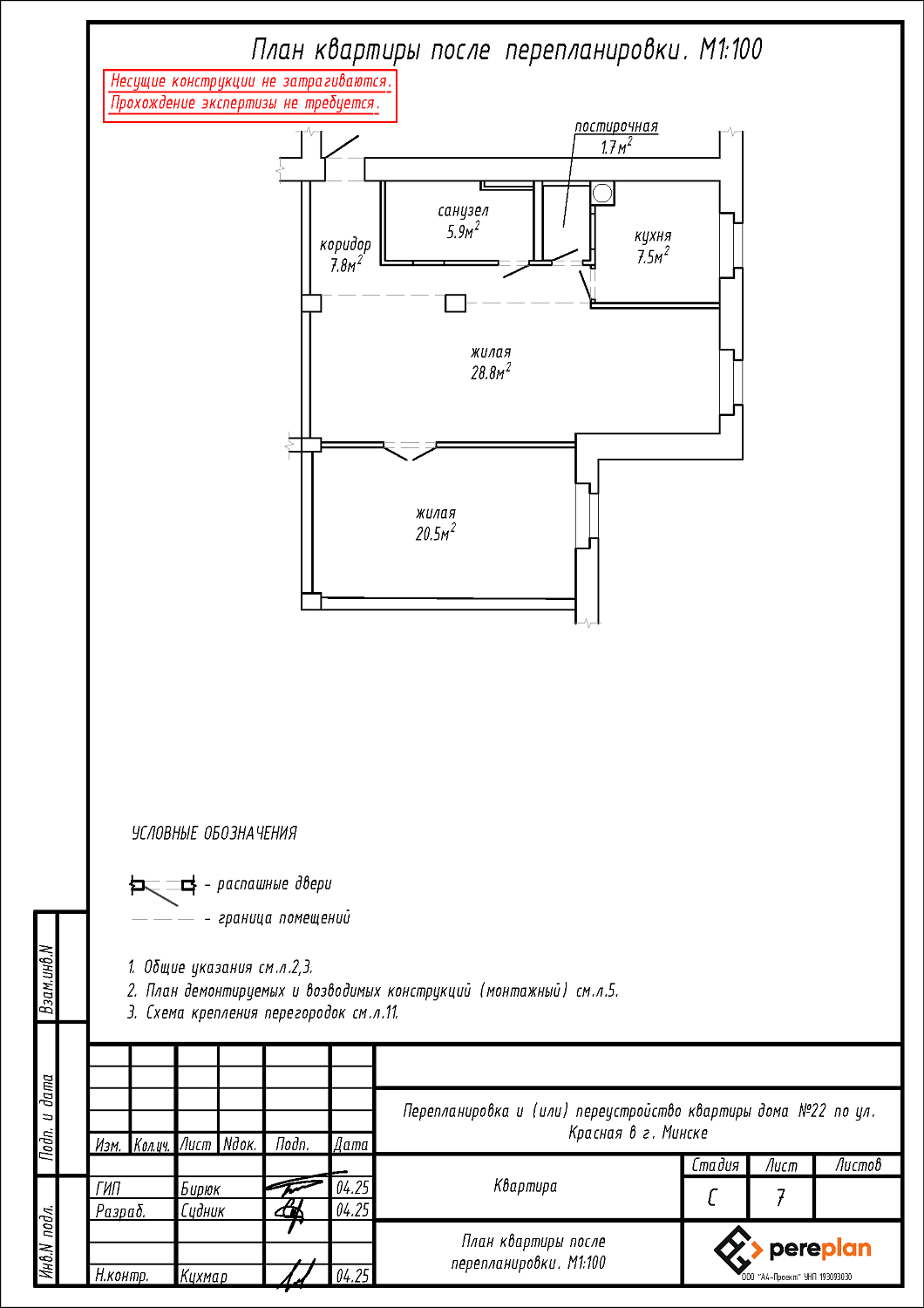
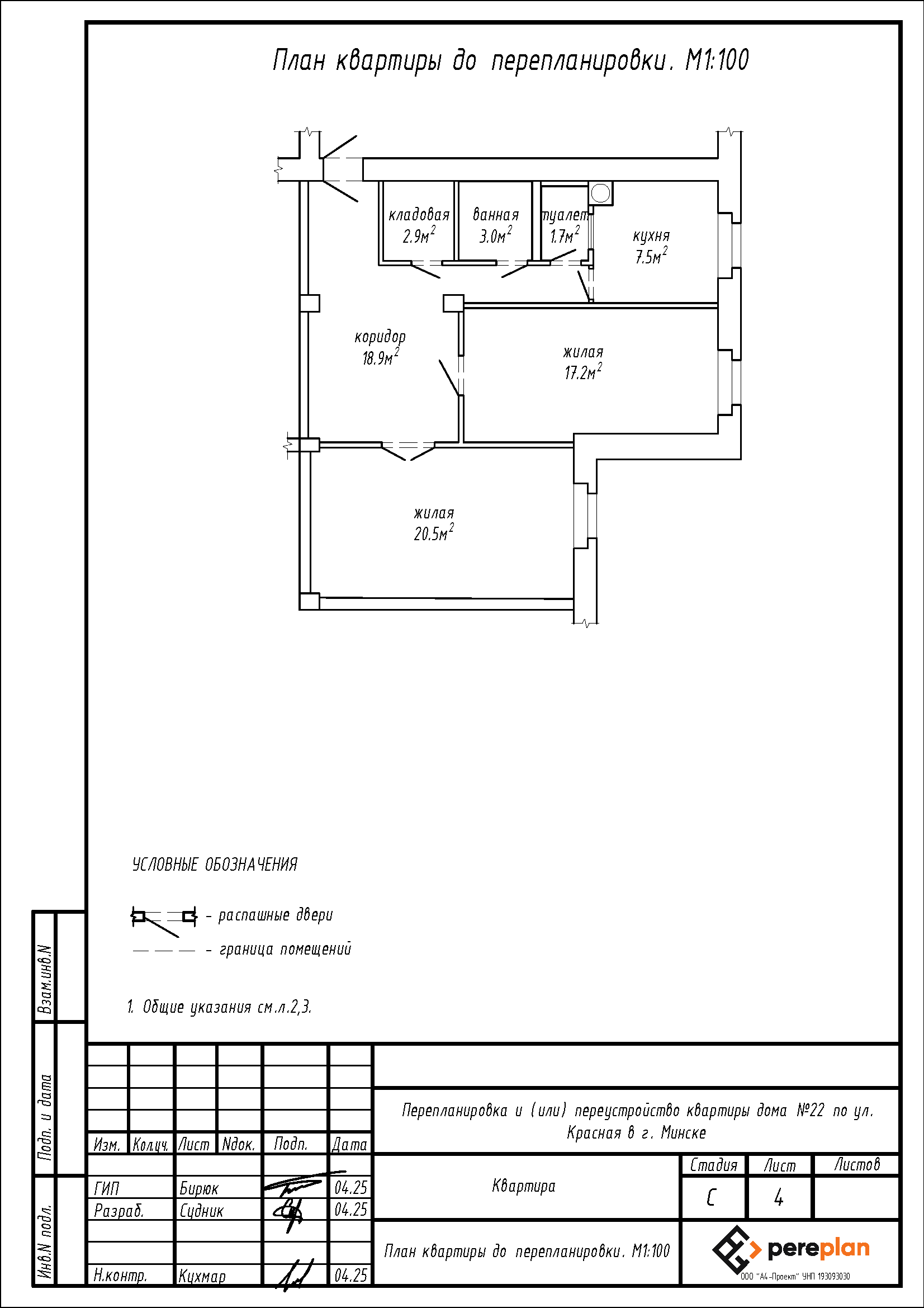
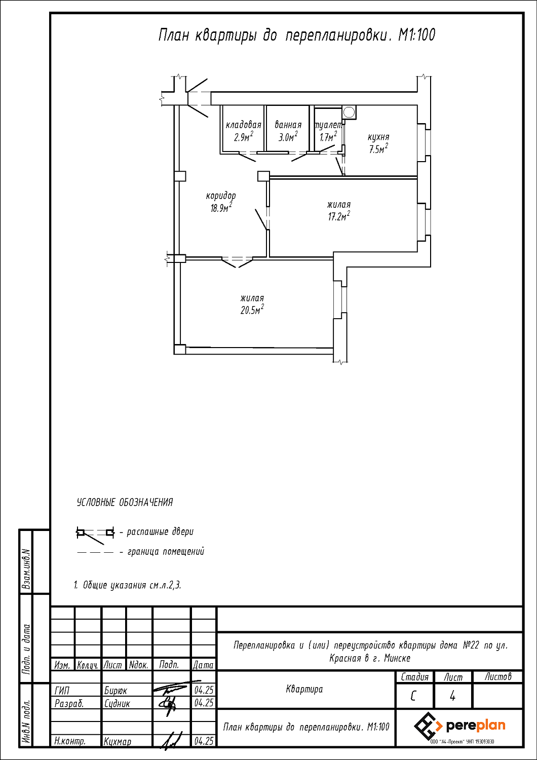
- Демонтаж перегородки между кладовой и ванной с последующей закладкой дверного проёма на части площади кладовой с целью образования санузла;
- Демонтаж перегородок жилой комнаты 17.2 м2;
- Устройство зашивок ГКЛ на площади ванны;
- Закладка оконного блока в перегородке между туалетом и кухней;
- Изменение назначения помещения туалета в постирочную;
- Демонтаж дополнительного дверного блока входной двери.
Нами были разработаны следующие разделы проектной документации для согласования в исполкоме:
- АС - архитектурно-строительные решения.
