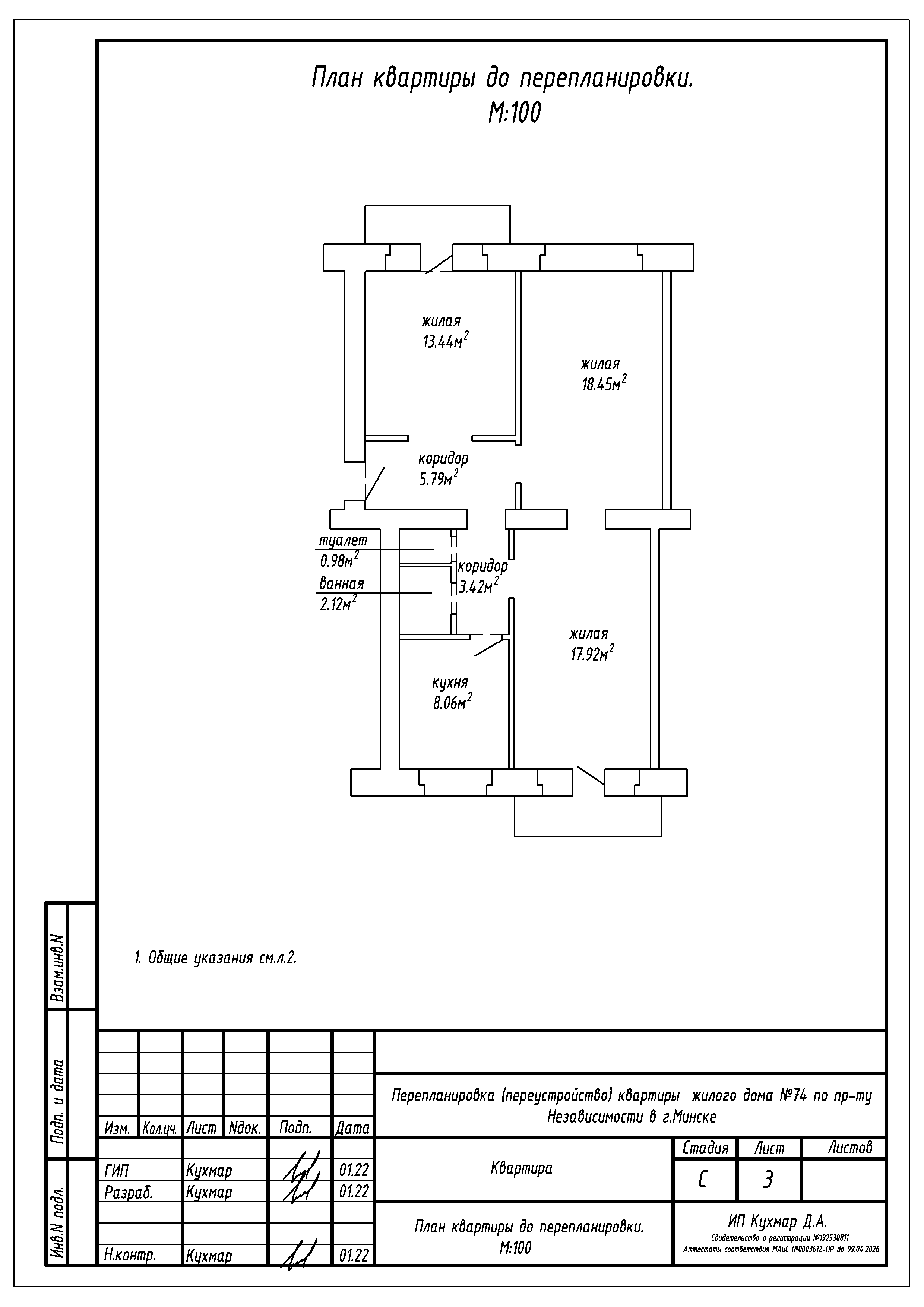
Перепланировка квартиры по пр-ту Независимости, 47 г. Минске
Пожелания заказчика:
- Демонтаж перегородок с дверными проемами между туалетом и ванной и коридором с последующим устройством перегородок с дверным проемом на части площади коридора и туалета с целью устройства объединенного сан.узла;
- Замена дверного блока входной двери со сменой направления открывания;
- Закладка дверного проема в стене между жилой 18.45 м2 и жилой 17.92 м2;
- Выравнивание перегородок гипсокартоном в жилой 13.44 м2, коридоре, коридоре и кухне.
Нами были разработаны следующие разделы проектной документации для согласования в исполкоме:
- АС - архитектурно-строительные решения.
