Перепланировка квартиры по ул. Розы Люксембург, 151 в ЖК «Матвеевский»
Пожелания заказчика:
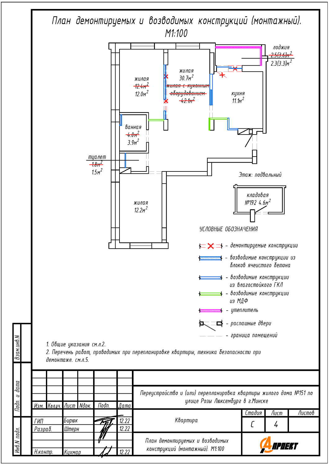
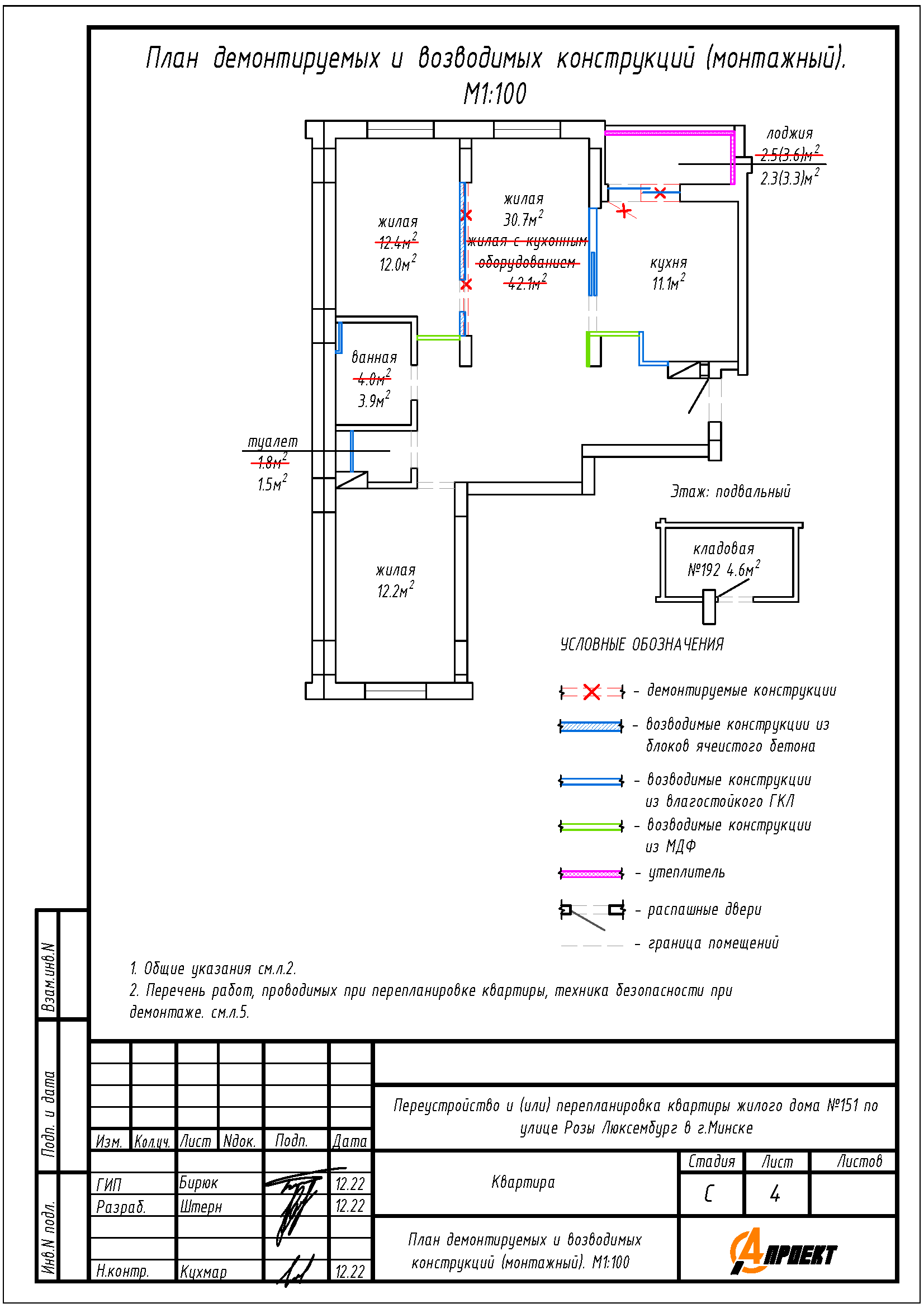
- Демонтаж подоконной части стены между жилой с кухонным оборудованием и лоджией с установкой дверного блока;
- Демонтаж перегородки между жилой комнатой и жилой с кухонным оборудованием;
- Устройство перегородки с дверным проёмом в жилой комнате, перегородки между жилой комнатой и жилой с кухонным оборудованием с целью устройства жилой комнаты на части площади жилой комнаты;
- Устройство перегородок с дверными проёмами в жилой с кухонным оборудованием с целью устройства кухни и двух жилых;
Нами были разработаны следующие разделы проектной документации для согласования в исполкоме:
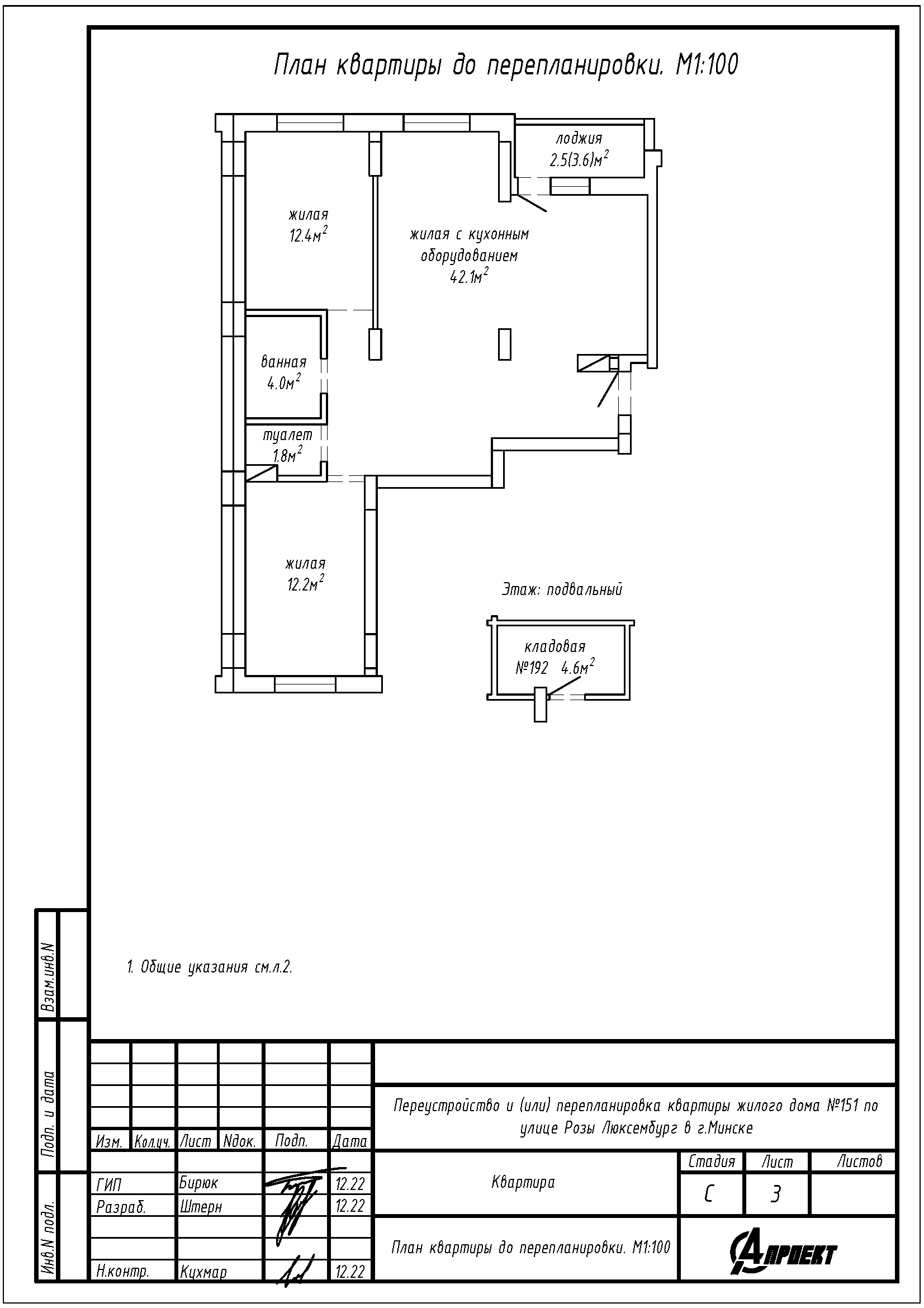
- АС - архитектурно-строительные решения;
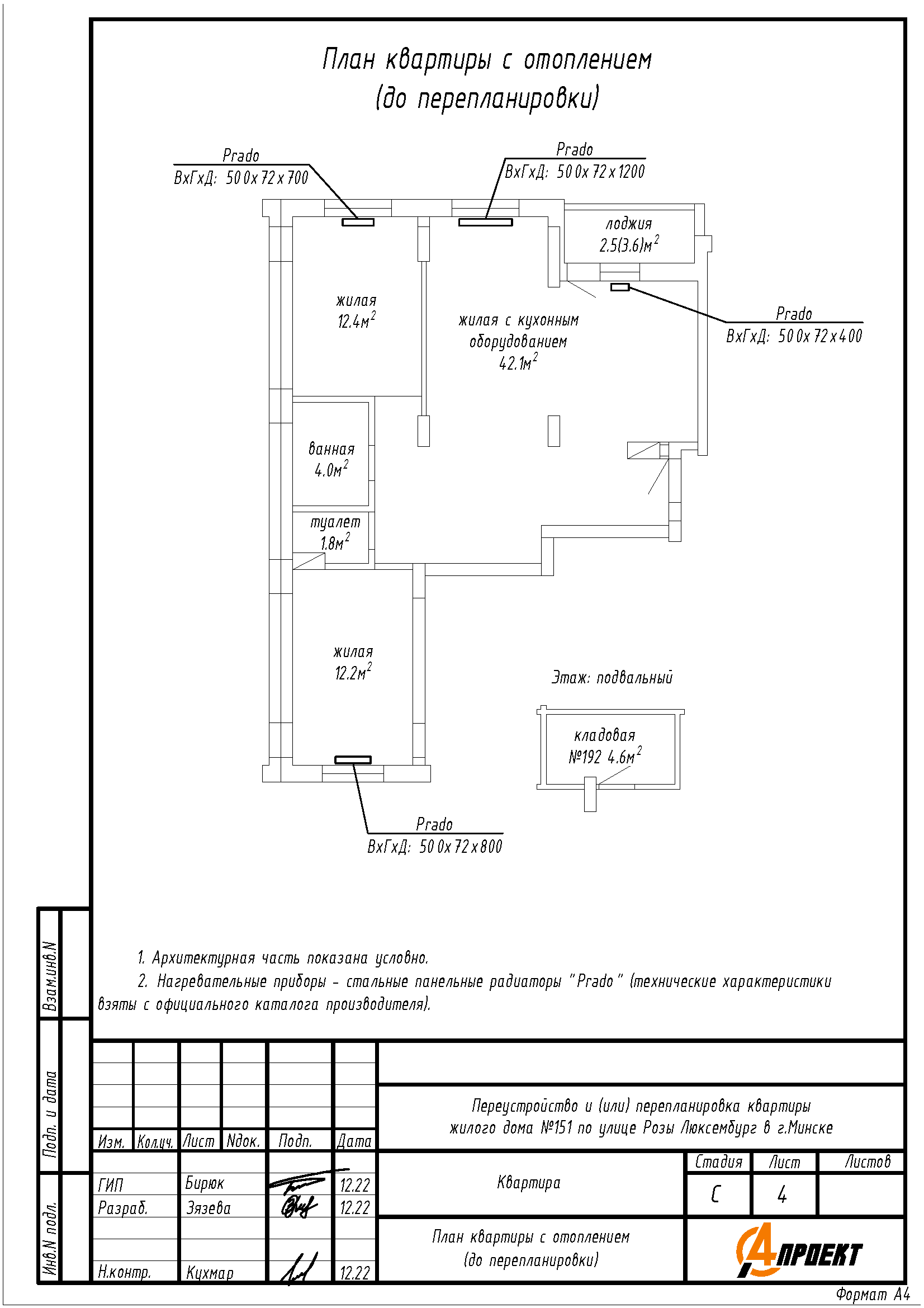
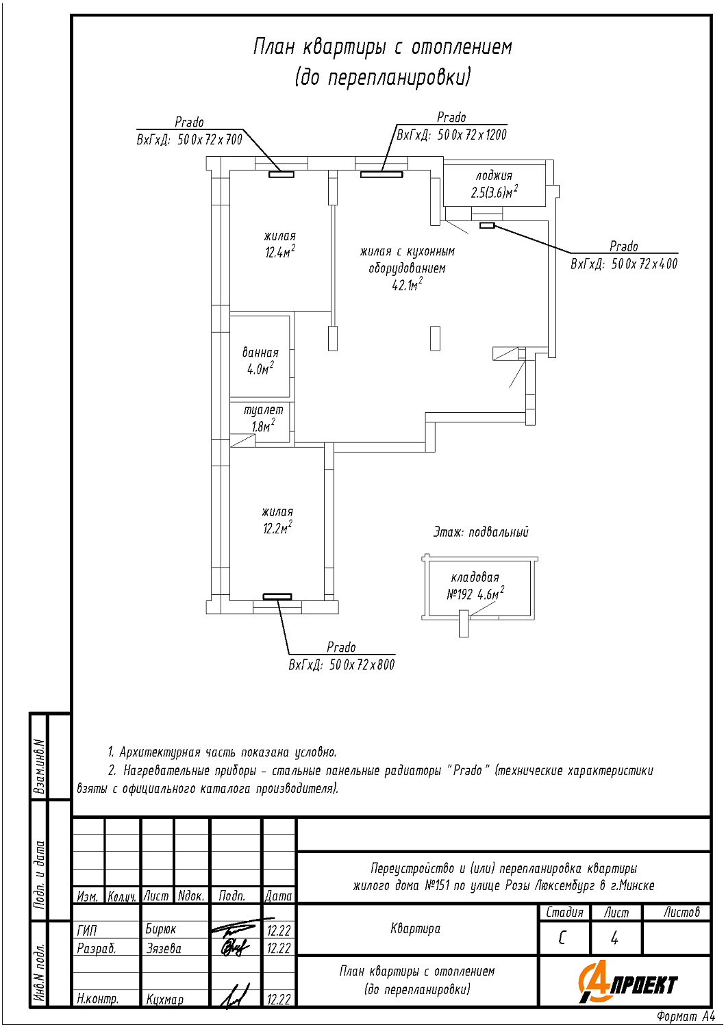
- ОВ - отопление и вентиляция.
