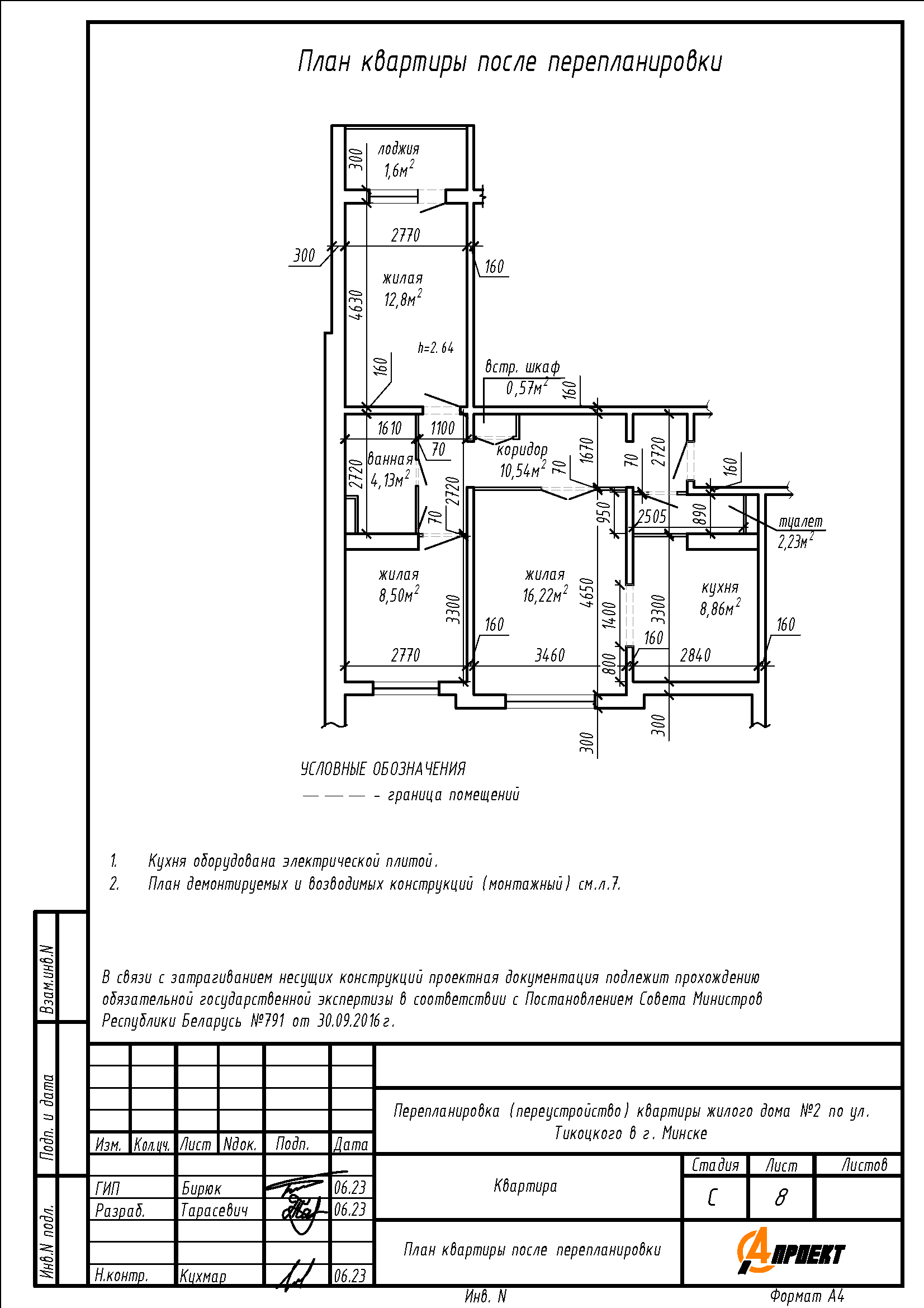
Перепланировка квартиры по ул. Тикоцкого, 2 в г. Минске
Пожелания заказчика:
- Пробивка проёма в несущей стене между жилой и кухней;
- Объединение ванной и туалета в единый санузел;
- Закладка дверного проёма между кухней и коридором, с целью устройства туалета на площади кладовой;
- Замена отопительного прибора.
Нами были разработаны следующие разделы проектной документации для согласования в исполкоме:
- АС - архитектурно-строительные решения;
- ОВ - отопление и вентиляция.
