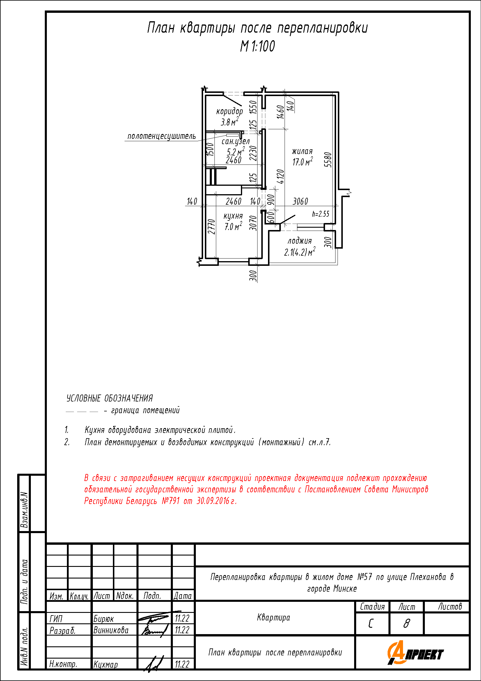
Перепланировка квартиры по улице Плеханова, 57 в г. Минске
Пожелания заказчика:
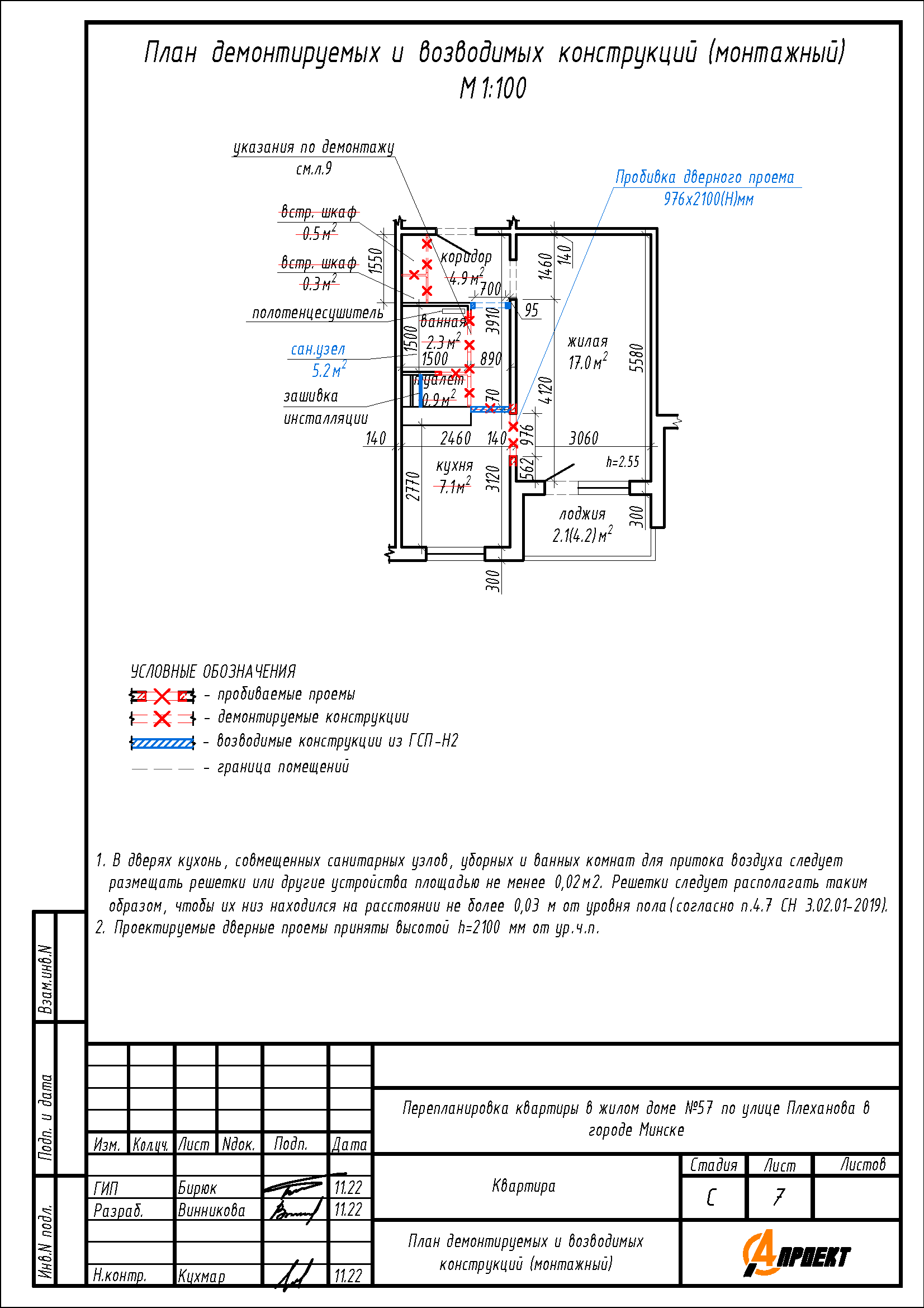
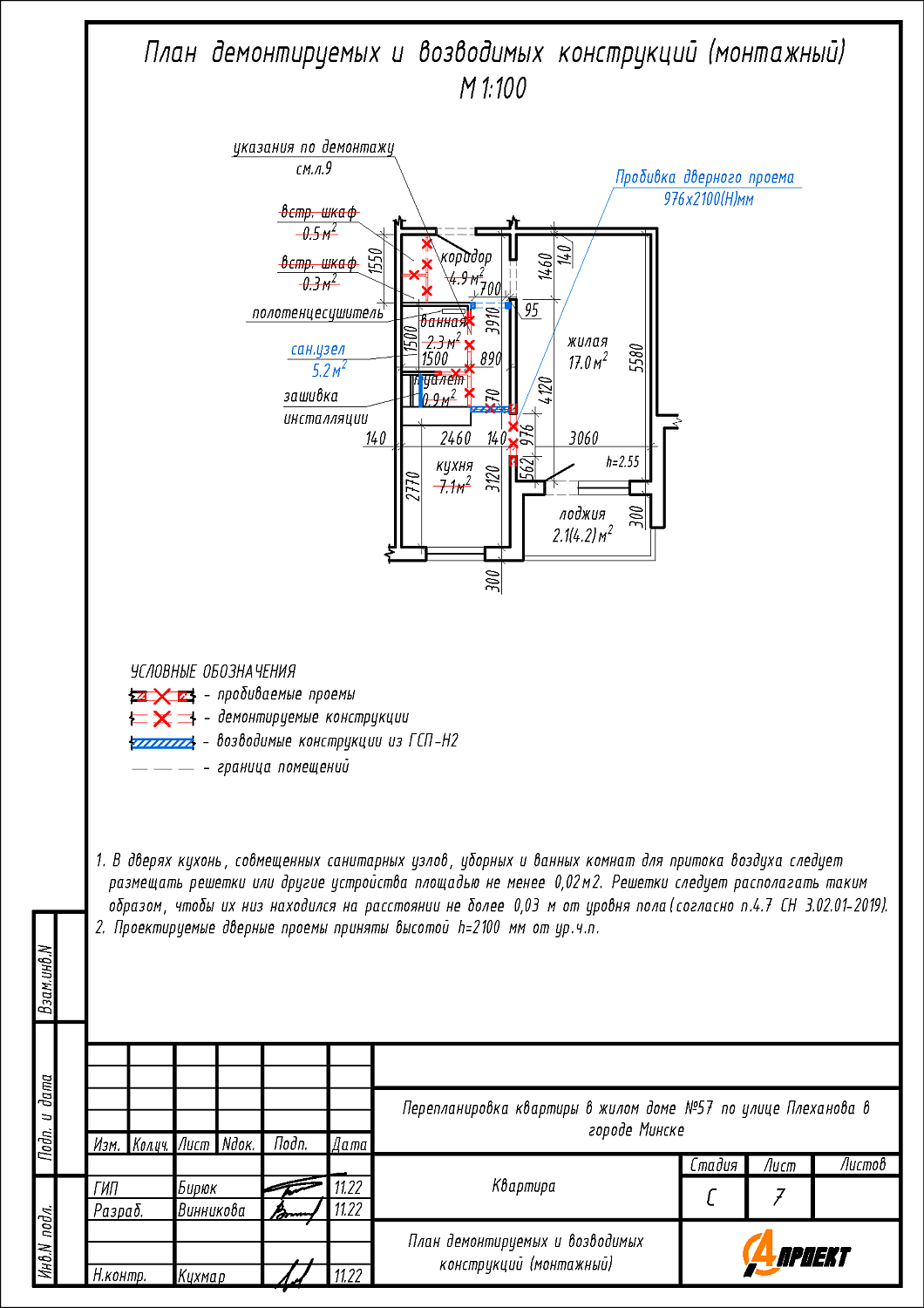
- Устройство проёма с дверным блоком в несущей стене из кухни в жилую комнату;
- Демонтаж встроенных шкафов на части площади коридора;
- Устройство санузла на площади существующей ванной, туалета и части площади коридора;
- Закладка существующего дверного проёма из кухни в коридор;
- Устройство зашивки инсталляции унитаза на части площади санузла.
Нами были разработаны следующие разделы проектной документации для согласования в исполкоме:
- АС - архитектурно-строительные решения.
