Перепланировка квартиры по ул. Якубова, 24 в г. Минске
Пожелания заказчика:
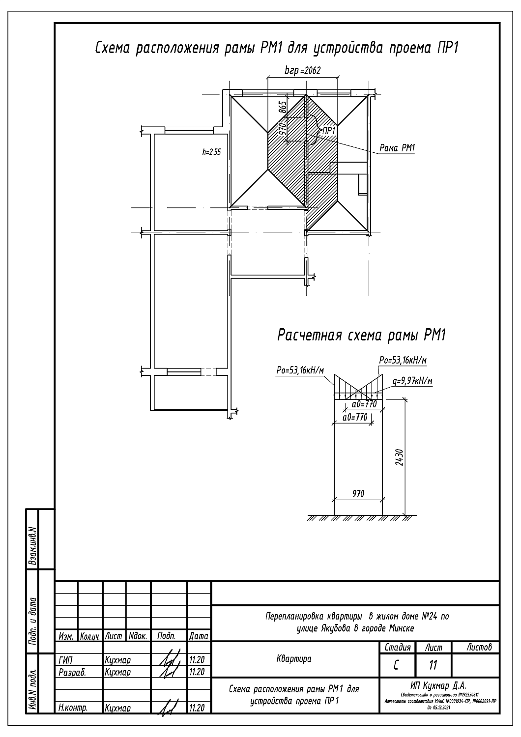
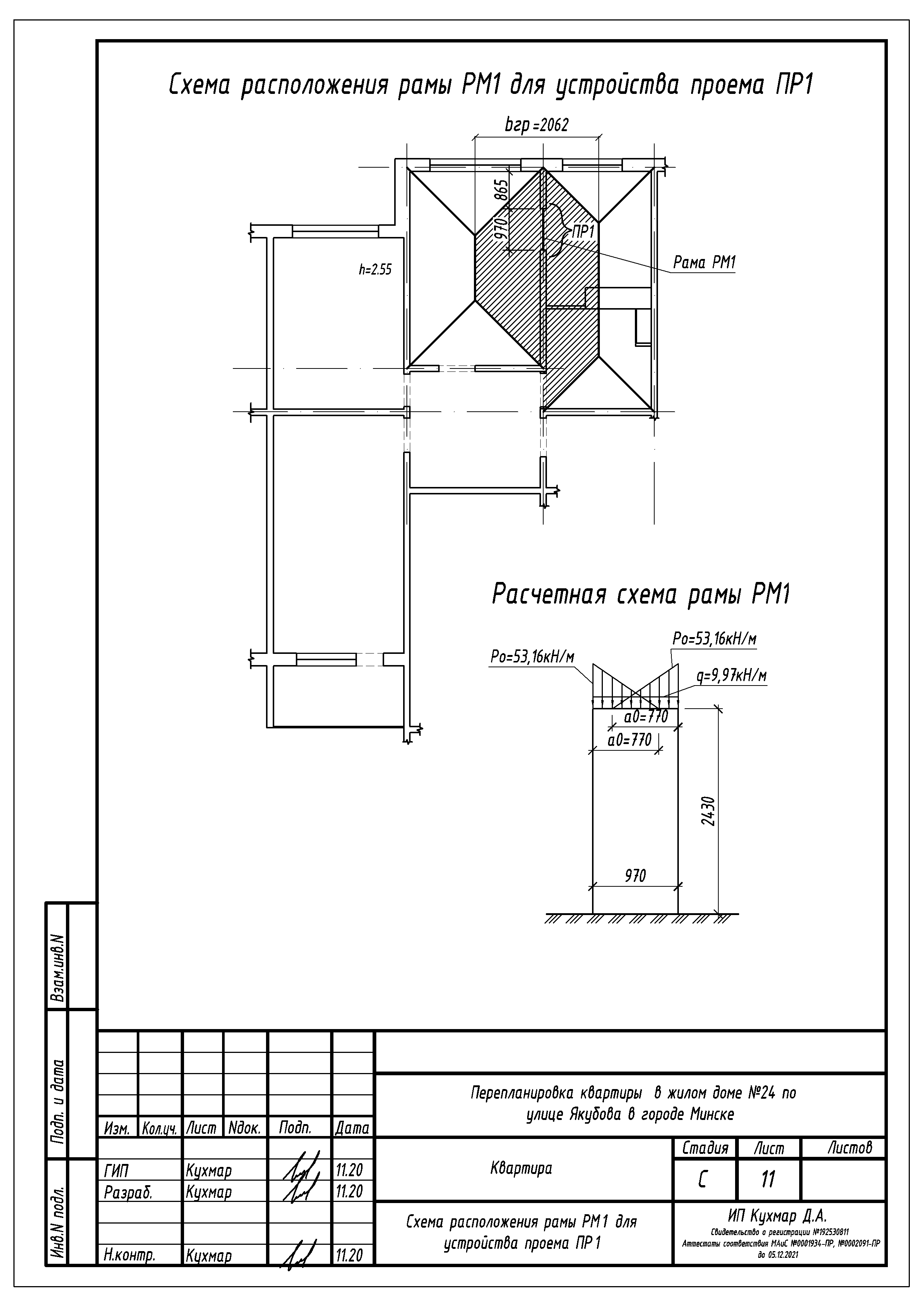
- Устройство дверного проёма в несущей стене между кухней и жилой;
- Объединение ванной и туалета в единый санузел;
- Демонтаж встроенных шкафов;
- Сужение дверного проёма между коридором и санузлом.
Нами были разработаны следующие разделы проектной документации для согласования в исполкоме:
- АС - архитектурно-строительные решения.
