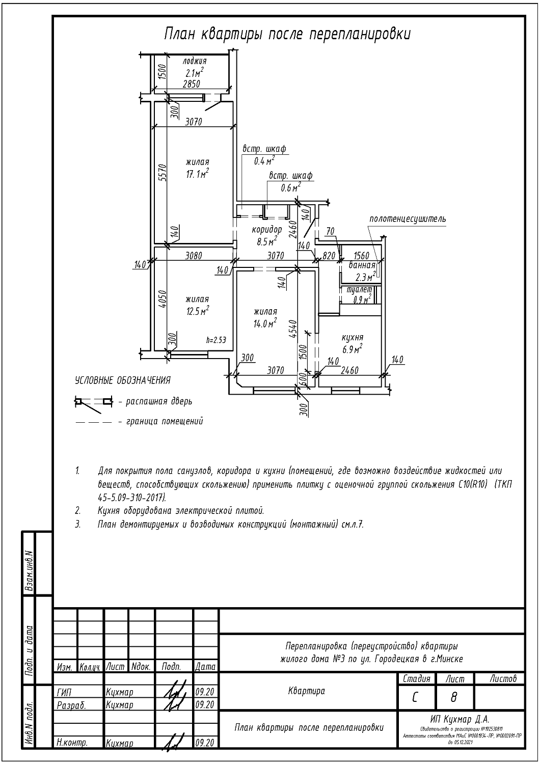
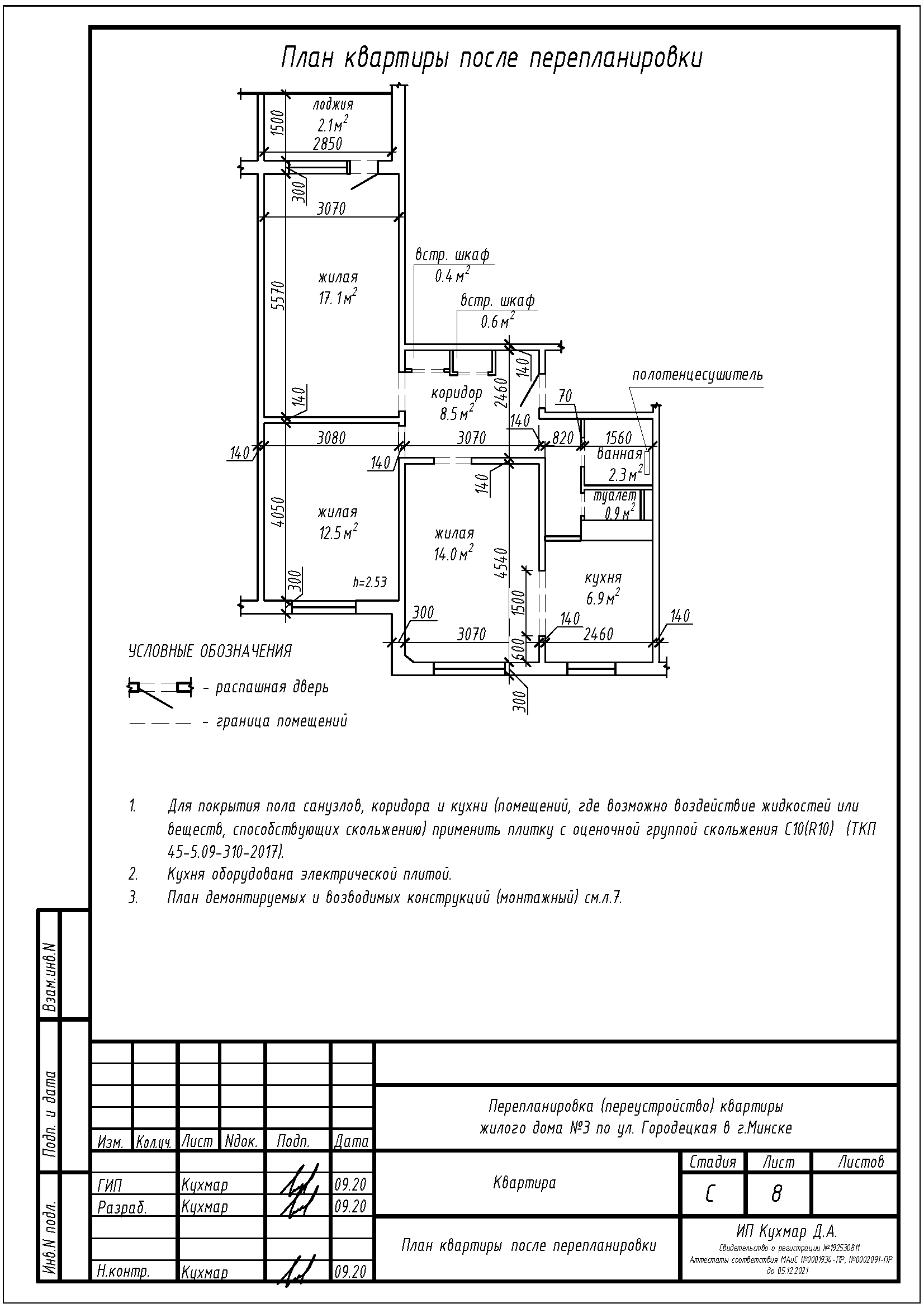
Перепланировка квартиры по ул. Городецкая, 3 в г. Минске
Пожелания заказчика:
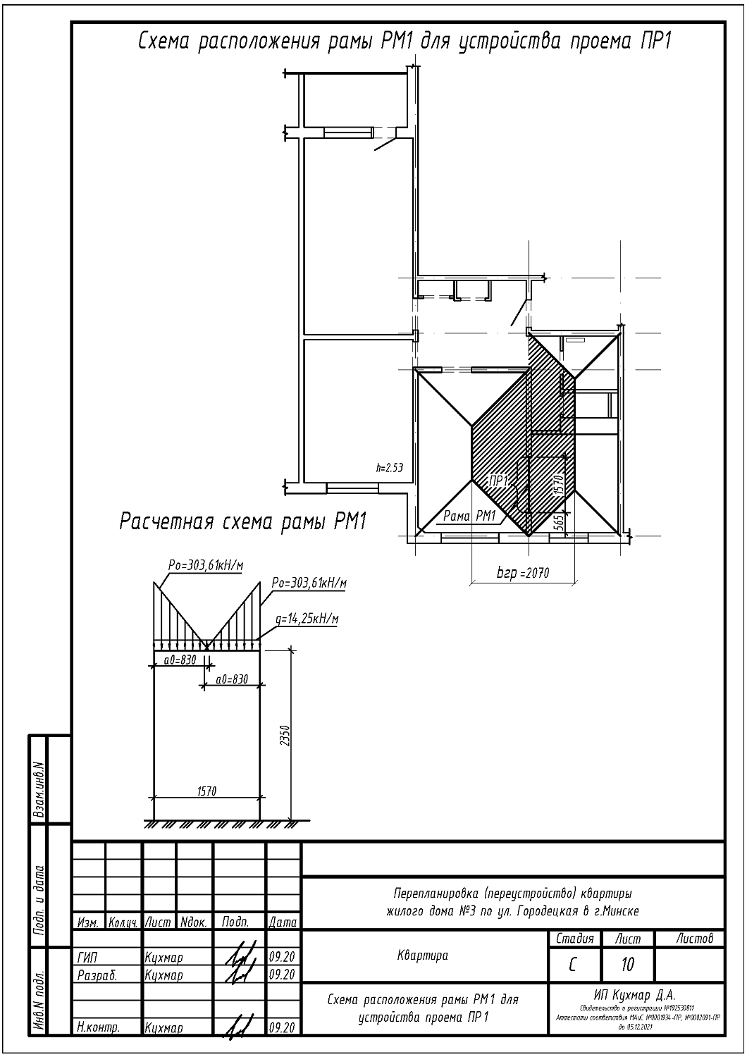
- Устройство дверного проёма в несущей стене между жилой и кухней;
- Возведение перегородки на части площади кухни.
Нами были разработаны следующие разделы проектной документации для согласования в исполкоме:
- АС - архитектурно-строительные решения.
