Перепланировка квартиры по ул. Братьев Райт, 14 в ЖК «Новая Боровая»
Пожелания заказчика:
- Объединение ванной и туалета в единый санузел, увеличение санузла за счёт площади коридора;
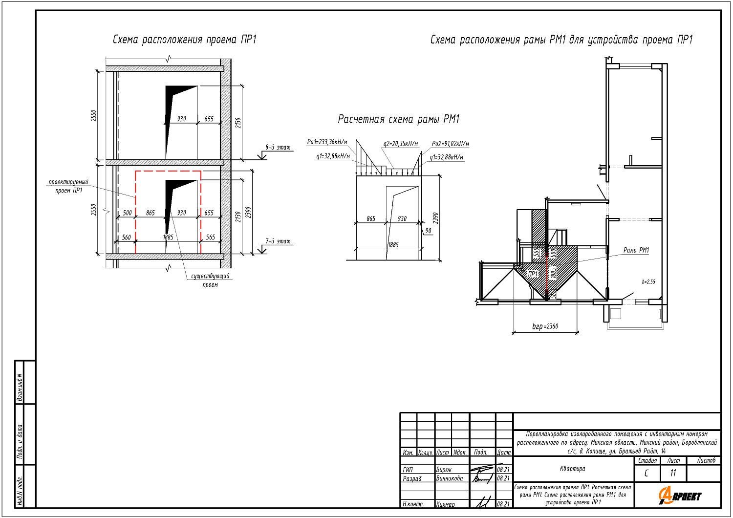
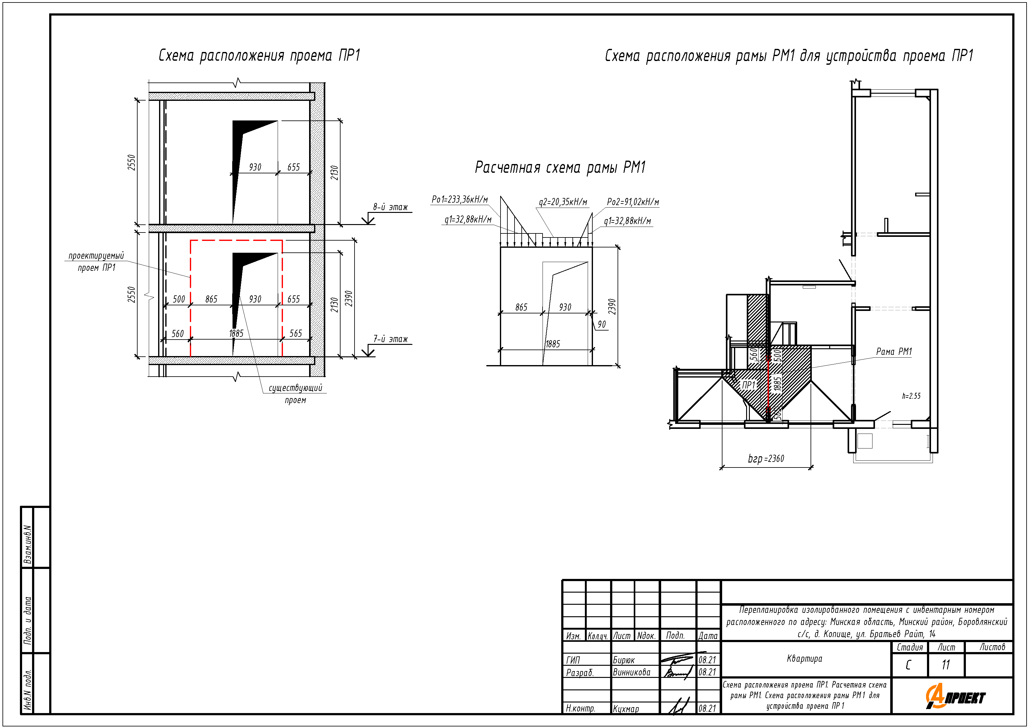
- Увеличение дверного проёма в несущей стене между кухней и кладовой;
- Устройство нового помещения на площади кладовой;
- Закладка дверного проёма между кухней и коридором;
- Сужение дверного проёма между санузлом и прихожей;
- Сужение дверного проёма между жилой и кухней и между коридором и жилой;
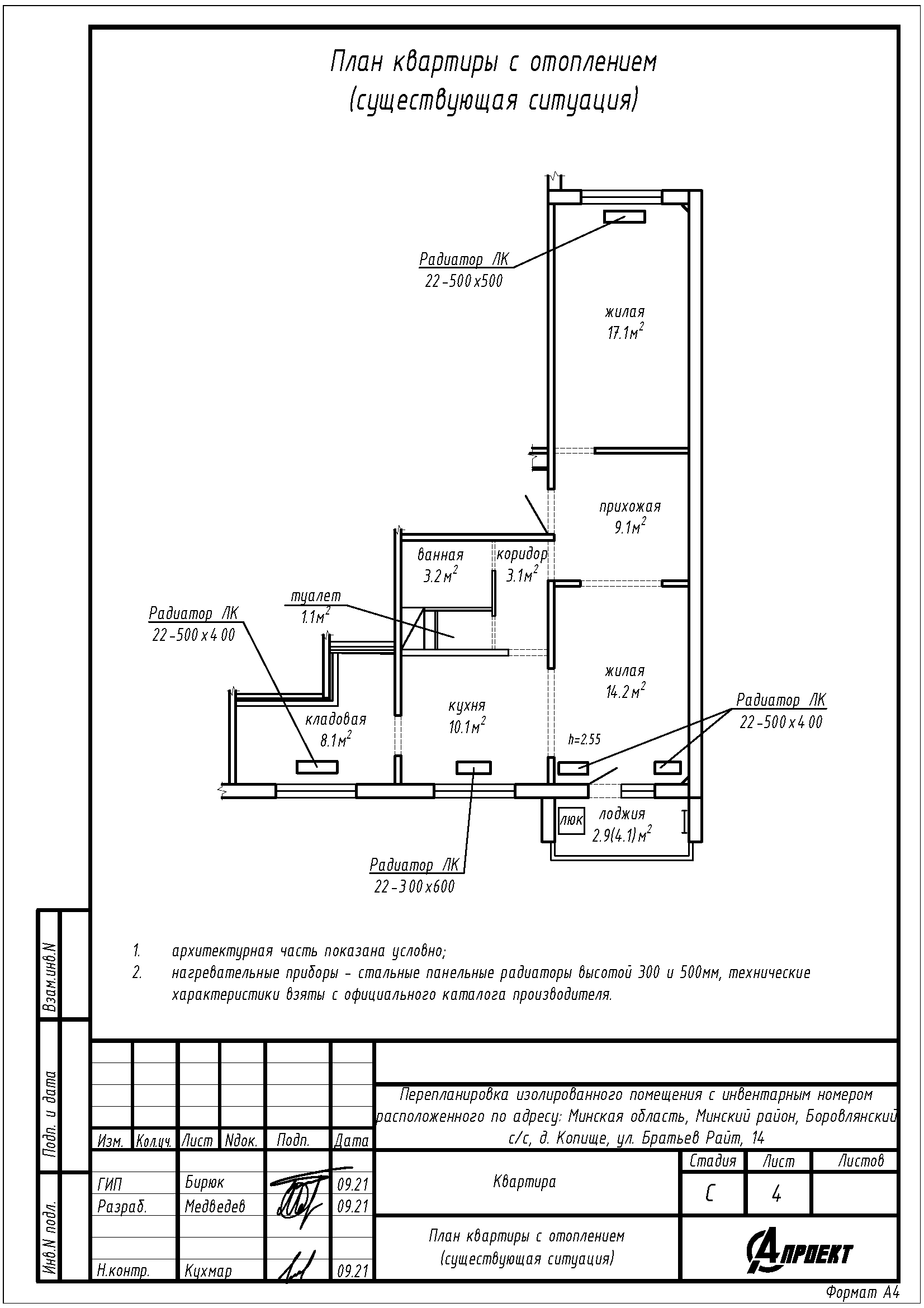
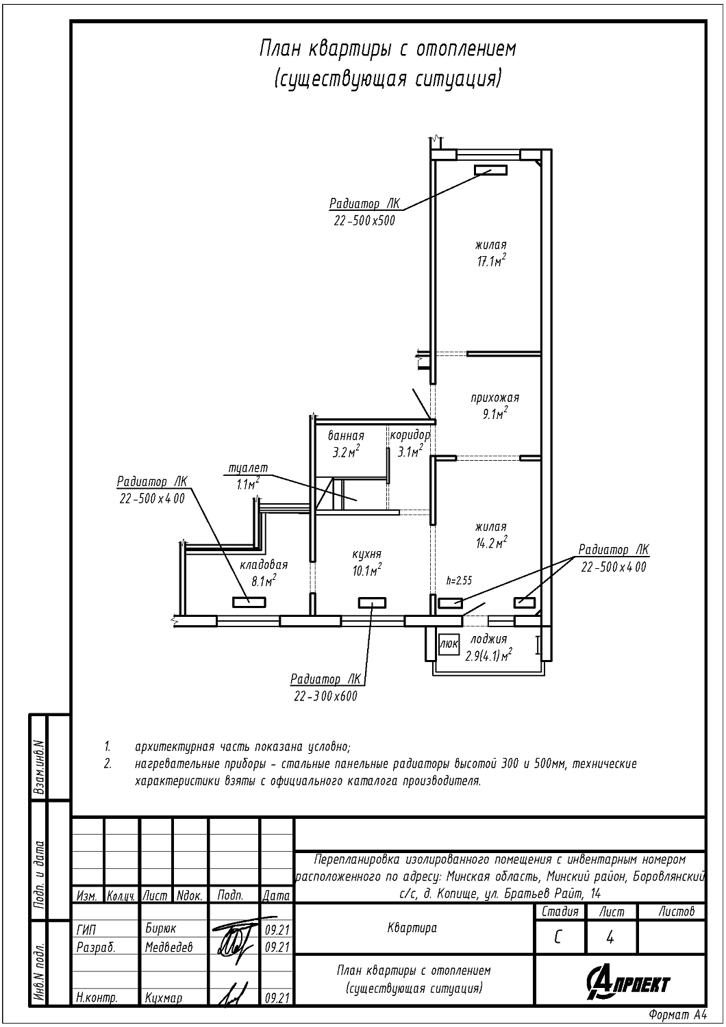
- Замена и перенос отопительных приборов.
Нами были разработаны следующие разделы проектной документации для согласования в исполкоме:
- АС - архитектурно-строительные решения;
- ОВ - отопление и вентиляция.
