Перепланировка квартиры по проспекту Рокоссовского 136 в г. Минске
Пожелания заказчика:
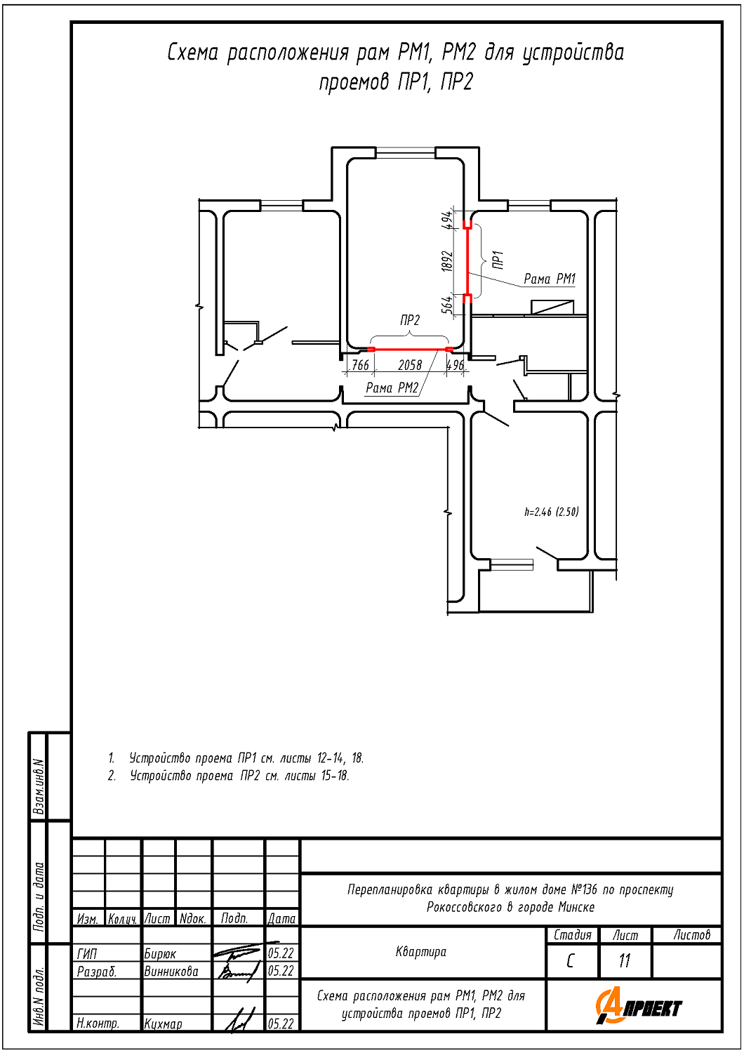
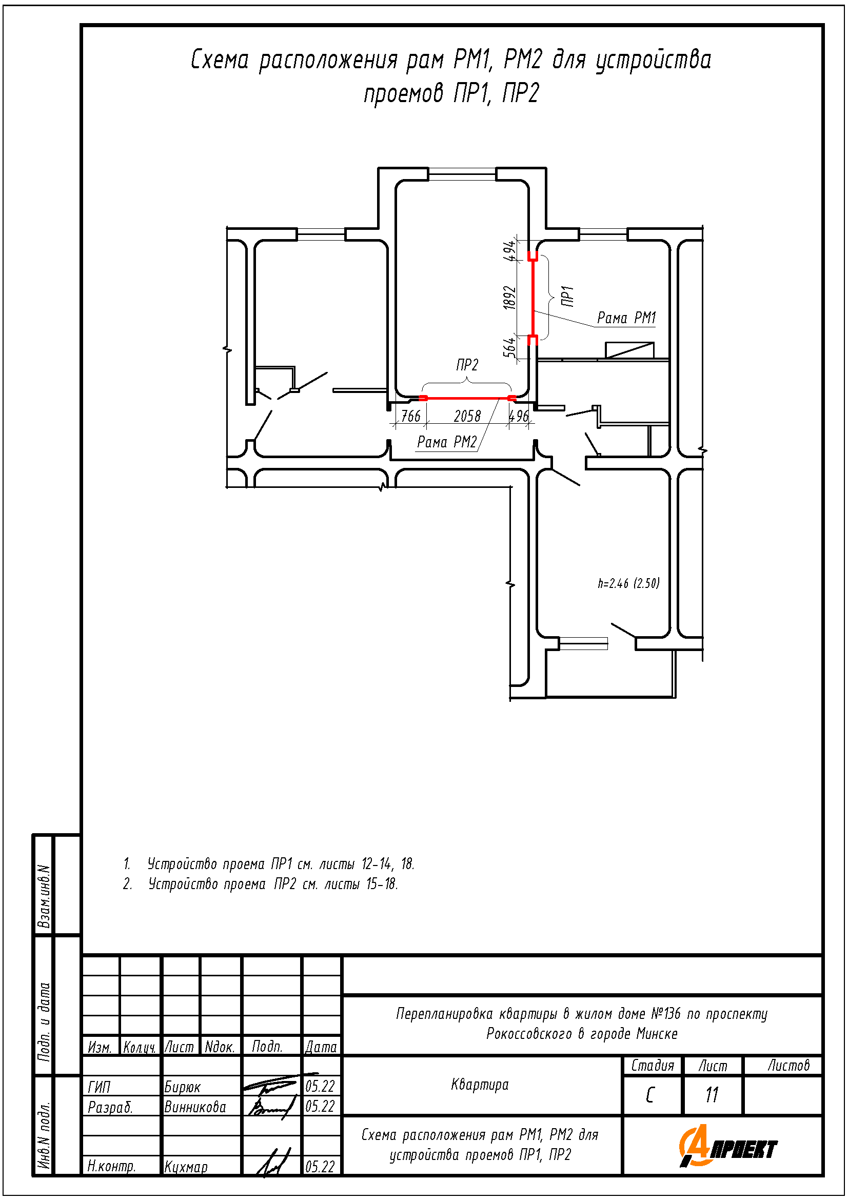
- Устройство проёма с дверным блоком в несущей стене из кухни в жилую комнату;
- Увеличение ширины дверного проёма в несущей стене между жилой комнатой и коридором;
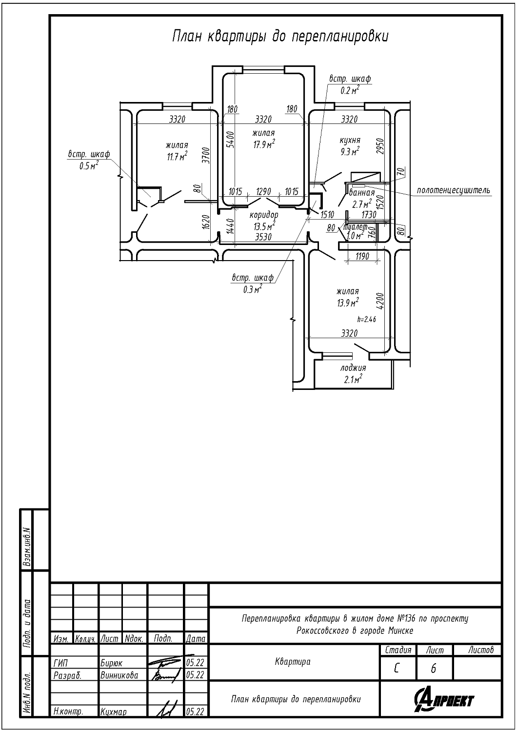
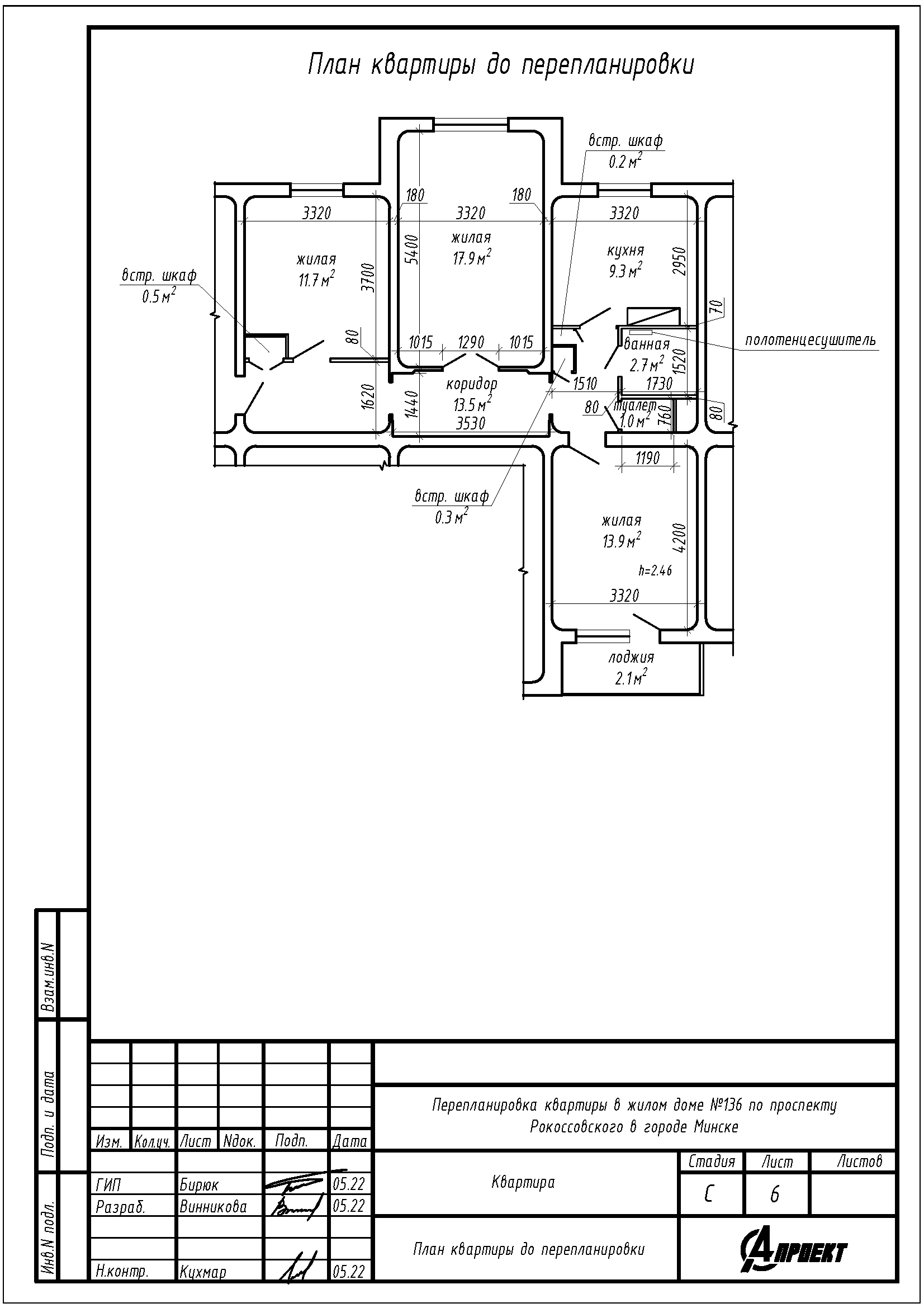
- Устройство санузла на площади существующей ванной комнаты, части площади коридора и площади встроенных шкафов;
- Закладка дверного проёма из существующего коридора в кухню.
Нами были разработаны следующие разделы проектной документации для согласования в исполкоме:
- АС - архитектурно-строительные решения.
