Перепланировка квартиры по ул. Каменногорская, 88 в г. Минске
Пожелания заказчика:
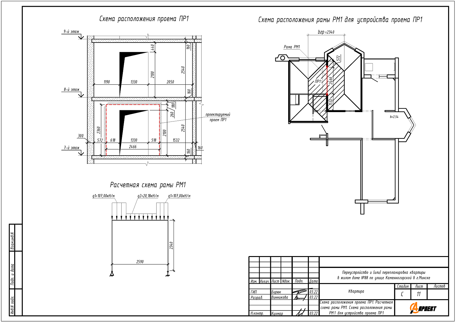
- Устройство дверного проёма в несущей стене между жилой и кухней;
- Закладка дверного проёма между кухней и коридором;
- Увеличение ванной за счёт площади туалета;
- Устройство туалета на площади коридора.
Нами были разработаны следующие разделы проектной документации для согласования в исполкоме:
- АС - архитектурно-строительные решения.
