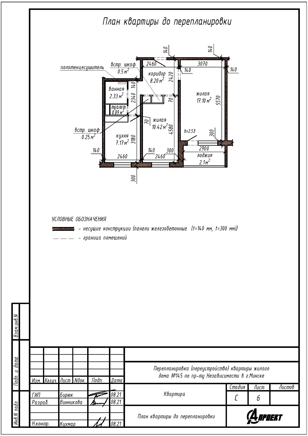
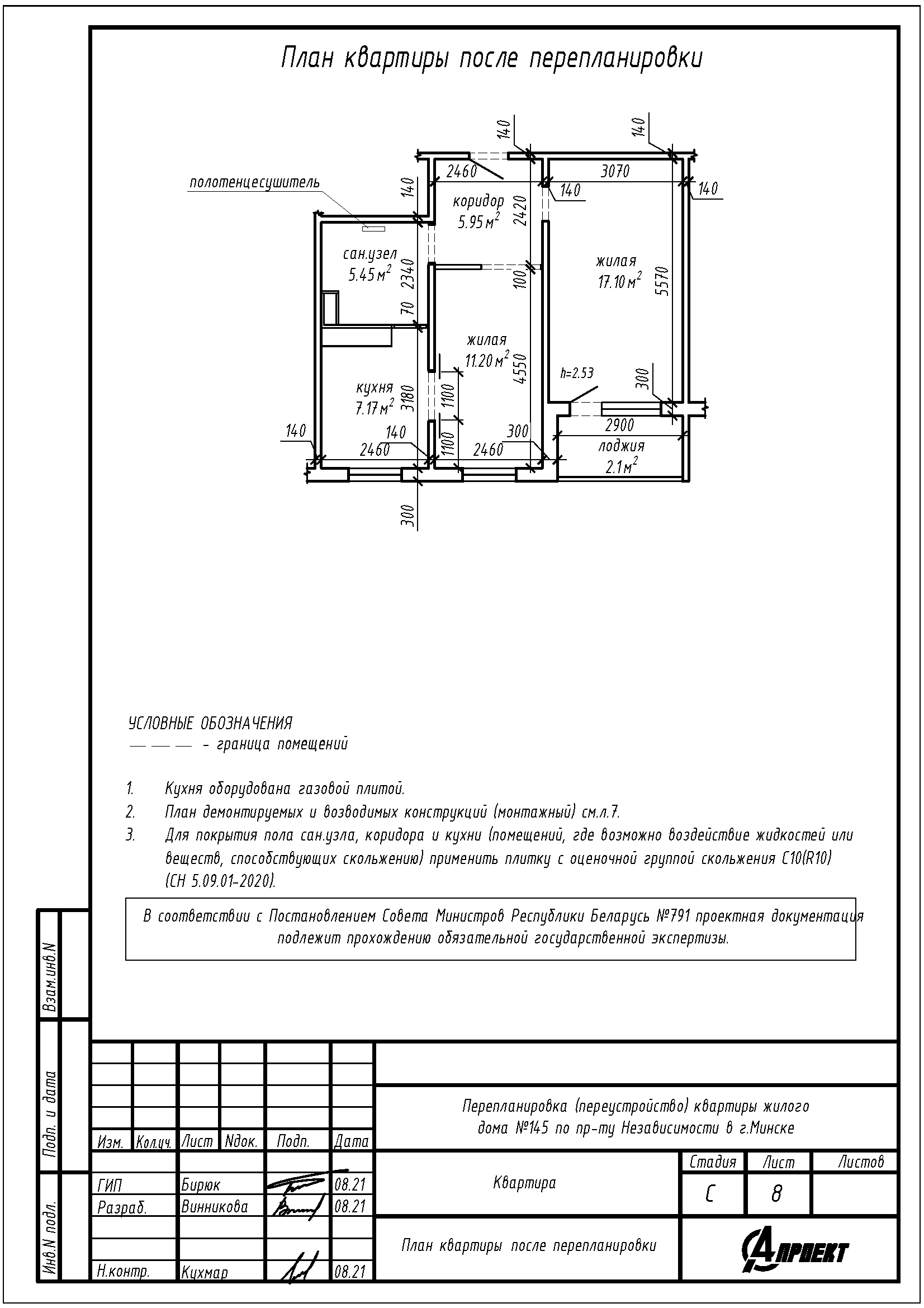
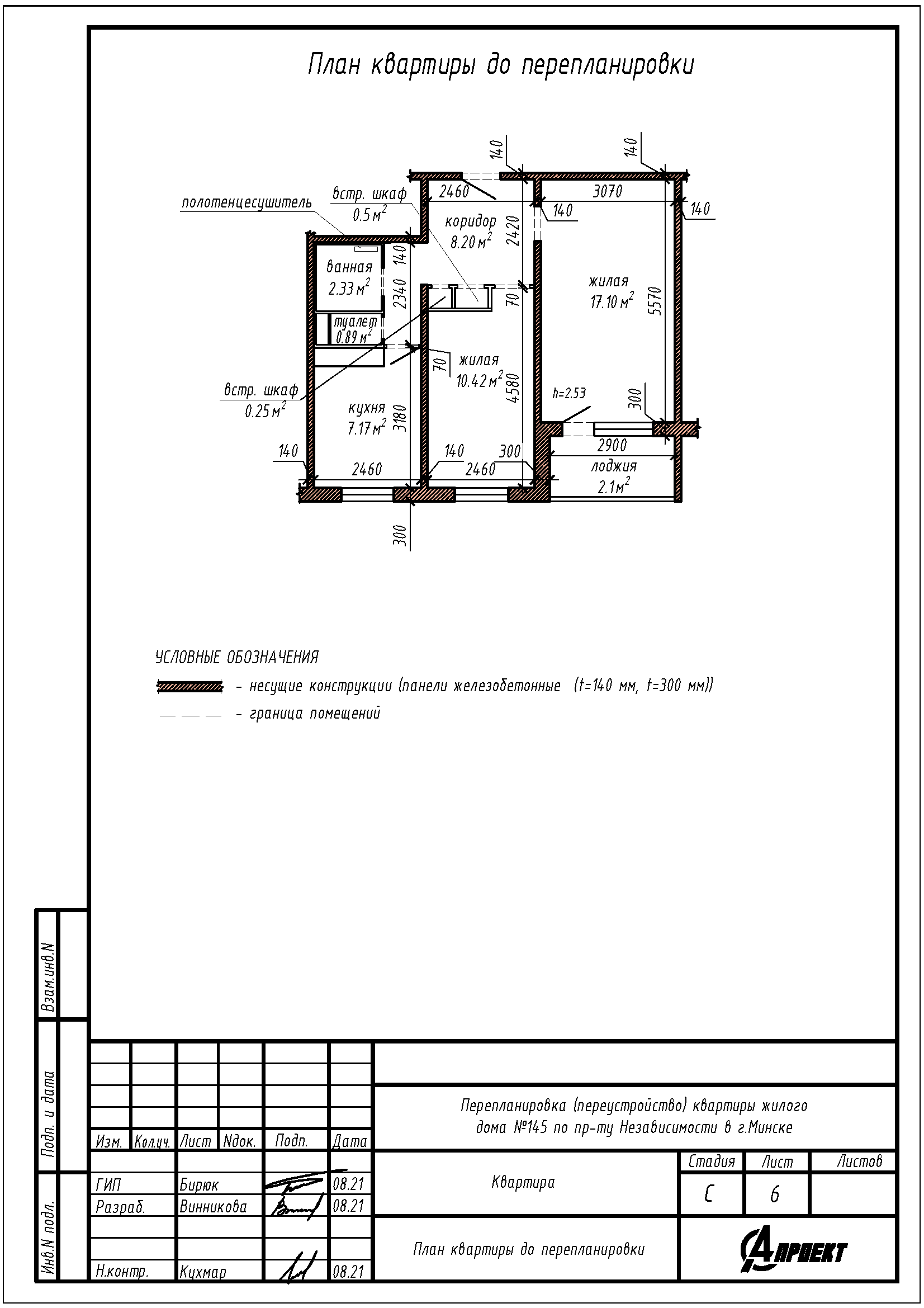
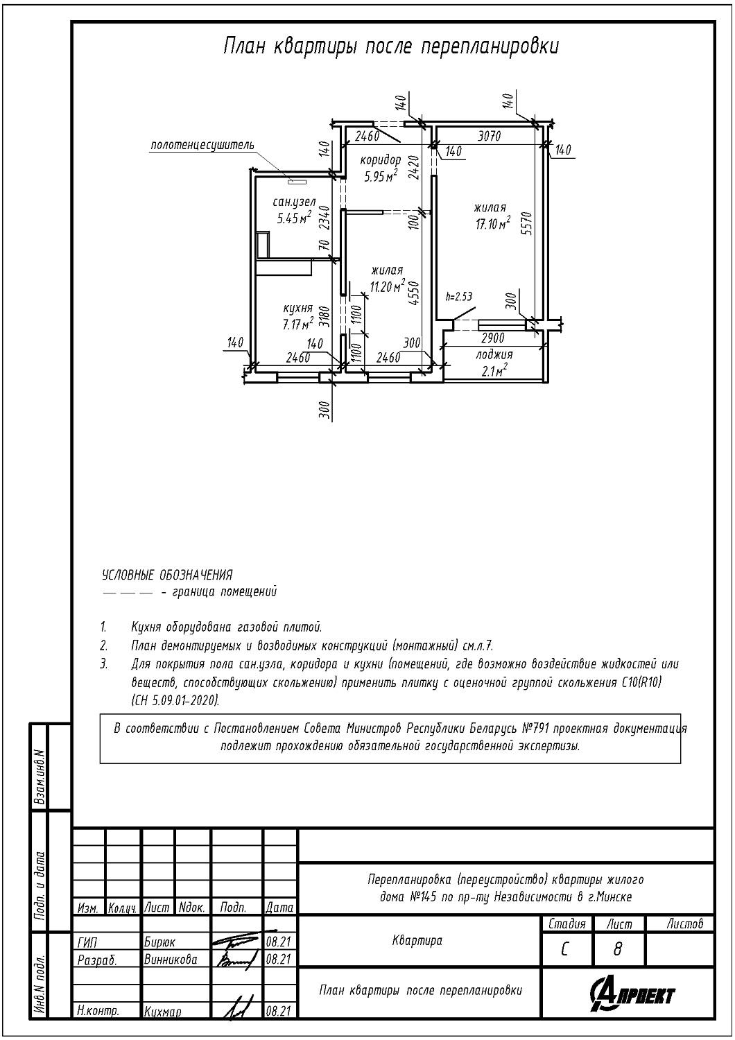
Перепланировка квартиры по пр-ту Независимости, 145 в г. Минске
Пожелания заказчика:
- Устройство дверного проёма в несущей стене между жилой и кухней;
- Закладка дверного проёма между жилой и коридором;
- Объединение ванной и туалета в единый санузел;
- Увеличение площади санузла;
- Демонтаж встроенных шкафов;
- Расширение дверного проёма между жилой и коридором.
Нами были разработаны следующие разделы проектной документации для согласования в исполкоме:
- АС - архитектурно-строительные решения.
