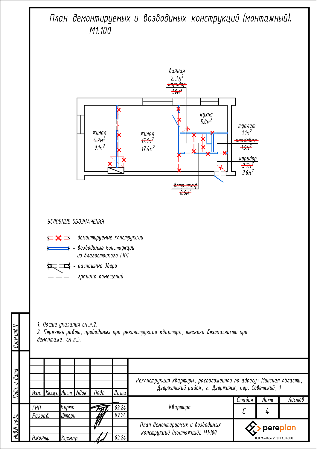
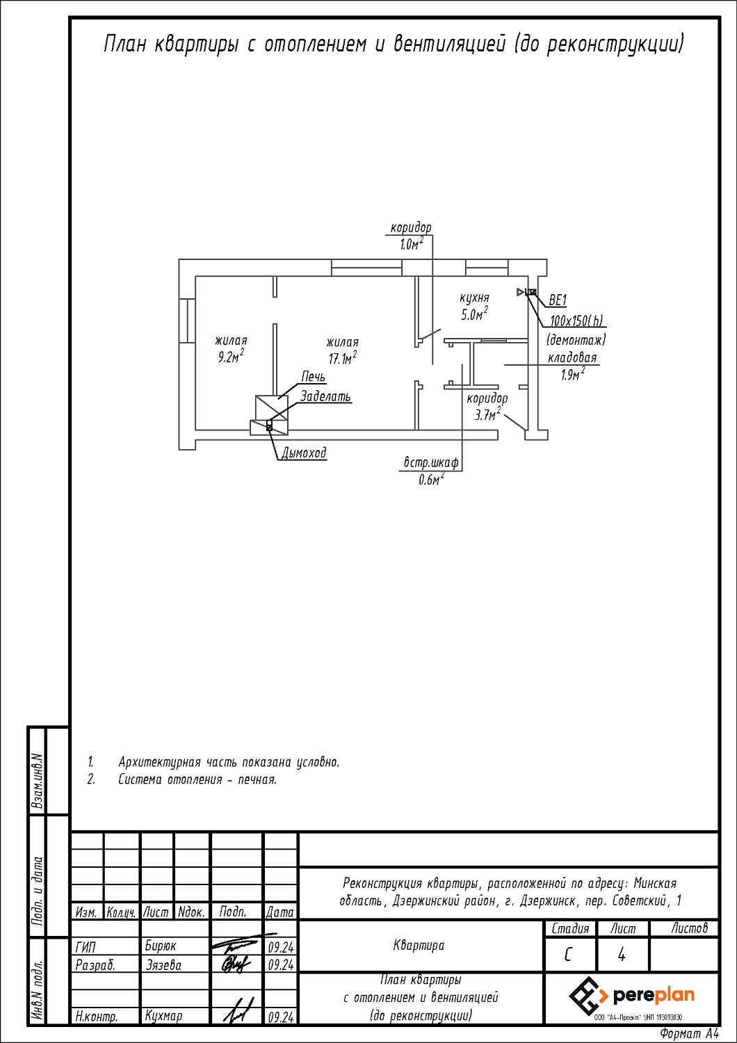
Перепланировка квартиры по ул. Советская, 104 А в г. Заславль
Пожелания заказчика:
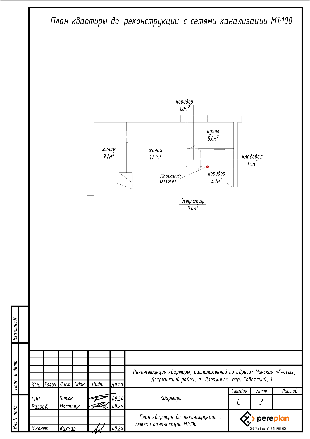
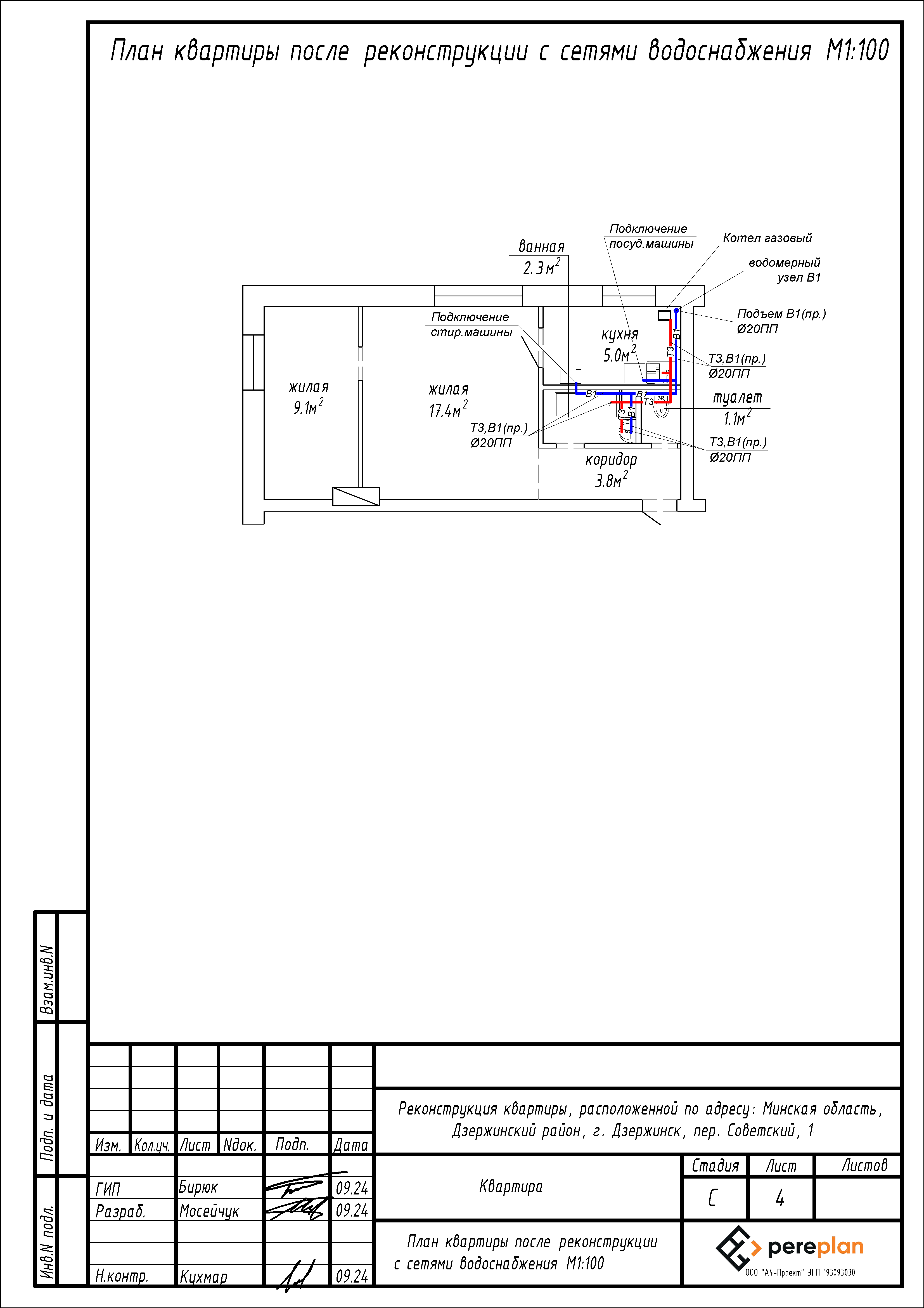
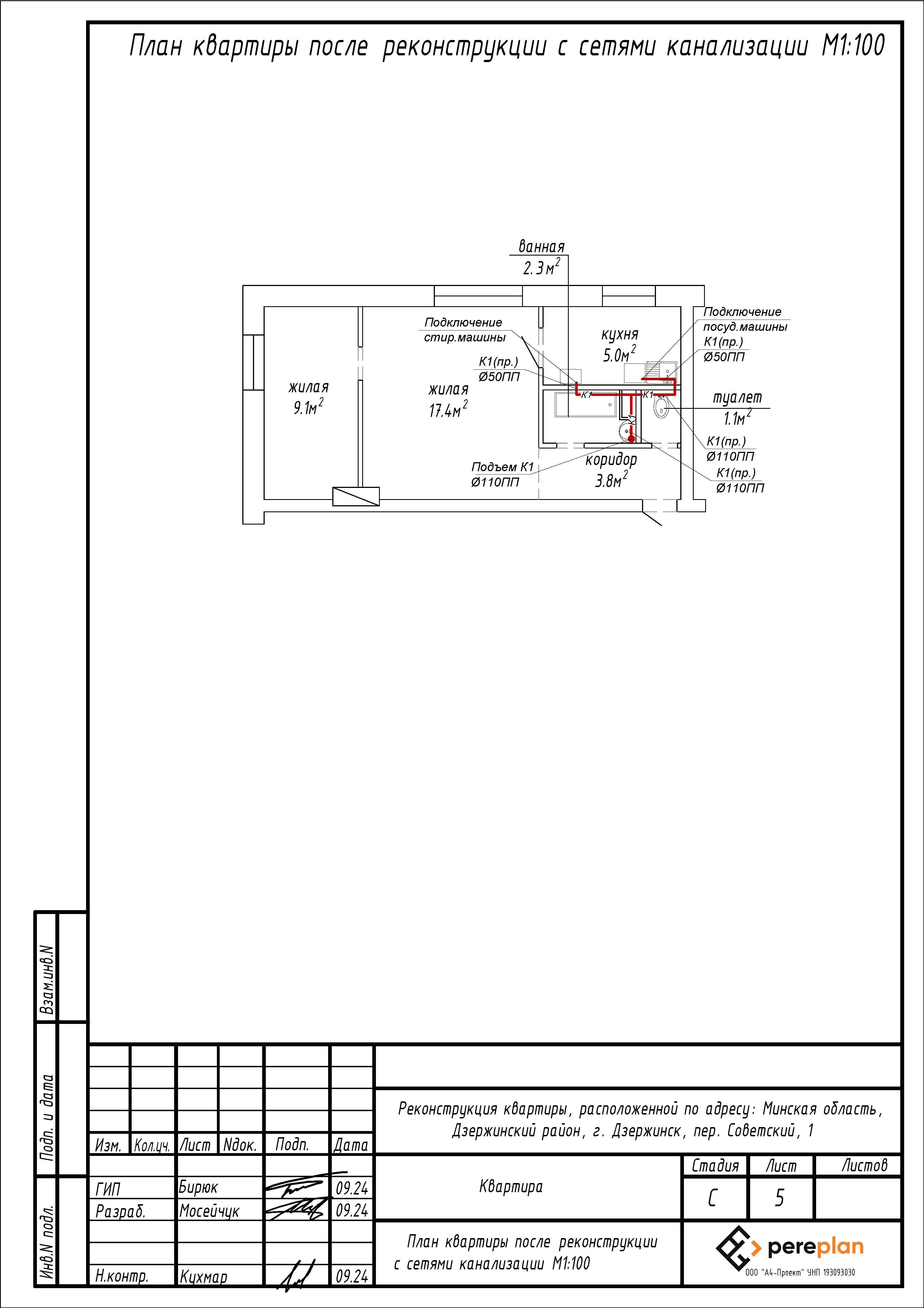
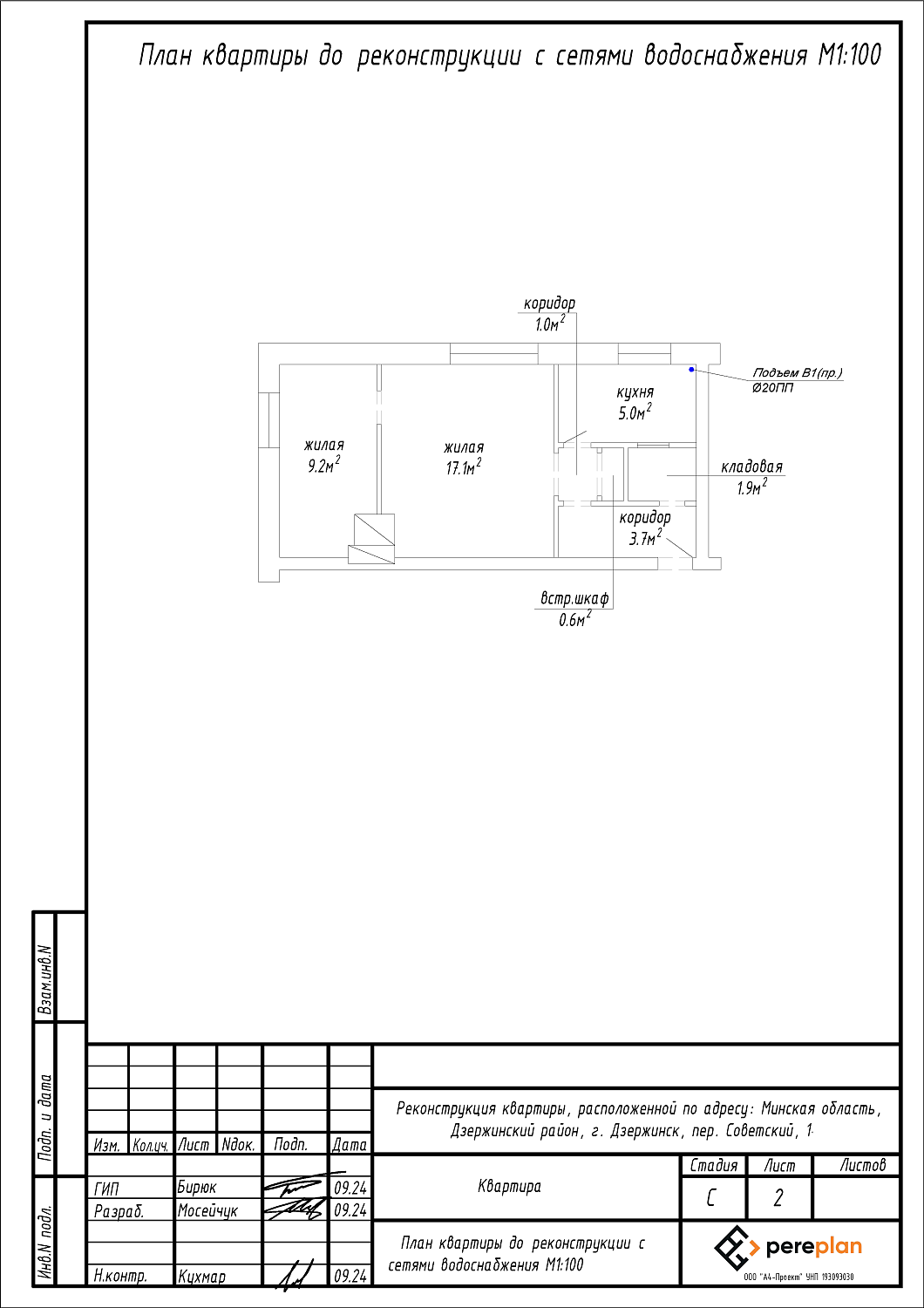
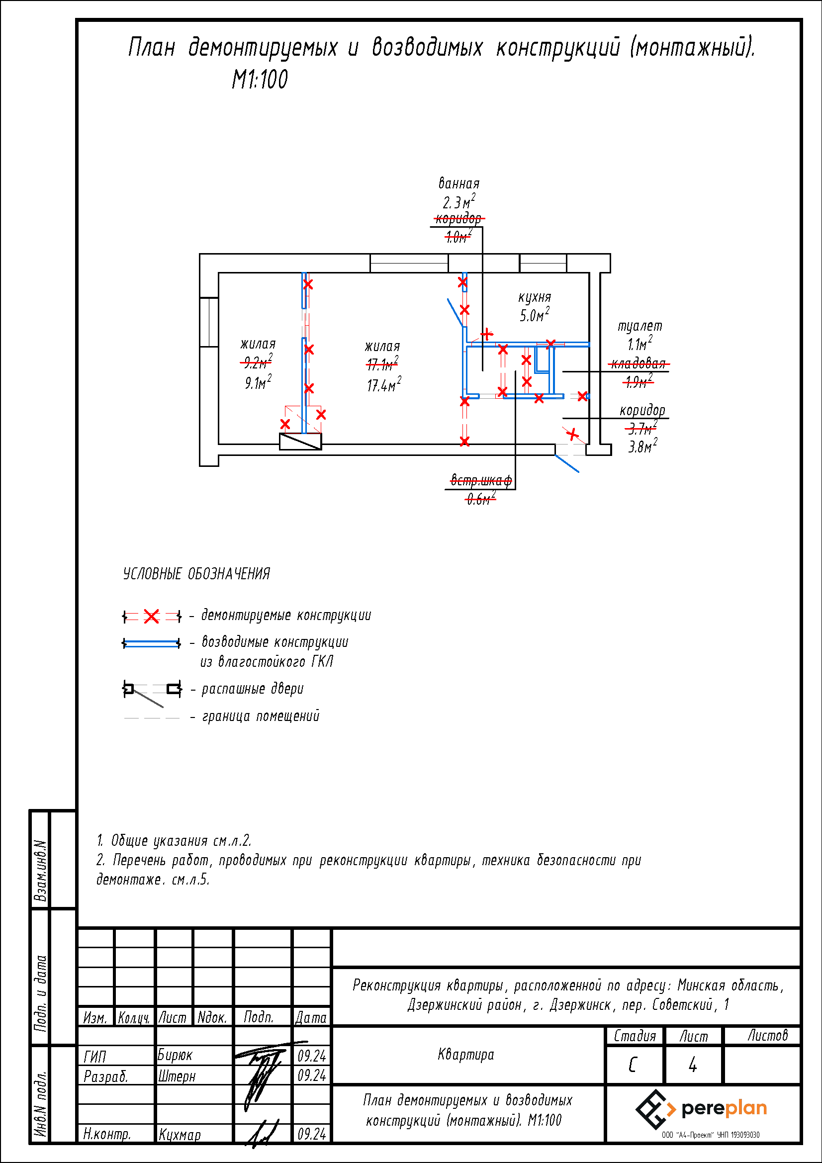
- Демонтаж перегородок с дверными проемами между коридором 3.7м2, коридором 1.0м2, встроенным шкафом 0.6м2, кладовой 1.9м2, кухней 5.0м2, жилой 17.1м2, жилой 9.2м2 с последующим устройством перегородок с дверными проемами с целью устройства кухни, ванной, туалета, коридора и двух жилых;
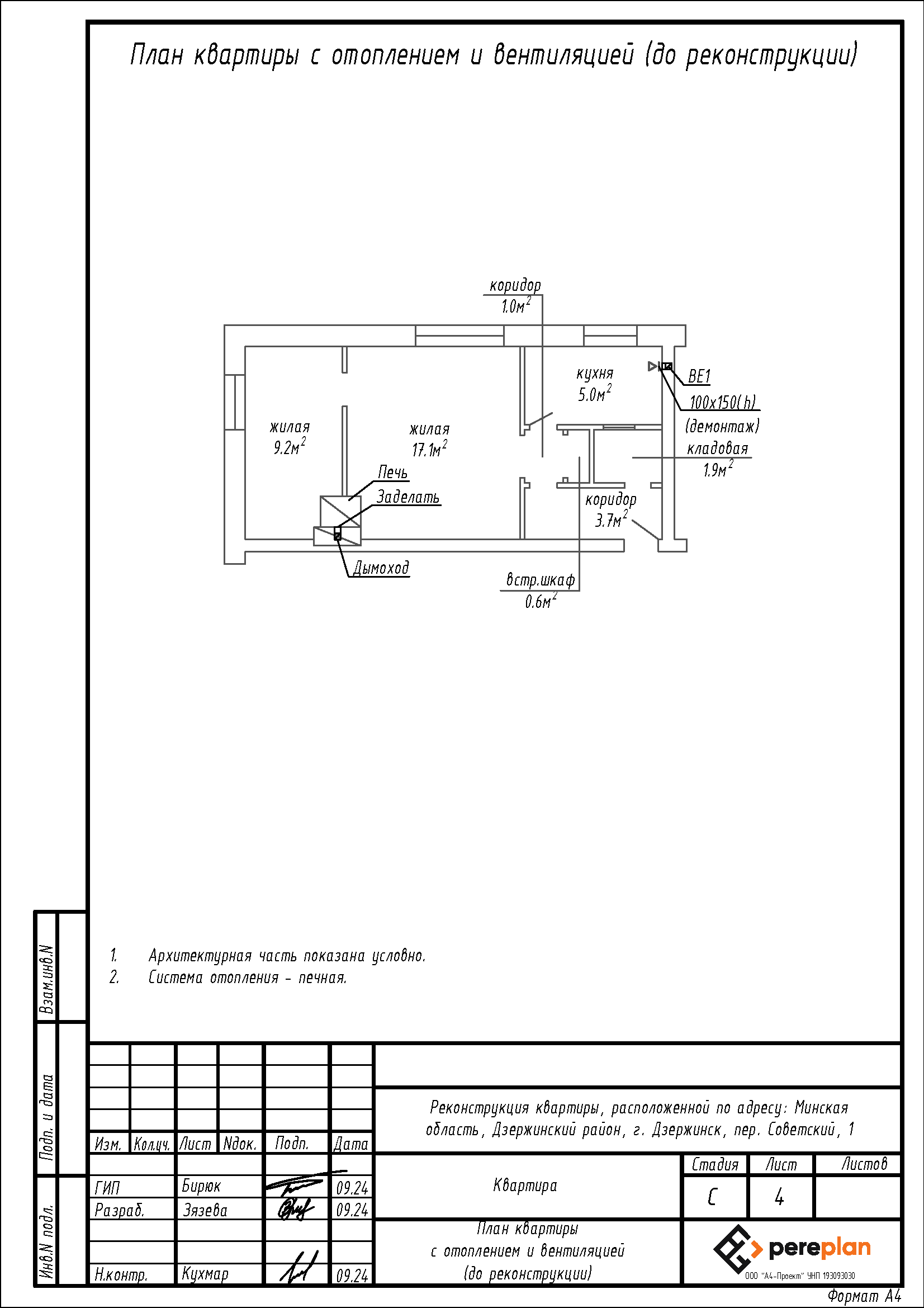
- Демонтаж печи;
- Замена входной двери со сменой направления открывания.
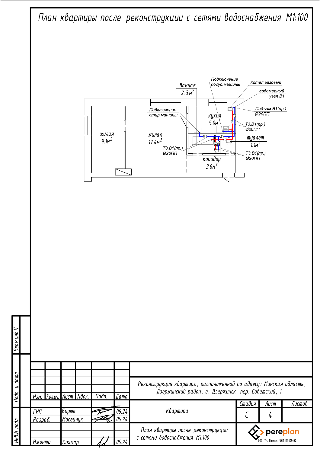
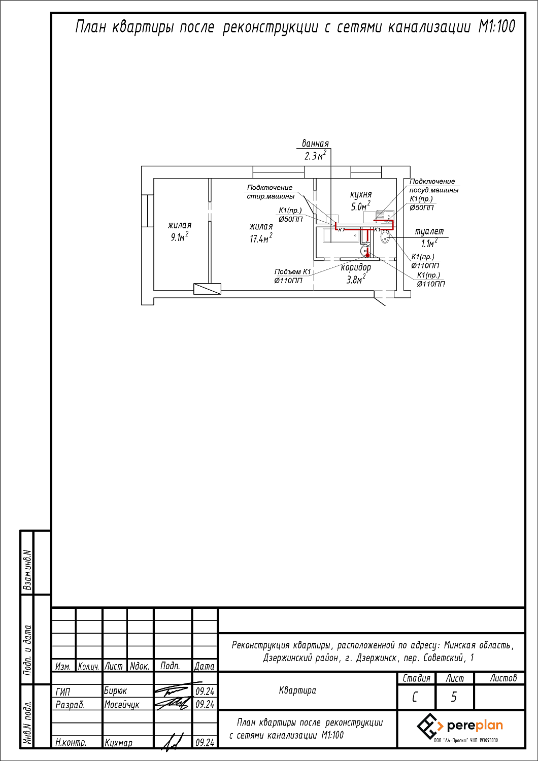
Нами были разработаны следующие разделы проектной документации для согласования в исполкоме:
- АС - архитектурно-строительные решения;
- ОВ - отопление и вентиляция;
- ВК - водоснабжение и канализация.
