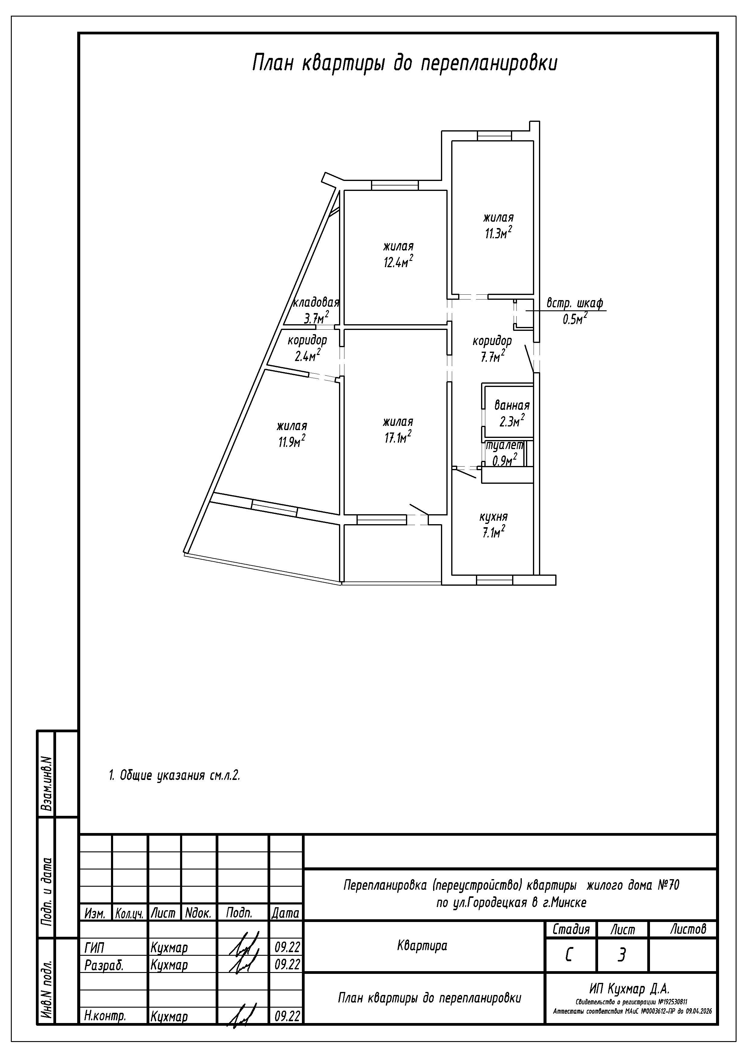
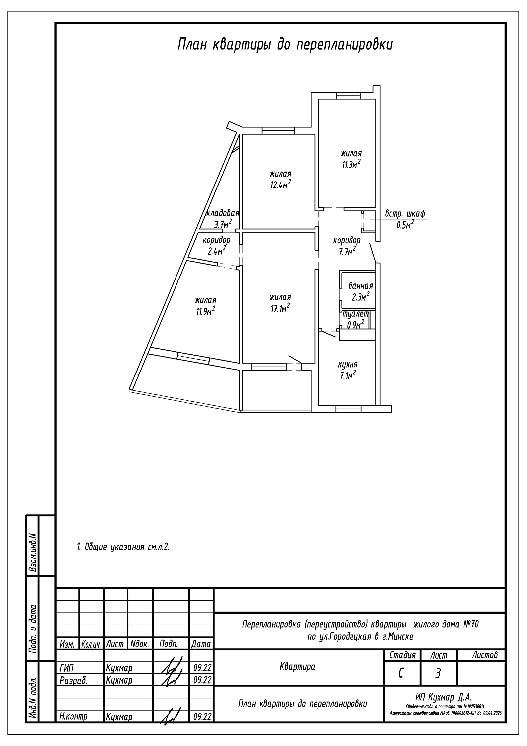
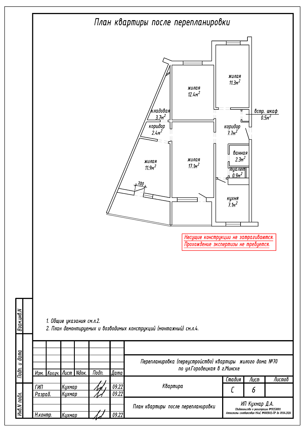
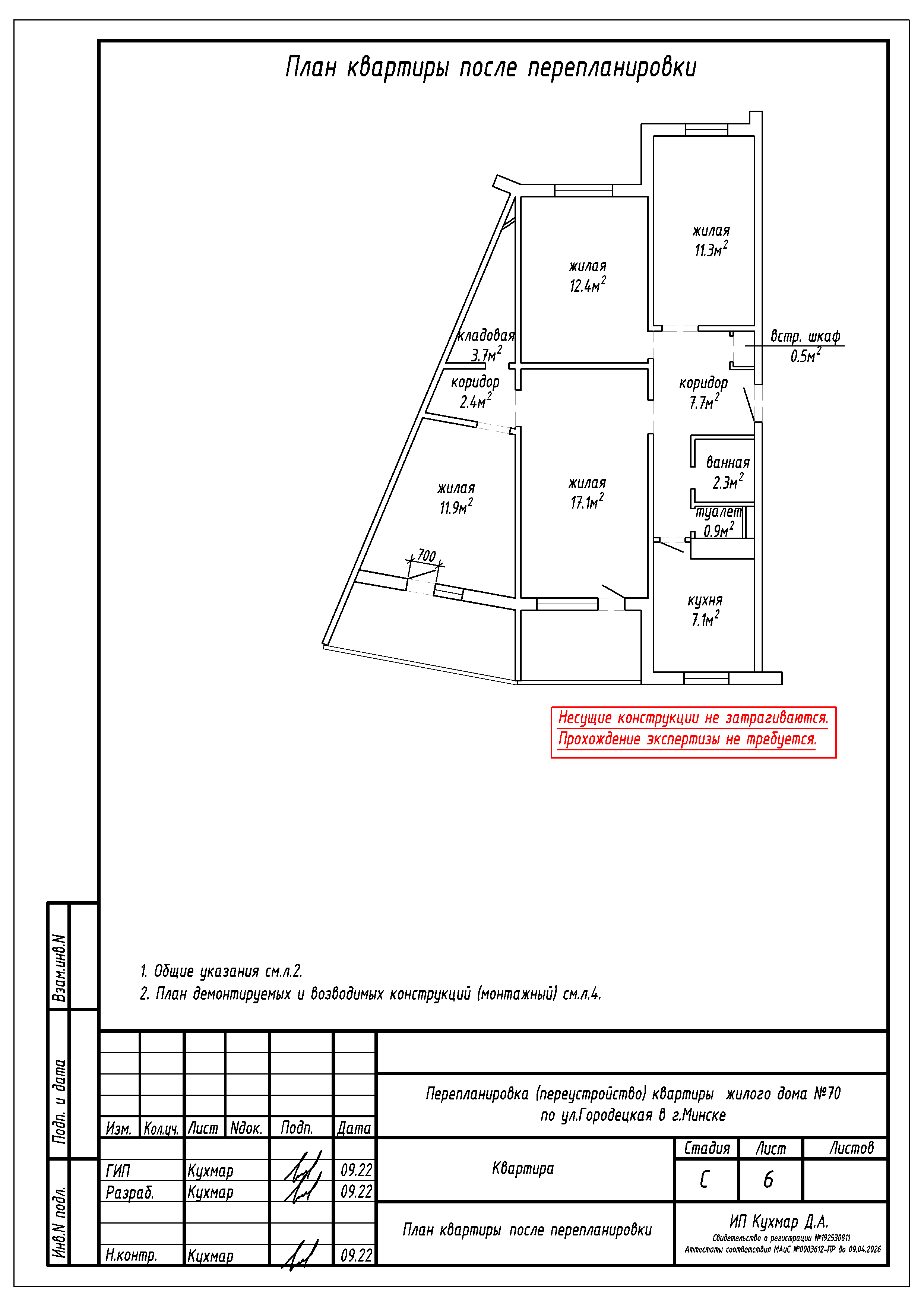
Перепланировка квартиры по ул. Городецкая, 13 в г.Минске
Пожелания заказчика:
- Демонтаж части подоконной части стены между жилой 11.9м2 и лоджией с целью устройства оконного и дверного блока.
Нами были разработаны следующие разделы проектной документации для согласования в исполкоме:
- АС - архитектурно-строительные решения.
