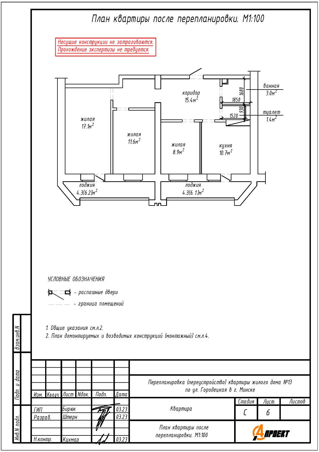
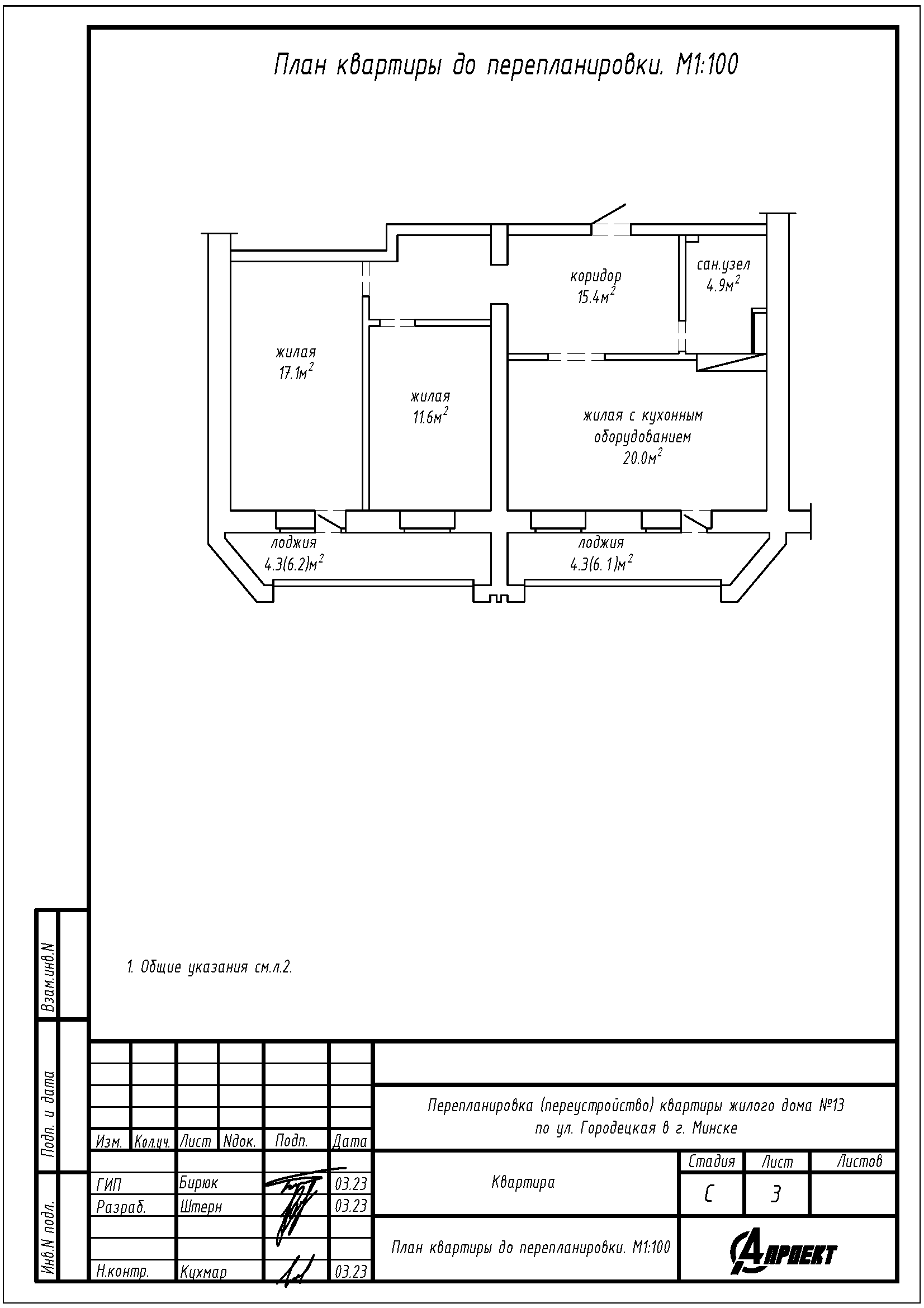
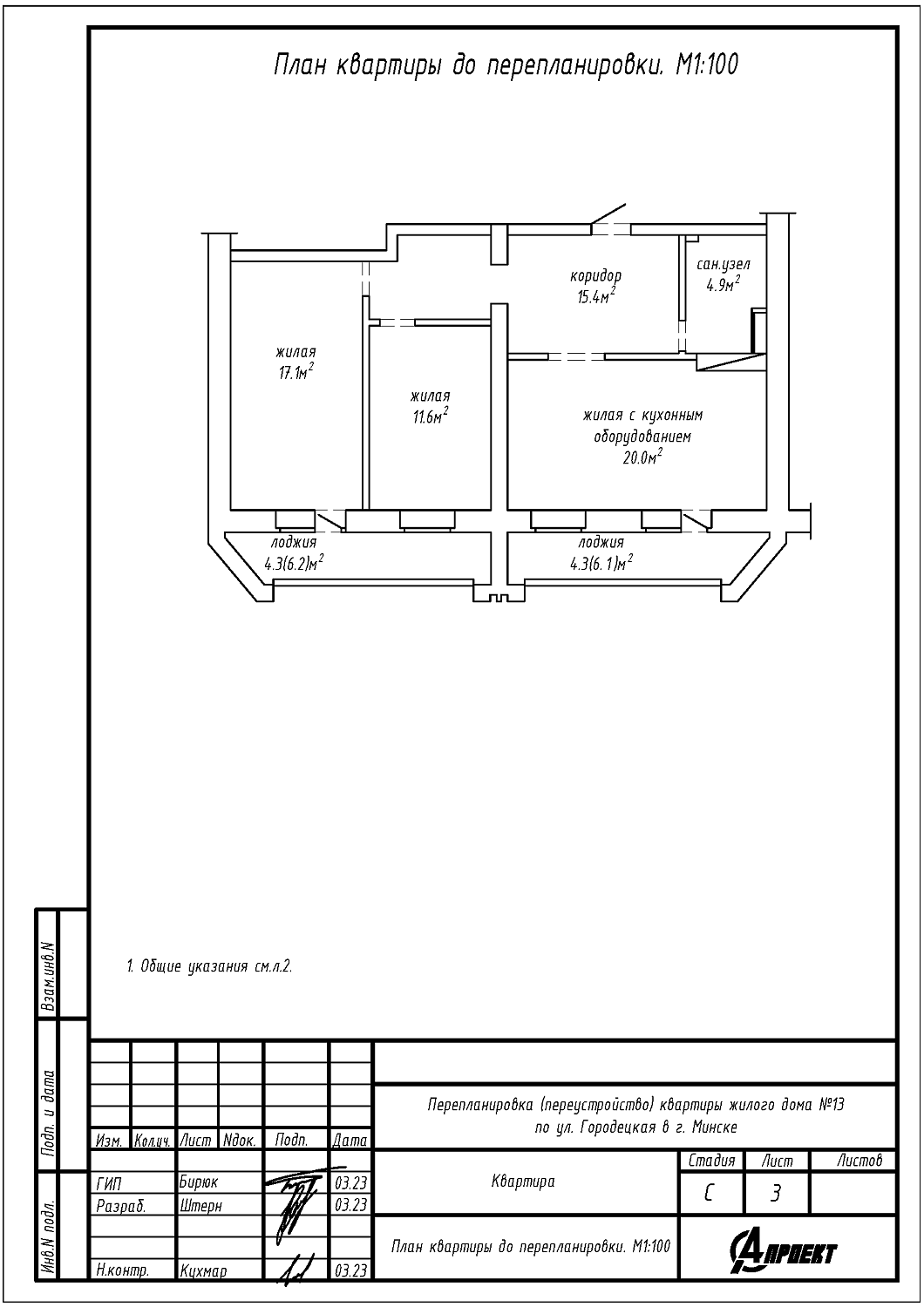
Перепланировка квартиры по ул. Городецкая, 13 в г.Минске
Пожелания заказчика:
- Разделение общего санузла на отдельный туалет и отдельную ванную;
- Разделение общей жилой с кухонным оборудованием на жилую и кухню.
Нами были разработаны следующие разделы проектной документации для согласования в исполкоме:
- АС - архитектурно-строительные решения.
