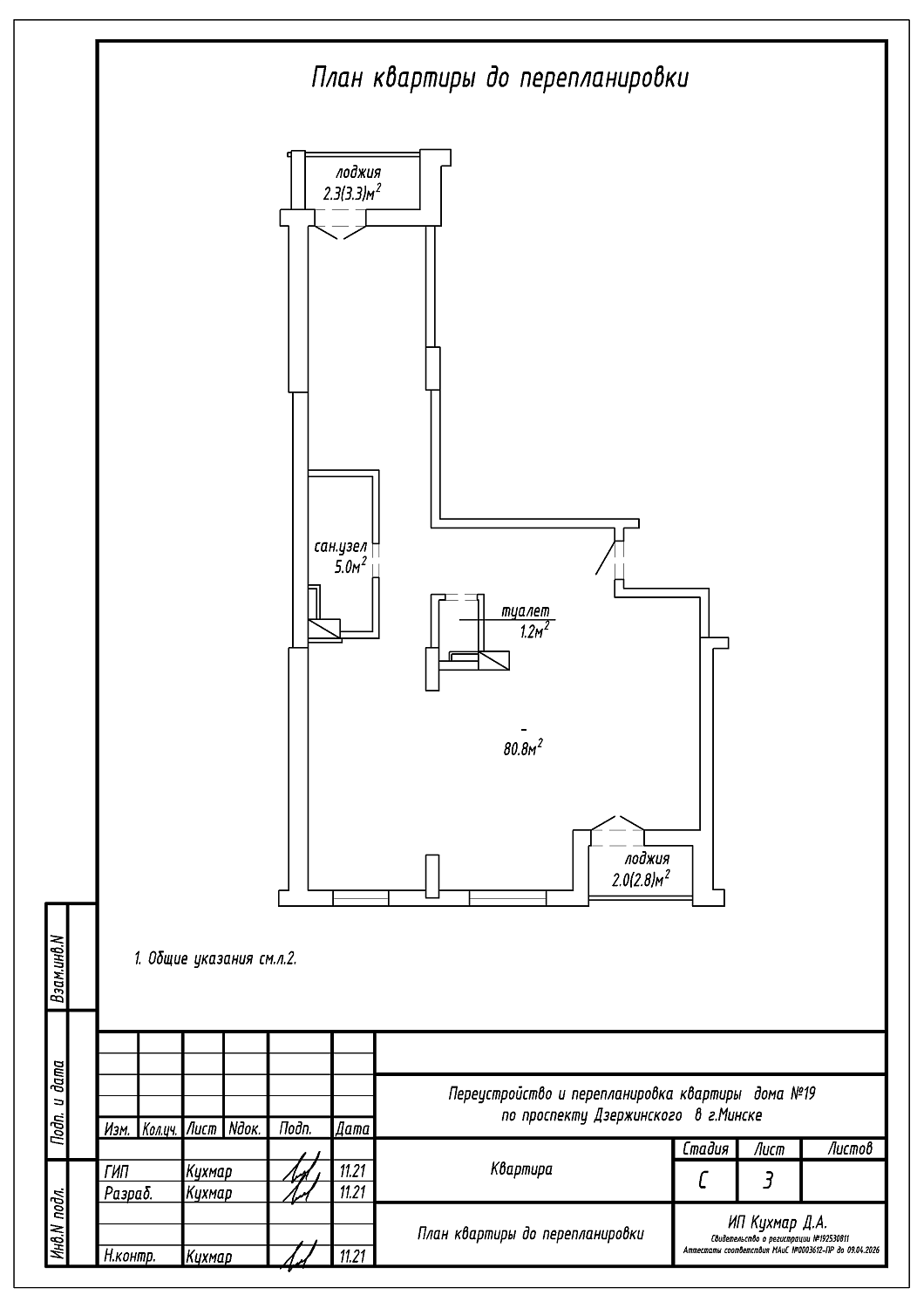
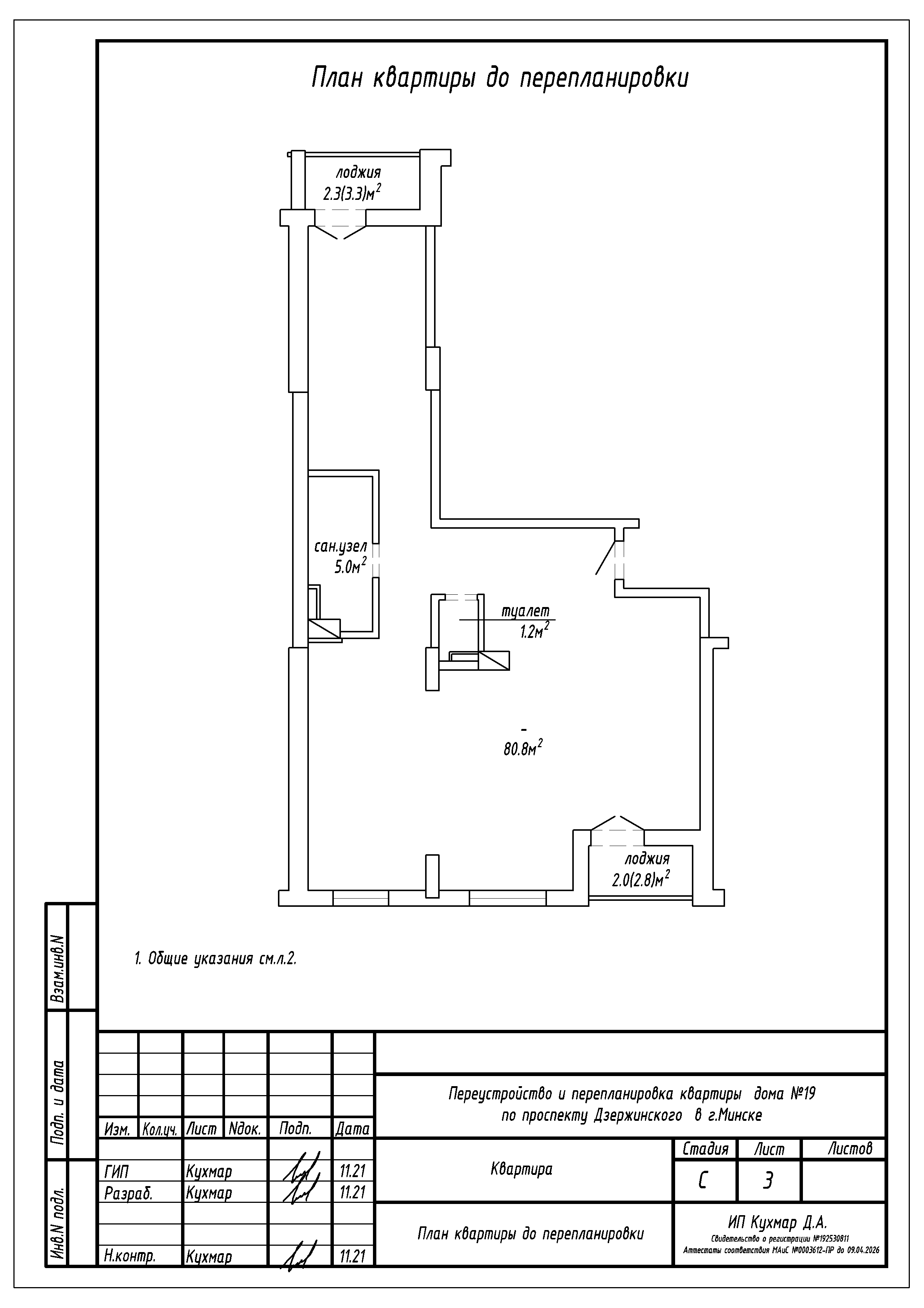
Перепланировка квартиры по пр-ту Дзержинского, 19 в ЖК «Гранд Хаус»
Пожелания заказчика:- Разделение общего жилого помещения на жилую с кухонным оборудованием, две жилые, две гардеробные и коридор;
- Увеличение площади санузла, но не более чем на 25%;
- Изменение площади туалета;
- Устройство перегородки в санузле и зашивок стояков труб в санузлах
Нами были разработаны следующие разделы проектной документации для согласования в исполкоме:
- АС - архитектурно-строительные решения.
