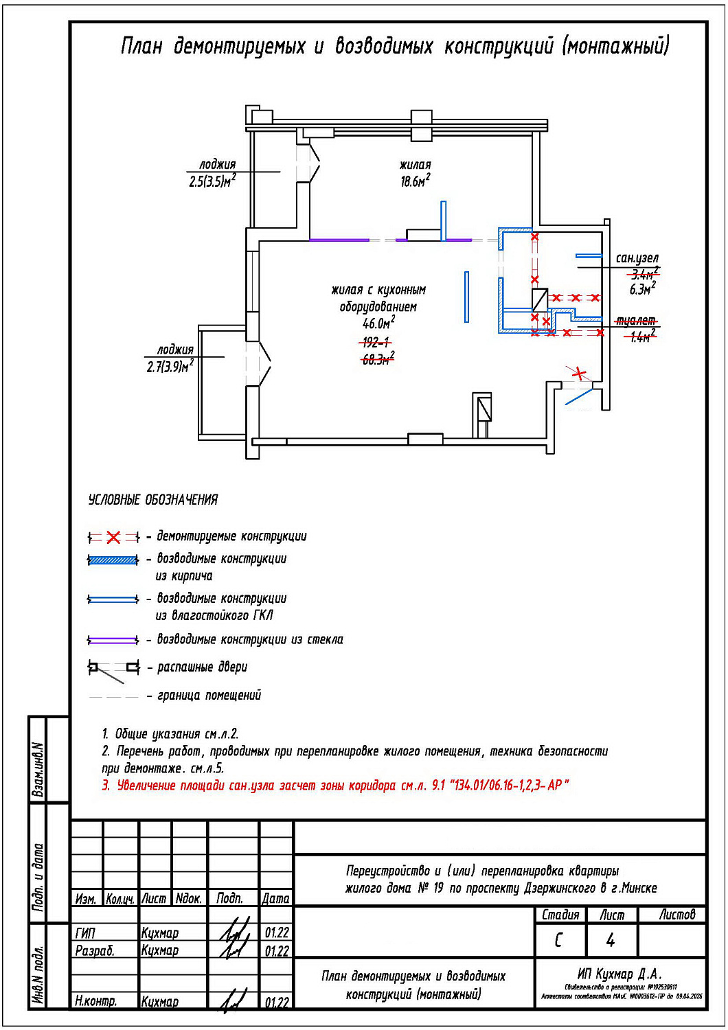
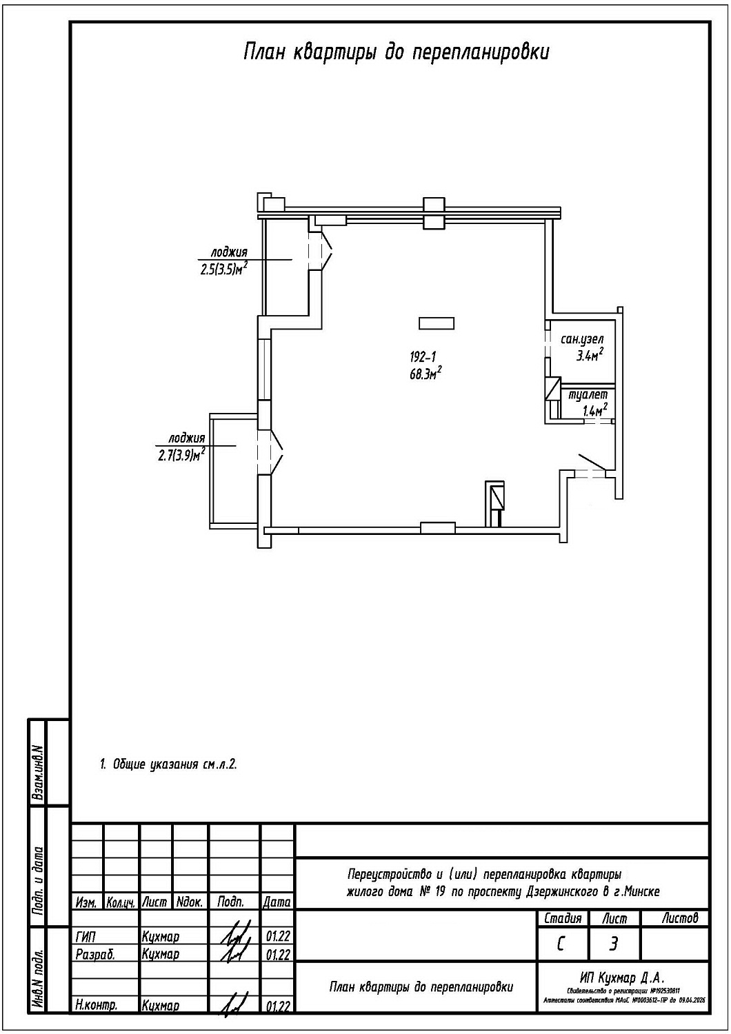
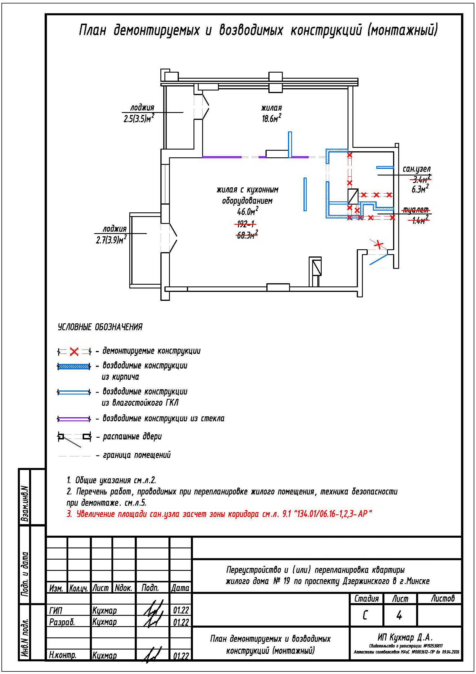
Перепланировка квартиры по пр-ту Дзержинского, 19 в ЖК «Гранд Хаус»
Пожелания заказчика:
- Объединение туалета и санузла в единый санузел;
- Разделение общей жилой с кухонным оборудованием на жилую с кухонным оборудованием и жилую;
- Увеличение площади санузла за счет площади коридора;
- Смена направления открывания входной двери.
Нами были разработаны следующие разделы проектной документации для согласования в исполкоме:
- АС - архитектурно-строительные решения.
