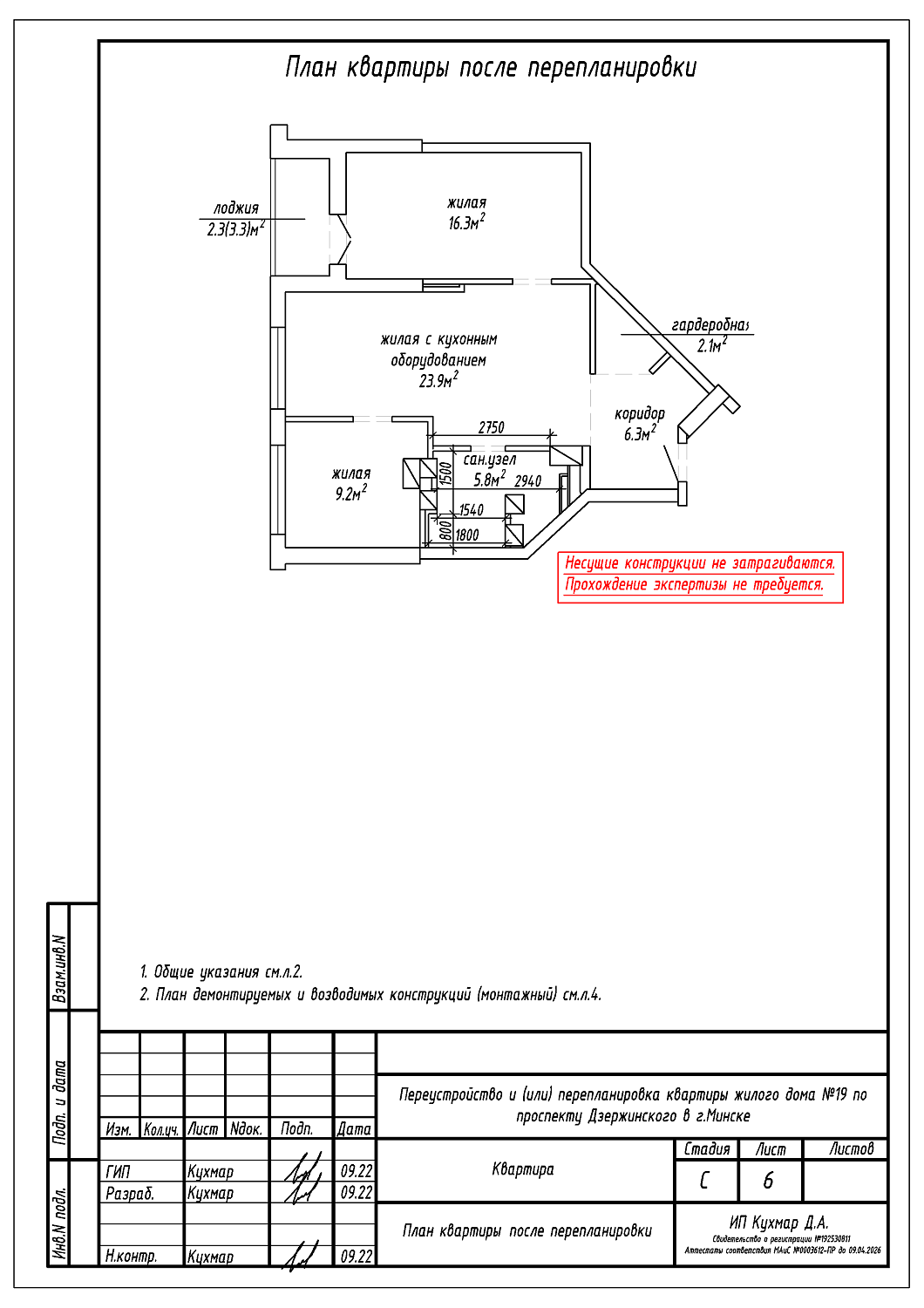
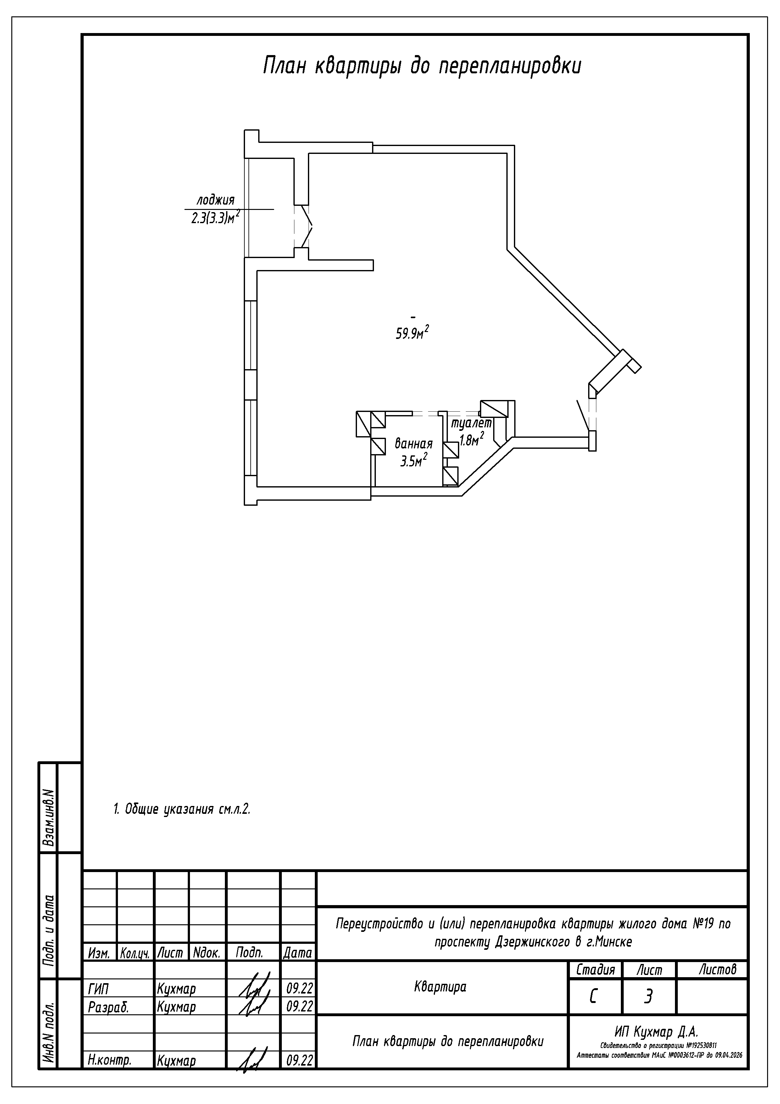
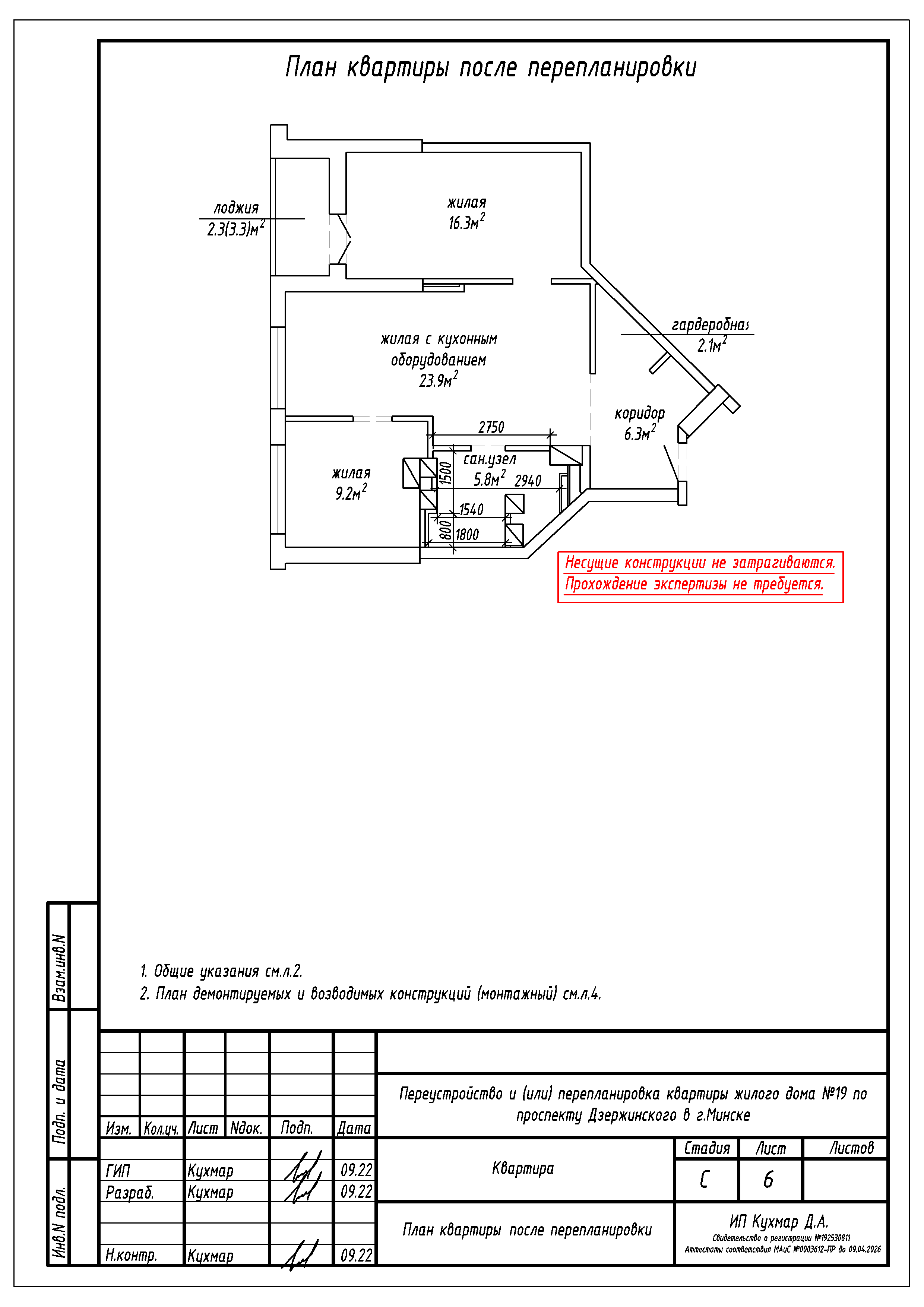
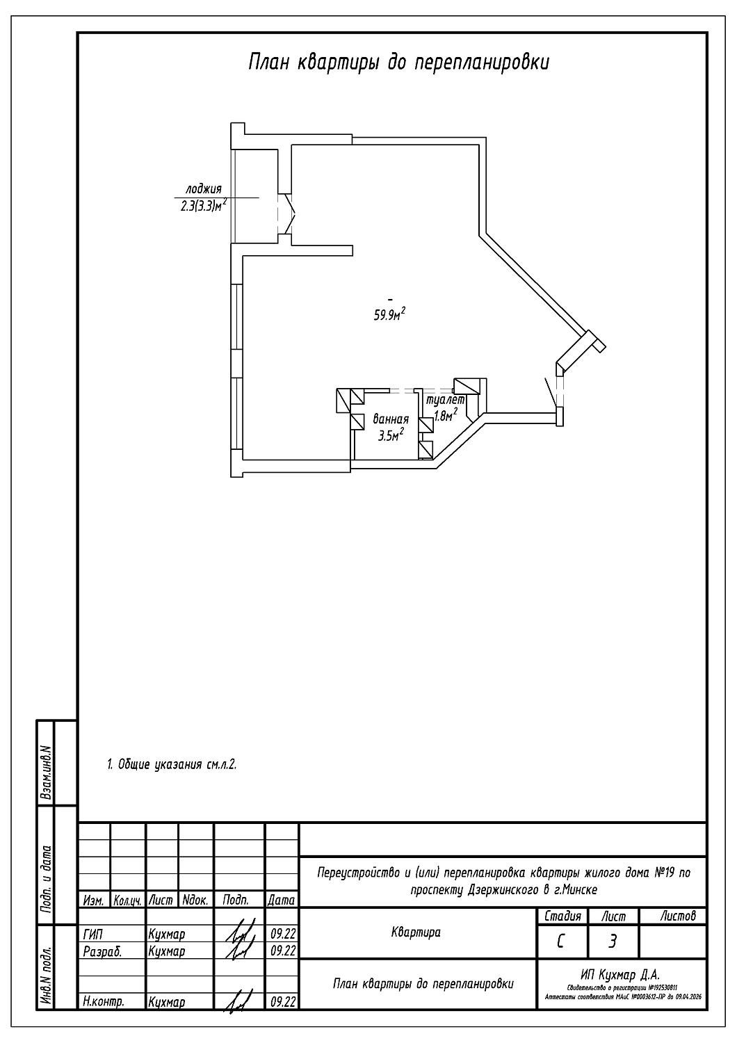
Перепланировка квартиры по пр-ту Дзержинского, 19 в ЖК «Гранд Хаус»
Пожелания заказчика:
- Разделение общего жилого помещения на жилую с кухонным оборудованием, две жилые, гардеробную и коридор;
- Объединение ванной и туалета в единый санузел;
- Увеличение площади санузла, но не более чем на 25%.
Нами были разработаны следующие разделы проектной документации для согласования в исполкоме:
- АС - архитектурно-строительные решения.
