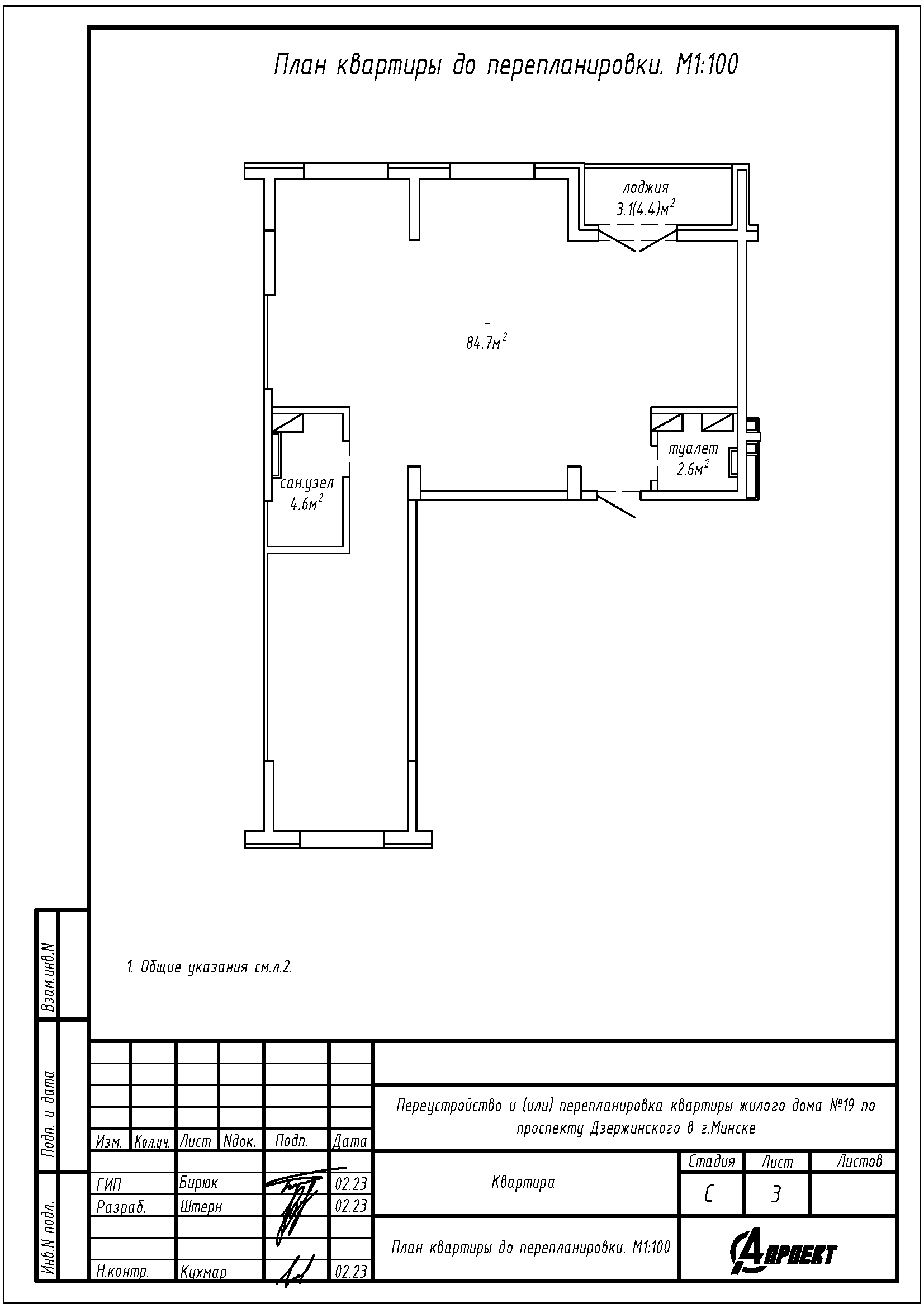
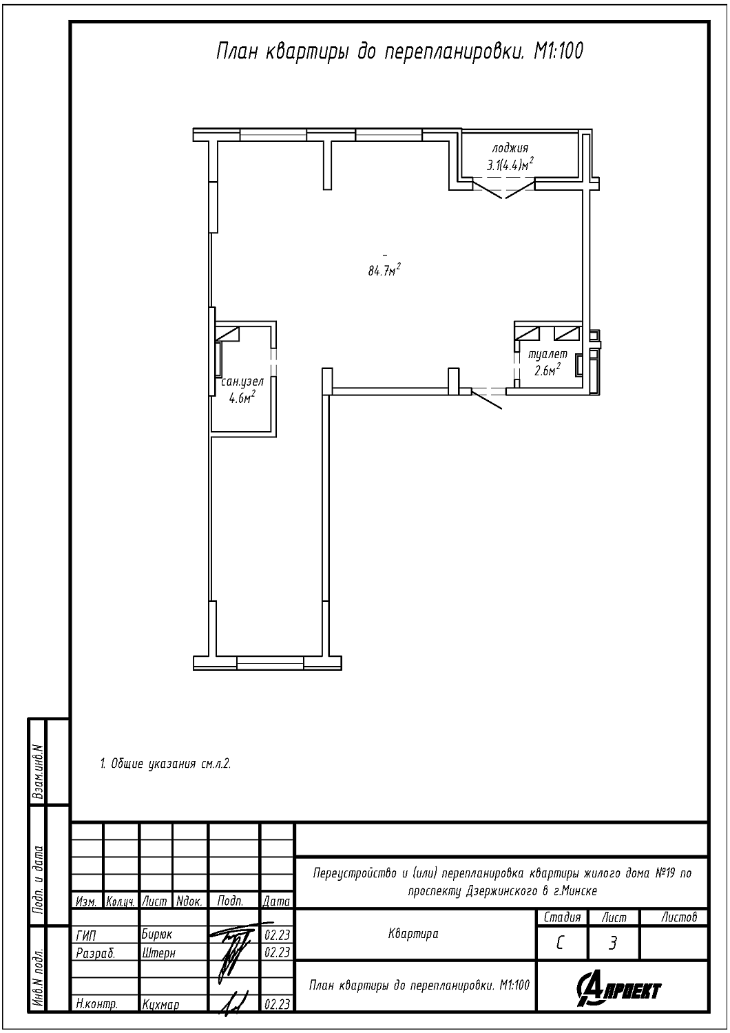
Перепланировка квартиры по пр-ту Дзержинского, 19 в ЖК «Гранд Хаус»
Пожелания заказчика:
- Демонтаж части перегородок с дверным проёмом между санузлом и жилой с кухонным оборудованием;
- Увеличение площади санузла;
- Устройство перегородок с дверными проёмами в жилой с кухонным оборудованием с целью устройства жилой с кухонным оборудованием, трёх жилых комнат, гардеробной и коридора.
Нами были разработаны следующие разделы проектной документации для согласования в исполкоме:
- АС - архитектурно-строительные решения.
