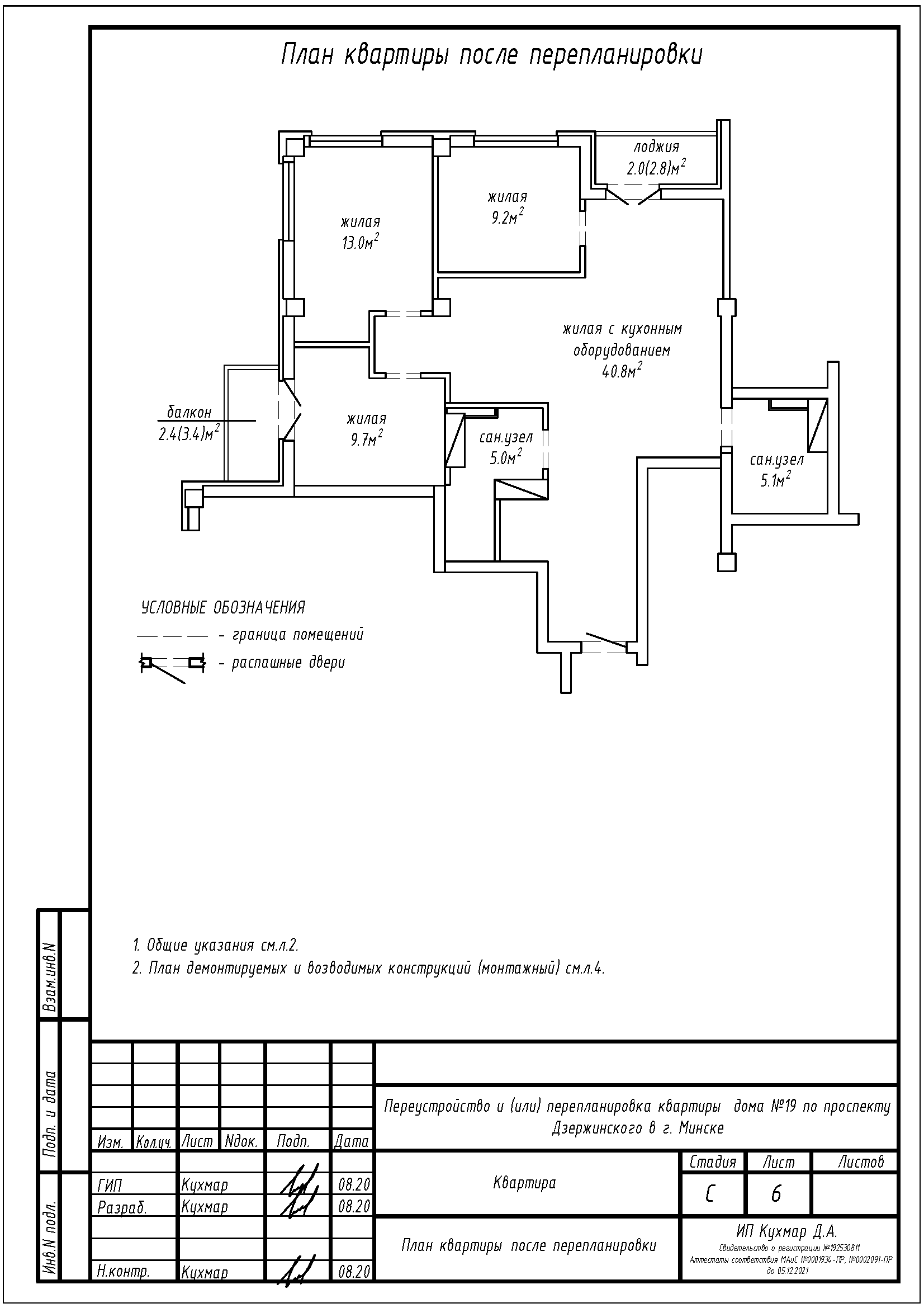
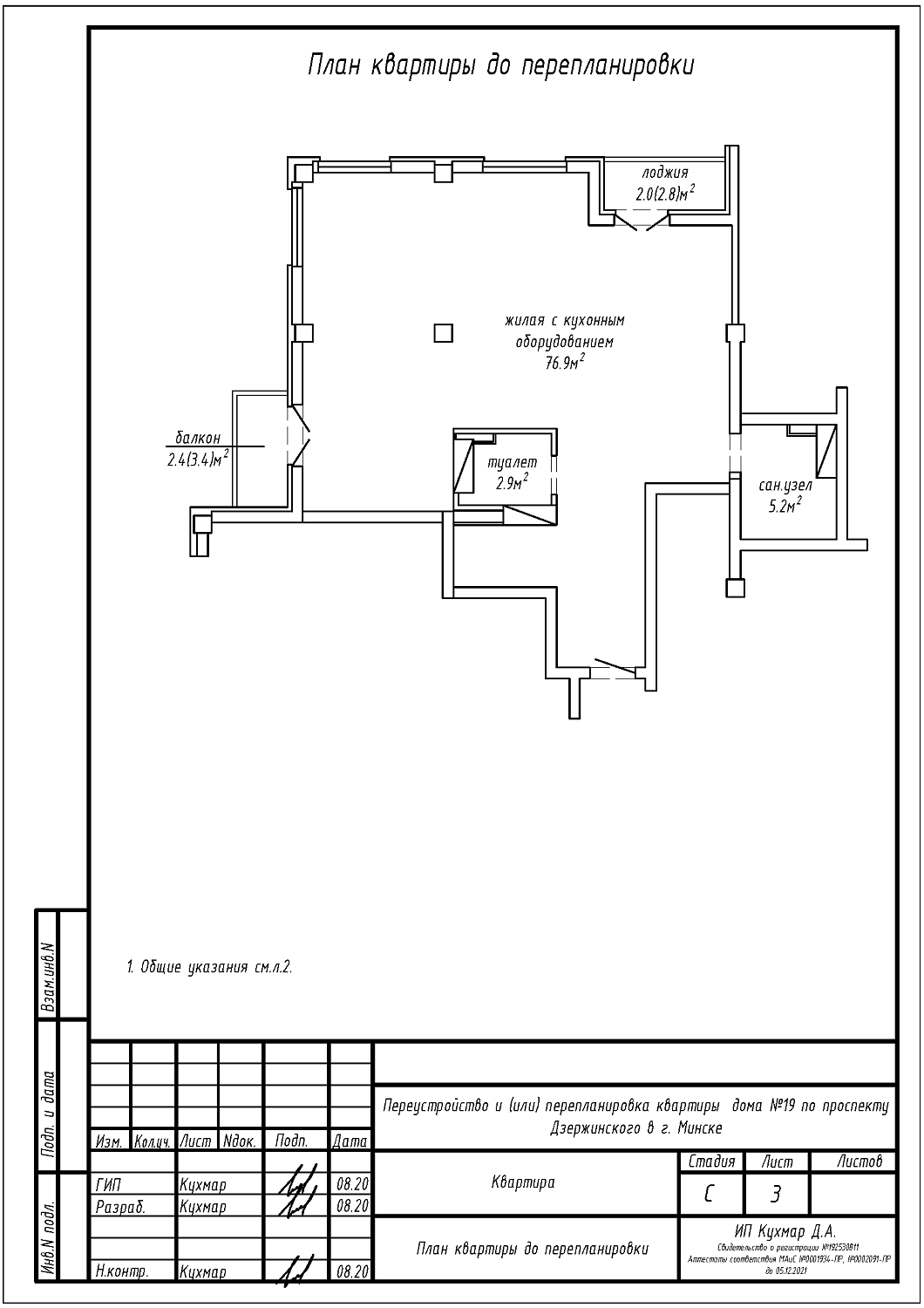
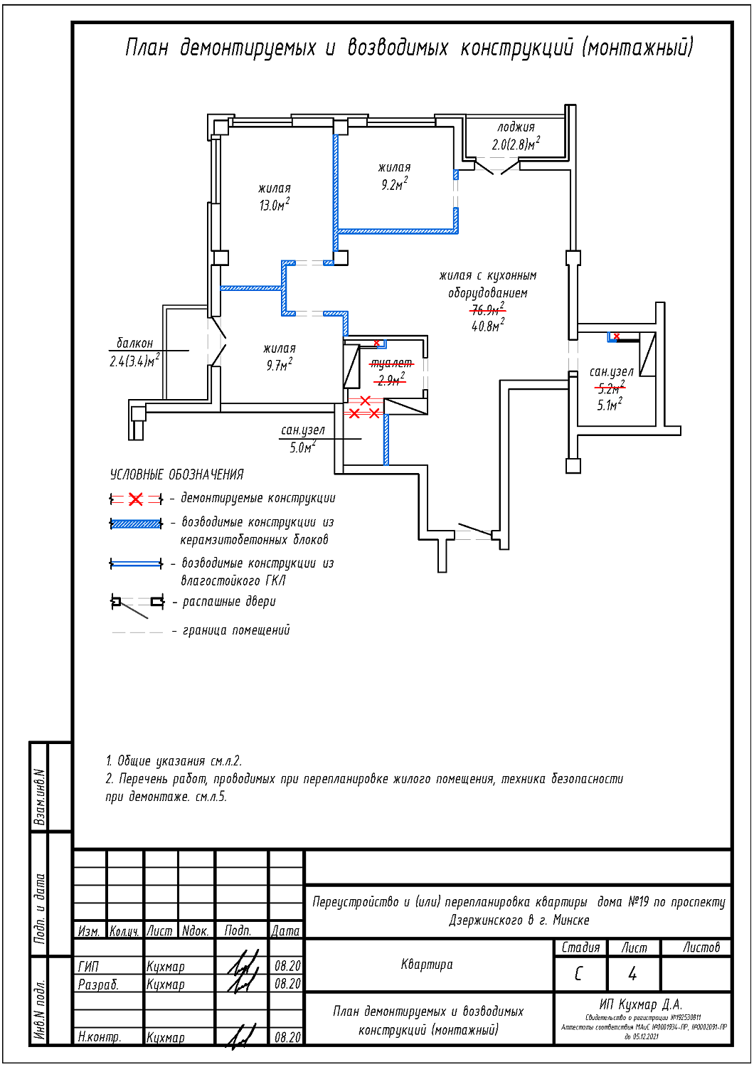
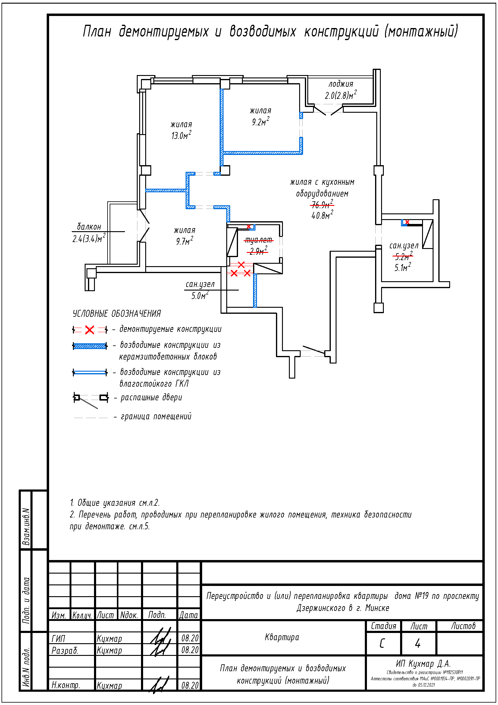
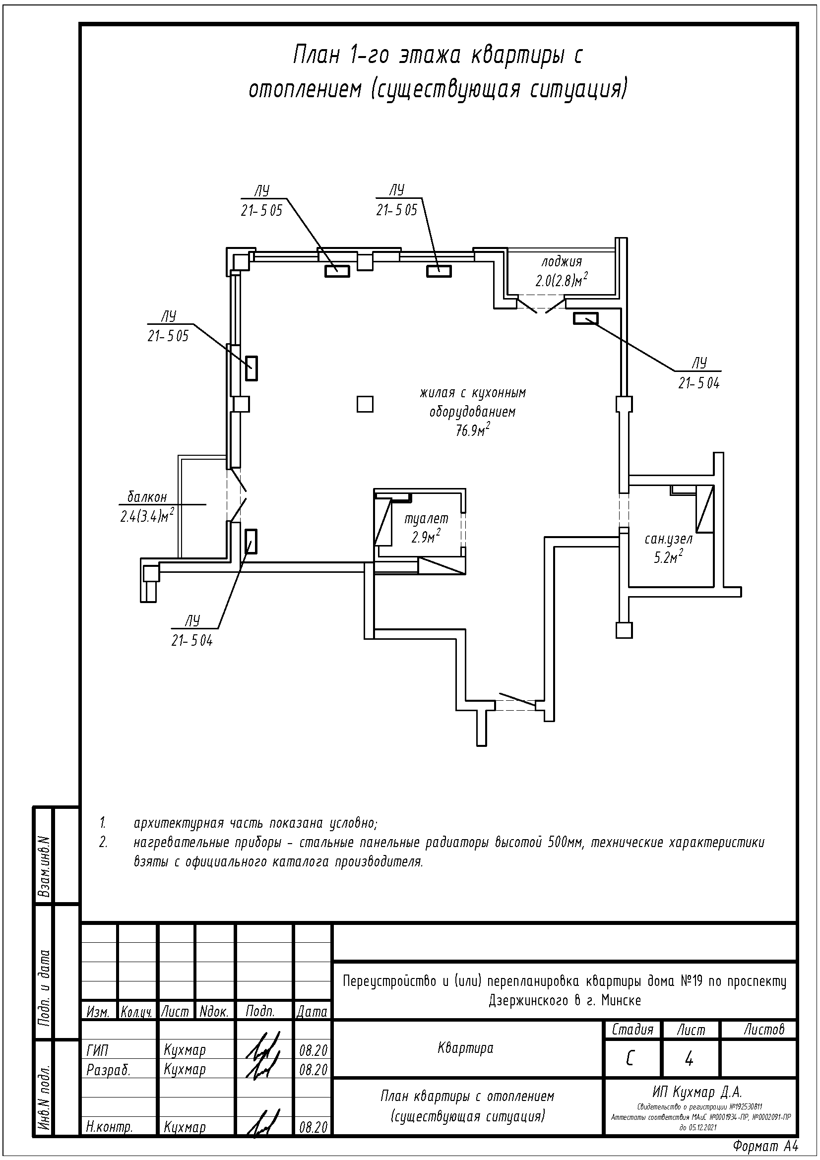
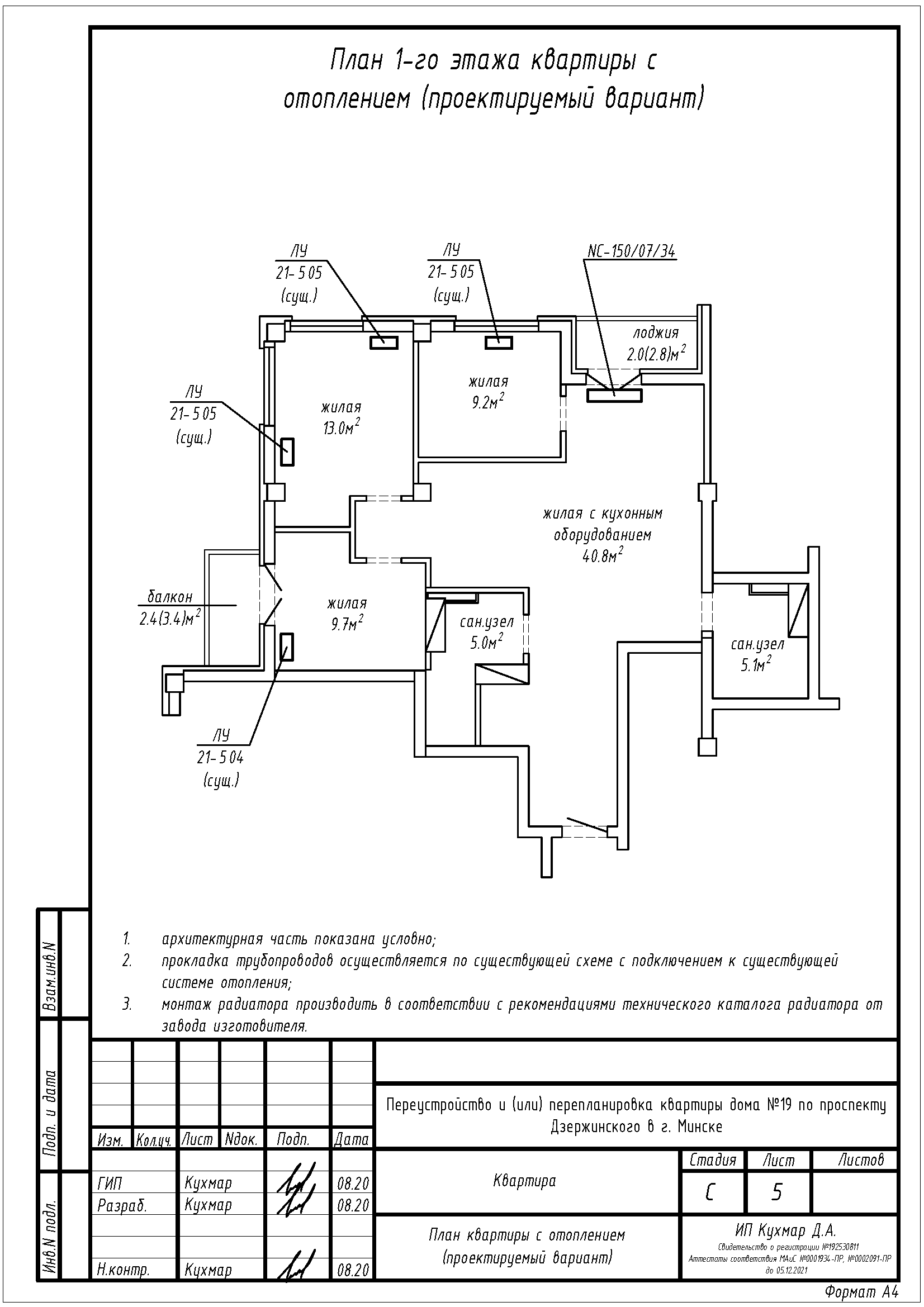
Перепланировка квартиры по пр-ту Дзержинского, 19 в ЖК «Гранд Хаус»
Пожелания заказчика:
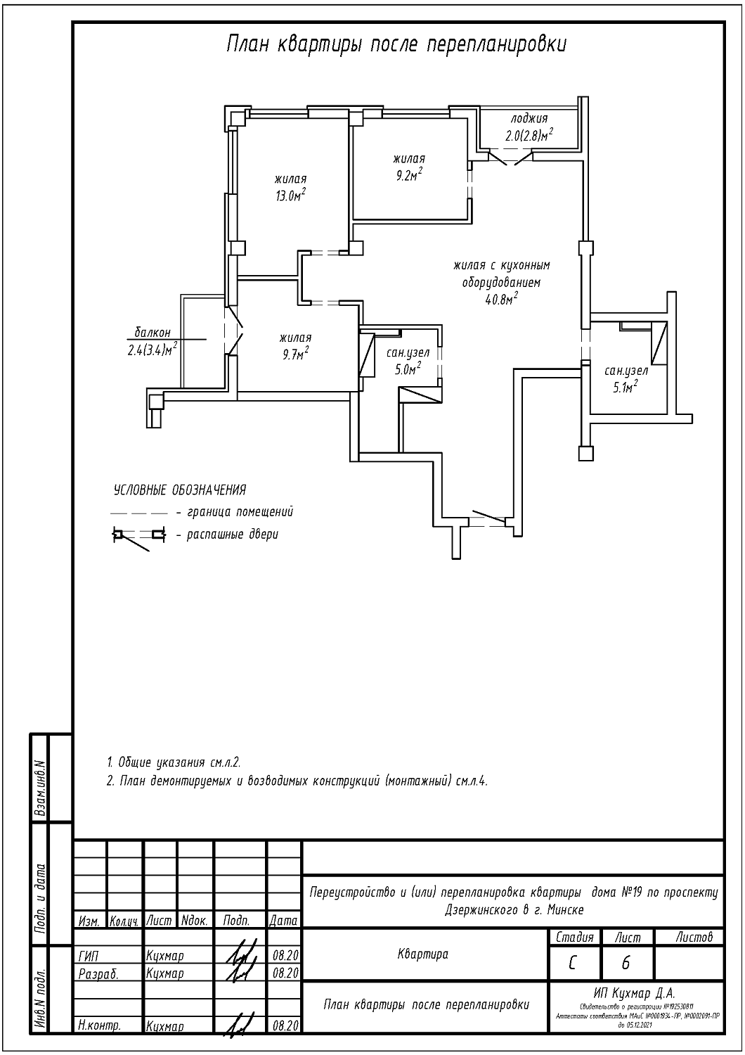
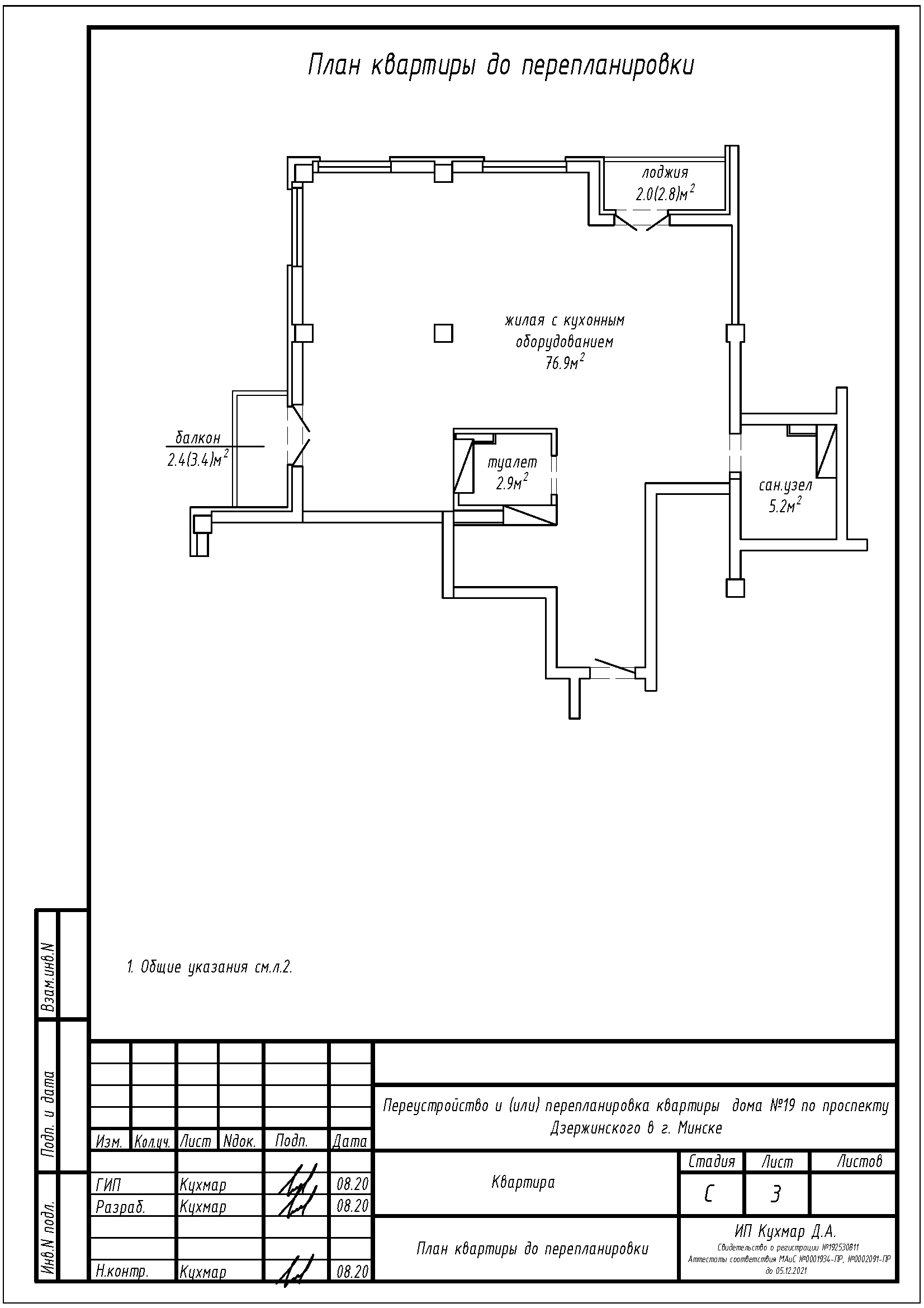
- Демонтаж перегородки между жилой с кухонным оборудованием и туалетом;
- Разделение общего жилого с кухонным оборудованием на жилую с кухонным оборудованием и три жилые;
- Устройство санузла на площади существующего туалета;
- Увеличение санузла, но не более чем на 25%;
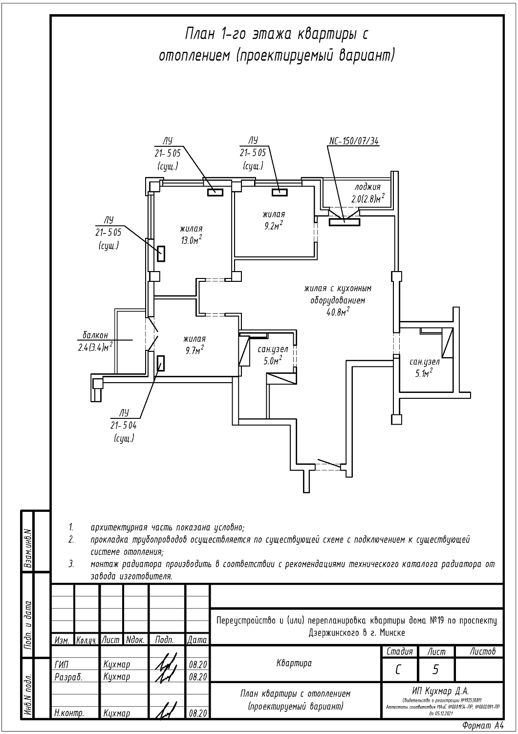
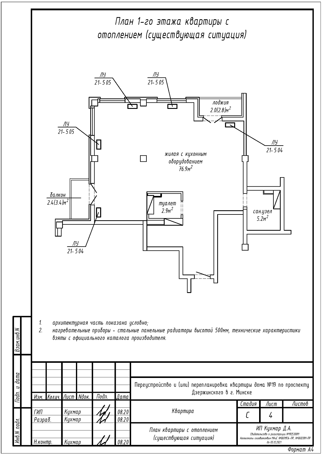
- Перенос и замена отопительного прибора.
Нами были разработаны следующие разделы проектной документации для согласования в исполкоме:
- АС - архитектурно-строительные решения;
- ОВ - отопление и вентиляция.
