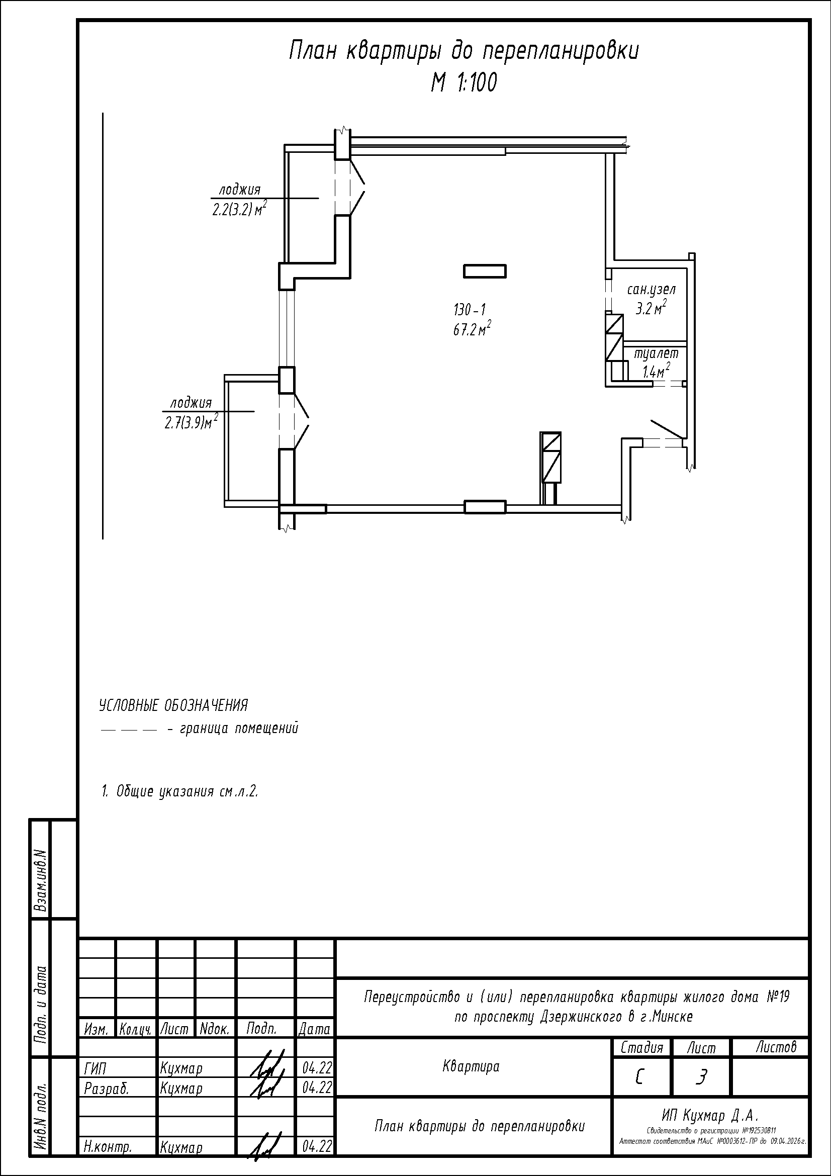
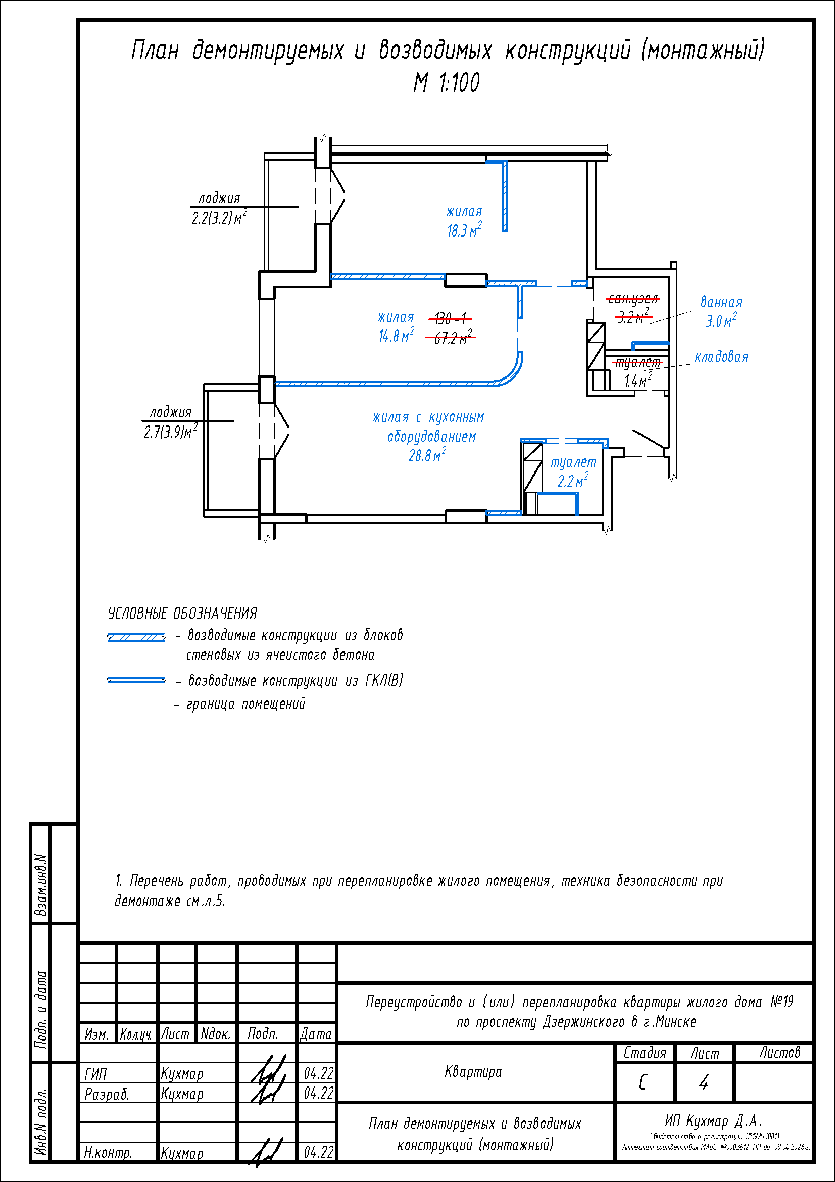
Перепланировка квартиры по пр-ту Дзержинского, 19 в ЖК «Гранд Хаус»
Пожелания заказчика:
- Разделение общего помещения жилой с кухонным оборудованием на две жилые и жилую с кухонным оборудованием, коридор;
- Объединение существующих санузла и туалета в санузел;
- Увеличение санузла за счет коридора (согласно строительной документации от застройщика) более, чем на 25%;
- Перенос дверного проема входной двери в квартиру.
Нами были разработаны следующие разделы проектной документации для согласования в исполкоме:
- АС - архитектурно-строительные решения.
