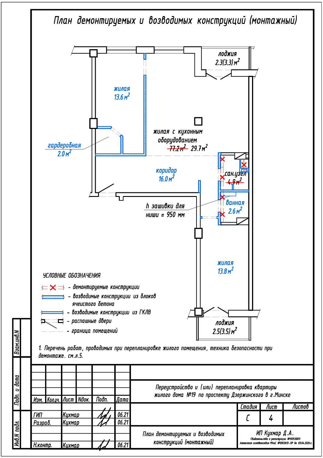
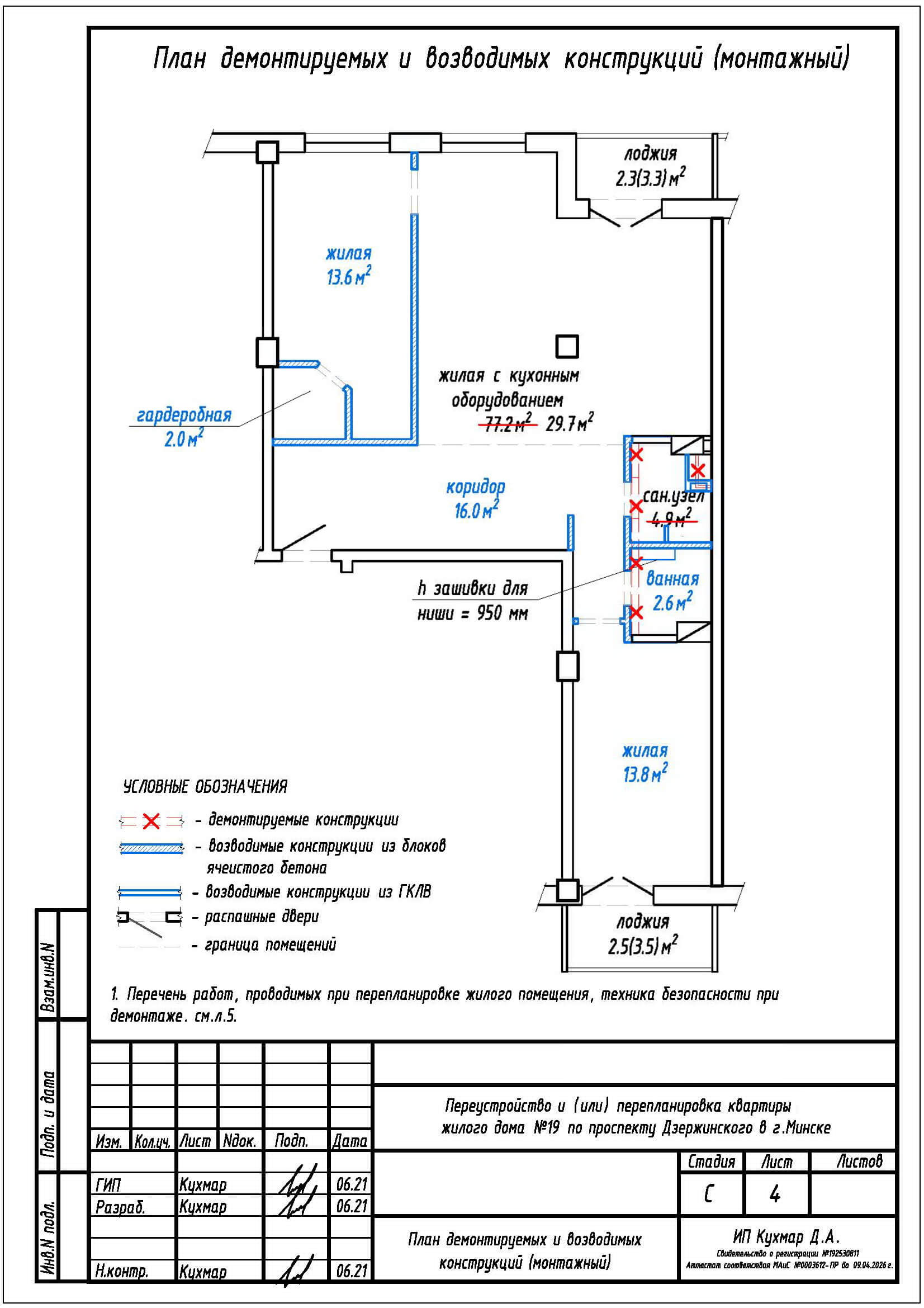
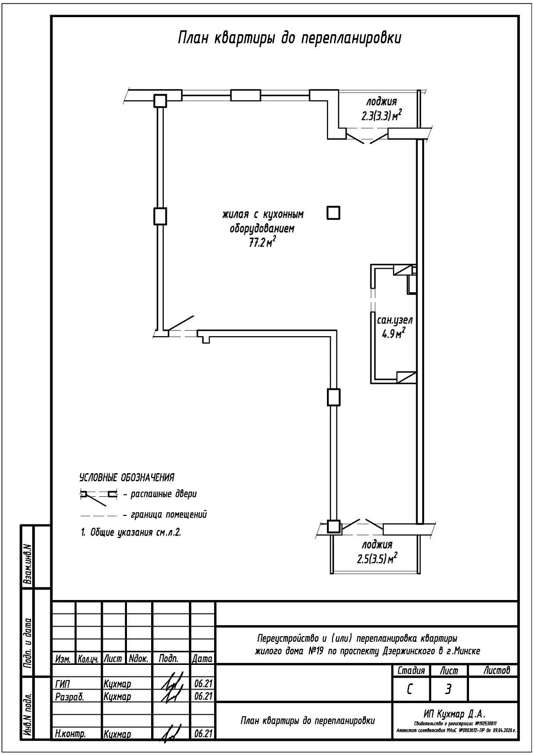
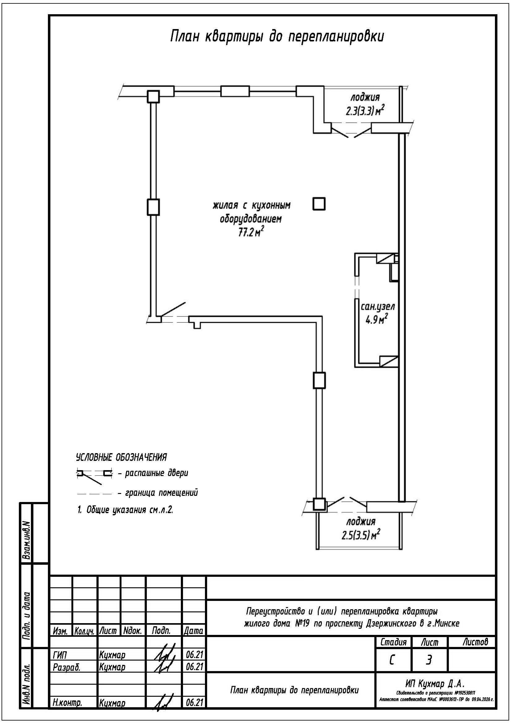
Перепланировка квартиры по пр-ту Дзержинского, 19 в ЖК «Гранд Хаус»
Пожелания заказчика:
- Разделение общего помещения жилой с кухонным оборудованием на две жилые и жилую с кухонным оборудованием, гардеробную и коридор;
- Разделение санузла на санузел и ванную;
- Увеличение площади санузла и ванной за счет жилой (не более 25%).
Нами были разработаны следующие разделы проектной документации для согласования в исполкоме:
- АС - архитектурно-строительные решения.
