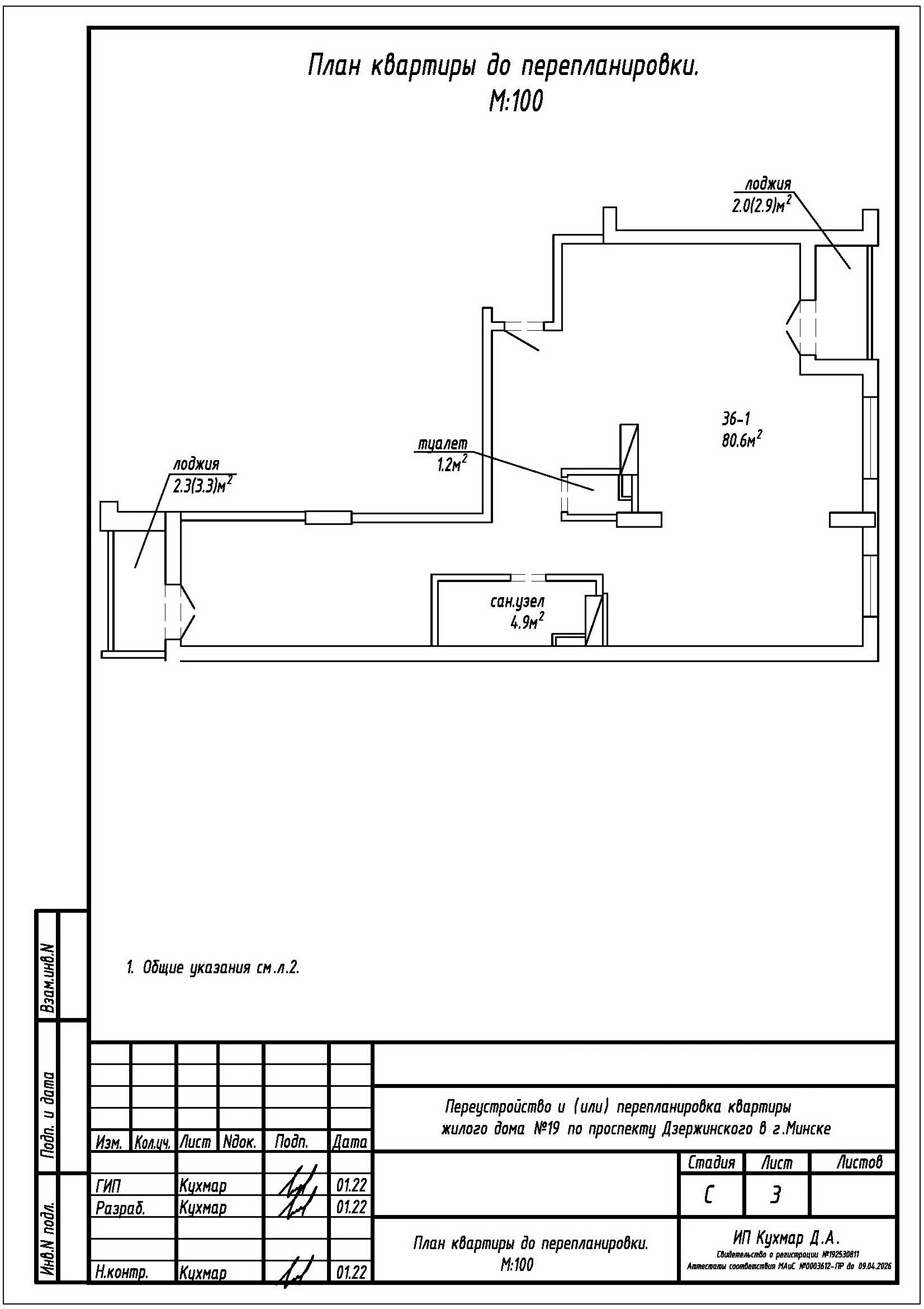
Перепланировка квартиры по пр-ту Дзержинского, 19 в ЖК «Гранд Хаус»
Пожелания заказчика:
- Разделение общей жилой с кухонным оборудованием на жилую с кухонным оборудованием, две жилые, гардеробную и коридор;
- Изменение габаритов туалета;
- Смена направления открывания входной двери;
- Устройство перегородки на части площади существующего санузла и устройство зашивки из ГКЛ.
Нами были разработаны следующие разделы проектной документации для согласования в исполкоме:
- АС - архитектурно-строительные решения.
