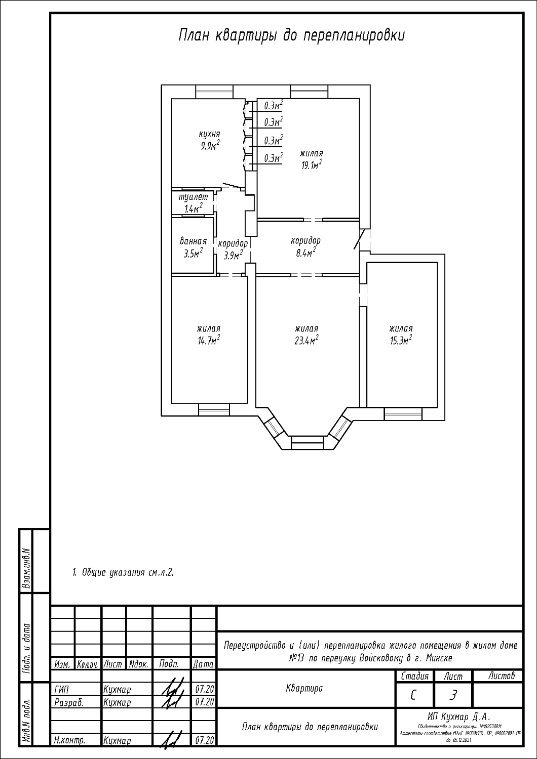
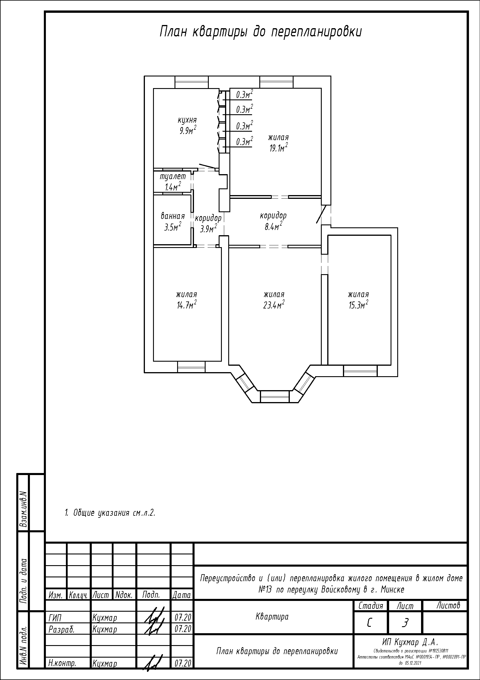
Перепланировка квартиры по переулку Войсковому, 12
Пожелания заказчика:
- Устройство санузла за счет туалета, части коридора и части площади ванной;
- Устройство гардеробной за счет части площади туалета и части площади жилой комнаты;
- Демонтаж перегородок между коридором 8.4 м2 и жилыми комнатами и возведение новых;
- Закладка дверного проема входа на кухню и устройство нового со стороны жилой комнаты с демонтажем встроенных шкафов и монтажом дверного блока в образованный проем.
Нами были разработаны следующие разделы проектной документации для согласования в исполкоме:
- АС - архитектурно-строительные решения.
