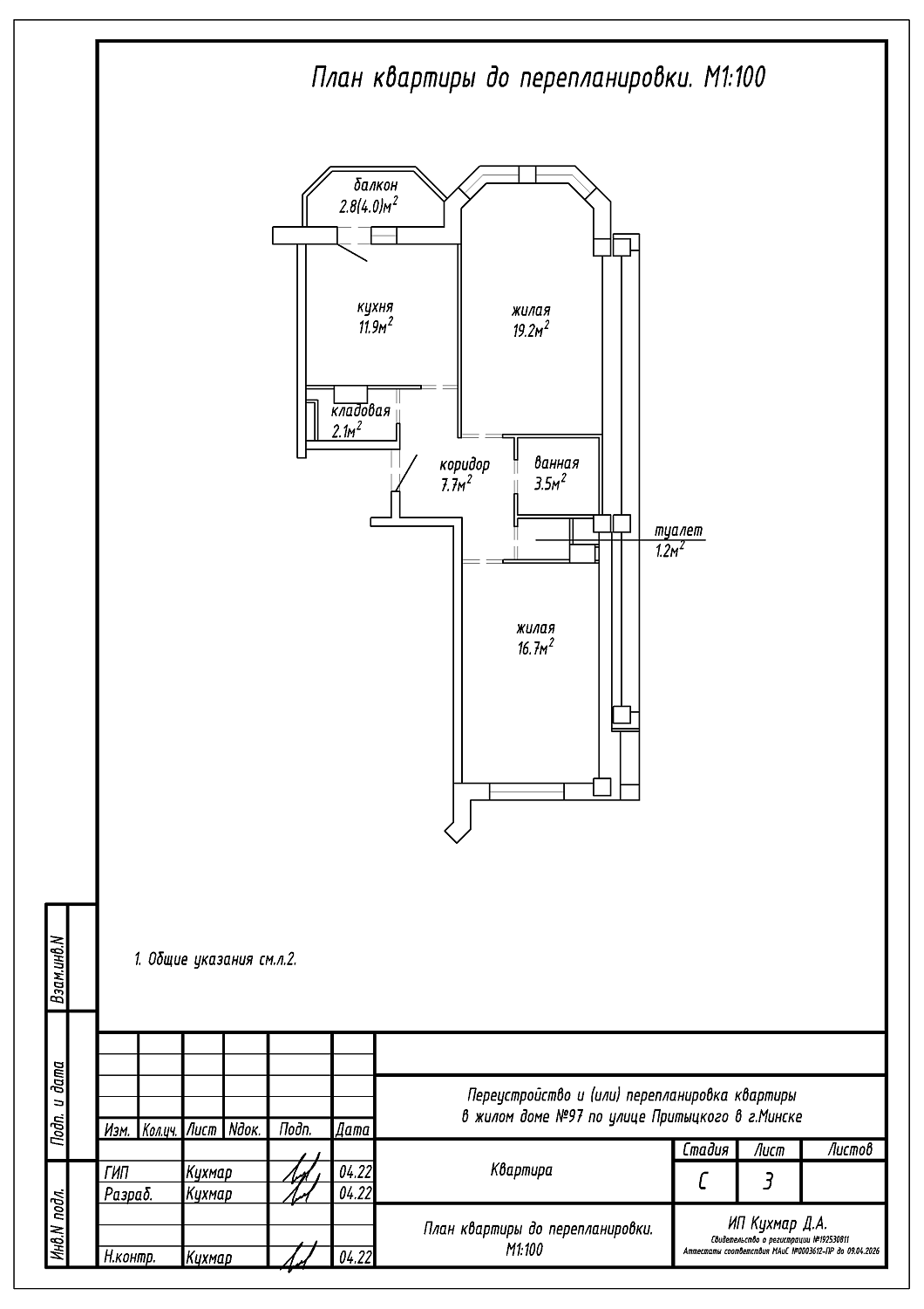
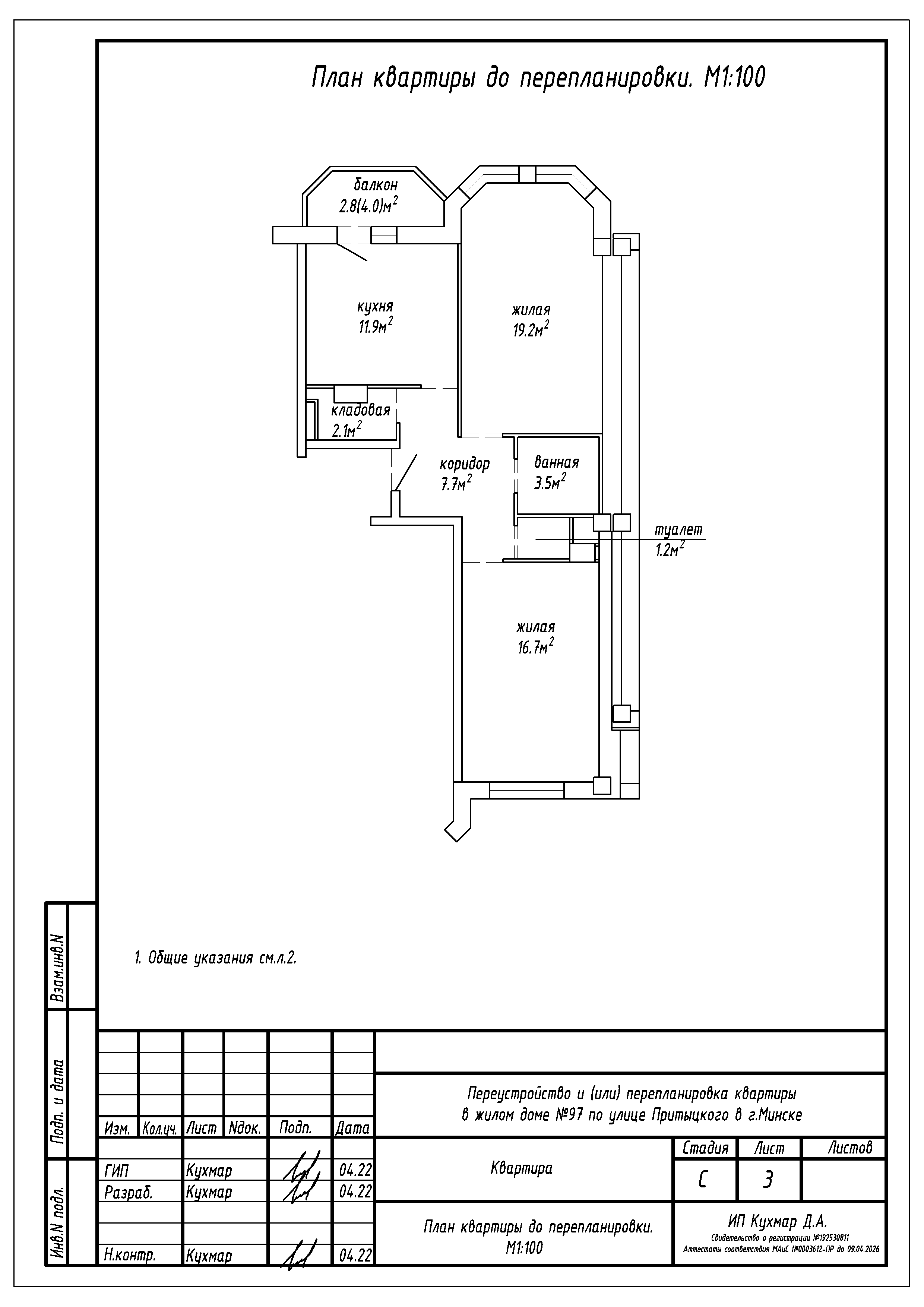
Перепланировка квартиры по ул. Притыцкого, 97 в г.Минске
Пожелания заказчика:
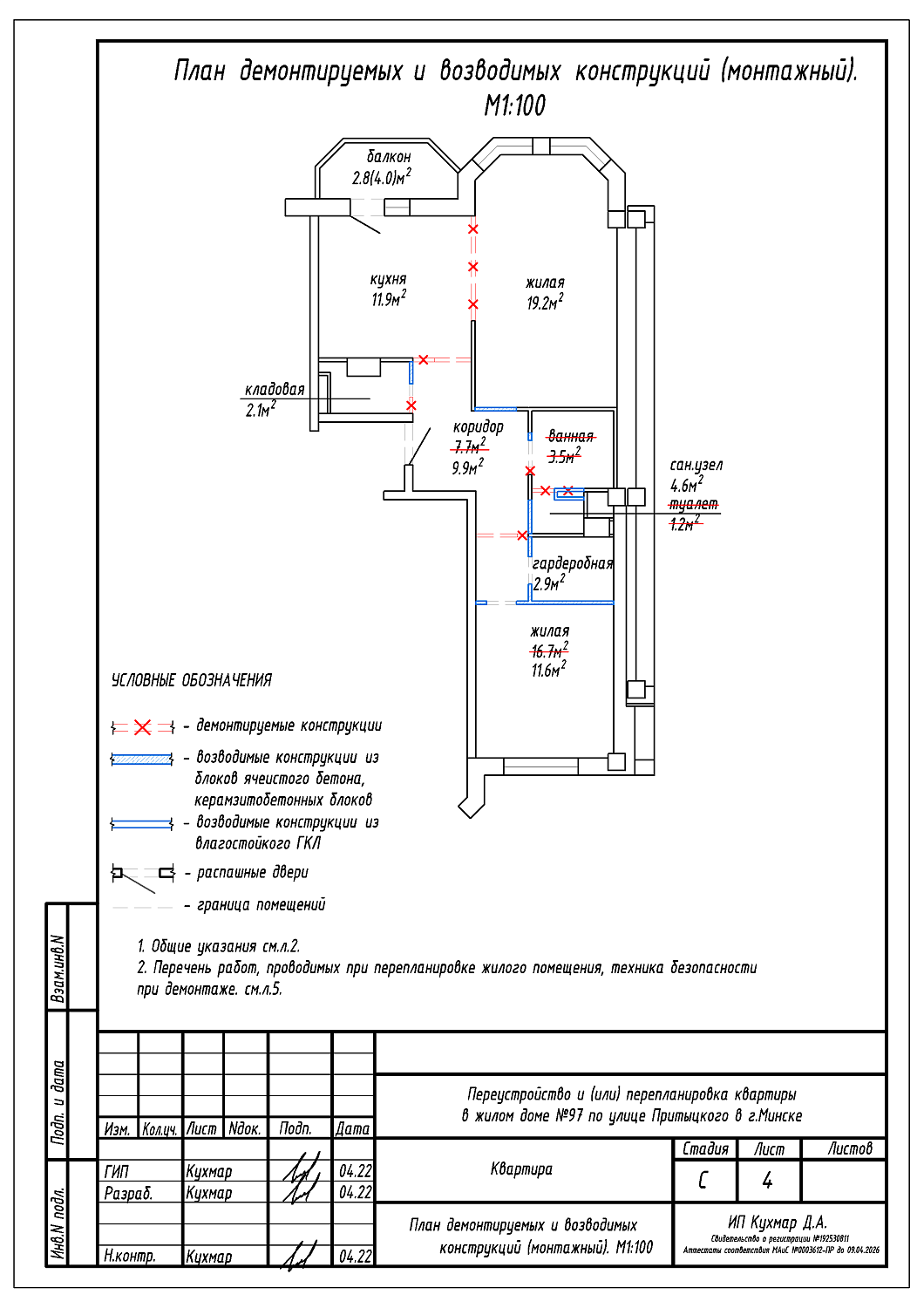
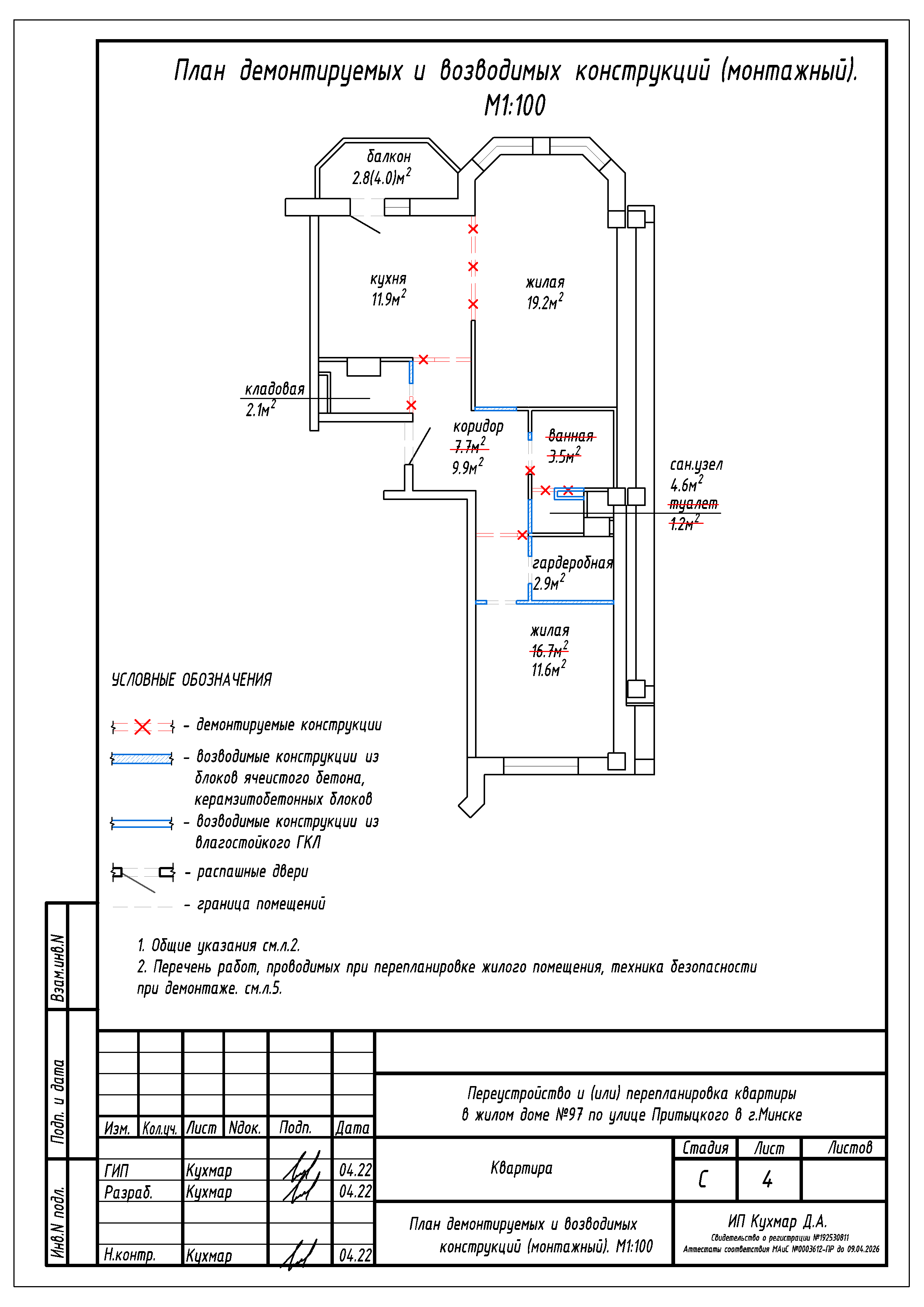
- Перенос дверного проема в перегородке между кладовой и коридором, ванной и коридором;
- Закладка дверного проема в перегородке между туалетом и коридором, жилой и коридором;
- Демонтаж частей перегородок с дверными проемами между жилой 19.2 м2 и кухней, кухней и коридором, ванной и туалетом, жилой 16.7 м2 и коридором с последующим устройством перегородок с дверными проемами на части площади жилой 16.7м2 и туалета с целью увеличения площади коридора и устройства объединенного сан .узла и гардеробной.
Нами были разработаны следующие разделы проектной документации для согласования в исполкоме:
- АС - архитектурно-строительные решения.
