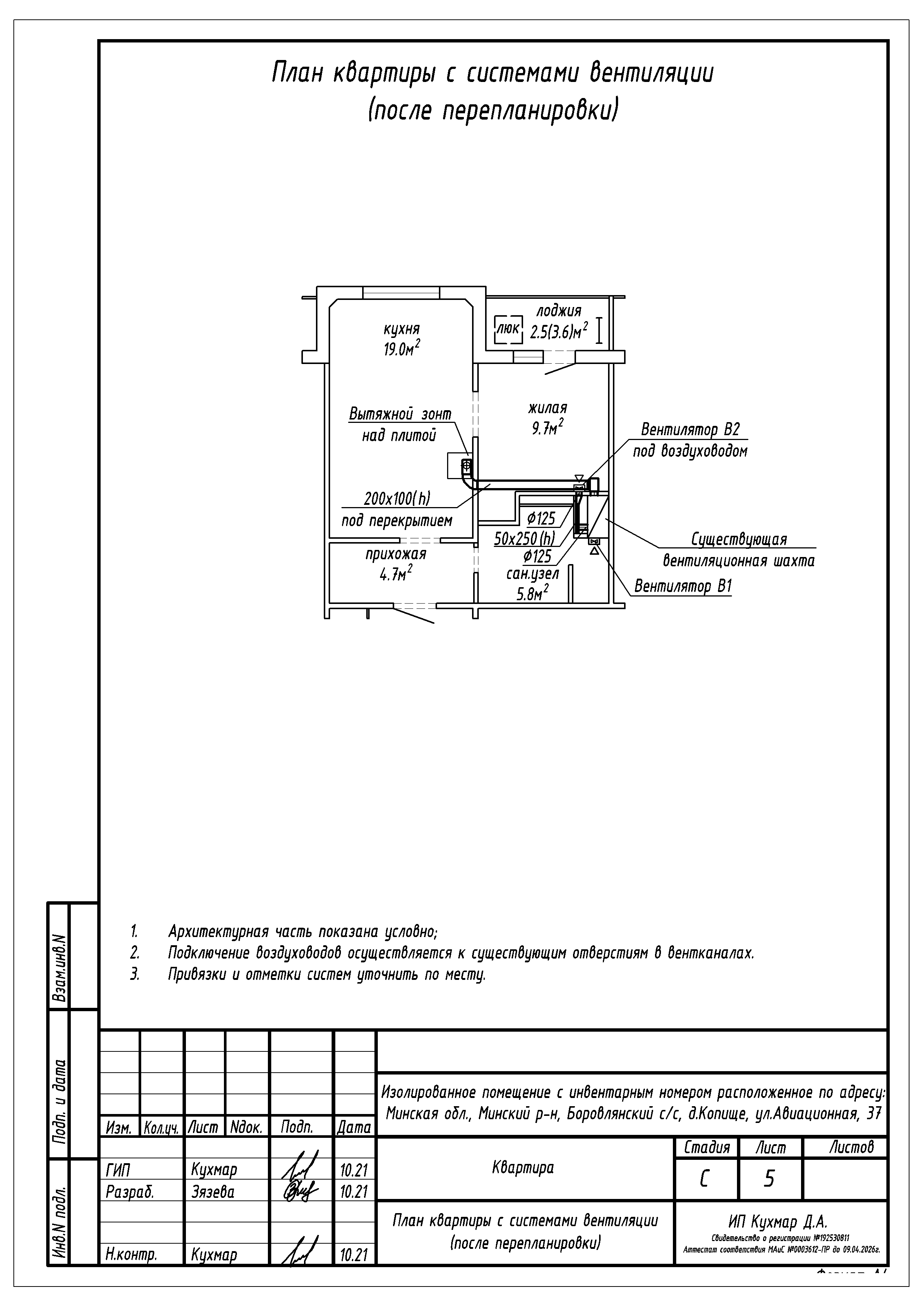
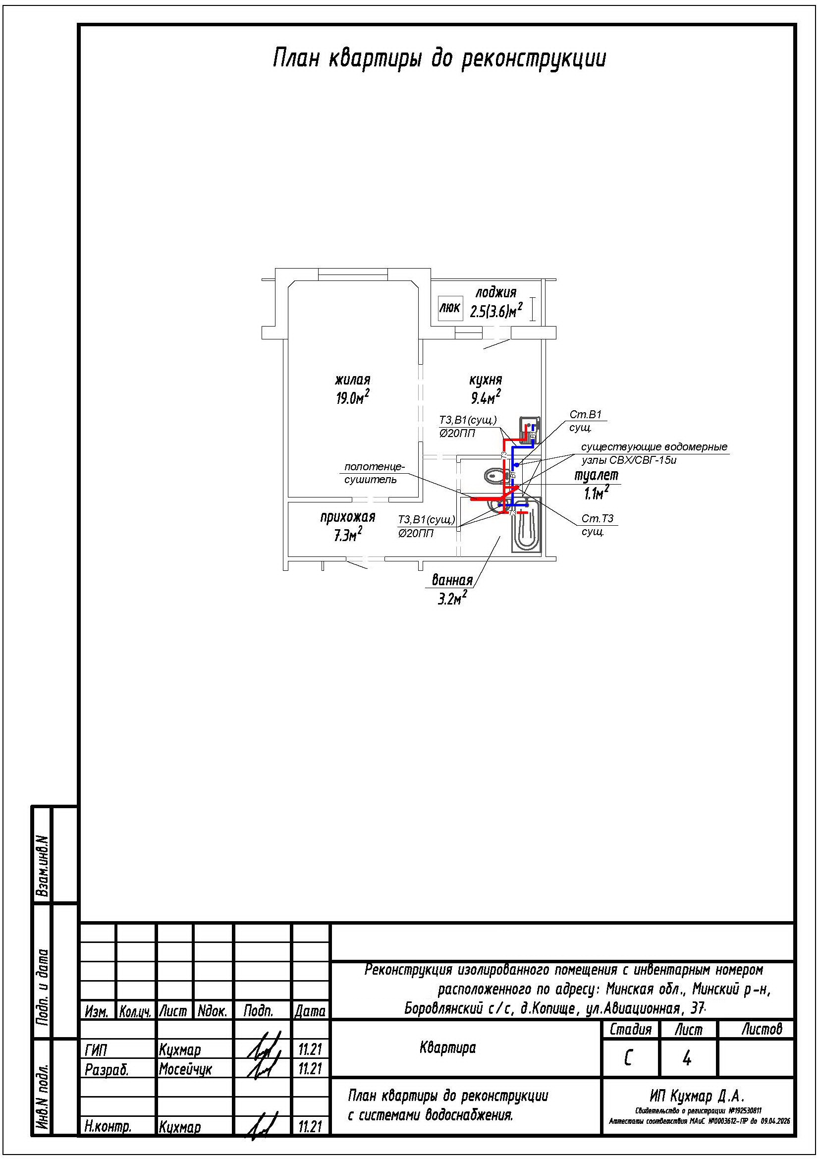
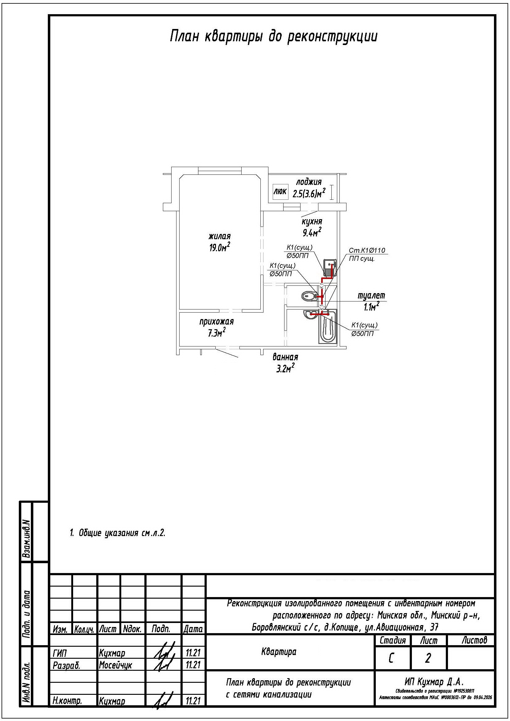
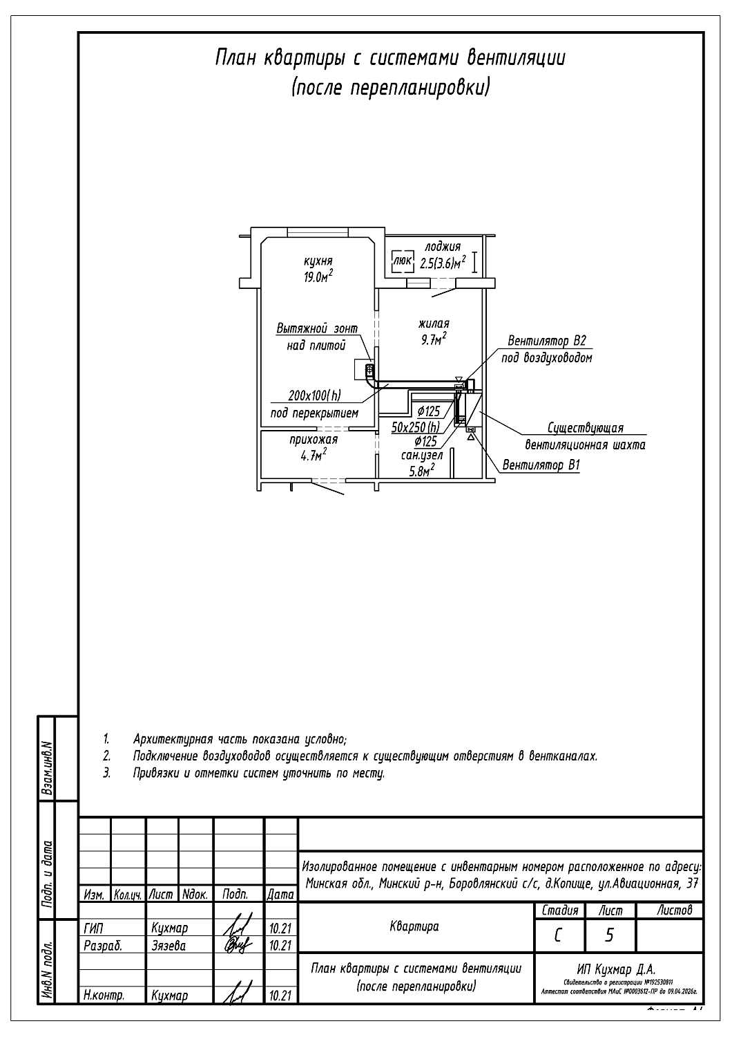
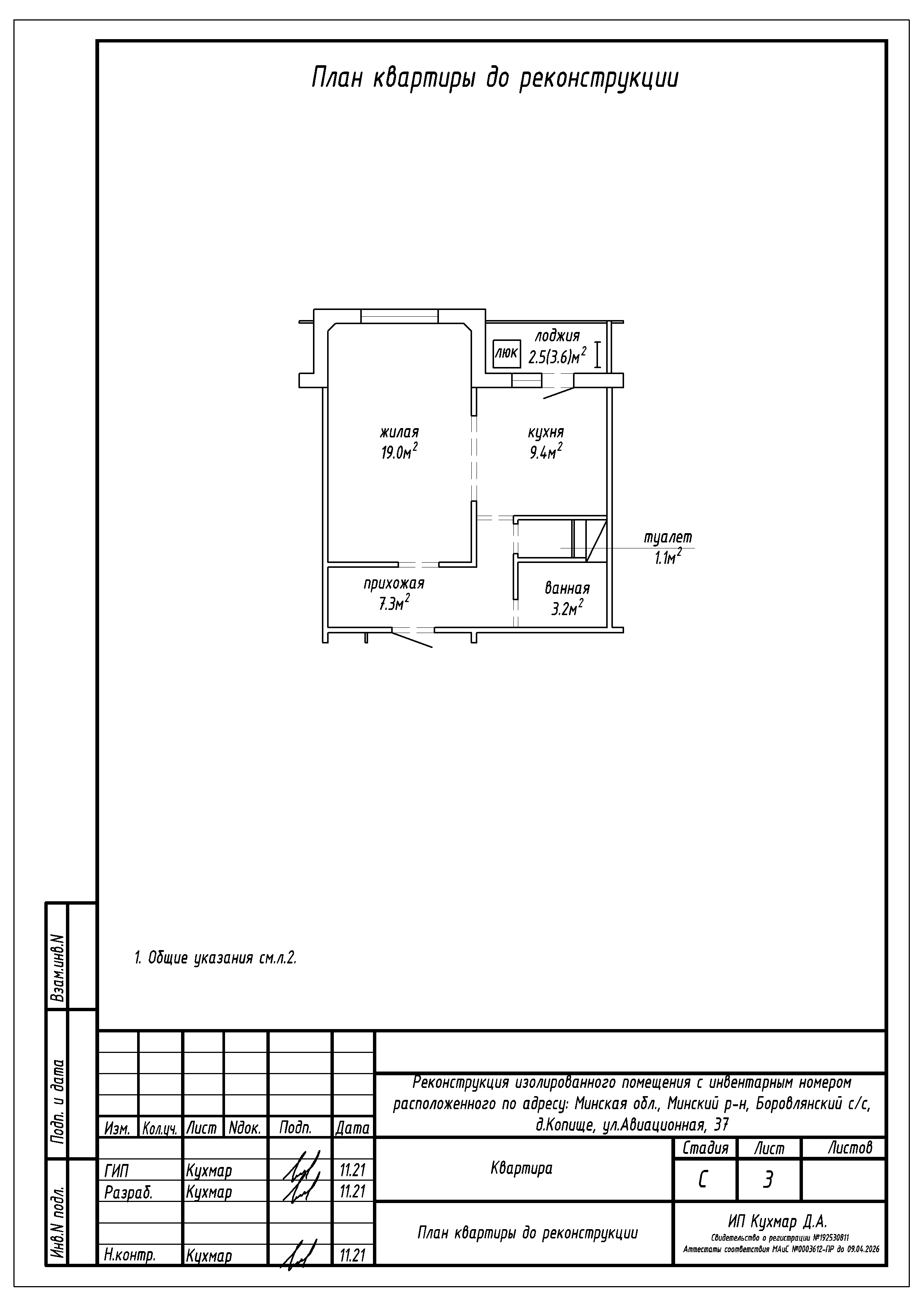
Реконструкция квартиры по ул. Авиационная, 37 в ЖК «Новая Боровая»
Пожелания заказчика:
- Перенос кухни в жилую;
- Устройство помещения "жилая с кухонным оборудование" на площади жилой;
- Объединение ванной и туалета в единый санузел;
- Закладка дверного проёма между прихожей и жилой;
- Сужение дверного проёма между кухней и жилой.
Нами были разработаны следующие разделы проектной документации для согласования в исполкоме:
- АС - архитектурно-строительные решения;
- ОВ - отопление и вентиляция;
- ВК - водоснабжение и канализация.
