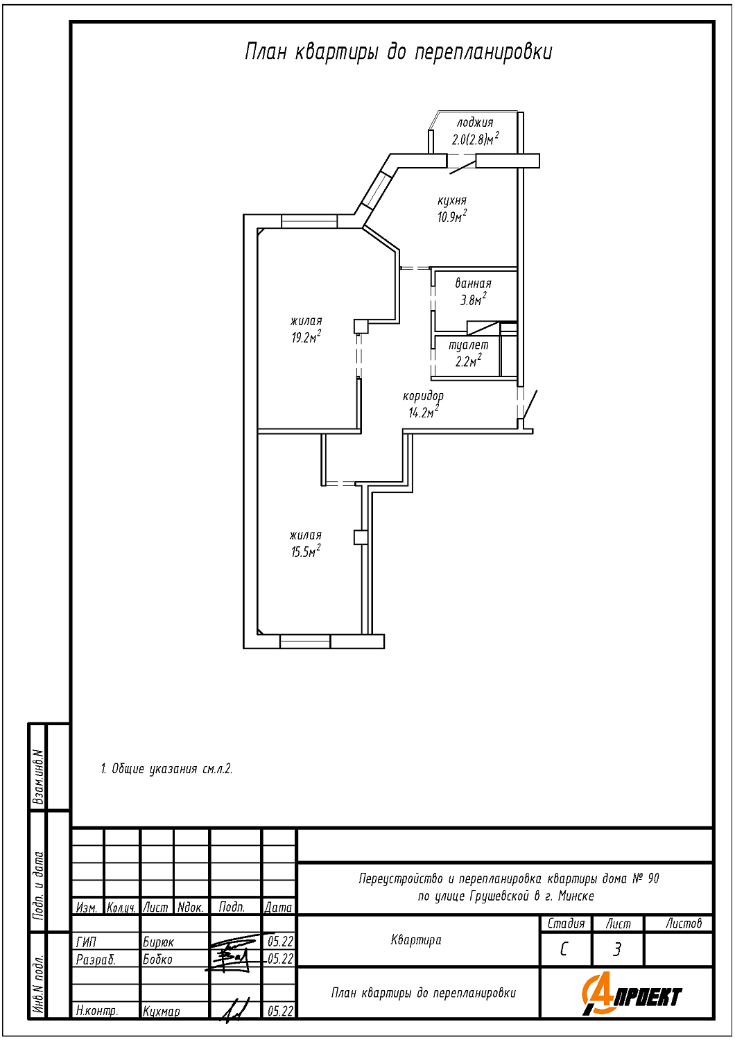
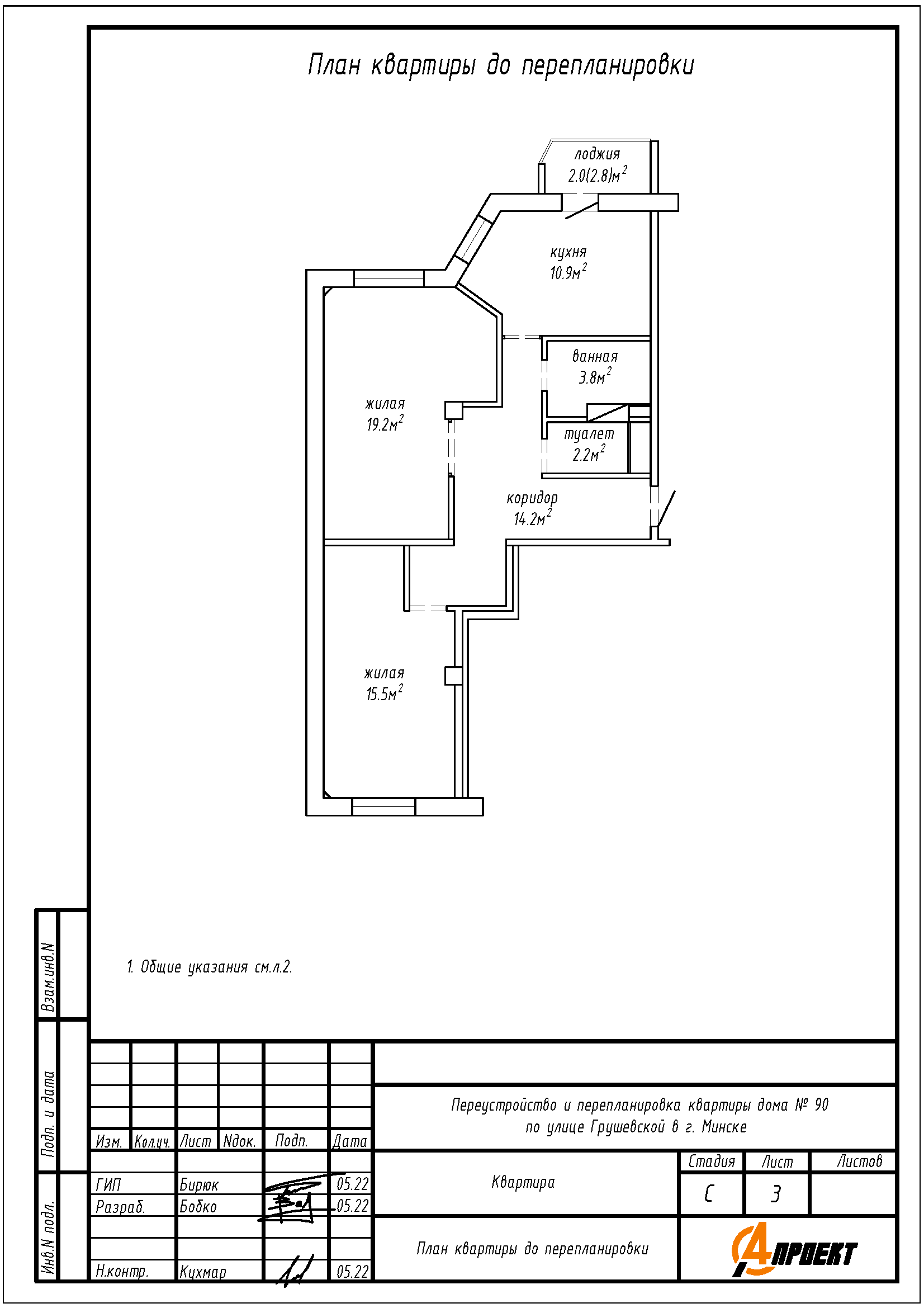
Перепланировка квартиры по ул. Грушевская, 90 в г.Минске
Пожелания заказчика:
- Демонтаж перегородки между кухней и жилой;
- Демонтаж перегородки между жилыми комнатами и коридором;;
- Изменение габаритов ванной и туалета;
- Изменение площади коридора.
Нами были разработаны следующие разделы проектной документации для согласования в исполкоме:
- АС - архитектурно-строительные решения.
