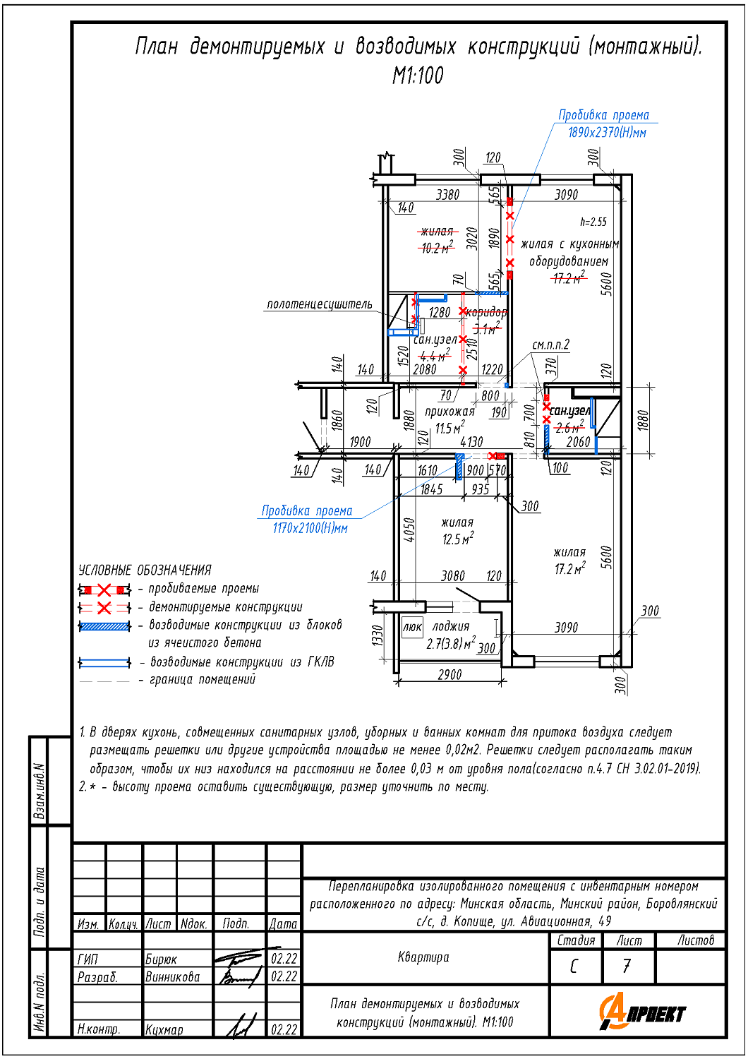
Перепланировка квартиры по ул. Авиационная, 49 в ЖК «Новая Боровая»
Пожелания заказчика:
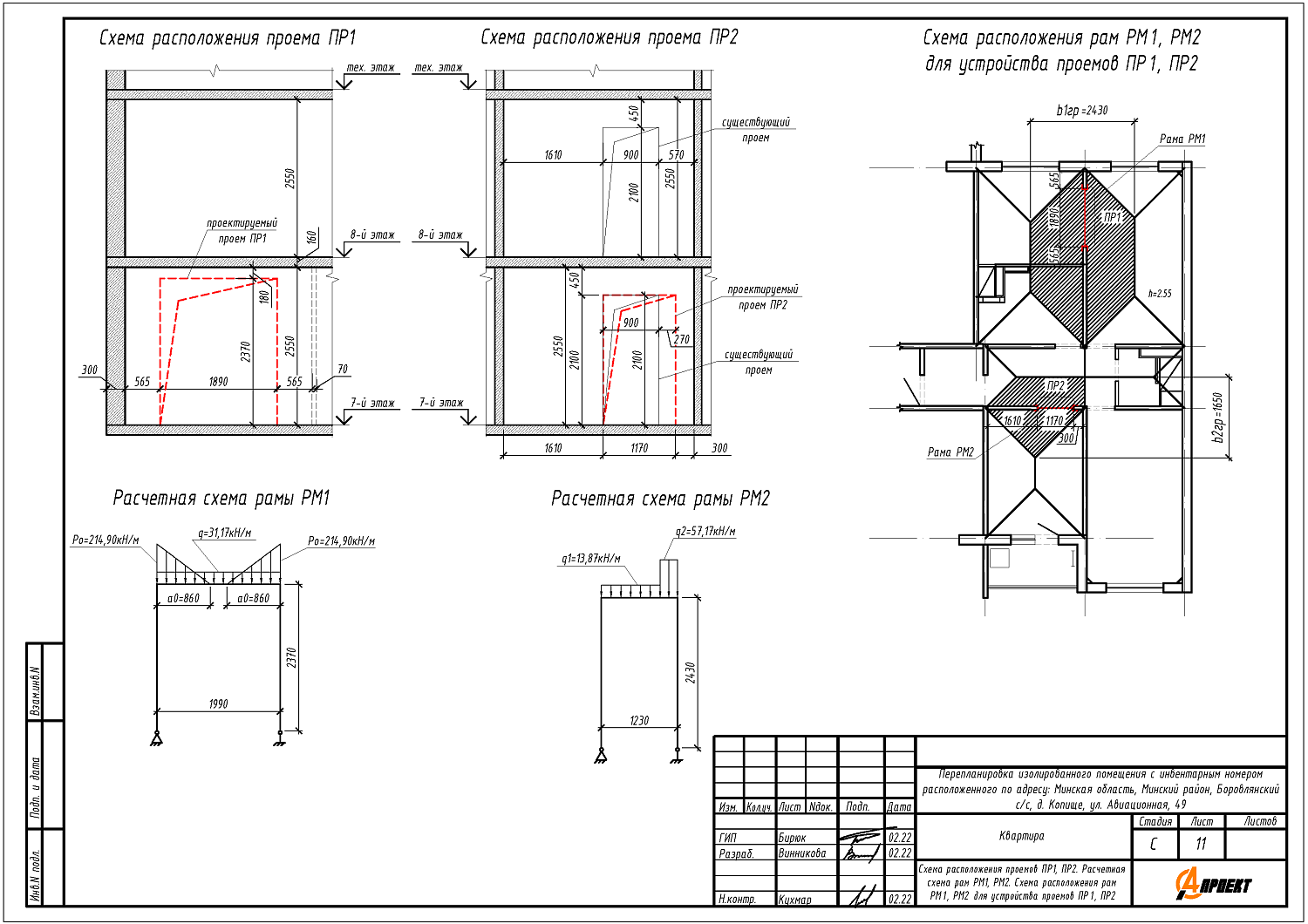
- Устройство дверного проёма в несущей стене между жилой и жилой с кухонным оборудованием;
- Смещение дверного проёма между прихожей и жилой;
- Смещение дверного проёма между санузлом и прихожей.
Нами были разработаны следующие разделы проектной документации для согласования в исполкоме:
- АС - архитектурно-строительные решения.
