Перепланировка квартиры по ул. Авиационная, д. 49 ЖК «Новая Боровая»
Проектом предусматриваются следующие работы:
- Устройство дверного проёма в несущей стене между жилой и жилой с кухонным оборудованием;
- Смещение дверного проёма между прихожей и жилой;
- Смещение дверного проёма между санузлом и прихожей.
Нами были разработаны следующие разделы проектной документации для согласования в исполкоме:
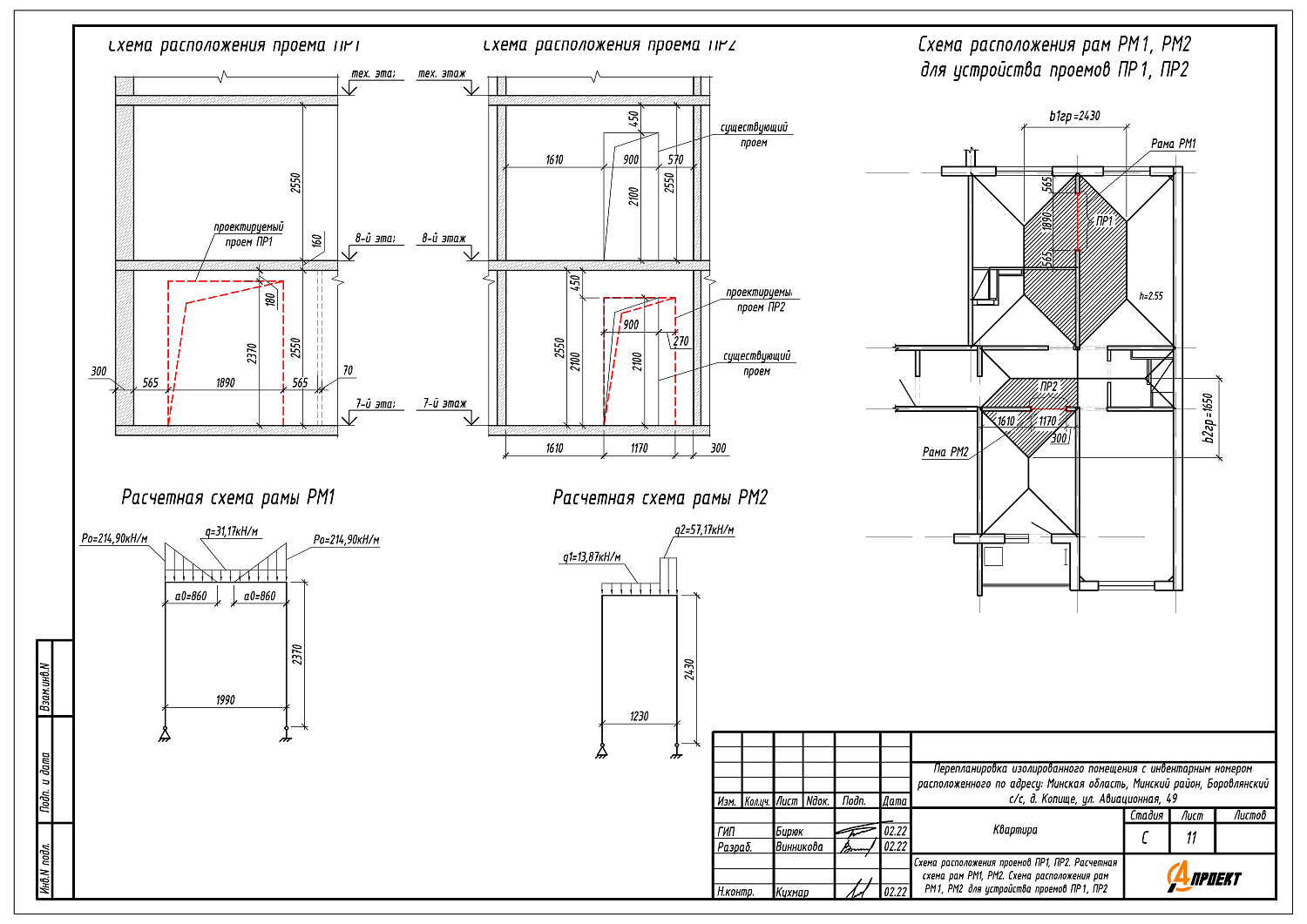
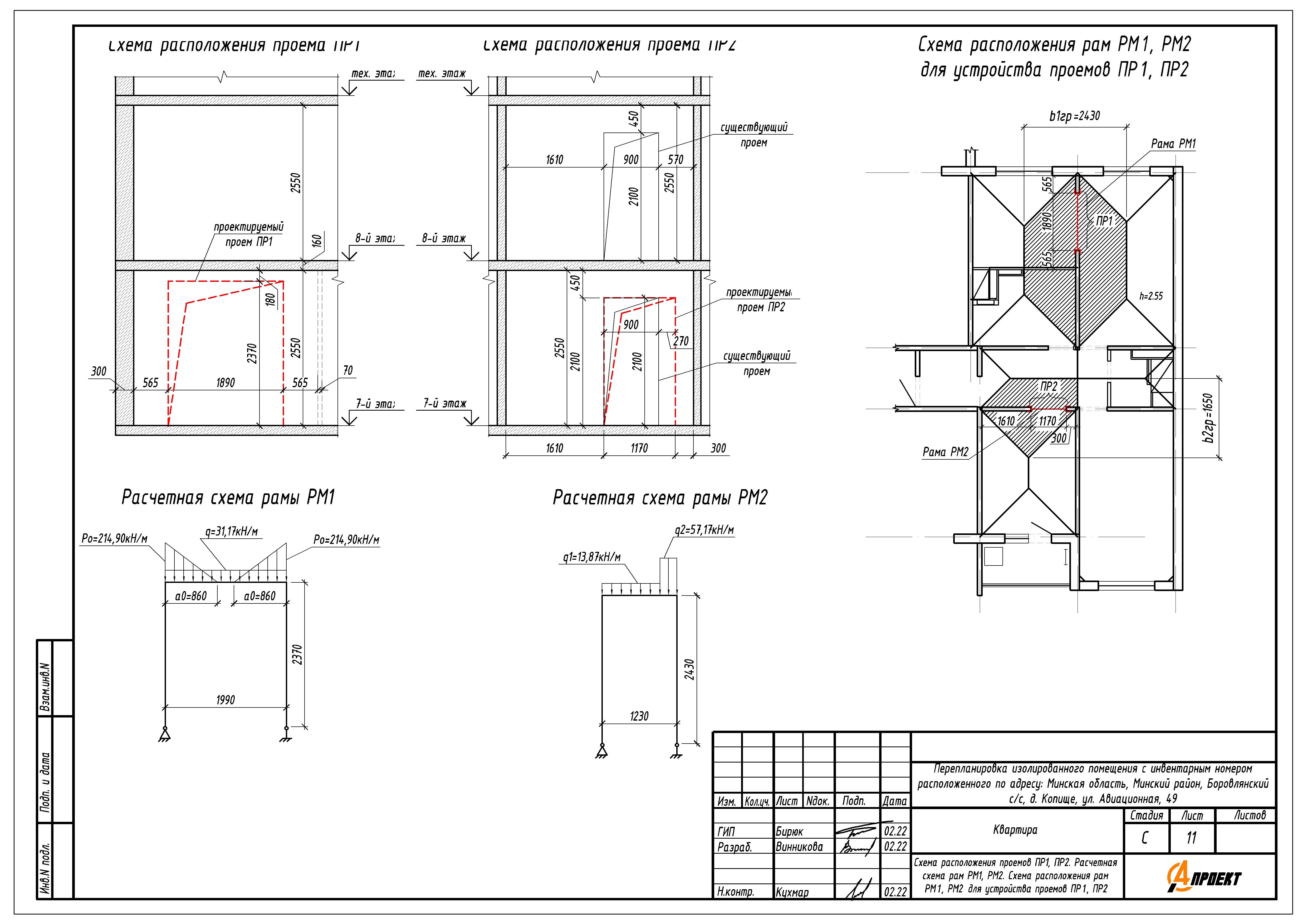
- АС- архитектурно-строительные решения (проём в несущей стене).
Состав рабочих чертежей основного комплекта раздела АС:
- План квартиры до перепланировки;
- План демонтируемых и возводимых конструкций (монтажный);
- План квартиры после перепланировки;
- Перечень работ, проводимых при перепланировке жилого помещения;
- Схема расположения рамы РМ1 для устройства проема ПР1;
- Рама РМ1;
- Сечения и узлы;
- Спецификация элементов рамы РМ1;
- Общие указания по устройству проема ПР1.
