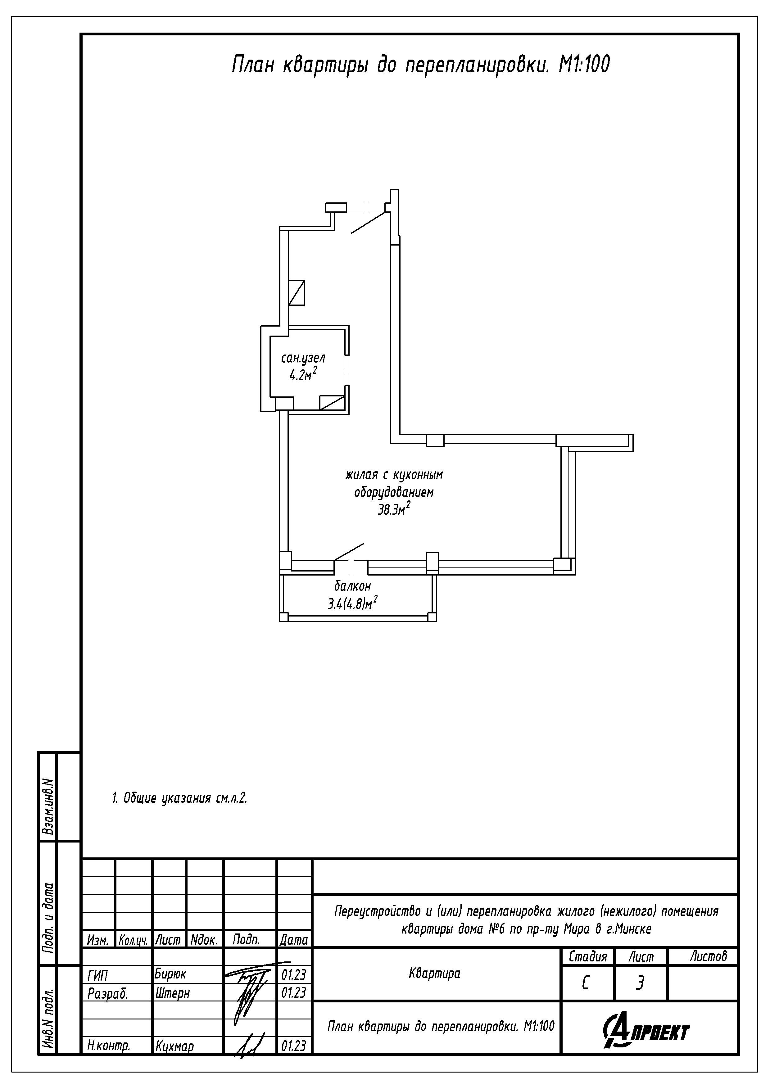
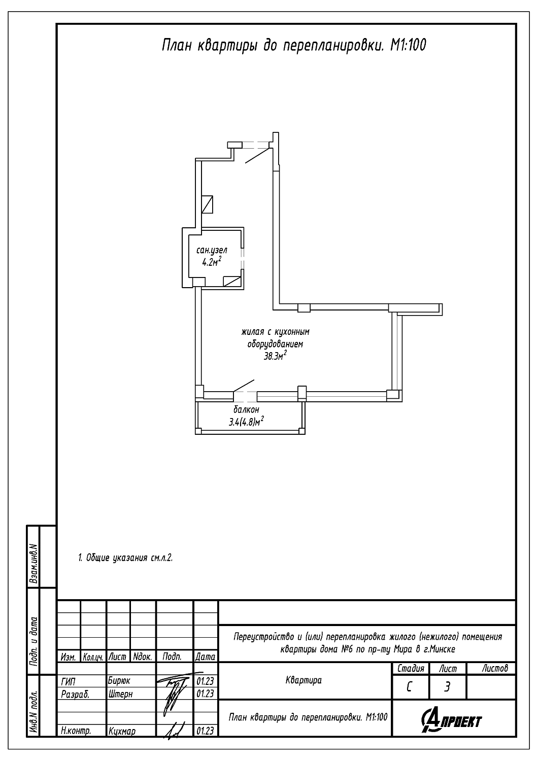
Перепланировка квартиры по пр-ту Мира, 6 в ЖК «Минск Мир»
Пожелания заказчика:
- Разделение общей жилой с кухонным оборудованием на жилую с кухонным оборудованием, жилую, гардероб и туалет;
- Устройство ванной на площади существующего санузла;
- Смена направления открывания входной двери.
Нами были разработаны следующие разделы проектной документации для согласования в исполкоме:
- АС - архитектурно-строительные решения.
