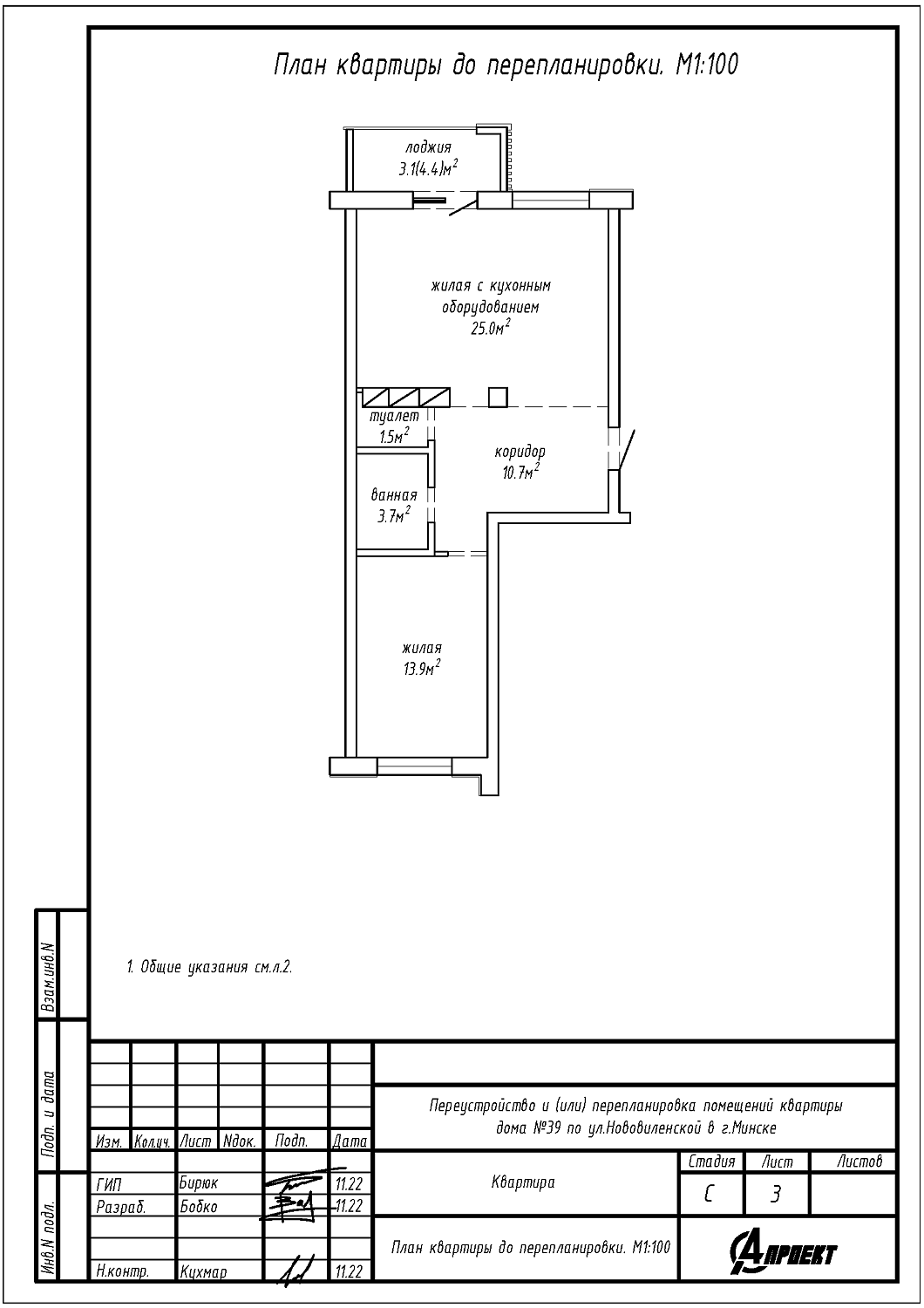
Перепланировка квартиры по ул. Нововиленская, 39 в ЖК «Левада»
Пожелания заказчика:
- Объединение ванной и туалета в единый санузел;
- Устройство перегородок на части площади жилой с кухонным оборудованием.
Нами были разработаны следующие разделы проектной документации для согласования в исполкоме:
- АС - архитектурно-строительные решения.
