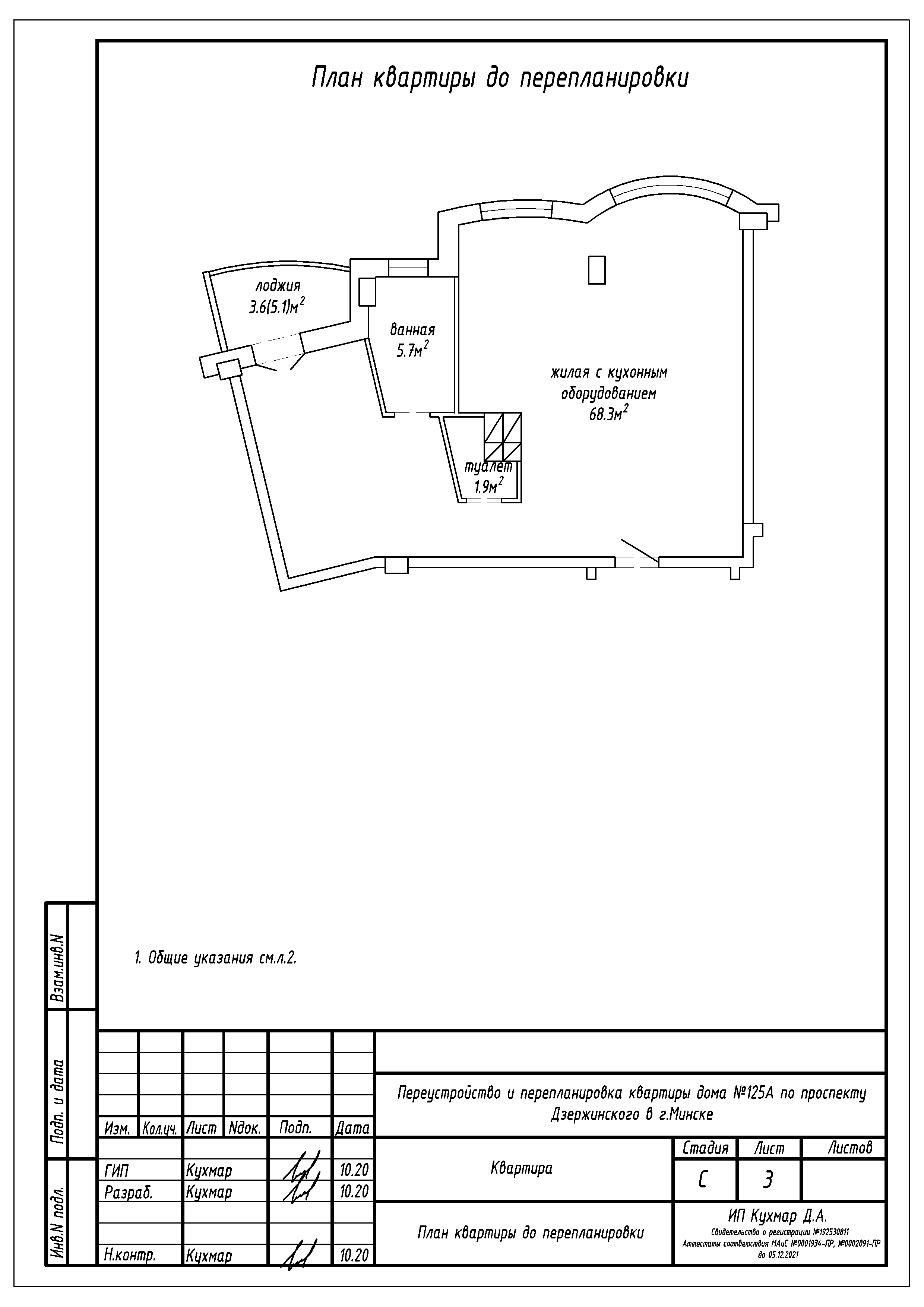
Перепланировка квартиры по пр-ту Дзержинского, 125А в ЖК «Мегаполис»
Пожелания заказчика:
- Разделение общего помещения жилой с кухонным оборудованием на жилую с кухонным оборудованием, жилую, гардеробную и коридор;;
- Устройство санузла на площади туалета;
- Увеличение санузла за счет площади коридора;
- Устройство перегородки в ванной;
- Устройство зашивок стен в жилой с кухонным оборудованием.
Нами были разработаны следующие разделы проектной документации для согласования в исполкоме:
- АС - архитектурно-строительные решения.
