Перепланировка квартиры по проспекту Дзержинского,123 (ЖК «Мегаполис») в Минске
Пожелания заказчика:
- Разделение общей жилой с кухонным оборудованием на жилую с кухонным оборудованием, две жилые комнаты, гардероб и коридор;
- Устройство ванной на части площади существующего туалета и части площади жилой с кухонным оборудованием;
- Изменение габаритов туалета;
- Устройство кладовой на площади ванной;
Нами были разработаны следующие разделы проектной документации для согласования в исполкоме:
- АС - архитектурно-строительные решения.
Состав рабочих чертежей основного комплекта раздела АС:
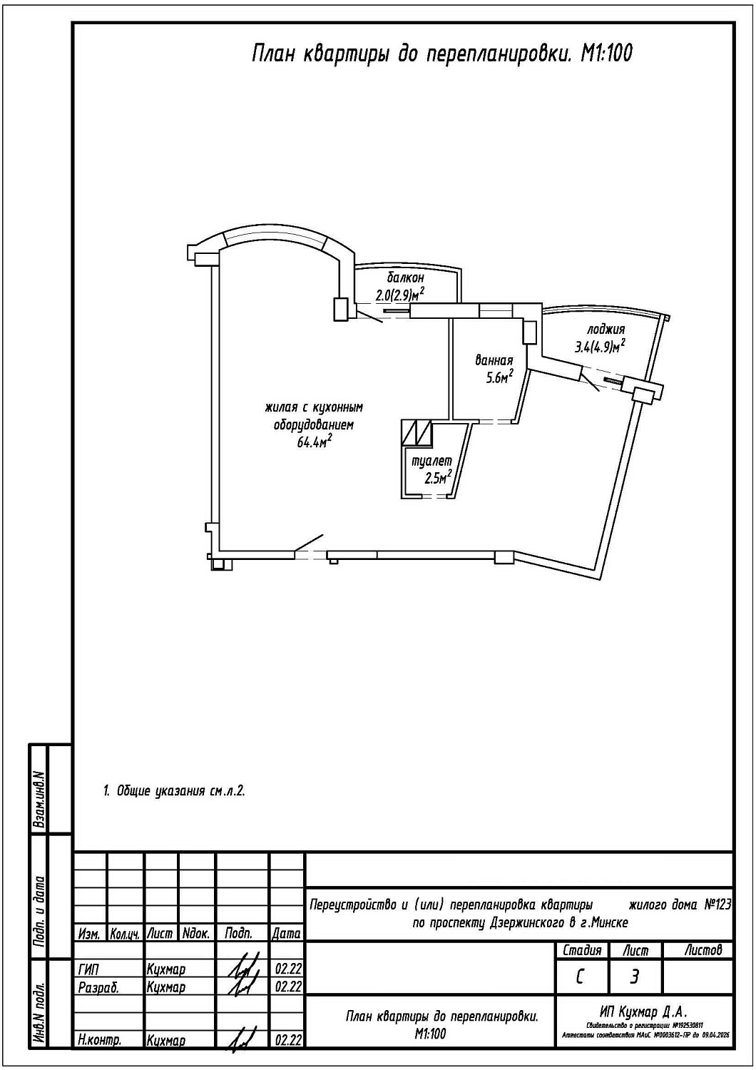
- План квартиры до перепланировки;
- План демонтируемых и возводимых конструкций (монтажный);
- План квартиры после перепланировки;
- Перечень работ, проводимых при перепланировке жилого помещения;
- Экспликация полов;
- Указания по устройству полов.
