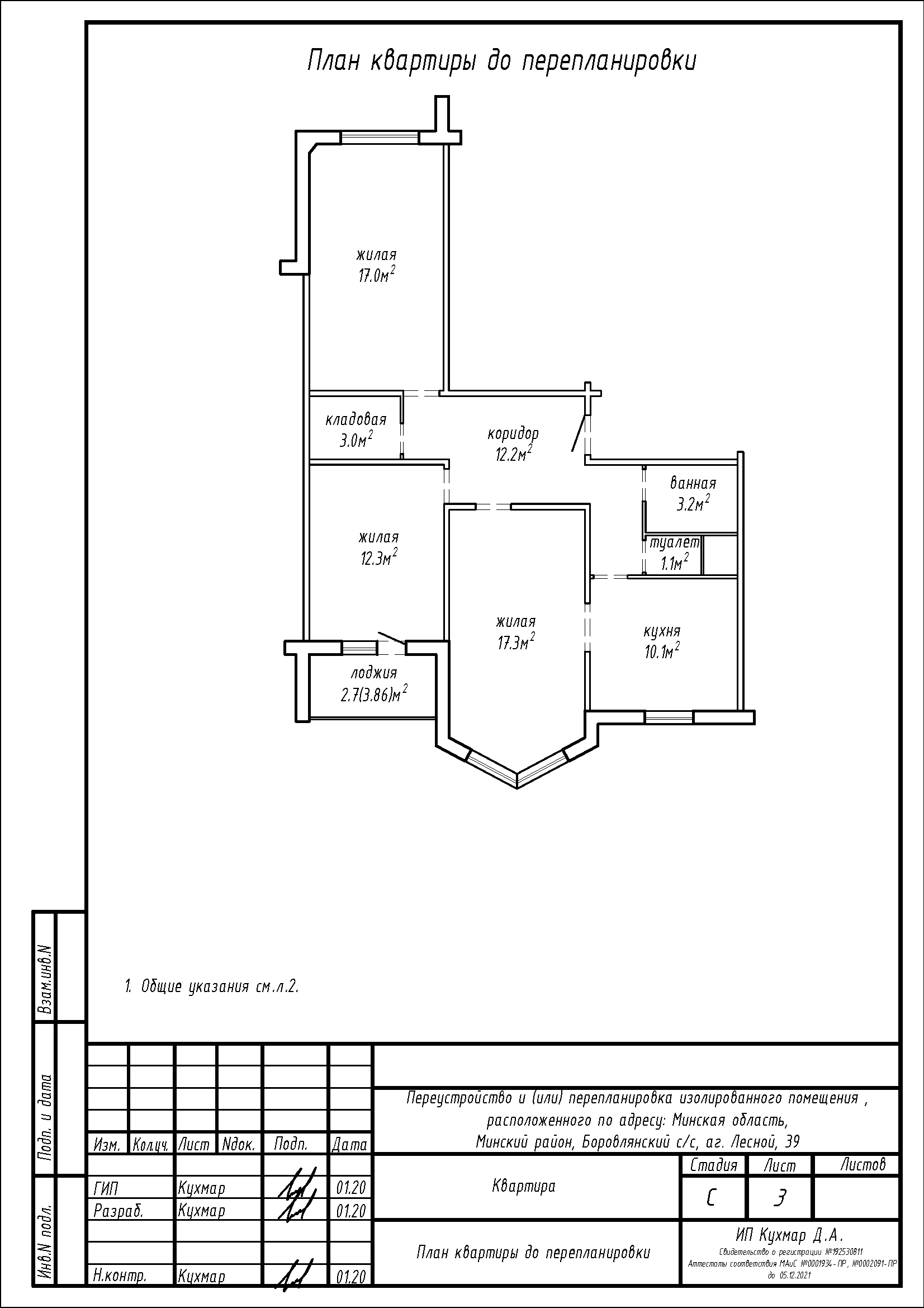
Перепланировка квартиры в аг. Лесной, 39
Пожелания заказчика:
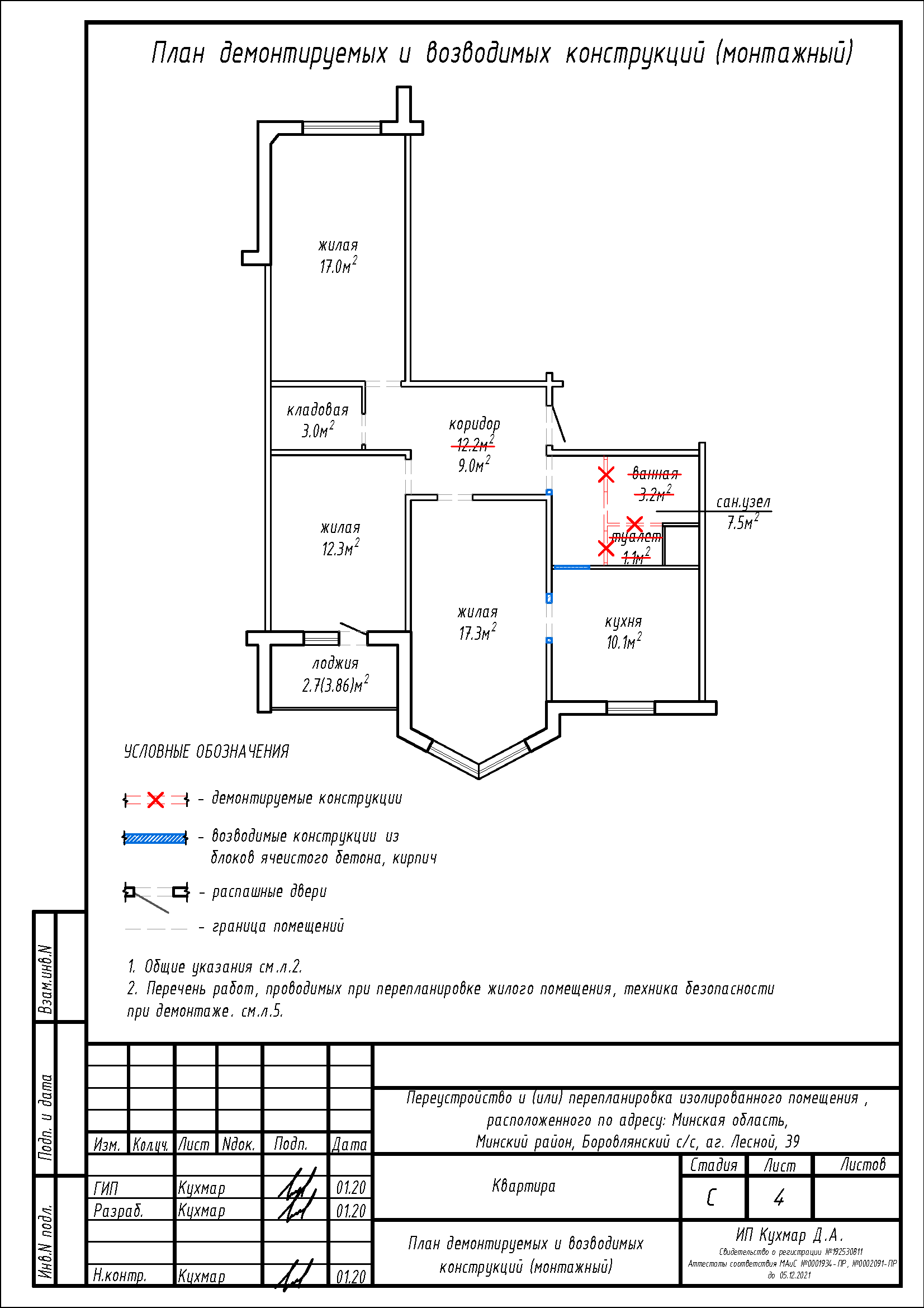
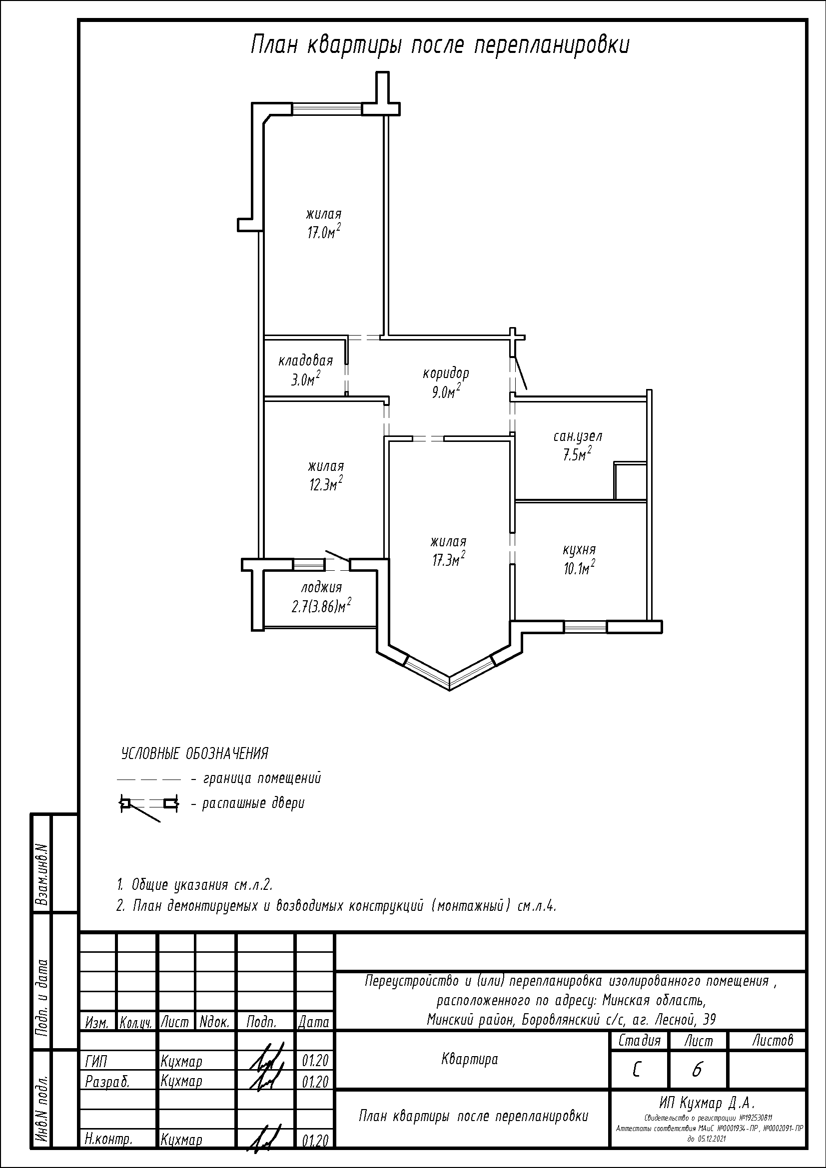
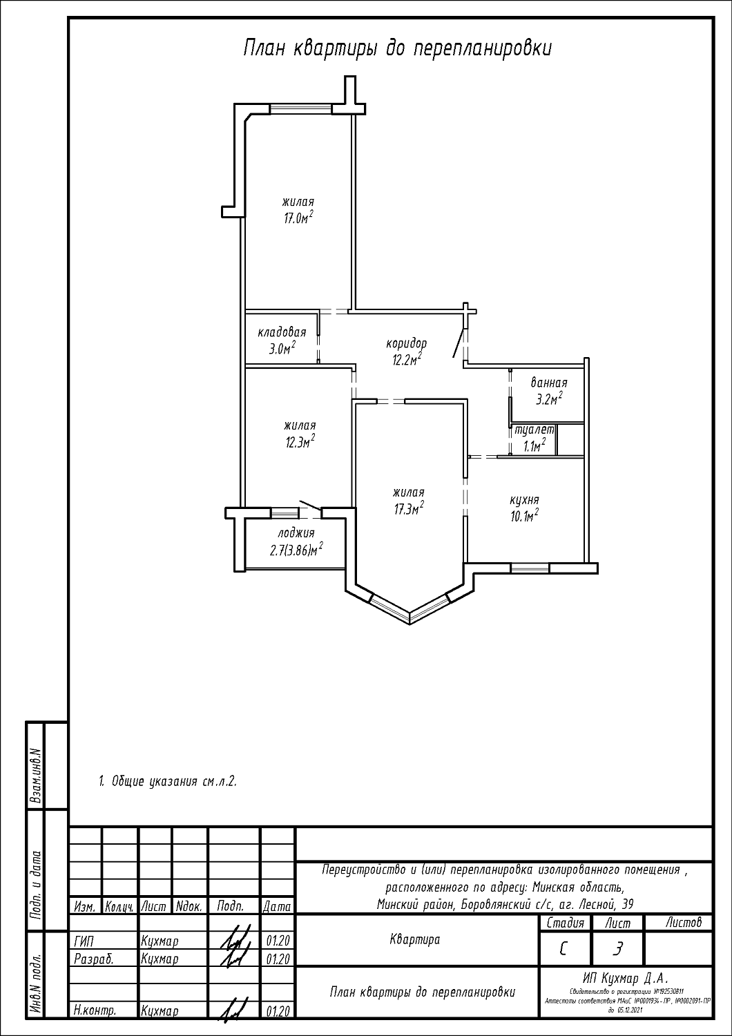
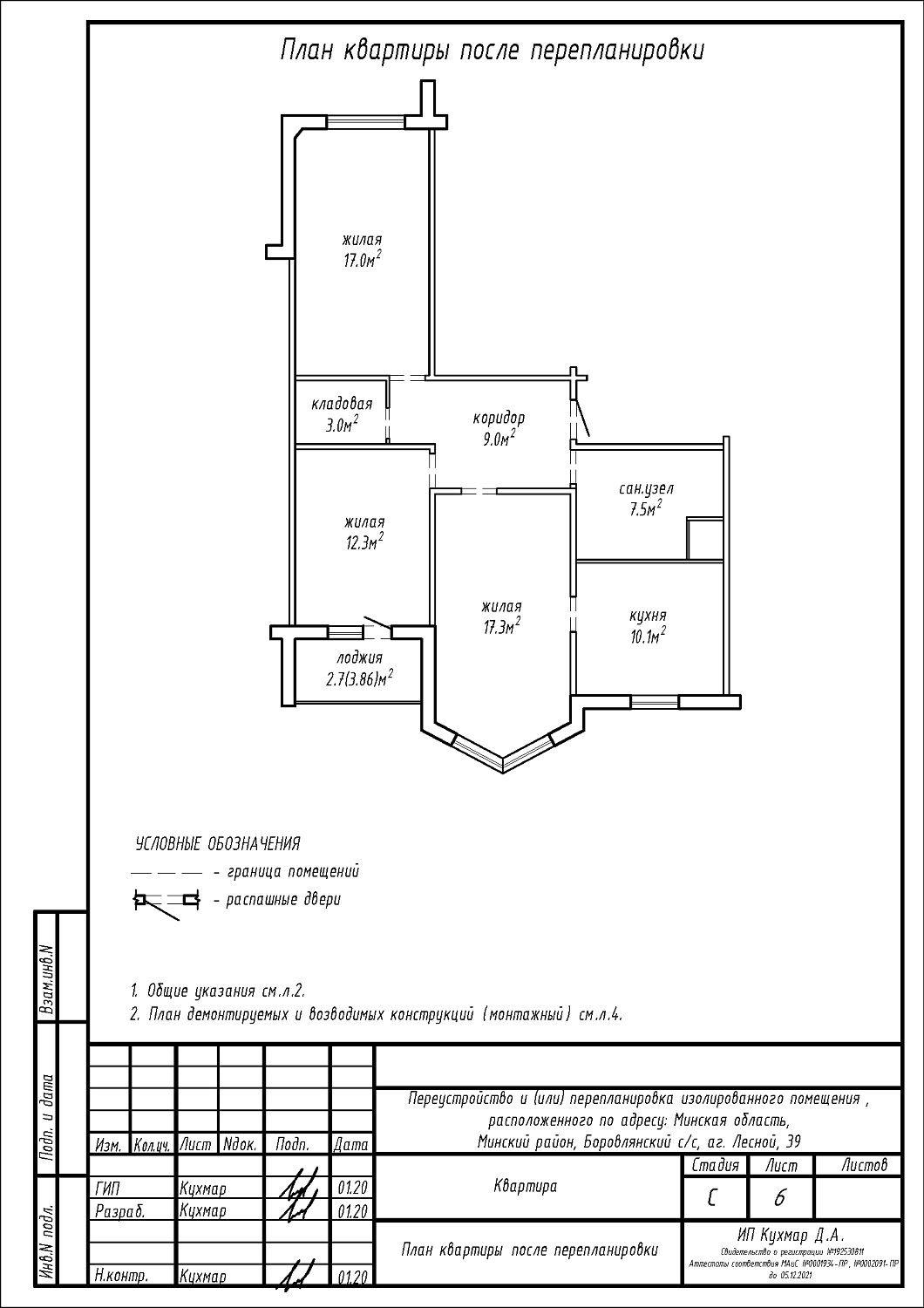
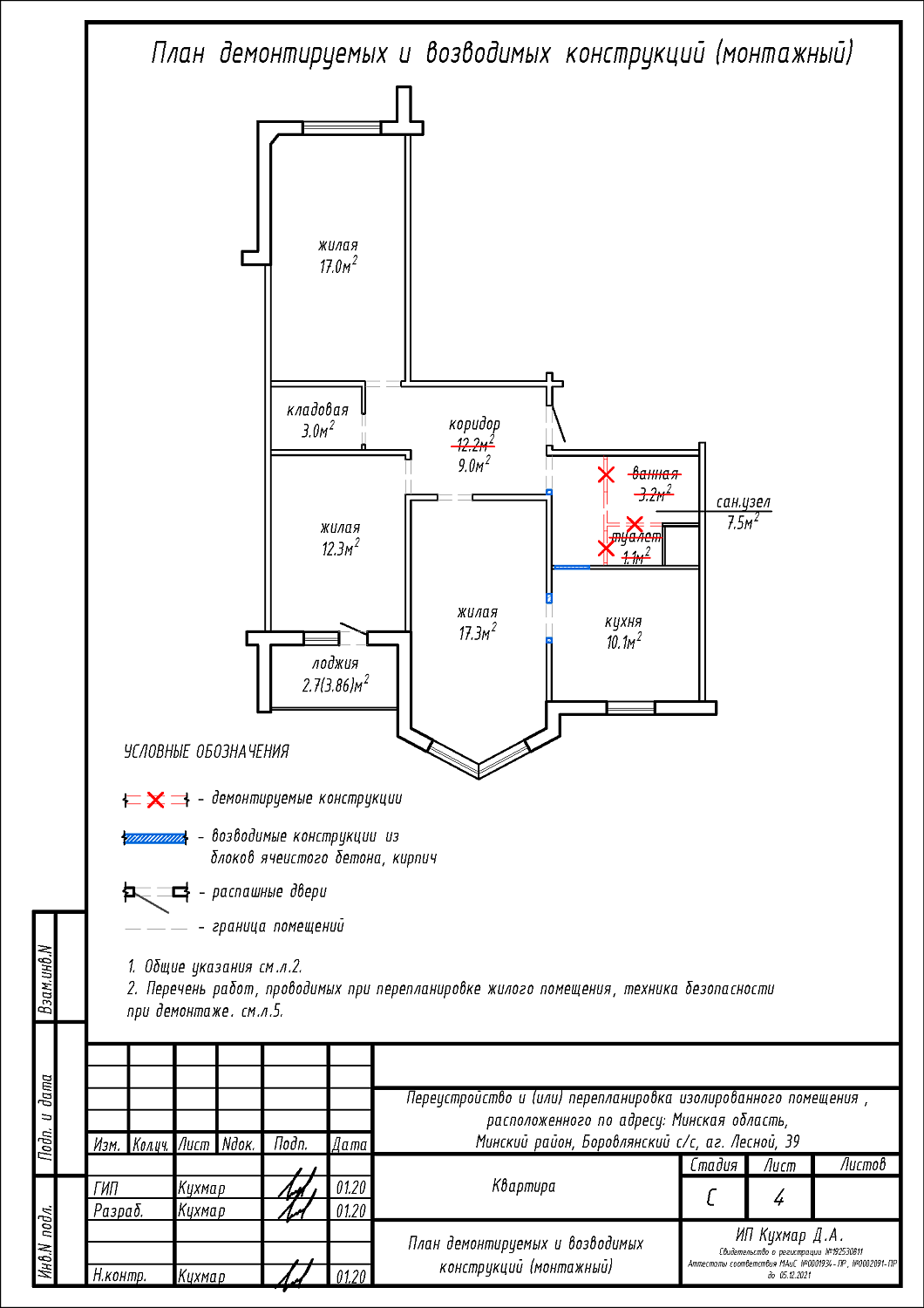
- Объединение ванной и туалета в единый санузел, с целью увеличения за счёт площади коридора;
- Закладка дверного проёма между кухней и коридором, с целью устройства дверного проёма между кухней и коридором;
- Сужение дверного проёма между коридором и новым санузлом.
Нами были разработаны следующие разделы проектной документации для согласования в исполкоме:
- АС - архитектурно-строительные решения.
