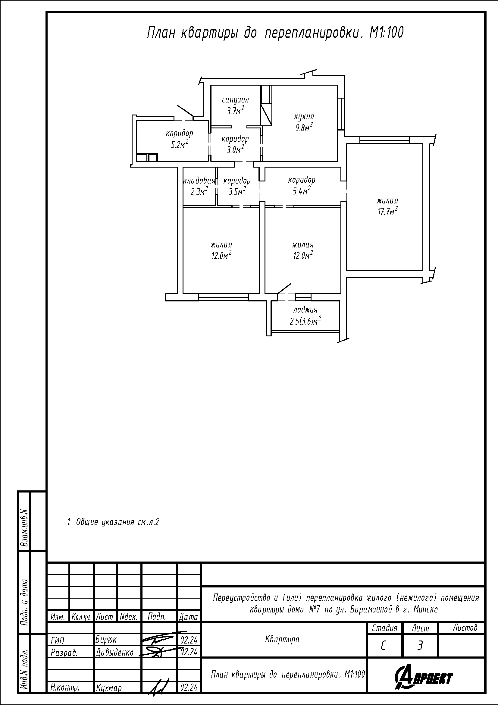
Перепланировка квартиры по улице Барамзиной, 7 в г. Минске
Пожелания заказчика:
- Демонтаж перегородок с дверным проёмом между санузлом и коридором с последующим устройством перегородок с дверным проёмом на части площади коридора 3.0м2 и санузлом с целью устройства ванной и туалета;
- Смещение дверных проёмов в перегородке между коридором 5.2м2 и коридором 3.0м2.
Нами были разработаны следующие разделы проектной документации для согласования в исполкоме:
- АС - архитектурно-строительные решения.
