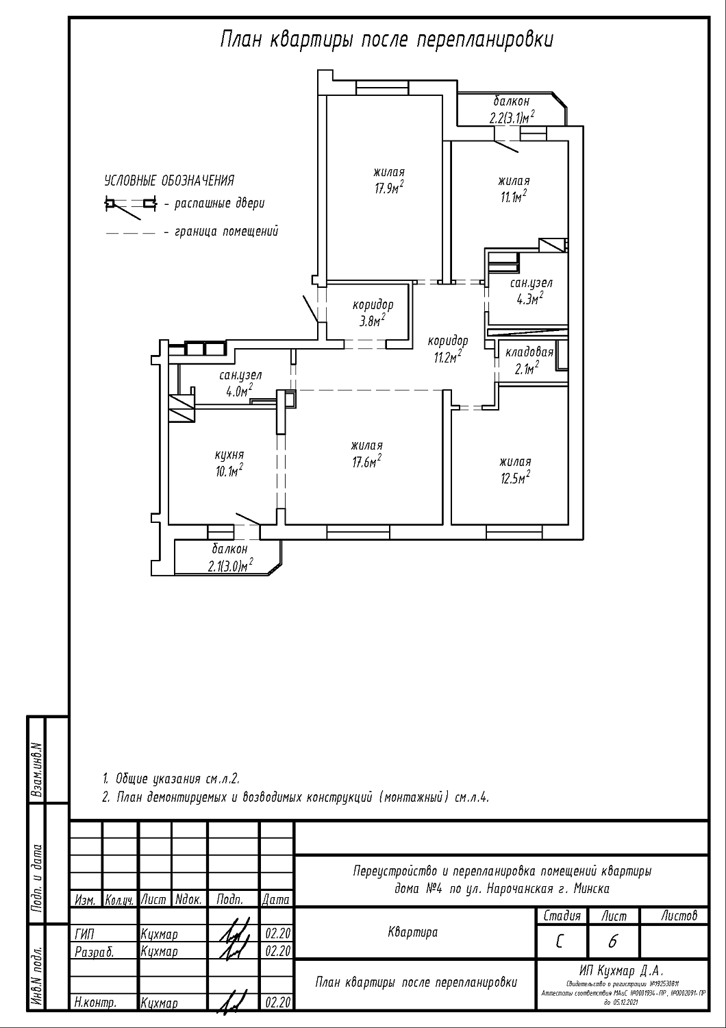
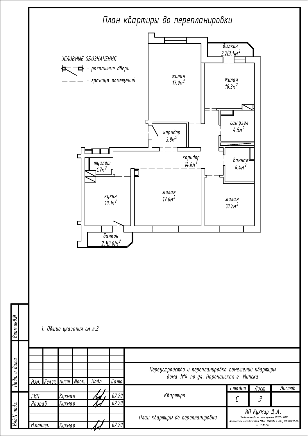
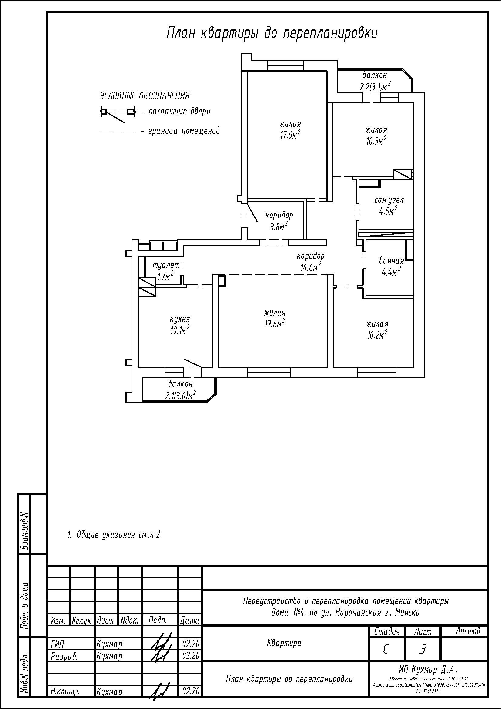
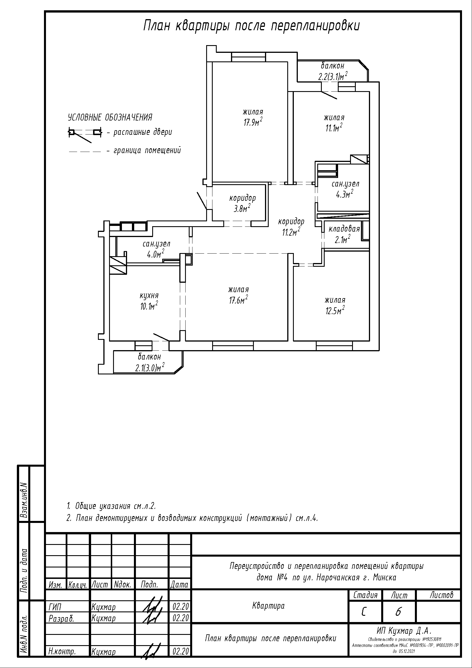
Перепланировка квартиры по ул. Нарочанская, 4 в ЖК «Нарочанский»
Пожелания заказчика:- Смена направления открывания входной двери;
- Устройство зашивки из ГКЛ в санузле;
- Устройство перегородки между жилой и коридором;
- Изменение площади жилой 11,1 м2;
- Демонтаж части стены в коридоре;
- Устройство кладовой на площади существующей ванной;
- Устройство санузла на площади существующего туалета; увеличение за счёт площади коридора;
- Устройство проёма между кухней и жилой;
- Сужение дверного проёма между жилой пл. 10,2 м2 и коридором.
Нами были разработаны следующие разделы проектной документации для согласования в исполкоме:
- АС - архитектурно-строительные решения.
