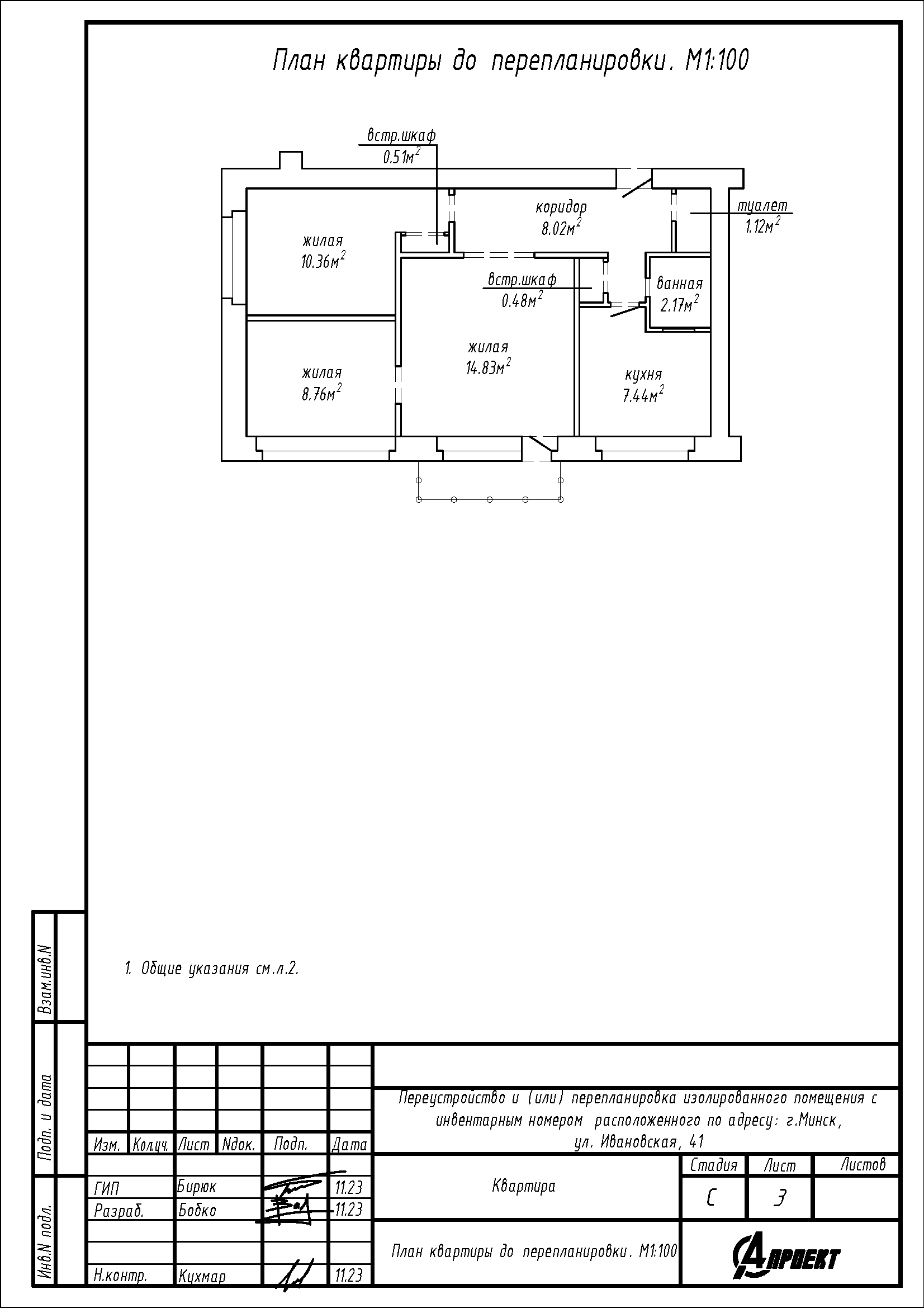
Перепланировка квартиры по ул. Ивановская, 41 в г. Минске
Пожелания заказчика:
- Демонтаж встроенного шкафа в жилой 10.36м2;
- Смещение дверного проёма между коридором и жилой;
- Демонтаж встроенного шкафа в коридоре;
- Закладка дверного проёма между коридором и кухней с целью устройства нового проёма с межкомнатным дверным блоком между жилой и кухней;
- Устройство санузла на площади ванной с целью увеличения за счёт части площади коридора;
- Увеличение площади туалета за счёт части площади коридора.
Нами были разработаны следующие разделы проектной документации для согласования в исполкоме:
- АС - архитектурно-строительные решения.
