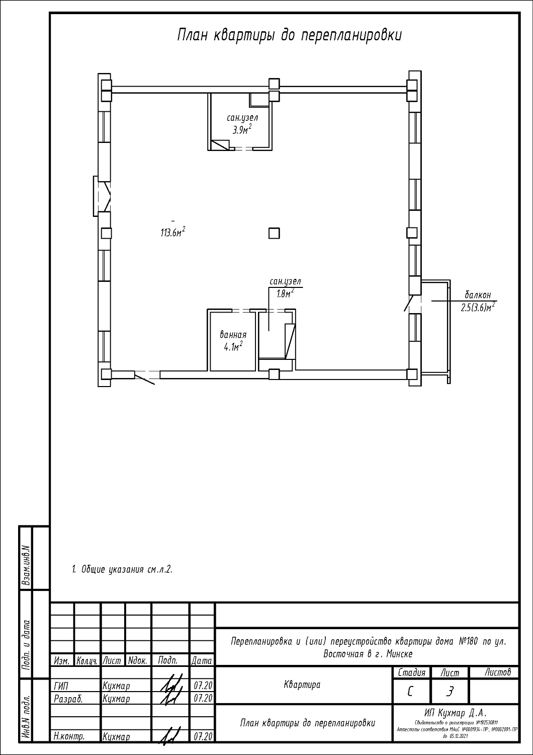
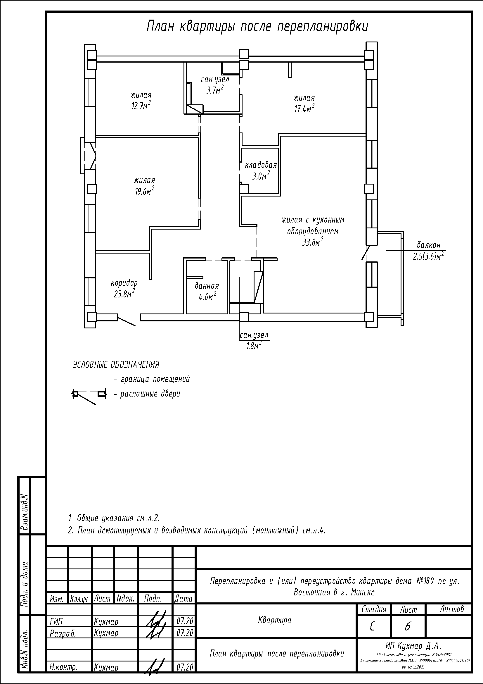
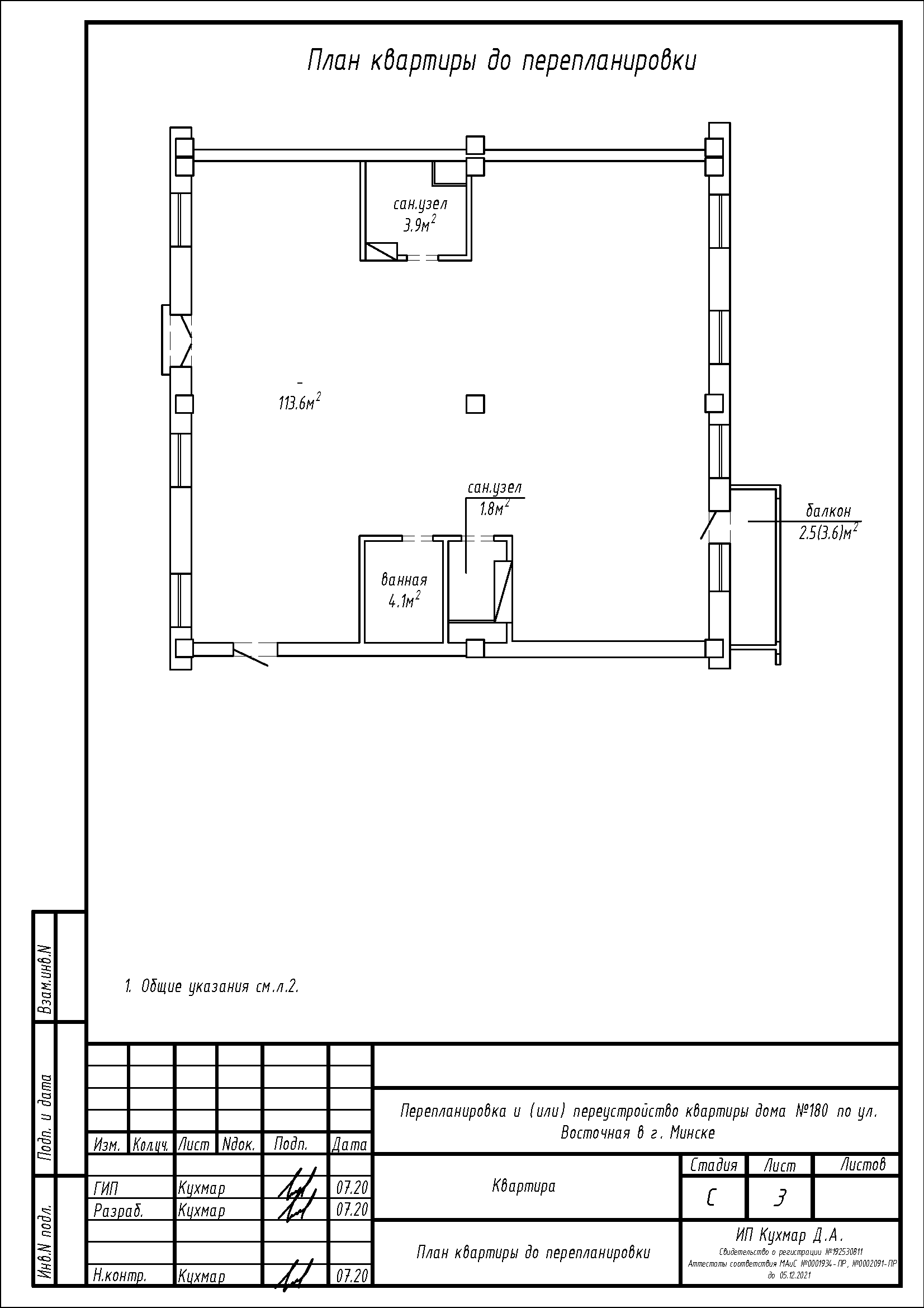
Перепланировка квартиры по ул. Восточная, 180 в г. Минске
Пожелания заказчика:
- Разделение общего помещения на жилое с кухонным оборудованием, три жилые, коридор и кладовую;
- Смещение дверного проёма в санузле;
- Закладка дверного проёма в перегородке между коридором и санузлом, с целью устройства нового проёма.
Нами были разработаны следующие разделы проектной документации для согласования в исполкоме:
- АС - архитектурно-строительные решения.
