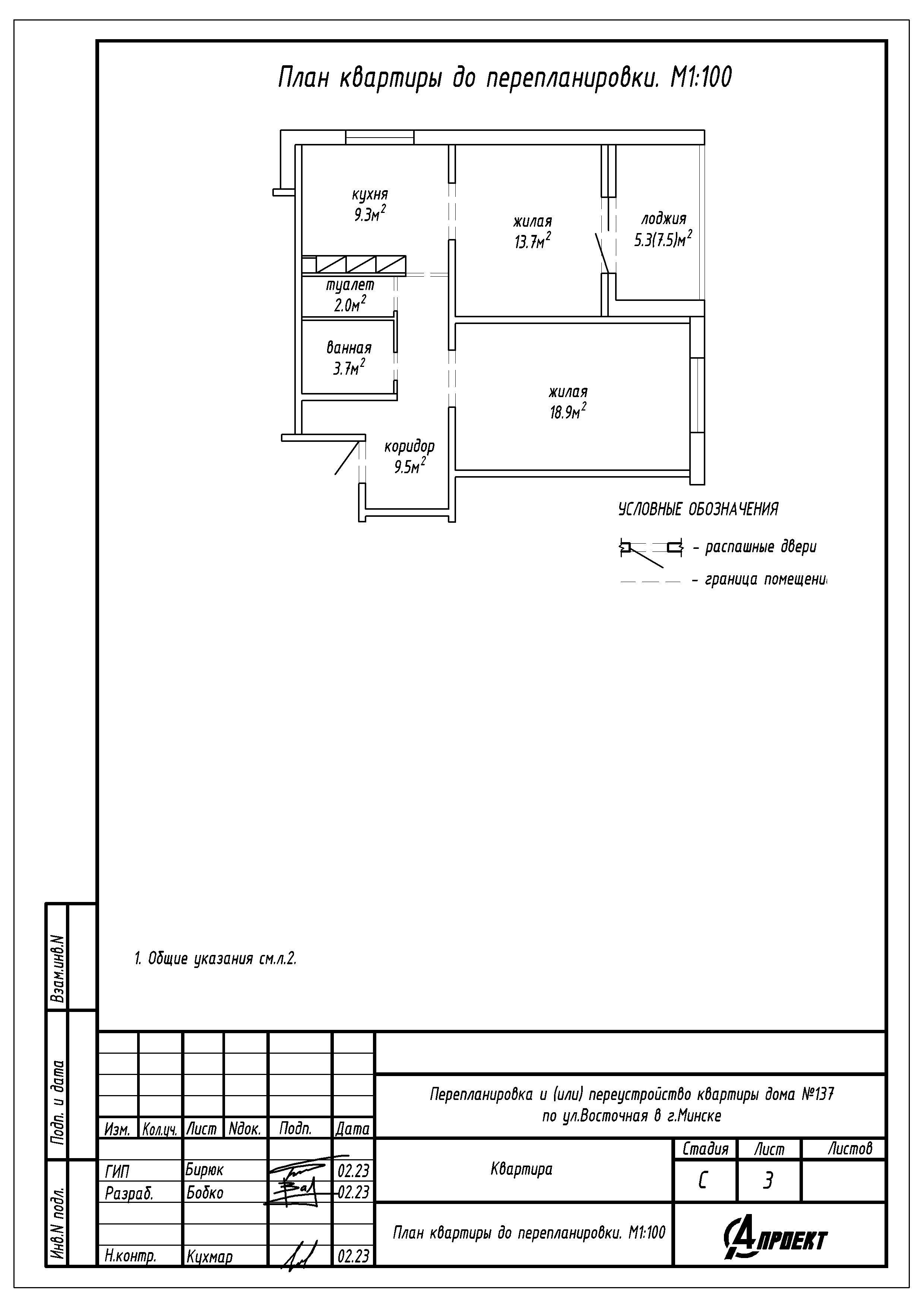
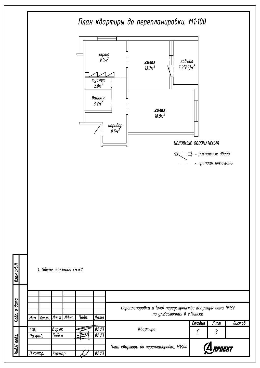
Перепланировка квартиры по ул. Восточная, 137 в ЖК «4 Сезона»
Пожелания заказчика:
- Объединение ванной и туалета в единый санузел;
- Сужение дверного проёма между кухней и жилой;
- Закладка дверного проёма в перегородке между коридором и туалетом;
- Демонтаж перемычки дверного проёма в перегородке между кухней и коридором.
Нами были разработаны следующие разделы проектной документации для согласования в исполкоме:
- АС - архитектурно-строительные решения.
