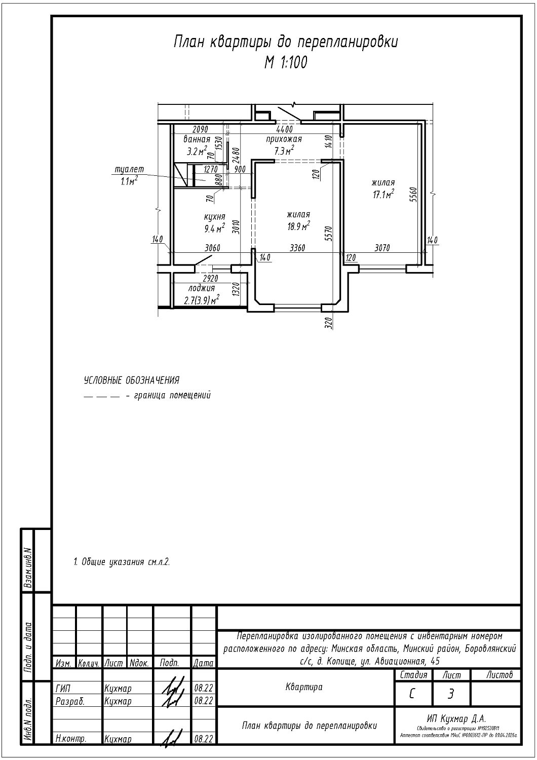
Перепланировка квартиры по ул. Авиационная, 45 в ЖК «Новая Боровая»
Пожелания заказчика:
- Закладка дверного проёма между кухней и прихожей;
- Устройство гардеробной на площади жилой;
- Сужение дверного проёма между кухней и жилой;
- Расширение дверного проёма между ванной и прихожей.
Нами были разработаны следующие разделы проектной документации для согласования в исполкоме:
- АС - архитектурно-строительные решения.
