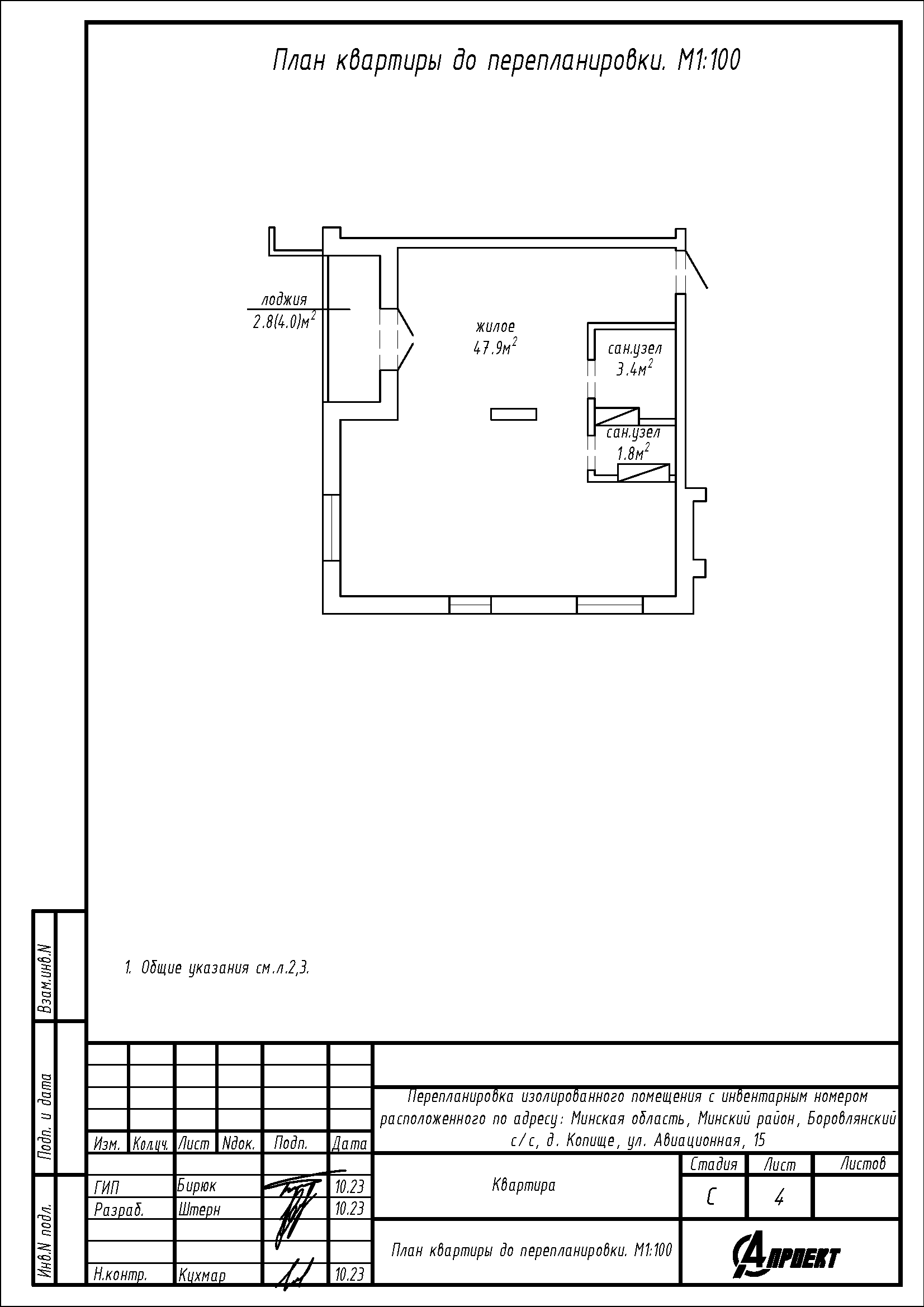
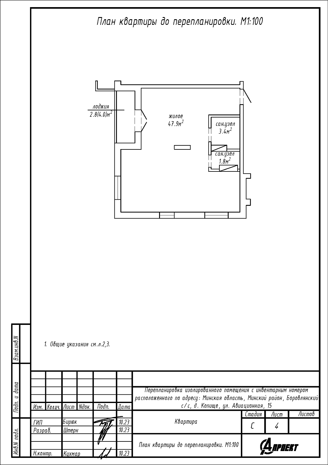
Перепланировка квартиры по ул. Авиационная, 15 в ЖК «Новая Боровая»
Пожелания заказчика:
- Разделение общего жилого помещения на жилую с кухонным оборудованием, две жилые и коридор;
- Объединение двух санузлов в единый санузел.
Нами были разработаны следующие разделы проектной документации для согласования в исполкоме:
- АС - архитектурно-строительные решения.
