Реконструкция квартиры по ул. Нарочанская, 4 в ЖК «Нарочанский»
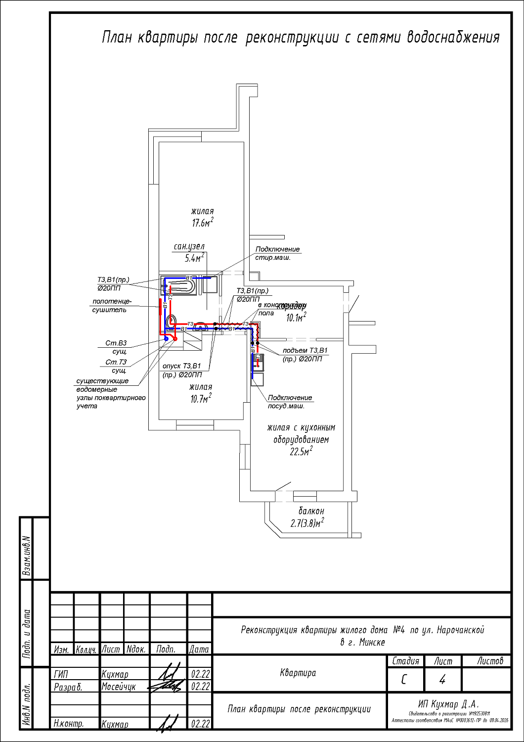
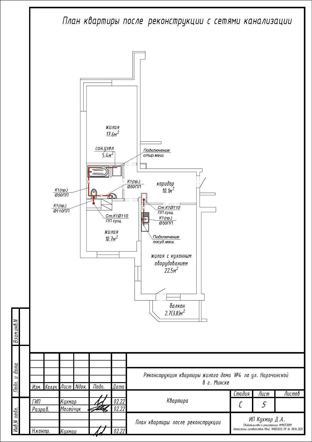
Пожелания заказчика:- Увеличение площади коридора за счёт площади жилой с кухонным оборудованием;
- Увеличение площади санузла за счёт площади коридора, но не более чем на 25%;
- Смена дверного блока со сменой направления открывания входной двери;
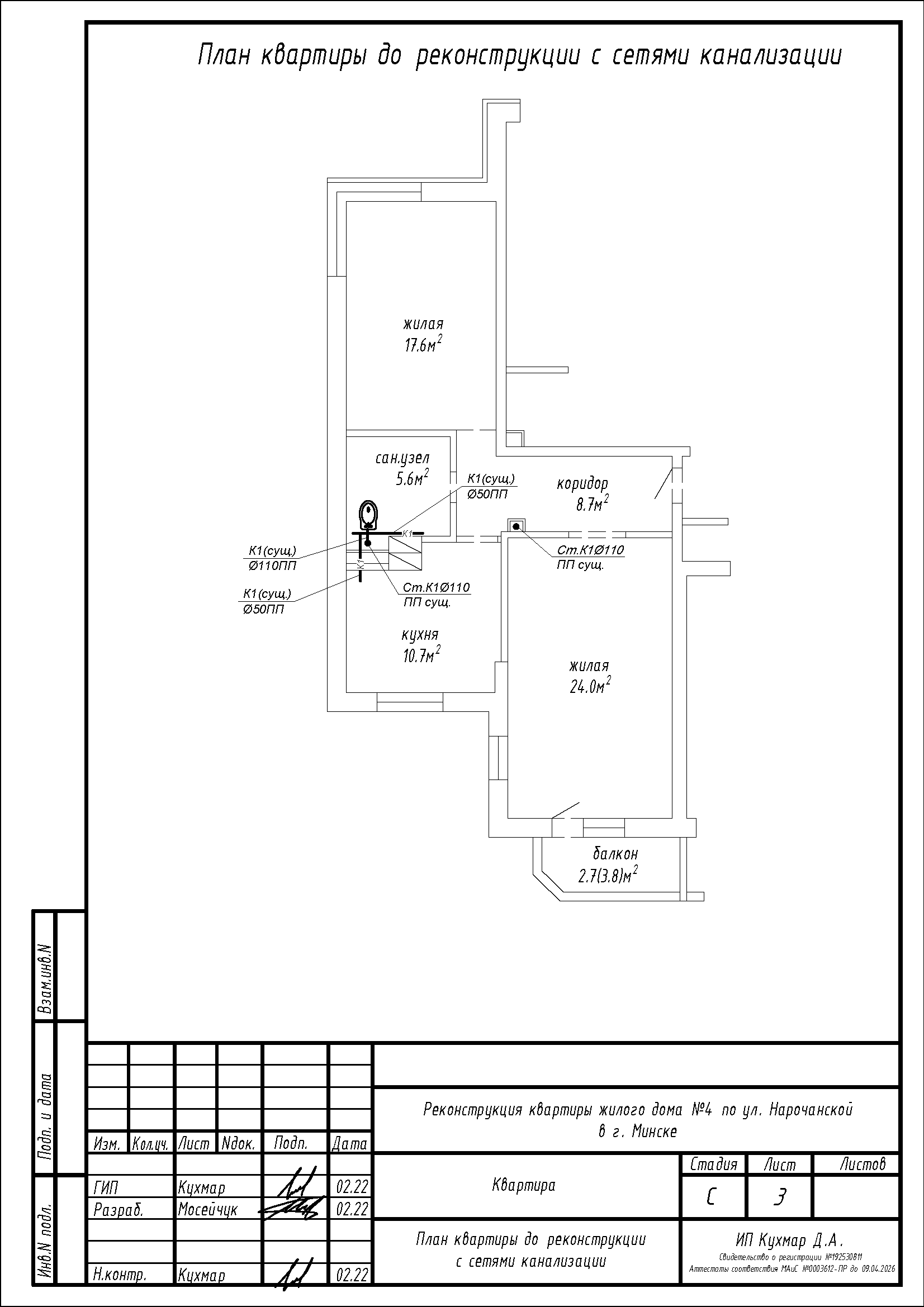
- Устройство жилой с кухонным оборудованием на площади жилой, жилой на площади кухни;
- Сужение дверного проёма в перегородке между жилой, кухней и коридором;
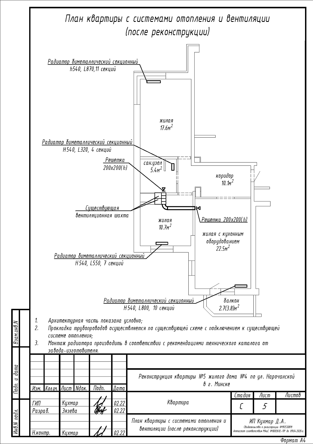
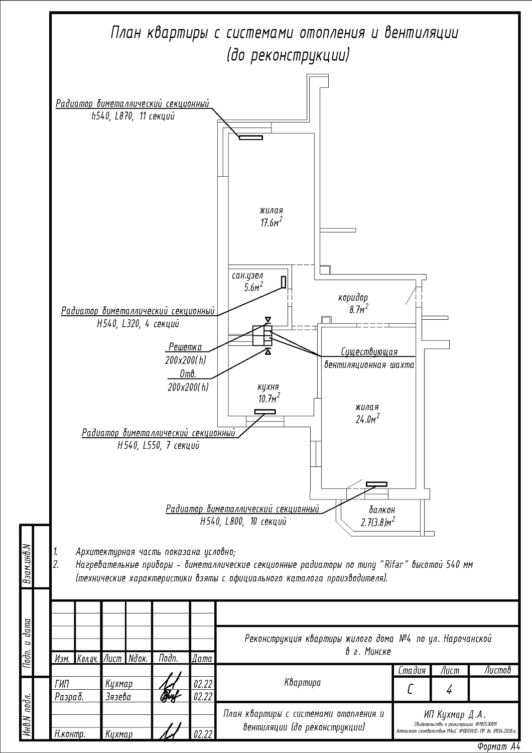
- Перенос нагревательного прибора;
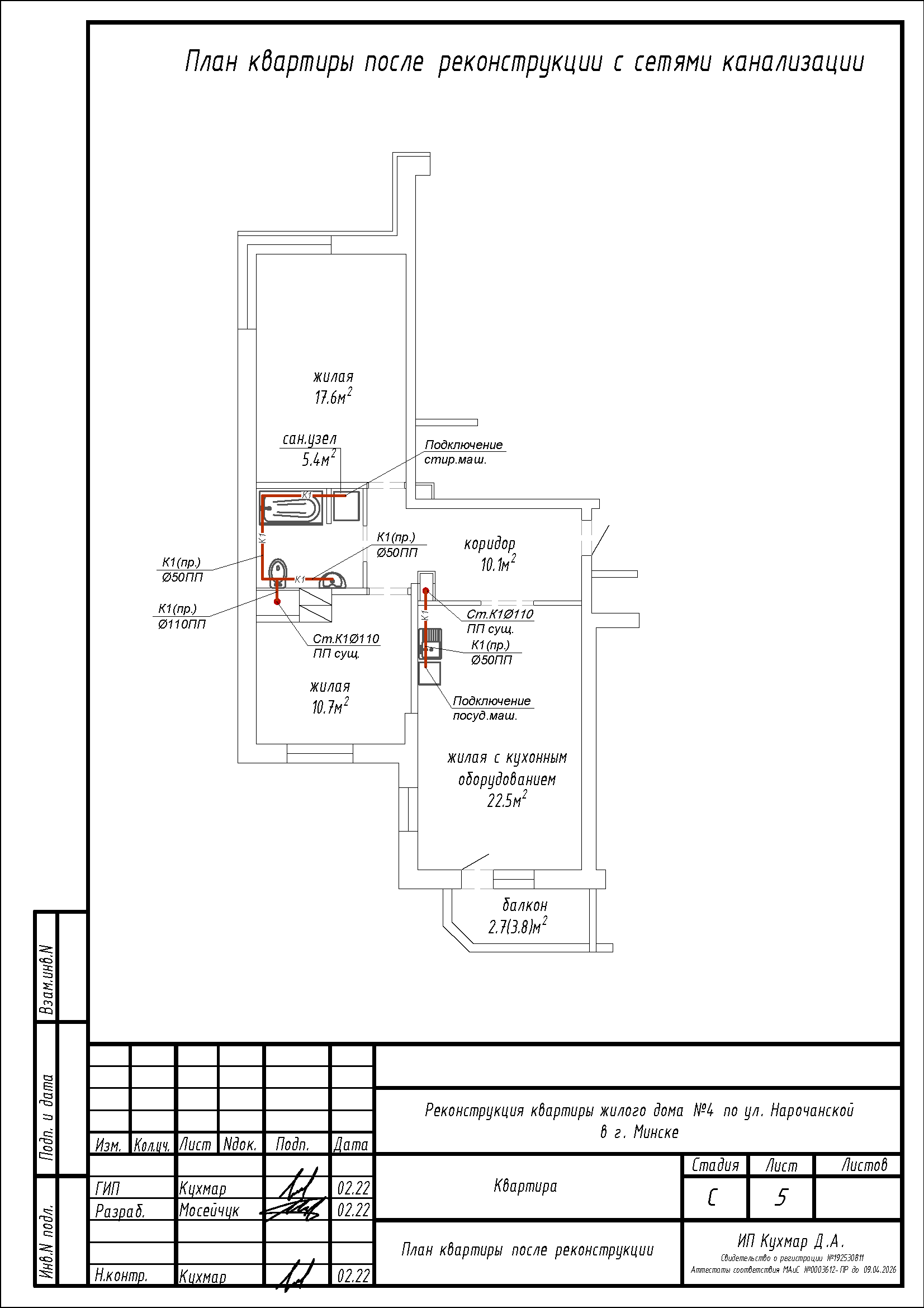
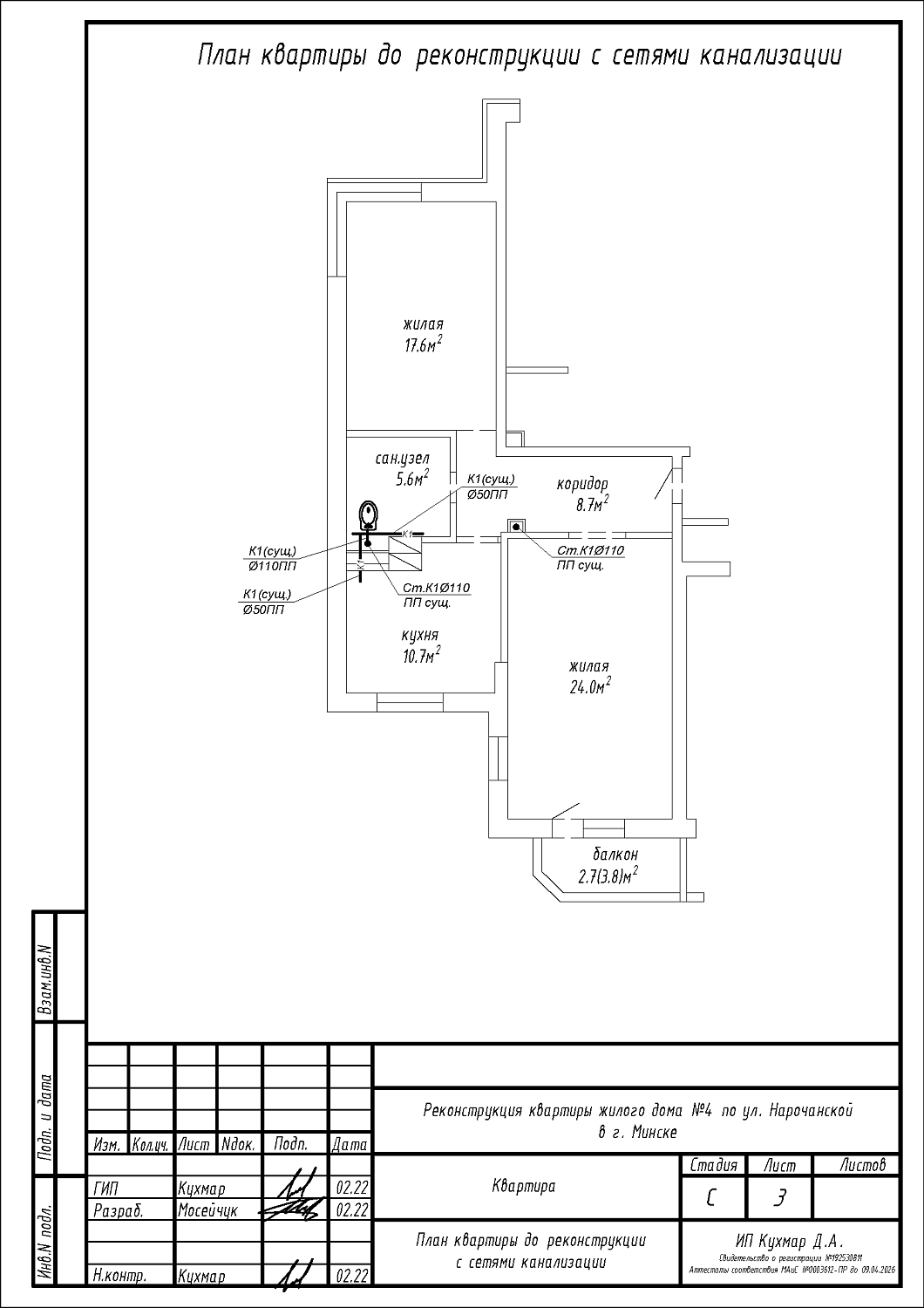
- Изменение трассы систем вентиляции, в связи с изменением назначения помещений.
Нами были разработаны следующие разделы проектной документации для согласования в исполкоме:
- АС - архитектурно-строительные решения;
- ОВ - отопление и вентиляция;
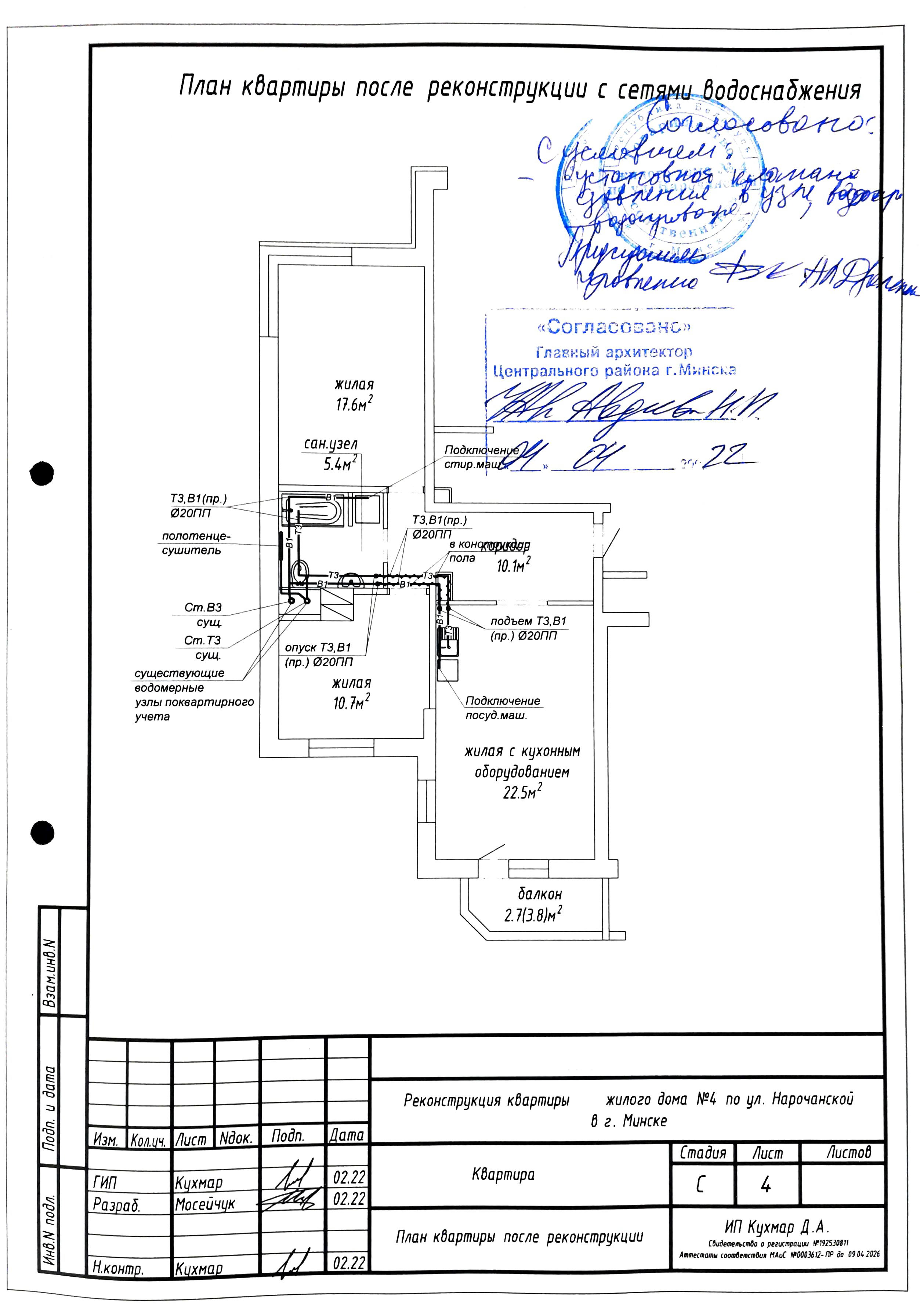
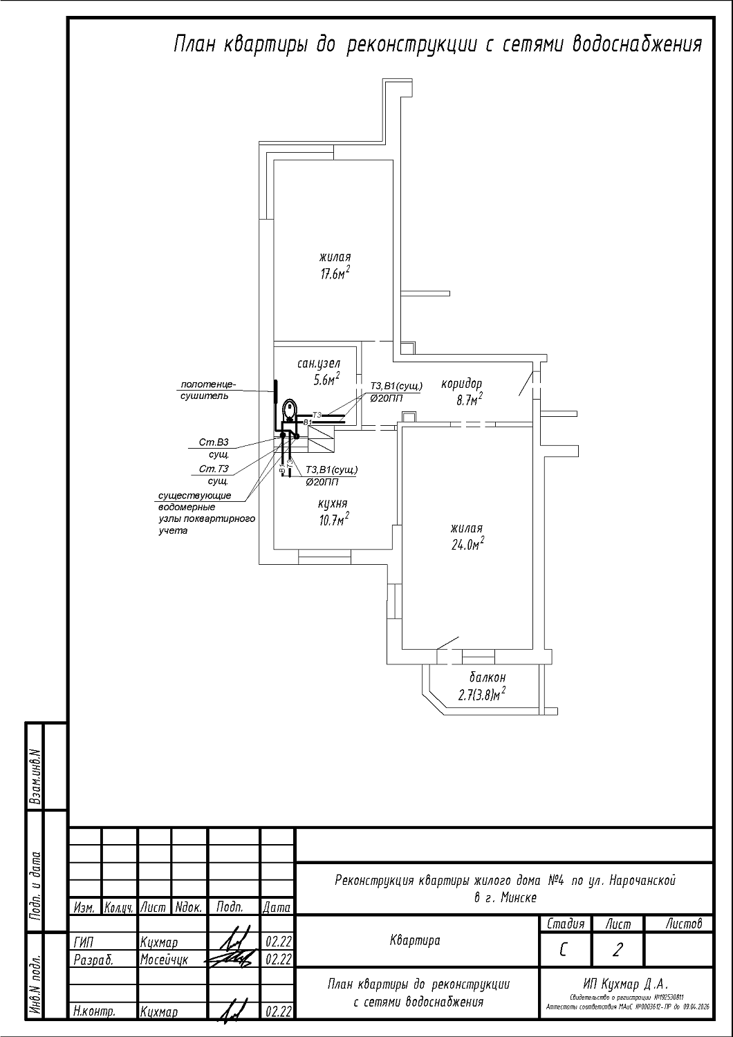
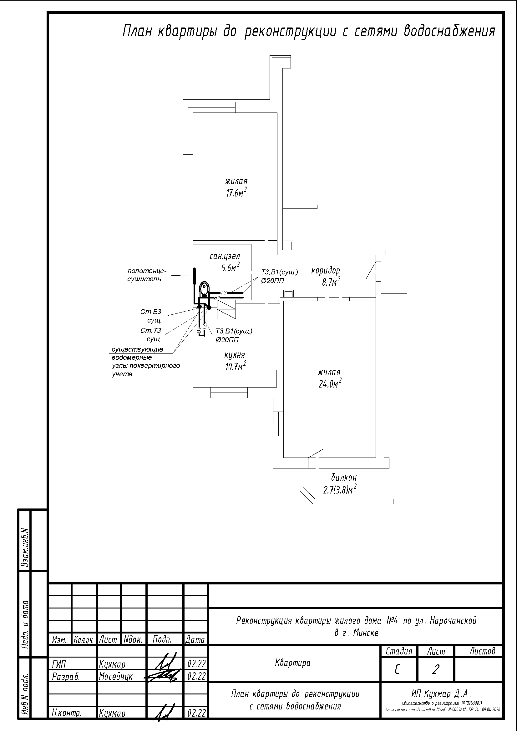
- ВК - водоснабжение и канализация.
