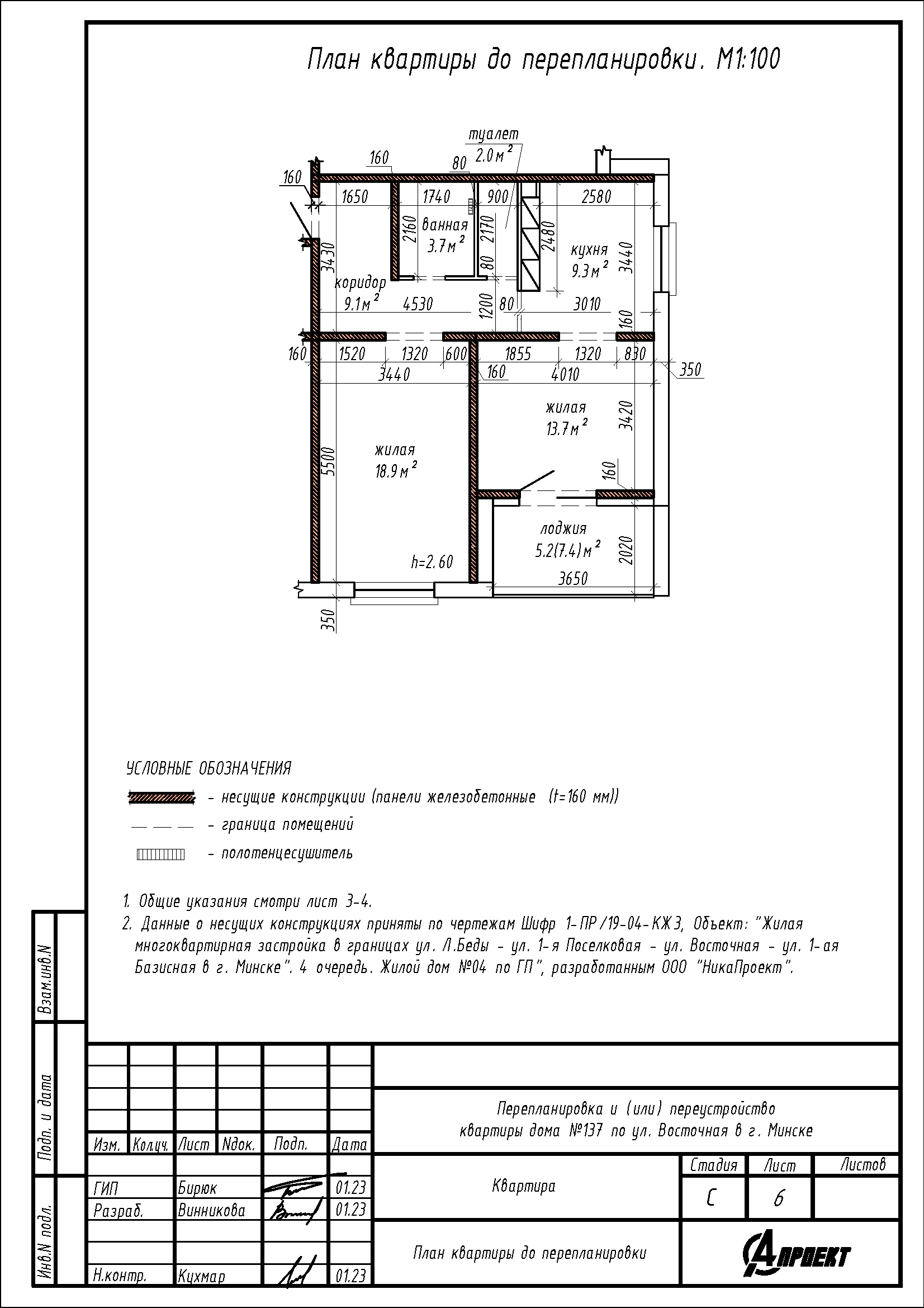
Перепланировка квартиры по ул. Восточная, 137 в ЖК «4 Сезона»
Пожелания заказчика:
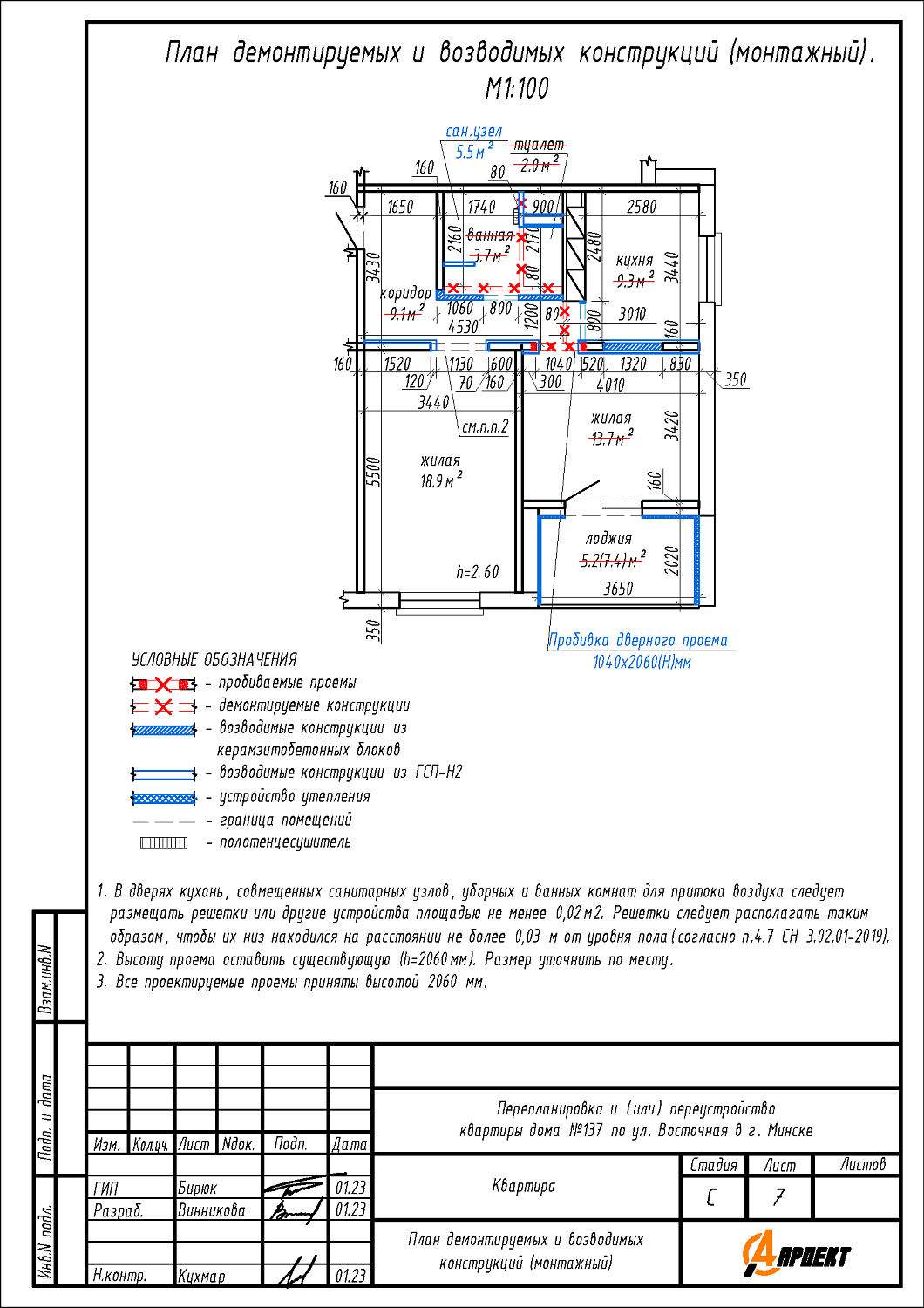
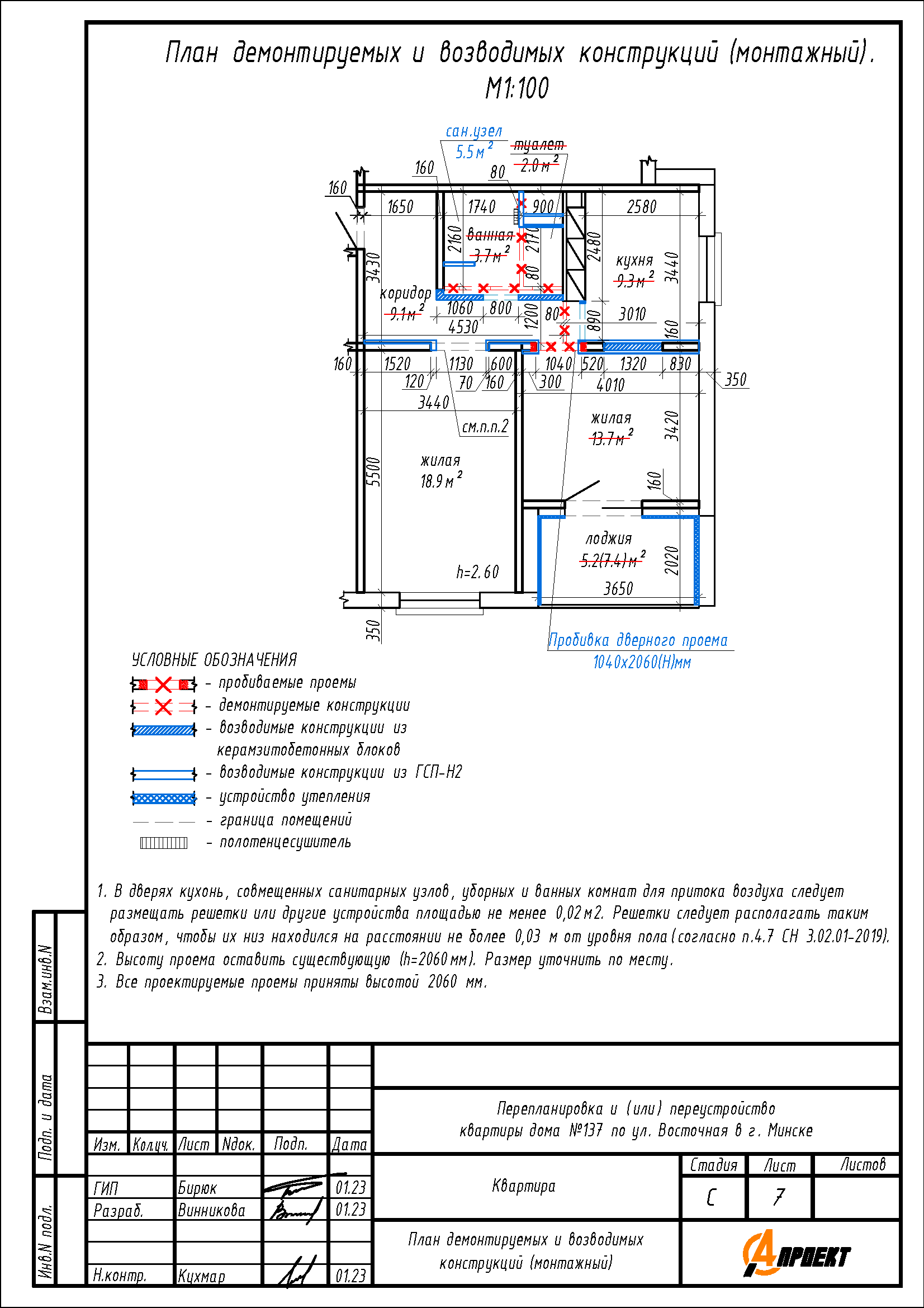
- Объединение ванной и туалета в единый санузел;
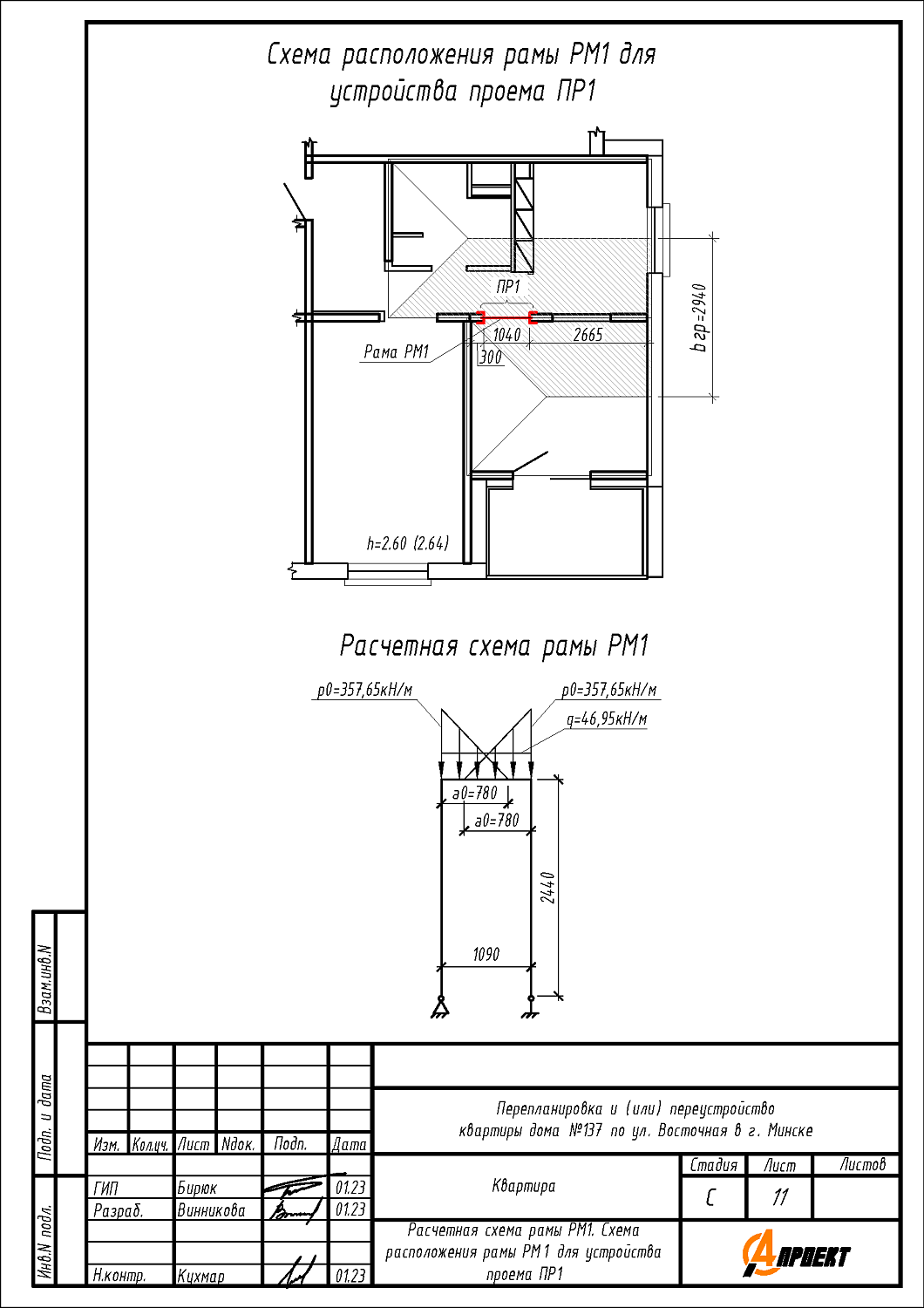
- Пробивка дверного проёма в несущей стене между жилой и коридором;
- Закладка дверного проёма между кухней и жилой;
- Увеличение санузла за счёт площади коридора;
- Утепление лоджии;
- Устройство зашивок коммуникаций и инсталляций на части площади санузла.
- Сужение дверного проёма в стене между коридором и жилой 18,9 м2;
- Устройство зашивки конструкции усиления пробиваемого проёма для выравнивания стены.
Нами были разработаны следующие разделы проектной документации для согласования в исполкоме:
- АС - архитектурно-строительные решения.
